Astegiudiziarie.it è parte di Rete Aste Network

Accedi o registrati

Non sei ancora registrato?

Oppure

Accedi

Stalle, scuderie, rimesse, autorimesse

Via della Chiesetta, 2, 28053 Villaggi NO, Italia, Castelletto sopra Ticino (NO)

€ 5.500,00

Offerta minima € 4.125,00


Codice A4344131

Lotto 2

Data udienza 15/04/2026 ore 12:00

Termine presentazione offerte 14/04/2026 ore 12:00

Stalle, scuderie, rimesse, autorimesse

Via della Chiesetta, 2, 28053 Villaggi NO, Italia, Castelletto sopra Ticino (NO)

€ 5.500,00

Offerta minima € 4.125,00


Codice A4344131

Lotto 2

Data udienza 15/04/2026 ore 12:00

Termine presentazione offerte 14/04/2026 ore 12:00

Ti interessa questa vendita?

Documentazione

Visualizza su mappa

Mappa geografica del bene

Punti di interesse

Fonte dati

Nel raggio di {{range}}Km

Loading...
  • {{ getIcon(poi.type) }} {{ poi.localized }}: {{poi.count}}
  • {{ getIcon(poi.type) }} {{ poi.localized }}: {{poi.count}}
Dati non disponibili

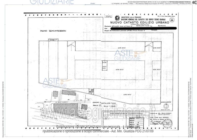
Piena proprietà per la quota di 1/1 di un’autorimessa situata in zona centrale/lungolago del Comune di Castelletto sopra Ticino (NO), ubicata al piano seminterrato di una costruzione destinata esclusivamente al ricovero delle auto.

Indirizzo
Via della Chiesetta, 2, 28053 Villaggi NO, Italia, Castelletto sopra Ticino (NO)


Codice asta
4344131


Lotto
2


Numero beni
1


Genere
Immobili


Categoria
Altra categoria


Valore di stima
-


Stalle, scuderie, rimesse, autorimesse

Piena proprietà per la quota di 1/1 di un’autorimessa situata in zona centrale/lungolago del Comune di Castelletto sopra Ticino (NO), ubicata al piano seminterrato di una costruzione destinata esclusivamente al ricovero delle auto.All’u.i.u. si accede dall’accesso carraio comune, mediante ingresso da Via della Chiesetta.L’autorimessa è costituita da un unico locale (c.a. 17,50 mq calpestabili e c.a. 19,50 mq lordi).L’altezza dell’autorimessa è di circa 2,50m.

Indirizzo
Via della Chiesetta, 2, 28053 Villaggi NO, Italia, Castelletto sopra Ticino (NO)


Piano
-


Disponibilità
Libero


Vani
-


Bagni
-


Metri quadri
19,50


Certificazione energetica
-


Dati catastali

Foglio:4, Particella:60, Subalterno:25


Data udienza
15/04/2026 ore 12:00


Tipo di vendita
Senza incanto


Modalità di vendita
Asincrona telematica


Luogo
N.A. -


Luogo presentazione offerte
-


Termine presentazione offerte
14/04/2026 ore 12:00


Prezzo base
€ 5.500,00


Offerta minima
€ 4.125,00


Rialzo minimo in caso di gara
€ 250,00


Deposito cauzionale
10% del prezzo offerto


Deposito in conto spese
-


Tribunale
Novara

Tipo di procedura
Espropriazione immobiliare (cartabia)

Ruolo
65/2023

Delegato alla vendita
Burlotto Anna
(Procede alle operazioni di vendita)

Recapiti
-

Email
-

IVG
Vigone Lorenzo
(Gestisce la visita del bene)

Recapiti
-

Email

Scheda COD. 4344131 - Pubblicata dal 13/02/2026

La presente scheda di vendita riporta integralmente informazioni e documenti pervenuti ufficialmente dal Ministero e dal professionista incaricato.


Pubblicazione autorizzata dall’Autorità competente, è vietata ogni ripubblicazione o riproduzione anche parziale


Ti interessa questa vendita?

Documentazione

Visualizza su mappa

Mappa geografica del bene

Punti di interesse

Fonte dati

Nel raggio di {{range}}Km

Loading...
  • {{ getIcon(poi.type) }} {{ poi.localized }}: {{poi.count}}
  • {{ getIcon(poi.type) }} {{ poi.localized }}: {{poi.count}}
Dati non disponibili