Astegiudiziarie.it è parte di Rete Aste Network

Accedi o registrati

Non sei ancora registrato?

Oppure

Accedi

Abitazione di tipo rurale

VIA CONTRADA FALANGONE 30/5, San Giuseppe Vesuviano (NA)

€ 9.000,00

Offerta minima € 6.750,00


Codice A2784109

Lotto Unico

Data vendita 29/05/2026 ore 09:30

Termine presentazione offerte 28/05/2026 ore 17:00

Abitazione di tipo rurale

VIA CONTRADA FALANGONE 30/5, San Giuseppe Vesuviano (NA)

€ 9.000,00

Offerta minima € 6.750,00


Codice A2784109

Lotto Unico

Data Vendita 29/05/2026 ore 09:30

Termine presentazione offerte 28/05/2026 ore 17:00

Ti interessa questa vendita?

Documentazione

Visualizza su mappa

Mappa geografica del bene

Punti di interesse

Fonte dati

Nel raggio di {{range}}Km

Loading...
  • {{ getIcon(poi.type) }} {{ poi.localized }}: {{poi.count}}
  • {{ getIcon(poi.type) }} {{ poi.localized }}: {{poi.count}}
Dati non disponibili

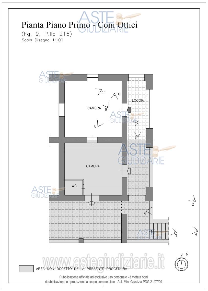
Unico locale, al quale si accede da una scala di pietra esterna, con antistante una piccola porzione di ballatoio e con sovrastante una porzione di tetto. Tale locale, in condizioni fatiscenti, privo di servizi igienici, è attualmente occupato dal debitore che lo ha adibito a propria abitazione.

Indirizzo
VIA CONTRADA FALANGONE 30/5, San Giuseppe Vesuviano (NA)


Codice asta
2784109


Lotto
Unico


Numero beni
1


Genere
Immobili


Categoria
Immobile residenziale


Valore di stima
€ 16.000,00


Abitazione di tipo rurale

Unico locale, al quale si accede da una scala di pietra esterna, con antistante una piccola porzione di ballatoio e con sovrastante una porzione di tetto. Tale locale, in condizioni fatiscenti, privo di servizi igienici, è attualmente occupato dal debitore che lo ha adibito a propria abitazione.

Indirizzo
VIA CONTRADA FALANGONE 30/5, San Giuseppe Vesuviano (NA)


Piano
-


Disponibilità
-


Vani
1,00


Bagni
-


Metri quadri
-


Certificazione energetica
-


Data vendita
29/05/2026 ore 09:30


Tipo di vendita
Senza incanto


Modalità di vendita
Presso il venditore


Luogo
Piazza Giordano Bruno - Nola 80035


Luogo presentazione offerte
-


Termine presentazione offerte
28/05/2026 ore 17:00


Prezzo base
€ 9.000,00


Offerta minima
€ 6.750,00


Rialzo minimo in caso di gara
€ 500,00


Deposito cauzionale
10% del prezzo offerto


Deposito in conto spese
-


Tribunale
Nola

Tipo di procedura
Esecuzione immobiliare

Ruolo
75/2015

Delegato alla vendita
Mazza Nicoletta
(Procede alle operazioni di vendita)
(Gestisce la visita del bene)

Recapiti
-

Email
nicolettamazza@hotmail.it

Scheda COD. 2784109 - Pubblicata dal 23/03/2026

La presente scheda di vendita riporta integralmente informazioni e documenti pervenuti ufficialmente dal Ministero e dal professionista incaricato.

Pubblicazione notarizzata su Blockchain


Pubblicazione autorizzata dall’Autorità competente, è vietata ogni ripubblicazione o riproduzione anche parziale


Ti interessa questa vendita?

Documentazione

Visualizza su mappa

Mappa geografica del bene

Storico delle vendite

Data venditaPrezzo base
22/03/2019€ 16.000,00
30/06/2023€ 12.000,00
31/10/2025€ 9.000,00
29/05/2026€ 9.000,00

Punti di interesse

Fonte dati

Nel raggio di {{range}}Km

Loading...
  • {{ getIcon(poi.type) }} {{ poi.localized }}: {{poi.count}}
  • {{ getIcon(poi.type) }} {{ poi.localized }}: {{poi.count}}
Dati non disponibili