Astegiudiziarie.it è parte di Rete Aste Network

Accedi o registrati

Non sei ancora registrato?

Oppure

Accedi

Fabbricato rurale

Località Piantoli snc, Conca della Campania (CE)

€ 1.167.000,00

Offerta minima € 875.250,00


Codice A4344186

Lotto Lotto unico

Data udienza 27/05/2026 ore 09:30

Termine presentazione offerte 26/05/2026 ore 23:59

Fabbricato rurale

Località Piantoli snc, Conca della Campania (CE)

€ 1.167.000,00

Offerta minima € 875.250,00


Codice A4344186

Lotto Lotto unico

Data udienza 27/05/2026 ore 09:30

Termine presentazione offerte 26/05/2026 ore 23:59

Ti interessa questa vendita?

Documentazione

Visualizza su mappa

Mappa geografica del bene

Punti di interesse

Fonte dati

Nel raggio di {{range}}Km

Loading...
  • {{ getIcon(poi.type) }} {{ poi.localized }}: {{poi.count}}
  • {{ getIcon(poi.type) }} {{ poi.localized }}: {{poi.count}}
Dati non disponibili

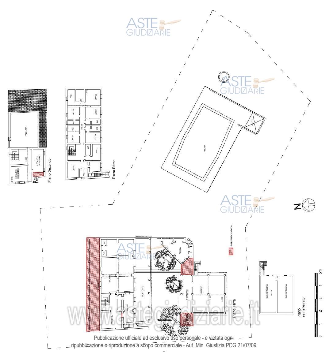
Fabbricato su tre livelli con adiacente terreno di estensione pari a circa mq.60.000

Indirizzo
Località Piantoli snc, Conca della Campania (CE)


Codice asta
4344186


Lotto
Lotto unico


Numero beni
1


Genere
Immobili


Categoria
Altra categoria


Valore di stima
-


Fabbricato rurale

Piena ed intera proprietà di fabbricato con adiacente terreno ubicati in Conca della Campania (CE) alla Località Piantoli snc, con accesso attraverso una strada interpoderale che si innesta dalla Provinciale n.14. Il fabbricato è articolato su tre livelli (piano seminterrato, piano Terra, piano Primo e piano secondo) con copertura a doppia falda ed è dotato di un’area cortilizia dalla quale si accede, verso nord, al fabbricato principale attraverso un porticato e, verso sud, ad una struttura “gazebo” coperta e chiusa sui quattro lati da vetrate; lateralmente ad esso, verso est, vi è una piccola costruzione adibita a “cucina” con annesso forno.Il piano seminterrato è composto da due locali di forma rettangolare dedicati a cantina/dispensa.Il piano terra del fabbricato principale è composto da ingresso sul alto ovest, cucina, dispensa, grande sala e vano adiacente dove sono stati ricavati due piccoli wc.Il primo piano (collegato agli altri piani attraverso una scala interna in legno) è composto da sette camere da letto con relativi servizi igienici, collegate tra di loro da un lungo corridoio (le camere ubicate sui due lati corti del fabbricato sono dotate di un ulteriore vano adibito a guardaroba/zona relax mentre la camera sul lato ovest accede ad una scala esterna in pietra che faceva parte del corpo originario del fabbricato).Il secondo piano è composto da tre vani, bagno ed ampio terrazzo che affaccia su tre lati.Nell’area ad est circostante il fabbricato vi è una piscina di forma regolare che presenta un sistema di ricambio dell’acqua a sfioro. I locali tecnici della stessa sono seminterrati e sono ubicati al di sotto del gazebo/solarium della piscina.Il terreno p.lla 5021, adiacente il fabbricato ed avente superficie commerciale di mq.60.693, presenta una conformazione abbastanza regolare e dal punto di vista altimetrico risulta pianeggiante. Esso è coltivato ad uliveto e a frutteto.

Indirizzo
Località Piantoli snc, Conca della Campania (CE)


Piano
-


Disponibilità
-


Vani
-


Bagni
-


Metri quadri
62057,00


Certificazione energetica
-


Data udienza
27/05/2026 ore 09:30


Tipo di vendita
Senza incanto


Modalità di vendita
Asincrona telematica


Luogo
N.A. -


Luogo presentazione offerte
-


Termine presentazione offerte
26/05/2026 ore 23:59


Prezzo base
€ 1.167.000,00


Offerta minima
€ 875.250,00


Rialzo minimo in caso di gara
-


Deposito cauzionale
10% del prezzo offerto


Deposito in conto spese
-


Tipo di procedura
Esecuzione immobiliare post legge 80

Ruolo
41/2022

Giudice
Vecchione Giuseppina

Recapiti
-

Email
-

Delegato alla vendita
Posillipo Giuseppe
(Procede alle operazioni di vendita)
(Gestisce la visita del bene)

Recapiti
Cell. 3389740440

Scheda COD. 4344186 - Pubblicata dal 04/02/2026

La presente scheda di vendita riporta integralmente informazioni e documenti pervenuti ufficialmente dal Ministero e dal professionista incaricato.


Pubblicazione autorizzata dall’Autorità competente, è vietata ogni ripubblicazione o riproduzione anche parziale


Ti interessa questa vendita?

Documentazione

Visualizza su mappa

Mappa geografica del bene

Punti di interesse

Fonte dati

Nel raggio di {{range}}Km

Loading...
  • {{ getIcon(poi.type) }} {{ poi.localized }}: {{poi.count}}
  • {{ getIcon(poi.type) }} {{ poi.localized }}: {{poi.count}}
Dati non disponibili