Astegiudiziarie.it è parte di Rete Aste Network

Accedi o registrati

Non sei ancora registrato?

Oppure

Accedi

Fabbricati costruiti per esigenze industriali

Via S. Fiorano, 66, Villasanta (MB)

€ 1.200.000,00

Offerta minima € 900.000,00


Codice A4333677

Lotto Lotto unico

Data udienza 18/02/2026 ore 15:00

Termine presentazione offerte 16/02/2026 ore 13:00

Fabbricati costruiti per esigenze industriali

Via S. Fiorano, 66, Villasanta (MB)

€ 1.200.000,00

Offerta minima € 900.000,00


Codice A4333677

Lotto Lotto unico

Data udienza 18/02/2026 ore 15:00

Termine presentazione offerte 16/02/2026 ore 13:00

Ti interessa questa vendita?

Documentazione

Visualizza su mappa

Mappa geografica del bene

Punti di interesse

Fonte dati

Nel raggio di {{range}}Km

Loading...
  • {{ getIcon(poi.type) }} {{ poi.localized }}: {{poi.count}}
  • {{ getIcon(poi.type) }} {{ poi.localized }}: {{poi.count}}
Dati non disponibili

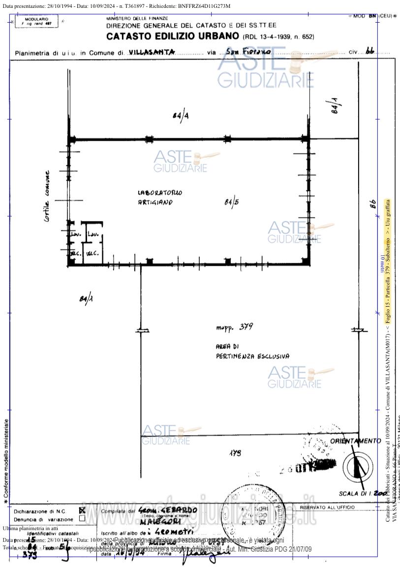
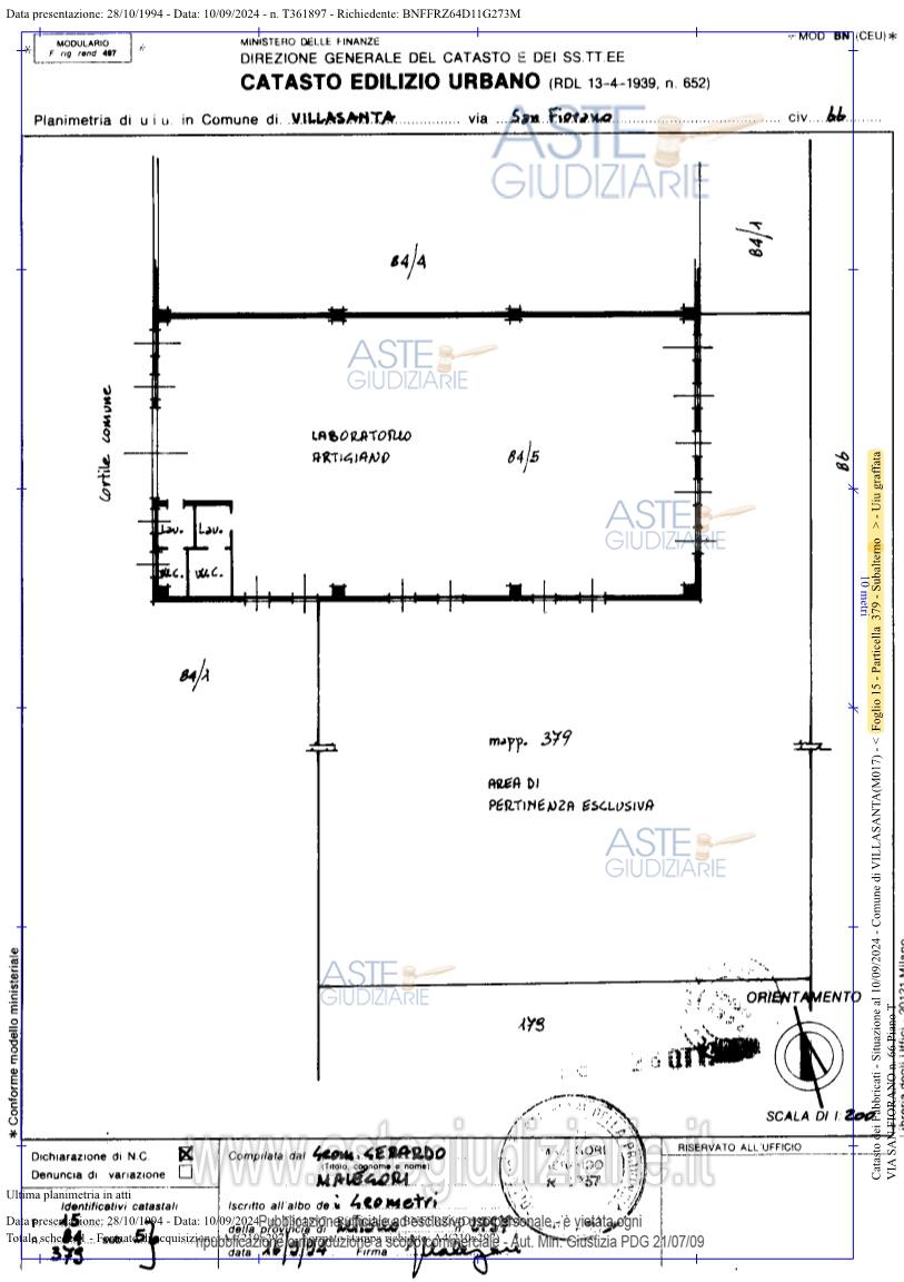
CAPANNONE INDUSTRIALE DI MQ. 2.393,16

Indirizzo
Via S. Fiorano, 66, Villasanta (MB)


Codice asta
4333677


Lotto
Lotto unico


Numero beni
1


Genere
Immobili


Categoria
Immobile industriale


Valore di stima
-


Fabbricati costruiti per esigenze industriali

CAPANNONE INDUSTRIALE DI MQ. 2.393,16

Indirizzo
Via S. Fiorano, 66, Villasanta (MB)


Piano
-


Disponibilità
LIBER


Vani
-


Bagni
-


Metri quadri
2393,16


Certificazione energetica
-


Denuncia catastale


Data udienza
18/02/2026 ore 15:00


Tipo di vendita
Senza incanto


Modalità di vendita
Sincrona telematica


Luogo
N.A. -


Luogo presentazione offerte
-


Termine presentazione offerte
16/02/2026 ore 13:00


Prezzo base
€ 1.200.000,00


Offerta minima
€ 900.000,00


Rialzo minimo in caso di gara
€ 10.000,00


Deposito cauzionale
10% del prezzo offerto


Deposito in conto spese
-


Tribunale
Monza

Tipo di procedura
Liquidazione giudiziale(cci)

Ruolo
89/2024

Curatore
Cordaro Marco
(Procede alle operazioni di vendita)
(Gestisce la visita del bene)

Recapiti
Cell. 3518115048
Tel. 036239191

Scheda COD. 4333677 - Pubblicata dal 29/12/2025

La presente scheda di vendita riporta integralmente informazioni e documenti pervenuti ufficialmente dal Ministero e dal professionista incaricato.


Pubblicazione autorizzata dall’Autorità competente, è vietata ogni ripubblicazione o riproduzione anche parziale


Ti interessa questa vendita?

Documentazione

Visualizza su mappa

Mappa geografica del bene

Storico delle vendite

Data venditaPrezzo base
19/11/2025€ 1.500.000,00
18/02/2026€ 1.200.000,00

Punti di interesse

Fonte dati

Nel raggio di {{range}}Km

Loading...
  • {{ getIcon(poi.type) }} {{ poi.localized }}: {{poi.count}}
  • {{ getIcon(poi.type) }} {{ poi.localized }}: {{poi.count}}
Dati non disponibili