Astegiudiziarie.it è parte di Rete Aste Network

Accedi o registrati

Non sei ancora registrato?

Oppure

Accedi

Fabbricati costruiti per esigenze industriali

Via Torino, 181, 12048 Sommariva del Bosco CN, Italia, Sommariva del Bosco (CN)

€ 600.000,00

Offerta minima -


Codice A4336508

Lotto Lotto unico

Data udienza 26/02/2026 ore 15:00

Termine presentazione offerte 25/02/2026 ore 12:00

Fabbricati costruiti per esigenze industriali

Via Torino, 181, 12048 Sommariva del Bosco CN, Italia, Sommariva del Bosco (CN)

€ 600.000,00

Offerta minima -


Codice A4336508

Lotto Lotto unico

Data udienza 26/02/2026 ore 15:00

Termine presentazione offerte 25/02/2026 ore 12:00

Ti interessa questa vendita?

Documentazione

Visualizza su mappa

Mappa geografica del bene

Punti di interesse

Fonte dati

Nel raggio di {{range}}Km

Loading...
  • {{ getIcon(poi.type) }} {{ poi.localized }}: {{poi.count}}
  • {{ getIcon(poi.type) }} {{ poi.localized }}: {{poi.count}}
Dati non disponibili

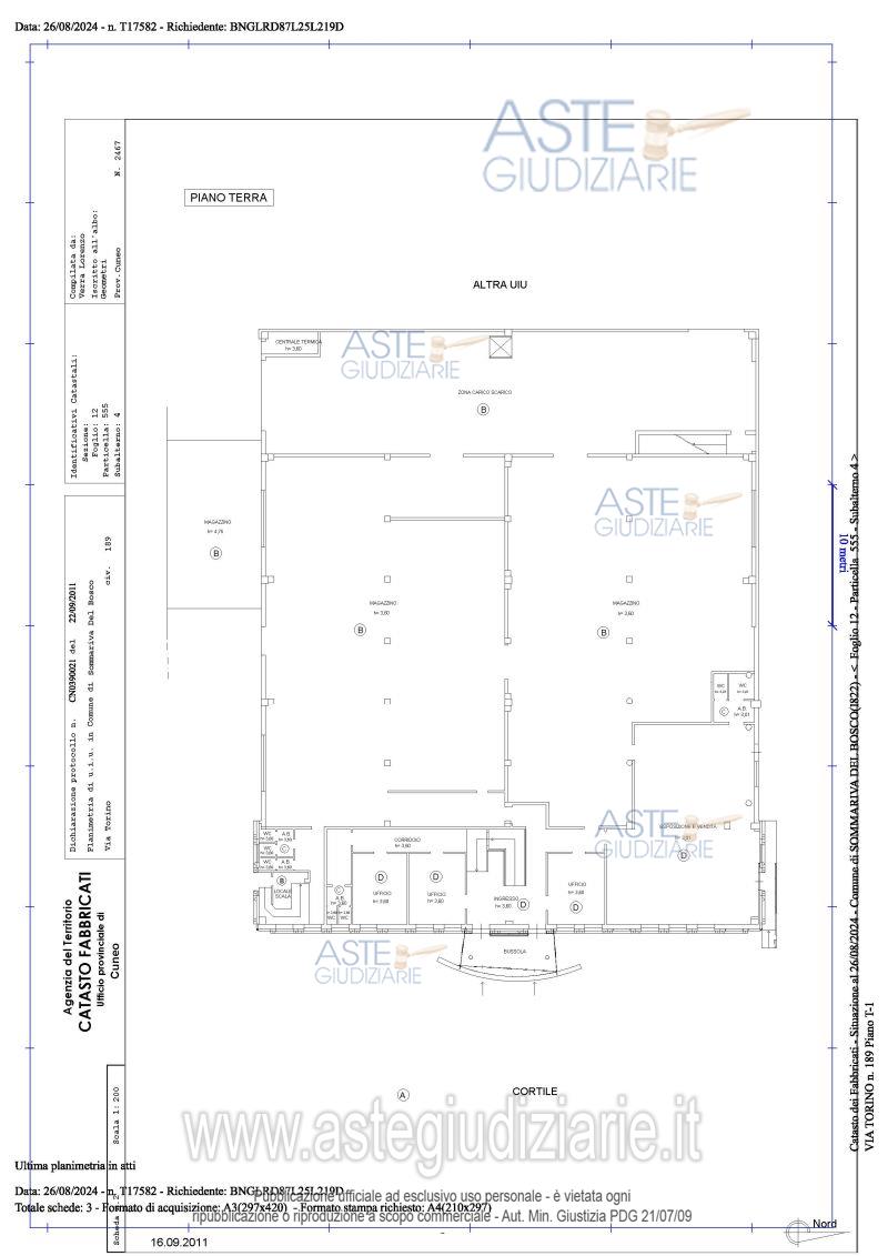
Compendio immobiliare ubicato nel Comune di Sommariva Bosco Via Torino n. 181, composto da tre corpi di fabbrica (tra di loro collegati) di cui il corpo “A” è composto da due piani, il corpo “B” è composto da due piani, mentre il corpo “C” è elevato ad un piano fuori terra.

Indirizzo
Via Torino, 181, 12048 Sommariva del Bosco CN, Italia, Sommariva del Bosco (CN)


Codice asta
4336508


Lotto
Lotto unico


Numero beni
1


Genere
Immobili


Categoria
Immobile industriale


Valore di stima
-


Fabbricati costruiti per esigenze industriali

Compendio immobiliare ubicato nel Comune di Sommariva Bosco Via Torino n. 181, composto da tre corpi di fabbrica (tra di loro collegati) di cui il corpo “A” è composto da due piani, il corpo “B” è composto da due piani, mentre il corpo “C” è elevato ad un piano fuori terra.

Indirizzo
Via Torino, 181, 12048 Sommariva del Bosco CN, Italia, Sommariva del Bosco (CN)


Piano
-


Disponibilità
-


Vani
-


Bagni
-


Metri quadri
-


Certificazione energetica
-


Dati catastali

Foglio:12, Particella:555, Subalterno:4
Foglio:12, Particella:326, Subalterno:1
Foglio:12, Particella:568, Subalterno:2
Foglio:12, Particella:568, Subalterno:1
Foglio:12, Particella:669, Subalterno:1
Foglio:12, Particella:670, Subalterno:1
Foglio:12, Particella:671, Subalterno:1


Data udienza
26/02/2026 ore 15:00


Tipo di vendita
Competitiva


Modalità di vendita
Asincrona telematica


Luogo
-


Luogo presentazione offerte
-


Termine presentazione offerte
25/02/2026 ore 12:00


Prezzo base
€ 600.000,00


Offerta minima
€ 0,00


Rialzo minimo in caso di gara
€ 10.000,00


Deposito cauzionale
10% del prezzo offerto


Deposito in conto spese
-


Tribunale
Asti

Tipo di procedura
Liquidazione giudiziale(cci)

Ruolo
26/2024

Giudice
Dagna Daniele

Recapiti
-

Email
-

Curatore
Pagliero Ivano
(Procede alle operazioni di vendita)

Recapiti
-

Email
-

Custode giudiziario
Pagliero Ivano
(Gestisce la visita del bene)

Recapiti
Tel. 0114337371

Scheda COD. 4336508 - Pubblicata dal 05/01/2026

La presente scheda di vendita riporta integralmente informazioni e documenti pervenuti ufficialmente dal Ministero e dal professionista incaricato.


Pubblicazione autorizzata dall’Autorità competente, è vietata ogni ripubblicazione o riproduzione anche parziale


Ti interessa questa vendita?

Documentazione

Visualizza su mappa

Mappa geografica del bene

Storico delle vendite

Data venditaPrezzo base
13/11/2025€ 750.000,00
26/02/2026€ 600.000,00

Punti di interesse

Fonte dati

Nel raggio di {{range}}Km

Loading...
  • {{ getIcon(poi.type) }} {{ poi.localized }}: {{poi.count}}
  • {{ getIcon(poi.type) }} {{ poi.localized }}: {{poi.count}}
Dati non disponibili