Astegiudiziarie.it è parte di Rete Aste Network

Accedi o registrati

Non sei ancora registrato?

Oppure

Accedi

Opifici

Via Arvigo, edificio 26 cancello, Sant'Olcese (GE)

€ 51.566,31

Offerta minima € 38.674,74


Codice A4291421

Lotto Lotto unico

Data udienza 18/03/2026 ore 15:30

Termine presentazione offerte 16/03/2026 ore 12:00

Opifici

Via Arvigo, edificio 26 cancello, Sant'Olcese (GE)

€ 51.566,31

Offerta minima € 38.674,74


Codice A4291421

Lotto Lotto unico

Data udienza 18/03/2026 ore 15:30

Termine presentazione offerte 16/03/2026 ore 12:00

Ti interessa questa vendita?

Documentazione

Visualizza su mappa

Mappa geografica del bene

Punti di interesse

Fonte dati

Nel raggio di {{range}}Km

Loading...
  • {{ getIcon(poi.type) }} {{ poi.localized }}: {{poi.count}}
  • {{ getIcon(poi.type) }} {{ poi.localized }}: {{poi.count}}
Dati non disponibili

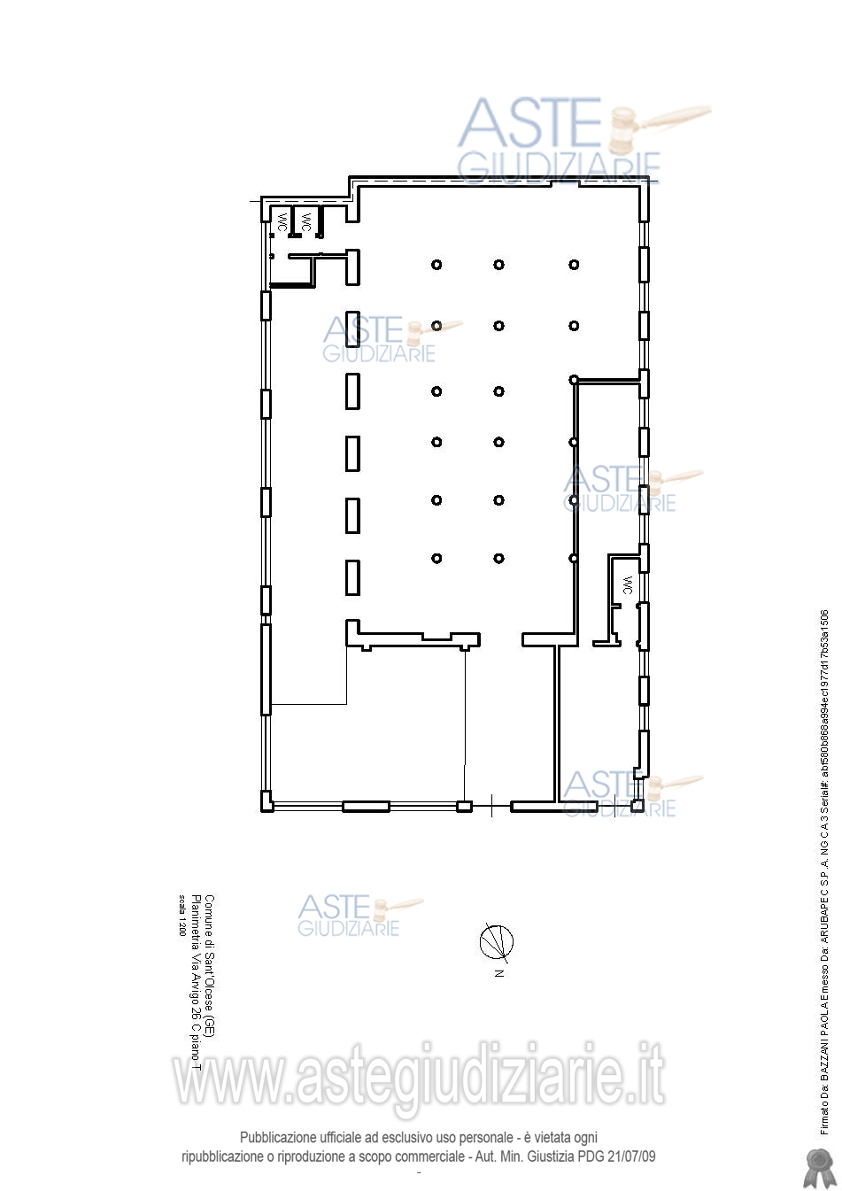
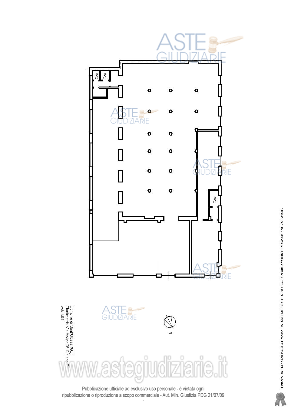
piena proprietà (per la quota di 1000/1000) di fabbricato industriale, avente superficie convenzionale complessiva di 605 mq, posto al piano T. Trattasi di opifici. In particolare l’unità immobiliare comprende due locali, aventi due accessi distinti dal piazzale antistante di pertinenza. Nel primo locale, di superficie netta pari a 75 mq, è presente anche un piccolo bagno con antibagno. Nel secondo locale vi sono anche uno spogliatoio e due bagni

Indirizzo
Via Arvigo, edificio 26 cancello, Sant'Olcese (GE)


Codice asta
4291421


Lotto
Lotto unico


Numero beni
1


Genere
Immobili


Categoria
Immobile industriale


Valore di stima
-


Opifici

piena proprietà (per la quota di 1000/1000) di fabbricato industriale, avente superficie convenzionale complessiva di 605 mq, posto al piano T. Trattasi di opifici. In particolare l’unità immobiliare comprende due locali, aventi due accessi distinti dal piazzale antistante di pertinenza. Nel primo locale, di superficie netta pari a 75 mq, è presente anche un piccolo bagno con antibagno. Nel secondo locale vi sono anche uno spogliatoio e due bagni

Indirizzo
Via Arvigo, edificio 26 cancello, Sant'Olcese (GE)


Piano
T


Disponibilità
LIBER


Vani
-


Bagni
-


Metri quadri
605,00


Certificazione energetica
-


Dati catastali

Foglio:19, Particella:121, Subalterno:9


Data udienza
18/03/2026 ore 15:30


Tipo di vendita
Senza incanto


Modalità di vendita
Sincrona mista


Luogo
Tribunale di Genova, aula 46, Piazza Portoria, 1, 16121 Genova GE, Italia - Genova 16121


Luogo presentazione offerte
-


Termine presentazione offerte
16/03/2026 ore 12:00


Prezzo base
€ 51.566,31


Offerta minima
€ 38.674,74


Rialzo minimo in caso di gara
€ 1.000,00


Deposito cauzionale
10% del prezzo offerto


Deposito in conto spese
-


Tribunale
Genova

Tipo di procedura
Esecuzione immobiliare post legge 80

Ruolo
4/2023

Giudice
Tabacchi 

Recapiti
-

Email
-

Delegato alla vendita
Felici Sabrina
(Procede alle operazioni di vendita)

Recapiti
Cell. 0100920643
Tel. 0100920638

Email
avv.sabrinafelici@gmail.com

Custode giudiziario
Sovemo srl 
(Gestisce la visita del bene)

Recapiti
Tel. 0105299253

Scheda COD. 4291421 - Pubblicata dal 14/01/2026

La presente scheda di vendita riporta integralmente informazioni e documenti pervenuti ufficialmente dal Ministero e dal professionista incaricato.


Pubblicazione autorizzata dall’Autorità competente, è vietata ogni ripubblicazione o riproduzione anche parziale


Ti interessa questa vendita?

Documentazione

Visualizza su mappa

Mappa geografica del bene

Storico delle vendite

Data venditaPrezzo base
09/02/2024€ 217.300,00
19/06/2024€ 162.975,00
24/01/2025€ 122.231,25
13/06/2025€ 91.673,44
17/12/2025€ 68.755,08
18/03/2026€ 51.566,31

Punti di interesse

Fonte dati

Nel raggio di {{range}}Km

Loading...
  • {{ getIcon(poi.type) }} {{ poi.localized }}: {{poi.count}}
  • {{ getIcon(poi.type) }} {{ poi.localized }}: {{poi.count}}
Dati non disponibili