Astegiudiziarie.it è parte di Rete Aste Network

Accedi o registrati

Non sei ancora registrato?

Oppure

Accedi

Opifici

Via Flaminia, Riano RM, Italia, Riano (RM)

€ 4.238.820,00

Offerta minima € 3.179.115,00


Codice A4350349

Lotto 5

Data udienza 25/06/2026 ore 11:00

Termine presentazione offerte 24/06/2026 ore 23:59

Opifici

Via Flaminia, Riano RM, Italia, Riano (RM)

€ 4.238.820,00

Offerta minima € 3.179.115,00


Codice A4350349

Lotto 5

Data udienza 25/06/2026 ore 11:00

Termine presentazione offerte 24/06/2026 ore 23:59

Ti interessa questa vendita?

Documentazione

Visualizza su mappa

Mappa geografica del bene

Punti di interesse

Fonte dati

Nel raggio di {{range}}Km

Loading...
  • {{ getIcon(poi.type) }} {{ poi.localized }}: {{poi.count}}
  • {{ getIcon(poi.type) }} {{ poi.localized }}: {{poi.count}}
Dati non disponibili

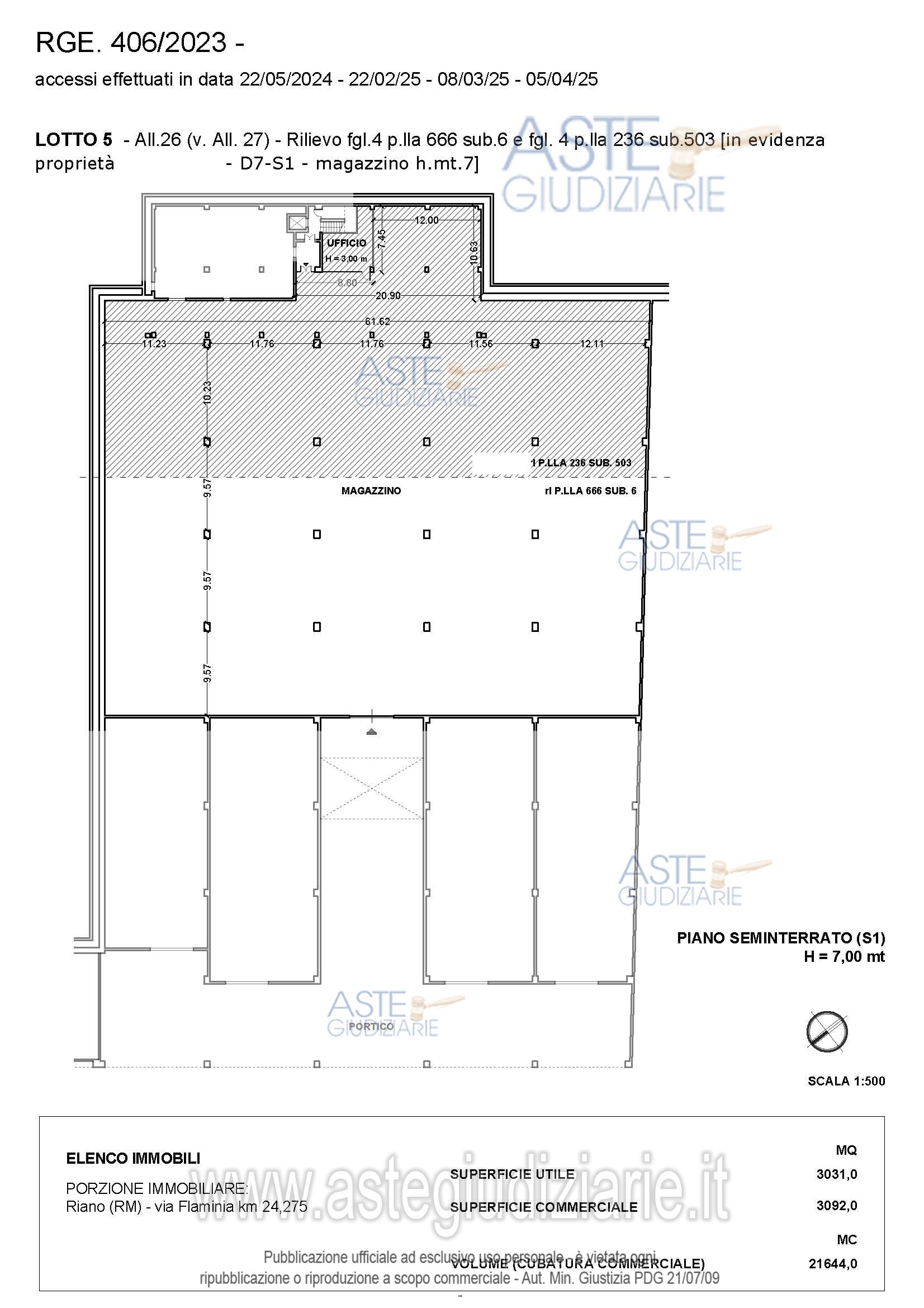
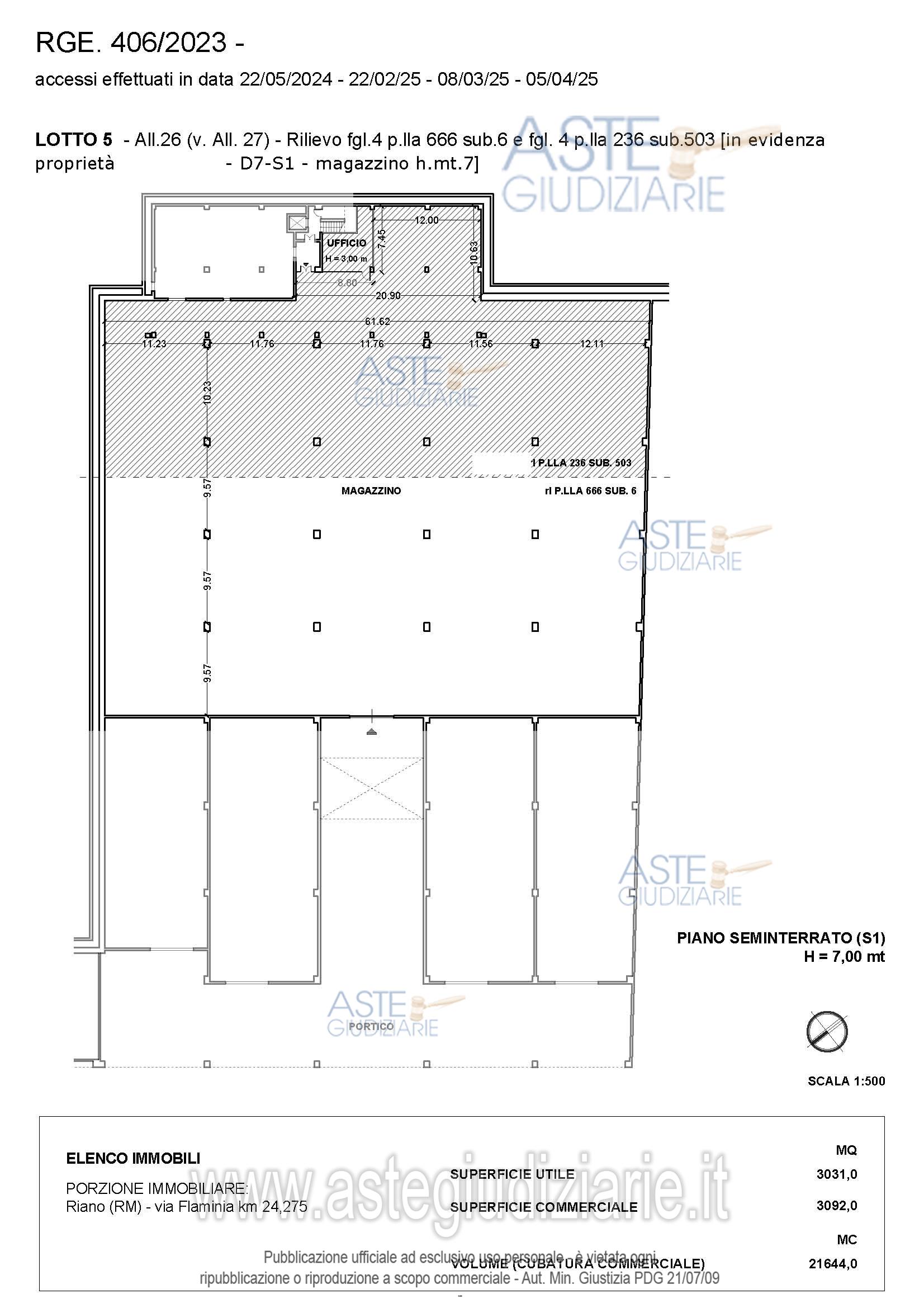
Serie magazzini h.mt.7.0 collocati nel seminterrato il cui accesso avviene mediante corpo scala o piazzale antistante (p.lla 616);Immobili identificati all’ NCEU fgl.4 p.lla.666 sub 6 cat D7 di proprietà debitore fisicamente fusa con NCEU fgl.4 p.lla.236 sub 503 proprietà terzo datore ipoteca ,consistenza complessiva mq 3092.00.Al lotto 5 vengono assegnati i terreni rimasti, prevalentemente piazzali antistanti identificati per un totale mq 12186

Indirizzo
Via Flaminia, Riano RM, Italia, Riano (RM)


Codice asta
4350349


Lotto
5


Numero beni
1


Genere
Immobili


Categoria
Immobile industriale


Valore di stima
-


Opifici

Serie magazzini h.mt.7.0 collocati nel seminterrato il cui accesso avviene mediante corpo scala o piazzale antistante (p.lla 616);Immobili identificati all’ NCEU fgl.4 p.lla.666 sub 6 cat D7 di proprietà debitore fisicamente fusa con NCEU fgl.4 p.lla.236 sub 503 proprietà terzo datore ipoteca ,consistenza complessiva mq 3092.00.Al lotto 5 vengono assegnati i terreni rimasti, prevalentemente piazzali antistanti identificati per un totale mq 12186

Indirizzo
Via Flaminia, Riano RM, Italia, Riano (RM)


Piano
-


Disponibilità
-


Vani
-


Bagni
-


Metri quadri
-


Certificazione energetica
-


Data udienza
25/06/2026 ore 11:00


Tipo di vendita
Senza incanto


Modalità di vendita
Asincrona telematica


Luogo
N.A. -


Luogo presentazione offerte
-


Termine presentazione offerte
24/06/2026 ore 23:59


Prezzo base
€ 4.238.820,00


Offerta minima
€ 3.179.115,00


Rialzo minimo in caso di gara
€ 5.000,00


Deposito cauzionale
10% del prezzo offerto


Deposito in conto spese
-


Tribunale
Tivoli

Tipo di procedura
Esecuzione immobiliare post legge 80

Ruolo
406/2023

Delegato alla vendita
Lolli lusignano Federico
(Procede alle operazioni di vendita)

Recapiti
-

Email
federicololli@live.it

Custode giudiziario
Ivg di roma srl 
(Gestisce la visita del bene)

Recapiti
Tel. 0689569801

Scheda COD. 4350349 - Pubblicata dal 24/04/2026

La presente scheda di vendita riporta integralmente informazioni e documenti pervenuti ufficialmente dal Ministero e dal professionista incaricato.

Pubblicazione notarizzata su Blockchain


Pubblicazione autorizzata dall’Autorità competente, è vietata ogni ripubblicazione o riproduzione anche parziale


Ti interessa questa vendita?

Documentazione

Visualizza su mappa

Mappa geografica del bene

Punti di interesse

Fonte dati

Nel raggio di {{range}}Km

Loading...
  • {{ getIcon(poi.type) }} {{ poi.localized }}: {{poi.count}}
  • {{ getIcon(poi.type) }} {{ poi.localized }}: {{poi.count}}
Dati non disponibili