Astegiudiziarie.it è parte di Rete Aste Network

Accedi o registrati

Non sei ancora registrato?

Oppure

Accedi

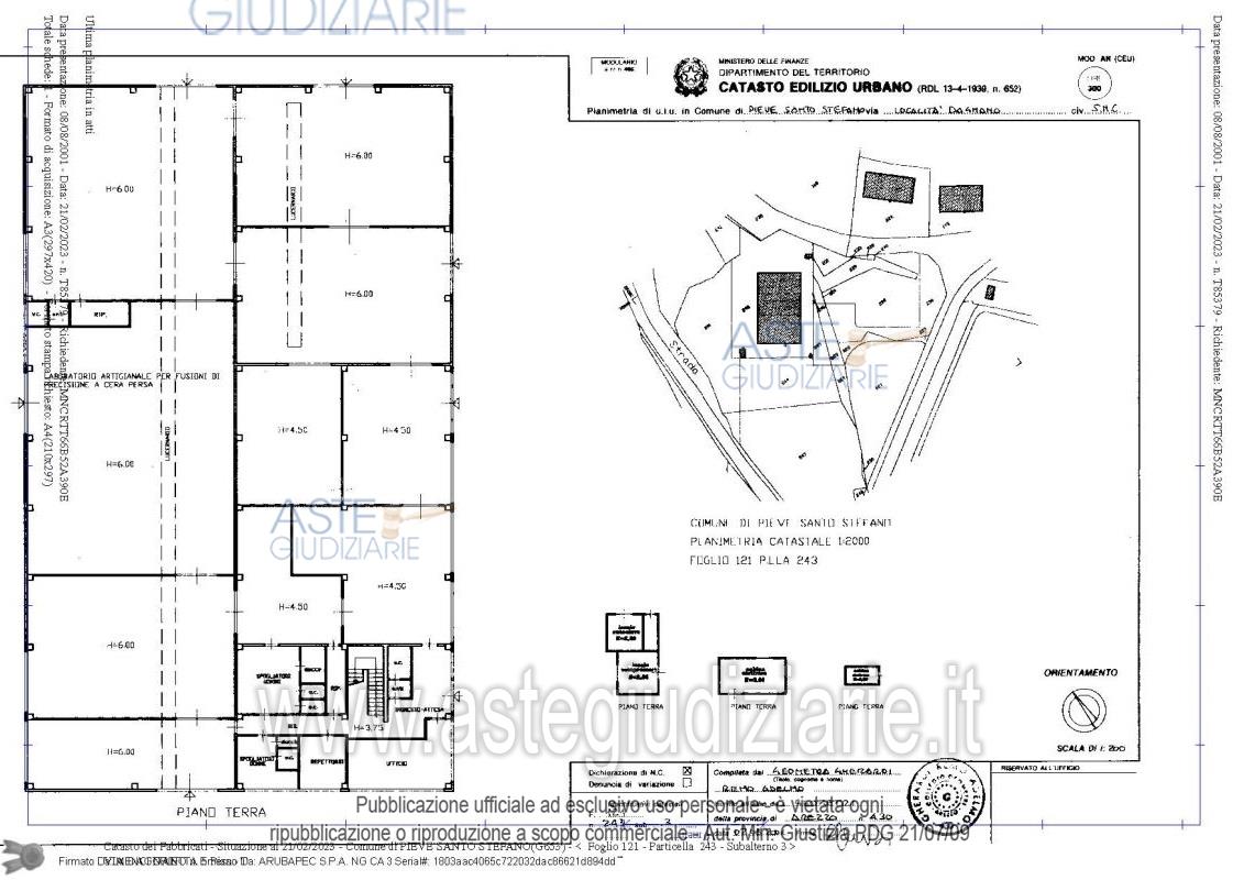
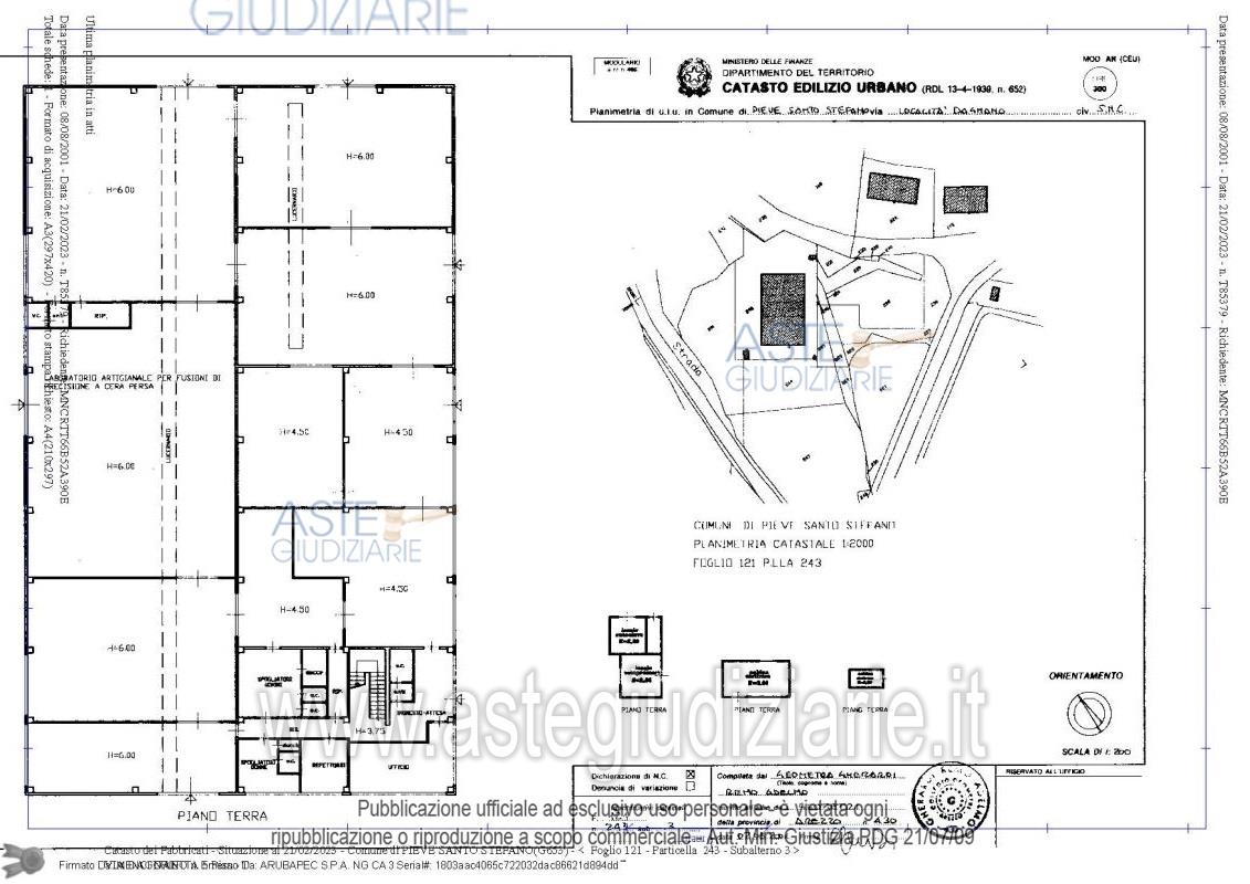
Opificio industriale

Via Dagnano, 52036 Dagnano AR, Italia, Pieve Santo Stefano (AR)

€ 316.211,20

Offerta minima € 237.158,40


Codice A4312427

Lotto Lotto unico

Data udienza 21/05/2026 ore 13:00

Termine presentazione offerte 20/05/2026 ore 13:00

Opificio industriale

Via Dagnano, 52036 Dagnano AR, Italia, Pieve Santo Stefano (AR)

€ 316.211,20

Offerta minima € 237.158,40


Codice A4312427

Lotto Lotto unico

Data udienza 21/05/2026 ore 13:00

Termine presentazione offerte 20/05/2026 ore 13:00

Ti interessa questa vendita?

Documentazione

Visualizza su mappa

Mappa geografica del bene

Punti di interesse

Fonte dati

Nel raggio di {{range}}Km

Loading...
  • {{ getIcon(poi.type) }} {{ poi.localized }}: {{poi.count}}
  • {{ getIcon(poi.type) }} {{ poi.localized }}: {{poi.count}}
Dati non disponibili

Immobile industriale sito in Comune di Pieve Santo Stefano (AR)

Indirizzo
Via Dagnano, 52036 Dagnano AR, Italia, Pieve Santo Stefano (AR)


Codice asta
4312427


Lotto
Lotto unico


Numero beni
1


Genere
Immobili


Categoria
Immobile industriale


Valore di stima
-


Opificio industriale

Opificio industriale sito in Comune di Pieve Santo Stefano (AR)

Indirizzo
Via Dagnano, 52036 Dagnano AR, Italia, Pieve Santo Stefano (AR)


Piano
-


Disponibilità
-


Vani
-


Bagni
-


Metri quadri
1558,93


Certificazione energetica
-


Data udienza
21/05/2026 ore 13:00


Tipo di vendita
Senza incanto


Modalità di vendita
Sincrona mista


Luogo
P.za Falcone e Borsellino, 52100 Arezzo AR, Italia - Arezzo 52100


Luogo presentazione offerte
-


Termine presentazione offerte
20/05/2026 ore 13:00


Prezzo base
€ 316.211,20


Offerta minima
€ 237.158,40


Rialzo minimo in caso di gara
€ 5.000,00


Deposito cauzionale
10% del prezzo offerto


Deposito in conto spese
-


Tribunale
Arezzo

Tipo di procedura
Esecuzione immobiliare post legge 80

Ruolo
125/2022

Delegato alla vendita
Tortoreti Lucia
(Procede alle operazioni di vendita)

Recapiti
Tel. 3338518085

Email
luciatortoreti@gmail.com

IVG
Arezzo-siena Istituto vendite giudiziarie
(Gestisce la visita del bene)

Recapiti
Cell. 3397337017
Tel. 0577318111

Scheda COD. 4312427 - Pubblicata dal 16/03/2026

La presente scheda di vendita riporta integralmente informazioni e documenti pervenuti ufficialmente dal Ministero e dal professionista incaricato.

Pubblicazione notarizzata su Blockchain


Pubblicazione autorizzata dall’Autorità competente, è vietata ogni ripubblicazione o riproduzione anche parziale


Ti interessa questa vendita?

Documentazione

Visualizza su mappa

Mappa geografica del bene

Storico delle vendite

Data venditaPrezzo base
19/12/2024€ 965.000,00
13/03/2025€ 772.000,00
12/06/2025€ 617.600,00
09/10/2025€ 494.080,00
26/02/2026€ 395.264,00
21/05/2026€ 316.211,20

Punti di interesse

Fonte dati

Nel raggio di {{range}}Km

Loading...
  • {{ getIcon(poi.type) }} {{ poi.localized }}: {{poi.count}}
  • {{ getIcon(poi.type) }} {{ poi.localized }}: {{poi.count}}
Dati non disponibili