Astegiudiziarie.it è parte di Rete Aste Network

Accedi o registrati

Non sei ancora registrato?

Oppure

Accedi

Fabbricati costruiti per esigenze industriali

VIA FORNELLI S.N., Palagonia (CT)

€ 184.939,45

Offerta minima € 138.704,59


Codice A417195

Lotto Lotto unico

Data vendita 26/03/2026 ore 16:00

Termine presentazione offerte 25/03/2026 ore 12:00

Fabbricati costruiti per esigenze industriali

VIA FORNELLI S.N., Palagonia (CT)

€ 184.939,45

Offerta minima € 138.704,59


Codice A417195

Lotto Lotto unico

Data Vendita 26/03/2026 ore 16:00

Termine presentazione offerte 25/03/2026 ore 12:00

Ti interessa questa vendita?

Visualizza su mappa

Mappa geografica del bene

Punti di interesse

Fonte dati

Nel raggio di {{range}}Km

Loading...
  • {{ getIcon(poi.type) }} {{ poi.localized }}: {{poi.count}}
  • {{ getIcon(poi.type) }} {{ poi.localized }}: {{poi.count}}
Dati non disponibili

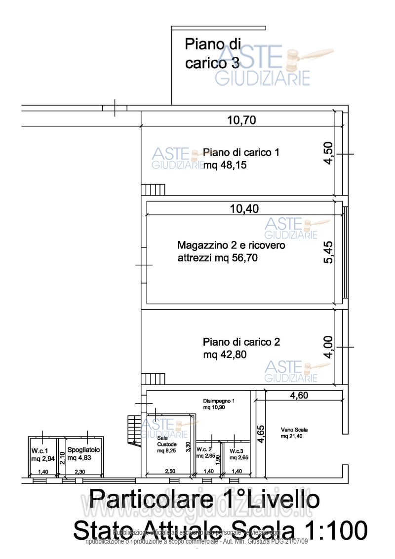
1 – Locale artigianale su due livelli, insistente su un’area di circa mq 4.282,00, di cui mq 1.137,00 occupati dall’immobile principale, mq 1.751,00 occupati da locali accessori e da una struttura precaria in ferro e i rimanenti mq 1.394,00 sono utilizzati come area di manovra e parcheggio.

Indirizzo
VIA FORNELLI S.N., Palagonia (CT)


Codice asta
417195


Lotto
Lotto unico


Numero beni
1


Genere
Immobili


Categoria
Immobile industriale


Valore di stima
-


Fabbricati costruiti per esigenze industriali

1 – Locale artigianale su due livelli, insistente su un’area di circa mq 4.282,00, di cui mq 1.137,00 occupati dall’immobile principale, mq 1.751,00 occupati da locali accessori e da una struttura precaria in ferro e i rimanenti mq 1.394,00 sono utilizzati come area di manovra e parcheggio.

Indirizzo
VIA FORNELLI S.N., Palagonia (CT)


Piano
-


Disponibilità
-


Vani
-


Bagni
-


Metri quadri
1463,00


Certificazione energetica
-


Dati catastali

Foglio:10, Particella:1013, Subalterno:2


Data vendita
26/03/2026 ore 16:00


Tipo di vendita
Senza incanto


Modalità di vendita
Presso il venditore


Luogo
VIALE MARIO MILAZZO N.198 - Caltagirone 95041


Luogo presentazione offerte
-


Termine presentazione offerte
25/03/2026 ore 12:00


Prezzo base
€ 184.939,45


Offerta minima
€ 138.704,59


Rialzo minimo in caso di gara
€ 2.000,00


Deposito cauzionale
-


Deposito in conto spese
-


Tribunale
Caltagirone

Tipo di procedura
Esecuzione immobiliare post legge 80

Ruolo
13/2015

Delegato alla vendita
Bongiovanni Massimo
(Procede alle operazioni di vendita)
(Gestisce la visita del bene)

Recapiti
Tel. 095388875

Scheda COD. 417195 - Pubblicata dal 13/01/2026

La presente scheda di vendita riporta integralmente informazioni e documenti pervenuti ufficialmente dal Ministero e dal professionista incaricato.


Pubblicazione autorizzata dall’Autorità competente, è vietata ogni ripubblicazione o riproduzione anche parziale


Ti interessa questa vendita?

Visualizza su mappa

Mappa geografica del bene

Storico delle vendite

Data venditaPrezzo base
05/06/2018€ 584.500,00
15/06/2021€ 438.375,00
28/01/2022€ 328.781,25
22/11/2024€ 246.585,93
26/03/2026€ 184.939,45

Punti di interesse

Fonte dati

Nel raggio di {{range}}Km

Loading...
  • {{ getIcon(poi.type) }} {{ poi.localized }}: {{poi.count}}
  • {{ getIcon(poi.type) }} {{ poi.localized }}: {{poi.count}}
Dati non disponibili