Astegiudiziarie.it è parte di Rete Aste Network

Accedi o registrati

Non sei ancora registrato?

Oppure

Accedi

Fabbricati costruiti per esigenze industriali

Via Enzo Ferrari, Nurachi (OR)

€ 74.531,00

Offerta minima € 55.898,00


Codice A4328919

Lotto Lotto unico

Data udienza 26/03/2026 ore 10:30

Termine presentazione offerte 25/03/2026 ore 13:00

Fabbricati costruiti per esigenze industriali

Via Enzo Ferrari, Nurachi (OR)

€ 74.531,00

Offerta minima € 55.898,00


Codice A4328919

Lotto Lotto unico

Data udienza 26/03/2026 ore 10:30

Termine presentazione offerte 25/03/2026 ore 13:00

Ti interessa questa vendita?

Documentazione

Visualizza su mappa

Mappa geografica del bene

Punti di interesse

Fonte dati

Nel raggio di {{range}}Km

Loading...
  • {{ getIcon(poi.type) }} {{ poi.localized }}: {{poi.count}}
  • {{ getIcon(poi.type) }} {{ poi.localized }}: {{poi.count}}
Dati non disponibili

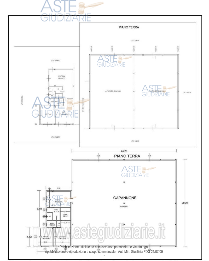
Capannone ad uso industriale/artigianale

Indirizzo
Via Enzo Ferrari, Nurachi (OR)


Codice asta
4328919


Lotto
Lotto unico


Numero beni
1


Genere
Immobili


Categoria
Immobile industriale


Valore di stima
-


Fabbricati costruiti per esigenze industriali

Immobile in Nurachi, composto da capannone, locale accessorio e area cortilizia.

Indirizzo
Via Enzo Ferrari, Nurachi (OR)


Piano
-


Disponibilità
OCCUPATO


Vani
-


Bagni
-


Metri quadri
577,61


Certificazione energetica
-


Data udienza
26/03/2026 ore 10:30


Tipo di vendita
Senza incanto


Modalità di vendita
Sincrona telematica


Luogo
N.A. -


Luogo presentazione offerte
-


Termine presentazione offerte
25/03/2026 ore 13:00


Prezzo base
€ 74.531,00


Offerta minima
€ 55.898,00


Rialzo minimo in caso di gara
€ 1.000,00


Deposito cauzionale
10% del prezzo offerto


Deposito in conto spese
-


Tribunale
Oristano

Tipo di procedura
Esecuzione immobiliare post legge 80

Ruolo
11/2024

Giudice
Bonetti Andrea

Recapiti
-

Email
-

Delegato alla vendita
Zoccheddu Maria margherita
(Procede alle operazioni di vendita)

Recapiti
Tel. 0783212271

Email
studio.zoccheddu@gmail.com

Custode giudiziario
Ivg sardegna 
(Gestisce la visita del bene)

Recapiti
Tel. 079630505

Scheda COD. 4328919 - Pubblicata dal 03/02/2026

La presente scheda di vendita riporta integralmente informazioni e documenti pervenuti ufficialmente dal Ministero e dal professionista incaricato.

Pubblicazione notarizzata su Blockchain


Pubblicazione autorizzata dall’Autorità competente, è vietata ogni ripubblicazione o riproduzione anche parziale


Ti interessa questa vendita?

Documentazione

Visualizza su mappa

Mappa geografica del bene

Storico delle vendite

Data venditaPrezzo base
15/07/2025€ 132.500,00
22/10/2025€ 99.375,00
26/03/2026€ 74.531,00

Punti di interesse

Fonte dati

Nel raggio di {{range}}Km

Loading...
  • {{ getIcon(poi.type) }} {{ poi.localized }}: {{poi.count}}
  • {{ getIcon(poi.type) }} {{ poi.localized }}: {{poi.count}}
Dati non disponibili