Astegiudiziarie.it è parte di Rete Aste Network

Accedi o registrati

Non sei ancora registrato?

Oppure

Accedi

Fabbricati costruiti per esigenze industriali

Viale I Maggio, Nereto TE, Italia, Nereto (TE)

€ 473.860,00

Offerta minima € 355.395,00


Codice A4346993

Lotto Lotto unico

Data udienza 15/05/2026 ore 15:00

Termine presentazione offerte 14/05/2026 ore 23:59

Fabbricati costruiti per esigenze industriali

Viale I Maggio, Nereto TE, Italia, Nereto (TE)

€ 473.860,00

Offerta minima € 355.395,00


Codice A4346993

Lotto Lotto unico

Data udienza 15/05/2026 ore 15:00

Termine presentazione offerte 14/05/2026 ore 23:59

Ti interessa questa vendita?

Documentazione

Visualizza su mappa

Mappa geografica del bene

Punti di interesse

Fonte dati

Nel raggio di {{range}}Km

Loading...
  • {{ getIcon(poi.type) }} {{ poi.localized }}: {{poi.count}}
  • {{ getIcon(poi.type) }} {{ poi.localized }}: {{poi.count}}
Dati non disponibili

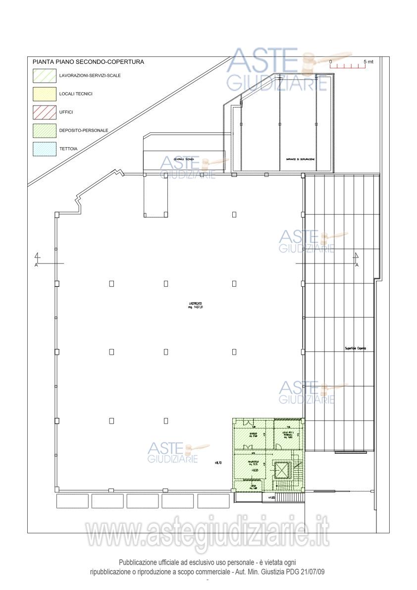
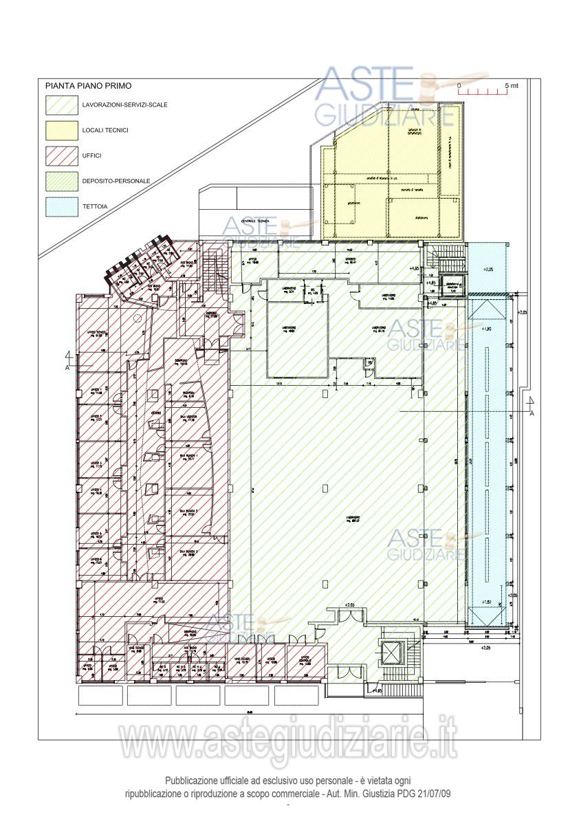
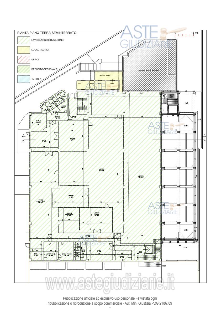
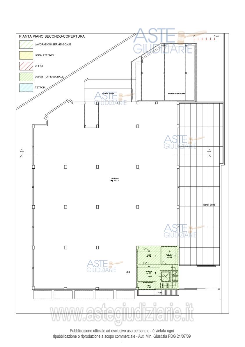
Fabbricato industriale su tre piani della superficie coperta pari a circa Mq. 2.182 ubicato a Nereto (TE) - Viale 1° Maggio, oltre area scoperta avente superficie complessiva di 4.235 mq. adibita a parcheggio, viabilità e percorsi. Area urbana di mq 78,00 e n. 2 terreni di complessivi mq 134,00.

Indirizzo
Viale I Maggio, Nereto TE, Italia, Nereto (TE)


Codice asta
4346993


Lotto
Lotto unico


Numero beni
1


Genere
Immobili


Categoria
Immobile industriale


Valore di stima
-


Fabbricati costruiti per esigenze industriali

Fabbricato industriale su tre piani della superficie coperta pari a circa Mq. 2.182 ubicato a Nereto (TE) - Viale 1° Maggio, oltre area scoperta avente superficie complessiva di 4.235 mq. adibita a parcheggio, viabilità e percorsi. Area urbana di mq 78,00 e n. 2 terreni di complessivi mq 134,00.

Indirizzo
Viale I Maggio, Nereto TE, Italia, Nereto (TE)


Piano
-


Disponibilità
-


Vani
-


Bagni
-


Metri quadri
6629,00


Certificazione energetica
-


Data udienza
15/05/2026 ore 15:00


Tipo di vendita
Senza incanto


Modalità di vendita
Asincrona telematica


Luogo
N.A. -


Luogo presentazione offerte
-


Termine presentazione offerte
14/05/2026 ore 23:59


Prezzo base
€ 473.860,00


Offerta minima
€ 355.395,00


Rialzo minimo in caso di gara
€ 5.000,00


Deposito cauzionale
10% del prezzo offerto


Deposito in conto spese
-


Tribunale
Teramo

Tipo di procedura
Espropriazione immobiliare (cartabia)

Ruolo
183/2024

Delegato alla vendita
Partenza Andrea
(Procede alle operazioni di vendita)
(Gestisce la visita del bene)

Recapiti
Cell. 3339343377

Delegato alla vendita
Terzilli Monia

Recapiti
-

Email
avvmoniaterzilli@gmail.com

Scheda COD. 4346993 - Pubblicata dal 18/03/2026

La presente scheda di vendita riporta integralmente informazioni e documenti pervenuti ufficialmente dal Ministero e dal professionista incaricato.


Pubblicazione autorizzata dall’Autorità competente, è vietata ogni ripubblicazione o riproduzione anche parziale


Ti interessa questa vendita?

Documentazione

Visualizza su mappa

Mappa geografica del bene

Punti di interesse

Fonte dati

Nel raggio di {{range}}Km

Loading...
  • {{ getIcon(poi.type) }} {{ poi.localized }}: {{poi.count}}
  • {{ getIcon(poi.type) }} {{ poi.localized }}: {{poi.count}}
Dati non disponibili