Astegiudiziarie.it è parte di Rete Aste Network

Accedi o registrati

Non sei ancora registrato?

Oppure

Accedi

Opifici

Via Thomas Alva Edison, n 4 , 00015 Monterotondo RM, Italia, Monterotondo (RM)

€ 665.000,00

Offerta minima € 498.750,00


Codice A4350591

Lotto Lotto unico

Data udienza 15/07/2026 ore 14:00

Termine presentazione offerte 14/07/2026 ore 23:59

Opifici

Via Thomas Alva Edison, n 4 , 00015 Monterotondo RM, Italia, Monterotondo (RM)

€ 665.000,00

Offerta minima € 498.750,00


Codice A4350591

Lotto Lotto unico

Data udienza 15/07/2026 ore 14:00

Termine presentazione offerte 14/07/2026 ore 23:59

Ti interessa questa vendita?

Documentazione

Visualizza su mappa

Mappa geografica del bene

Punti di interesse

Fonte dati

Nel raggio di {{range}}Km

Loading...
  • {{ getIcon(poi.type) }} {{ poi.localized }}: {{poi.count}}
  • {{ getIcon(poi.type) }} {{ poi.localized }}: {{poi.count}}
Dati non disponibili

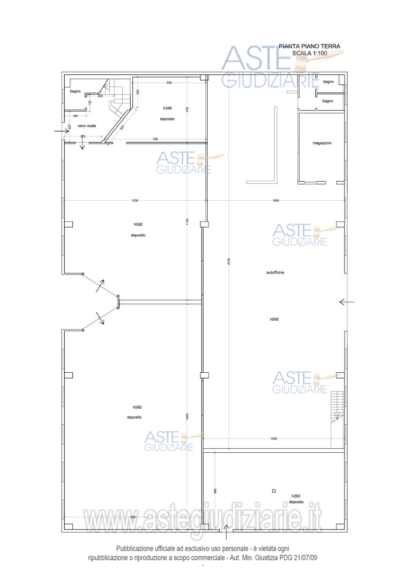
1/1 diritto di superficie fabbricato uso uffici ed artigianale con corte di pertinenza in Monterotondo Via Thomas Edison 4 e Via Bruno Pontecorvo snc paino T, mezzanino,1 mq 1620 NCEU f.17 part.434 Cat D/1. NCT f.17 part.434 Piano T composto da autofficina e 3 locali deposito, al piano mezzanino due locali soppalco, al piano primo locali ad uso ufficio. Alcuni locali sono occupati con contratti di locazione.

Indirizzo
Via Thomas Alva Edison, n 4 , 00015 Monterotondo RM, Italia, Monterotondo (RM)


Codice asta
4350591


Lotto
Lotto unico


Numero beni
1


Genere
Immobili


Categoria
Immobile industriale


Valore di stima
-


Opifici

1/1 diritto di superficie fabbricato uso uffici ed artigianale con corte di pertinenza in Monterotondo Via Thomas Edison 4 e Via Bruno Pontecorvo snc piano T, mezzanino e 1, mq 1620 NCEU f.17 part.434 Cat D/1. Piano T composto da autofficina e 3 locali deposito, al piano mezzanino due locali soppalco, al piano primo locali ad uso ufficio. Alcuni locali sono occupati con contratti di locazione.

Indirizzo
Via Thomas Alva Edison, n 4 , 00015 Monterotondo RM, Italia, Monterotondo (RM)


Piano
-


Disponibilità
-


Vani
-


Bagni
-


Metri quadri
1620,00


Certificazione energetica
-


Dati catastali

Foglio:17, Particella:434


Data udienza
15/07/2026 ore 14:00


Tipo di vendita
Senza incanto


Modalità di vendita
Asincrona telematica


Luogo
-


Luogo presentazione offerte
-


Termine presentazione offerte
14/07/2026 ore 23:59


Prezzo base
€ 665.000,00


Offerta minima
€ 498.750,00


Rialzo minimo in caso di gara
€ 27.000,00


Deposito cauzionale
10% del prezzo offerto


Deposito in conto spese
-


Tribunale
Tivoli

Tipo di procedura
Espropriazione immobiliare (cartabia)

Ruolo
284/2024

Delegato alla vendita
Nasello Isabella
(Procede alle operazioni di vendita)

Recapiti
Cell. 3284738346
Tel. 0774555468

Email
avv.isabellanasello@gmail.com

Custode giudiziario
Ivg di roma srl 
(Gestisce la visita del bene)

Recapiti
Tel. 0689569801

Scheda COD. 4350591 - Pubblicata dal 28/04/2026

La presente scheda di vendita riporta integralmente informazioni e documenti pervenuti ufficialmente dal Ministero e dal professionista incaricato.


Pubblicazione autorizzata dall’Autorità competente, è vietata ogni ripubblicazione o riproduzione anche parziale


Ti interessa questa vendita?

Documentazione

Visualizza su mappa

Mappa geografica del bene

Punti di interesse

Fonte dati

Nel raggio di {{range}}Km

Loading...
  • {{ getIcon(poi.type) }} {{ poi.localized }}: {{poi.count}}
  • {{ getIcon(poi.type) }} {{ poi.localized }}: {{poi.count}}
Dati non disponibili