Astegiudiziarie.it è parte di Rete Aste Network

Accedi o registrati

Non sei ancora registrato?

Oppure

Accedi

Fabbricati costruiti per esigenze industriali

C.da Fargione - Agglomerato Industriale ASI - V.le delle Industrie n.16, Modica (RG)

€ 2.757.825,00

Offerta minima € 2.757.825,00


Codice A4339239

Lotto 2

Data udienza 17/12/2025 ore 16:30

Termine presentazione offerte 16/12/2025 ore 13:00

Fabbricati costruiti per esigenze industriali

C.da Fargione - Agglomerato Industriale ASI - V.le delle Industrie n.16, Modica (RG)

€ 2.757.825,00

Offerta minima € 2.757.825,00


Codice A4339239

Lotto 2

Data udienza 17/12/2025 ore 16:30

Termine presentazione offerte 16/12/2025 ore 13:00

Vendita deserta

Ti interessa questa vendita?

Visualizza su mappa

Mappa geografica del bene

Punti di interesse

Fonte dati

Nel raggio di {{range}}Km

Loading...
  • {{ getIcon(poi.type) }} {{ poi.localized }}: {{poi.count}}
  • {{ getIcon(poi.type) }} {{ poi.localized }}: {{poi.count}}
Dati non disponibili

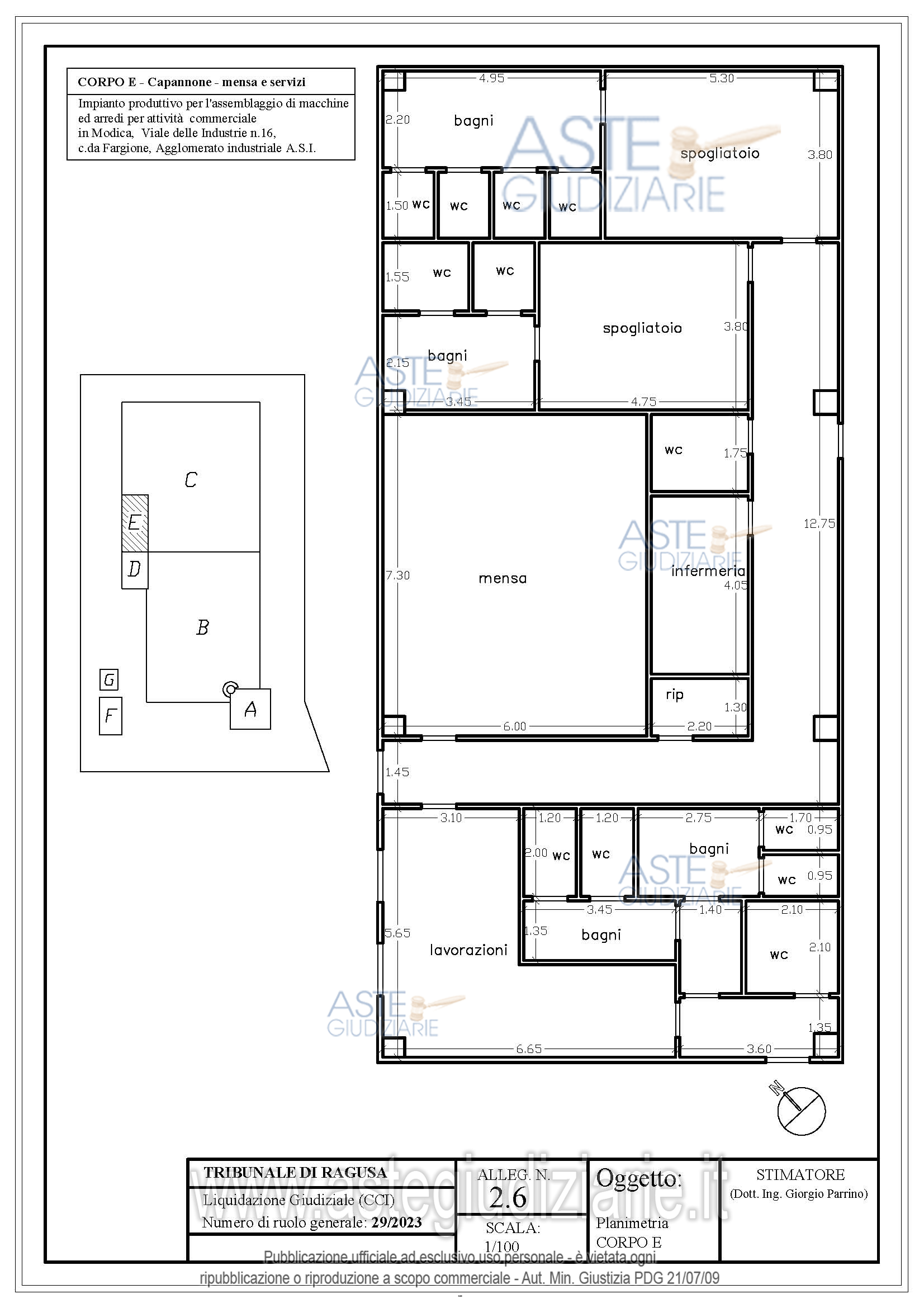
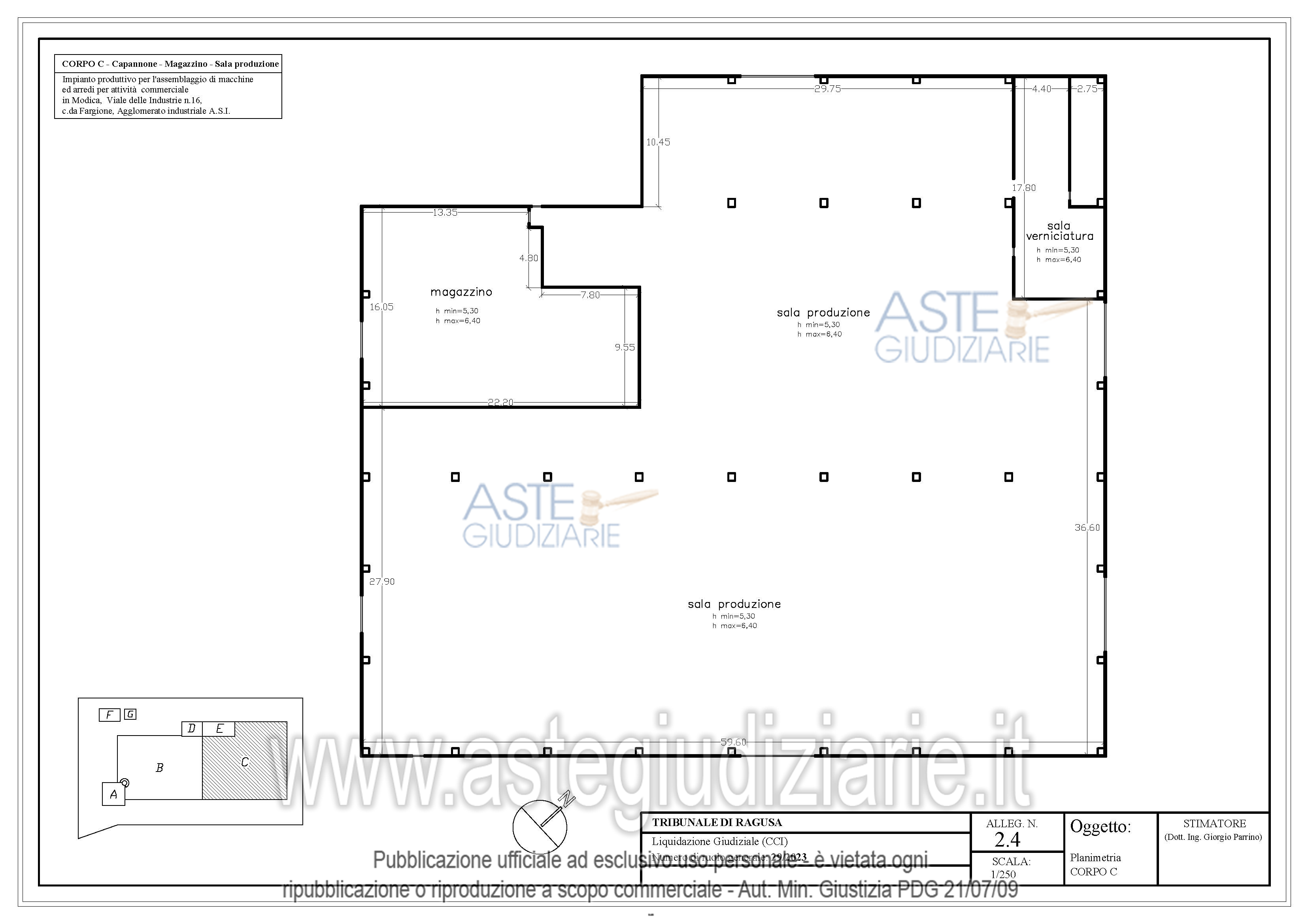
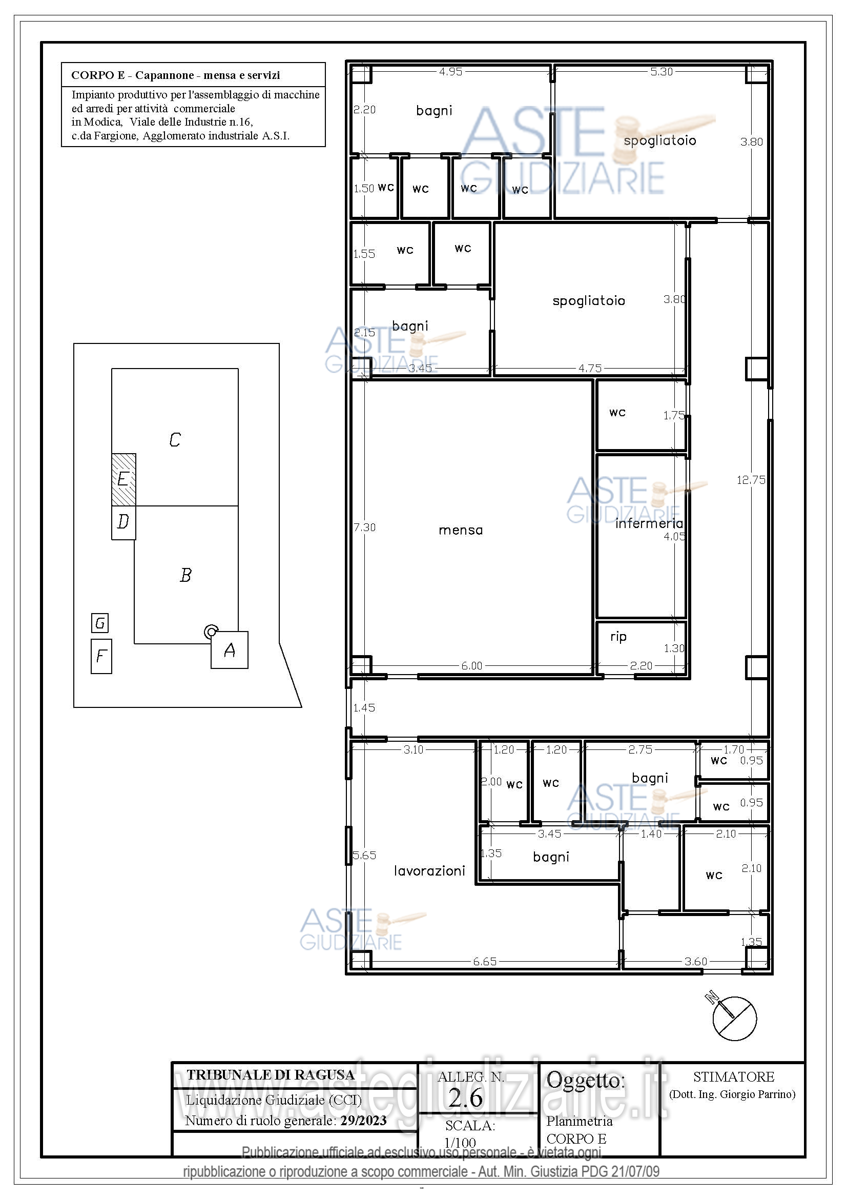
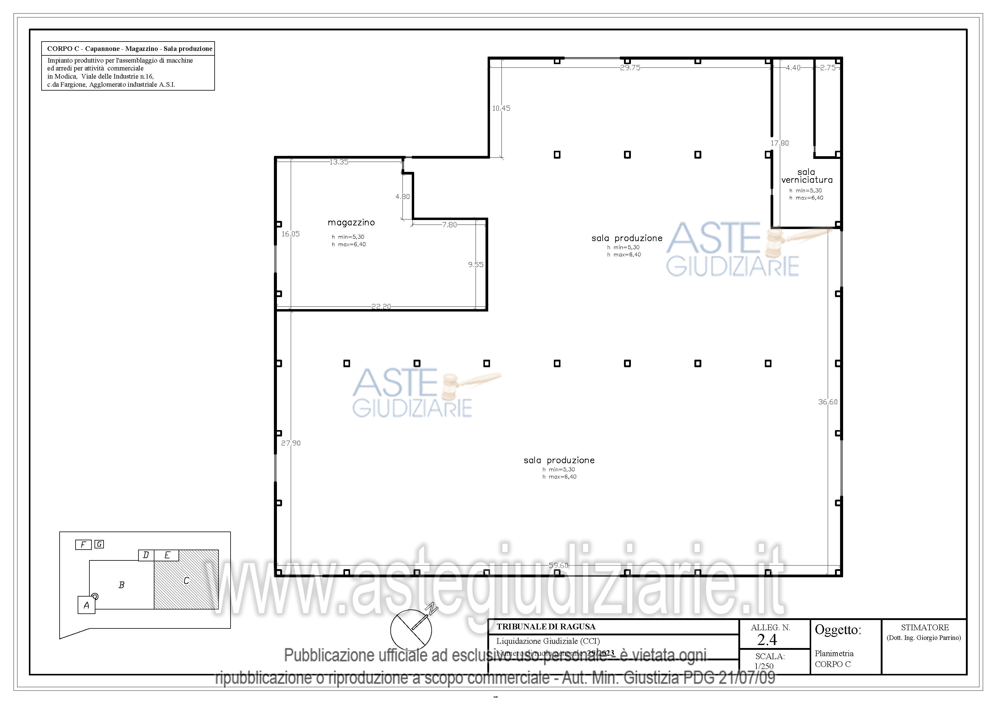
Complesso immobiliare realizzato su lotto di circa 14.000 mq, composto da capannone industriale con sala produzione,magazzino,sala dimostrazione, sala esposizione,,mensa e servizi,palazzina uffici disposta su 3 livelli,con piano scantinato destinato a magazzino,piano terra destinato ad accettazione e locali uffici,piano 1° destinato ad uffici,alloggio custode e locale pompe. Il fabbricato è dotato di impianto fotovoltaico da 12 kWp, una centrale elettrica, colonnina per il carburante e bombolone di gas gpl

Indirizzo
C.da Fargione - Agglomerato Industriale ASI - V.le delle Industrie n.16, Modica (RG)


Codice asta
4339239


Lotto
2


Numero beni
1


Genere
Immobili


Categoria
Immobile industriale


Valore di stima
-


Fabbricati costruiti per esigenze industriali

Complesso immobiliare realizzato su un lotto di circa 14.000 mq., composto da un capannone industriale contenente sala produzione di 2.700 mq., magazzino di 310 mq., sala dimostrazione di circa 160 mq., sala esposizione di circa 2.600 mq., mensa e servizi di circa 240 mq., una palazzina uffici disposta su tre livelli di circa 270 mq. per piano, con piano scantinato destinato a magazzino, piano terra destinato ad accettazione e locali uffici, piano primo destinato ad uffici, un alloggio custode di circa 110 mq. e locale pompe di circa 20 mq..Il fabbricato è dotato di impianto fotovoltaico da 12 kWp, una centrale elettrica, colonnina per il carburante e bombolone di gas gpl.

Indirizzo
C.da Fargione - Agglomerato Industriale ASI - V.le delle Industrie n.16, Modica (RG)


Piano
-


Disponibilità
-


Vani
-


Bagni
-


Metri quadri
14000,00


Certificazione energetica
-


Dati catastali

Foglio:168, Particella:1024, Subalterno:1
Foglio:168, Particella:1024, Subalterno:2
Foglio:168, Particella:1024, Subalterno:3
Foglio:168, Particella:1024, Subalterno:4


Data udienza
17/12/2025 ore 16:30


Tipo di vendita
Competitiva


Modalità di vendita
Sincrona mista


Luogo
presso lo studio del curatore avv. Patrizia Gurrieri nella Via Roma n.212 - Ragusa 97100


Luogo presentazione offerte
-


Termine presentazione offerte
16/12/2025 ore 13:00


Prezzo base
€ 2.757.825,00


Offerta minima
€ 2.757.825,00


Rialzo minimo in caso di gara
€ 10.000,00


Deposito cauzionale
10% del prezzo offerto


Deposito in conto spese
-


Tribunale
Ragusa

Tipo di procedura
Liquidazione giudiziale(cci)

Ruolo
29/2023

Curatore
Gurrieri Patrizia
(Procede alle operazioni di vendita)
(Gestisce la visita del bene)

Recapiti
Tel. 0932220000

Email

Scheda COD. 4339239 - Pubblicata dal 11/11/2025

La presente scheda di vendita riporta integralmente informazioni e documenti pervenuti ufficialmente dal Ministero e dal professionista incaricato.


Pubblicazione autorizzata dall’Autorità competente, è vietata ogni ripubblicazione o riproduzione anche parziale


Ti interessa questa vendita?

Visualizza su mappa

Mappa geografica del bene

Punti di interesse

Fonte dati

Nel raggio di {{range}}Km

Loading...
  • {{ getIcon(poi.type) }} {{ poi.localized }}: {{poi.count}}
  • {{ getIcon(poi.type) }} {{ poi.localized }}: {{poi.count}}
Dati non disponibili