Astegiudiziarie.it è parte di Rete Aste Network

Accedi o registrati

Non sei ancora registrato?

Oppure

Accedi

Opifici

c.da Romatizza, Latiano (BR)

€ 601.275,00

Offerta minima € 450.960,00


Codice A4336430

Lotto Lotto unico

Data udienza 09/03/2026 ore 13:20

Termine presentazione offerte 02/03/2026 ore 12:00

Opifici

c.da Romatizza, Latiano (BR)

€ 601.275,00

Offerta minima € 450.960,00


Codice A4336430

Lotto Lotto unico

Data udienza 09/03/2026 ore 13:20

Termine presentazione offerte 02/03/2026 ore 12:00

Ti interessa questa vendita?

Documentazione

Visualizza su mappa

Mappa geografica del bene

Punti di interesse

Fonte dati

Nel raggio di {{range}}Km

Loading...
  • {{ getIcon(poi.type) }} {{ poi.localized }}: {{poi.count}}
  • {{ getIcon(poi.type) }} {{ poi.localized }}: {{poi.count}}
Dati non disponibili

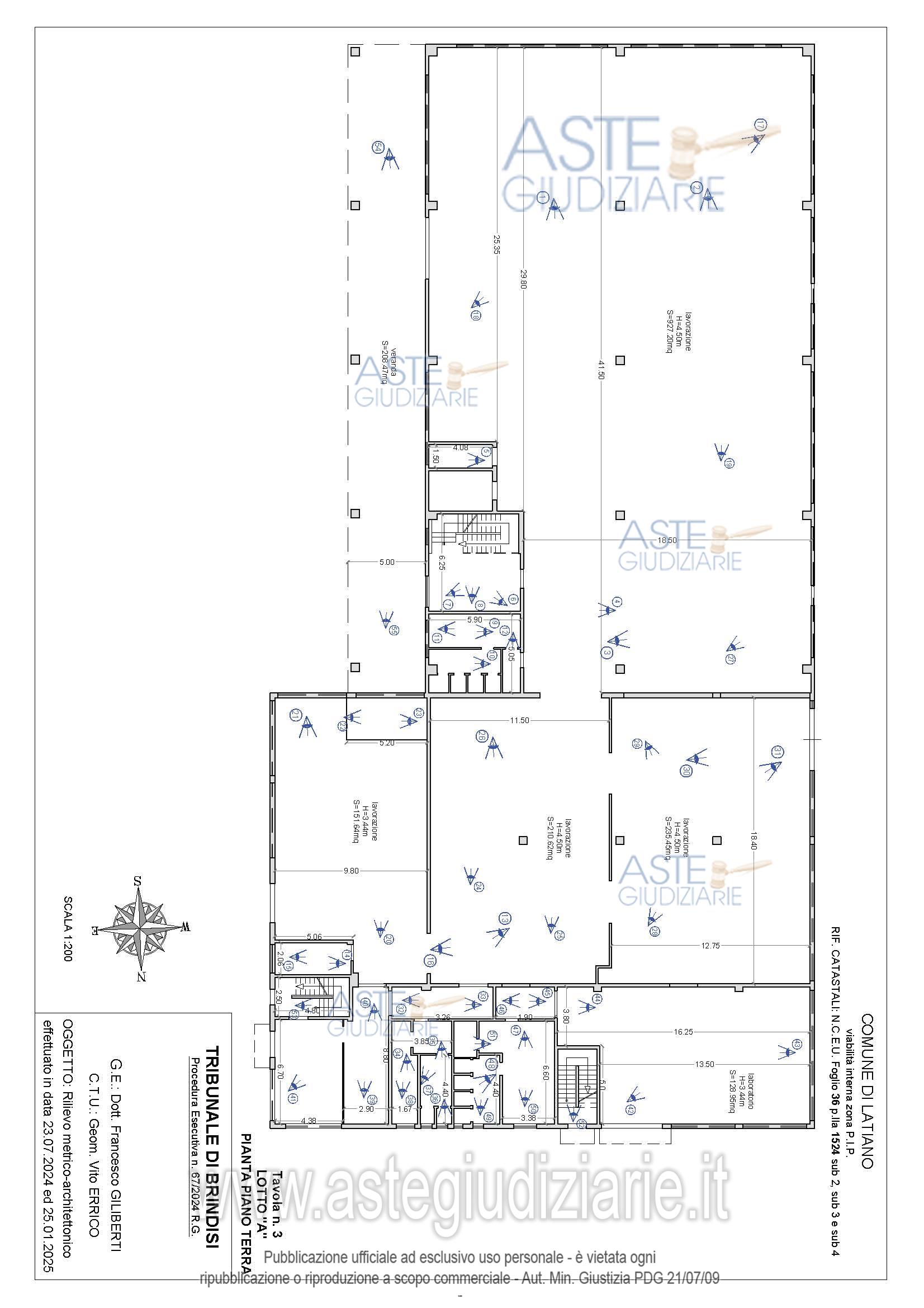
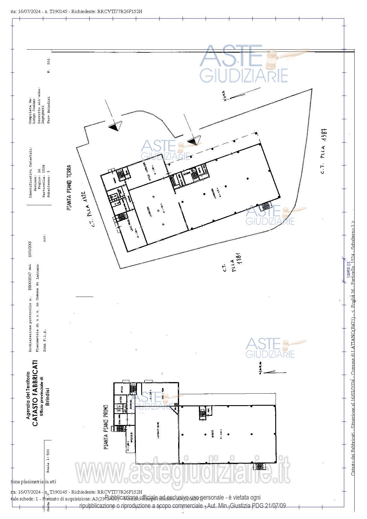
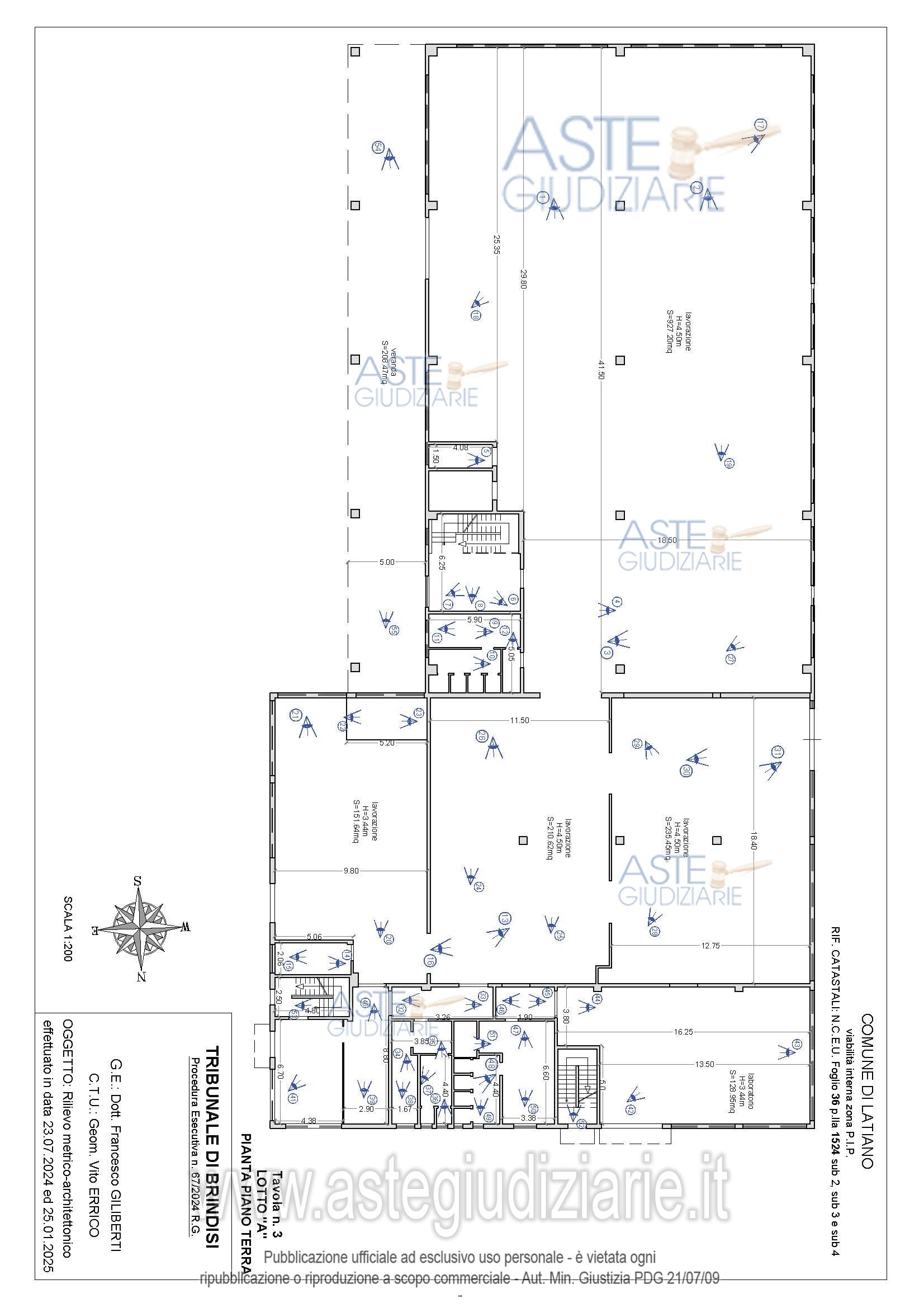
PIENA PROPRIETA’ DEL FABBRICATO AD USO INDUSTRIALE ED ANNESSA ABITAZIONE, sita in ZONA PIP del comune di LATIANO (BR), località ROMATIZZA, costituito da FABBRICATO A DESTINAZIONE ABITATIVA, piano 1, categoria A/3, classe 5, consistenza 4,5 vani, sup. totale 92 MQ, totale escluso aree scoperte 91 MQ, rendita catastale €.3741,85;e FABBRICATO A DESTINAZIONE OPIFICIO, piano T-1, categoria D/1, rendita catastale € 22.322,50.

Indirizzo
c.da Romatizza, Latiano (BR)


Codice asta
4336430


Lotto
Lotto unico


Numero beni
1


Genere
Immobili


Categoria
Immobile industriale


Valore di stima
-


Opifici

PIENA PROPRIETA’ DEL FABBRICATO AD USO INDUSTRIALE ED ANNESSA ABITAZIONE, sita in ZONA PIP del comune di LATIANO (BR), località ROMATIZZA, costituito da FABBRICATO A DESTINAZIONE ABITATIVA, piano 1, categoria A/3, classe 5, consistenza 4,5 vani, sup. totale 92 MQ, totale escluso aree scoperte 91 MQ, rendita catastale €.3741,85;e FABBRICATO A DESTINAZIONE OPIFICIO, piano T-1, categoria D/1, rendita catastale € 22.322,50.

Indirizzo
contrada Romatizza, Latiano (BR)


Piano
-


Disponibilità
Occupato


Vani
-


Bagni
-


Metri quadri
3596,00


Certificazione energetica
-


Dati catastali

Foglio:36, Particella:1524, Subalterno:2, Subalterno 2:3


Data udienza
09/03/2026 ore 13:20


Tipo di vendita
Senza incanto


Modalità di vendita
Asincrona telematica


Luogo
N.A. -


Luogo presentazione offerte
-


Termine presentazione offerte
02/03/2026 ore 12:00


Prezzo base
€ 601.275,00


Offerta minima
€ 450.960,00


Rialzo minimo in caso di gara
€ 5.000,00


Deposito cauzionale
10% del prezzo offerto


Deposito in conto spese
-


Tribunale
Brindisi

Tipo di procedura
Espropriazione immobiliare (cartabia)

Ruolo
67/2024

Delegato alla vendita
Catamerò Vincenza
(Procede alle operazioni di vendita)
(Gestisce la visita del bene)

Recapiti
Cell. 3386691446

Scheda COD. 4336430 - Pubblicata dal 14/01/2026

La presente scheda di vendita riporta integralmente informazioni e documenti pervenuti ufficialmente dal Ministero e dal professionista incaricato.


Pubblicazione autorizzata dall’Autorità competente, è vietata ogni ripubblicazione o riproduzione anche parziale


Ti interessa questa vendita?

Documentazione

Visualizza su mappa

Mappa geografica del bene

Storico delle vendite

Data venditaPrezzo base
24/11/2025€ 801.700,00
09/03/2026€ 601.275,00

Punti di interesse

Fonte dati

Nel raggio di {{range}}Km

Loading...
  • {{ getIcon(poi.type) }} {{ poi.localized }}: {{poi.count}}
  • {{ getIcon(poi.type) }} {{ poi.localized }}: {{poi.count}}
Dati non disponibili