Astegiudiziarie.it è parte di Rete Aste Network

Accedi o registrati

Non sei ancora registrato?

Oppure

Accedi

Opificio industriale

V.le Roma, Guidonia Montecelio RM, Italia 237, Guidonia Montecelio (RM)

€ 844.394,81

Offerta minima € 633.296,11


Codice A4336824

Lotto Lotto unico

Data udienza 22/12/2025 ore 15:00

Termine presentazione offerte 21/12/2025 ore 23:59

Opificio industriale

V.le Roma, Guidonia Montecelio RM, Italia 237, Guidonia Montecelio (RM)

€ 844.394,81

Offerta minima € 633.296,11


Codice A4336824

Lotto Lotto unico

Data udienza 22/12/2025 ore 15:00

Termine presentazione offerte 21/12/2025 ore 23:59

Vendita deserta

Ti interessa questa vendita?

Documentazione

Visualizza su mappa

Mappa geografica del bene

Punti di interesse

Fonte dati

Nel raggio di {{range}}Km

Loading...
  • {{ getIcon(poi.type) }} {{ poi.localized }}: {{poi.count}}
  • {{ getIcon(poi.type) }} {{ poi.localized }}: {{poi.count}}
Dati non disponibili

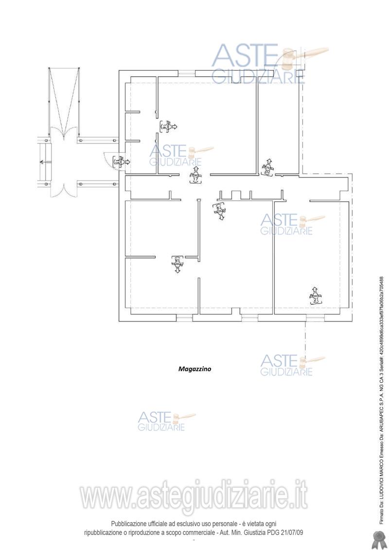
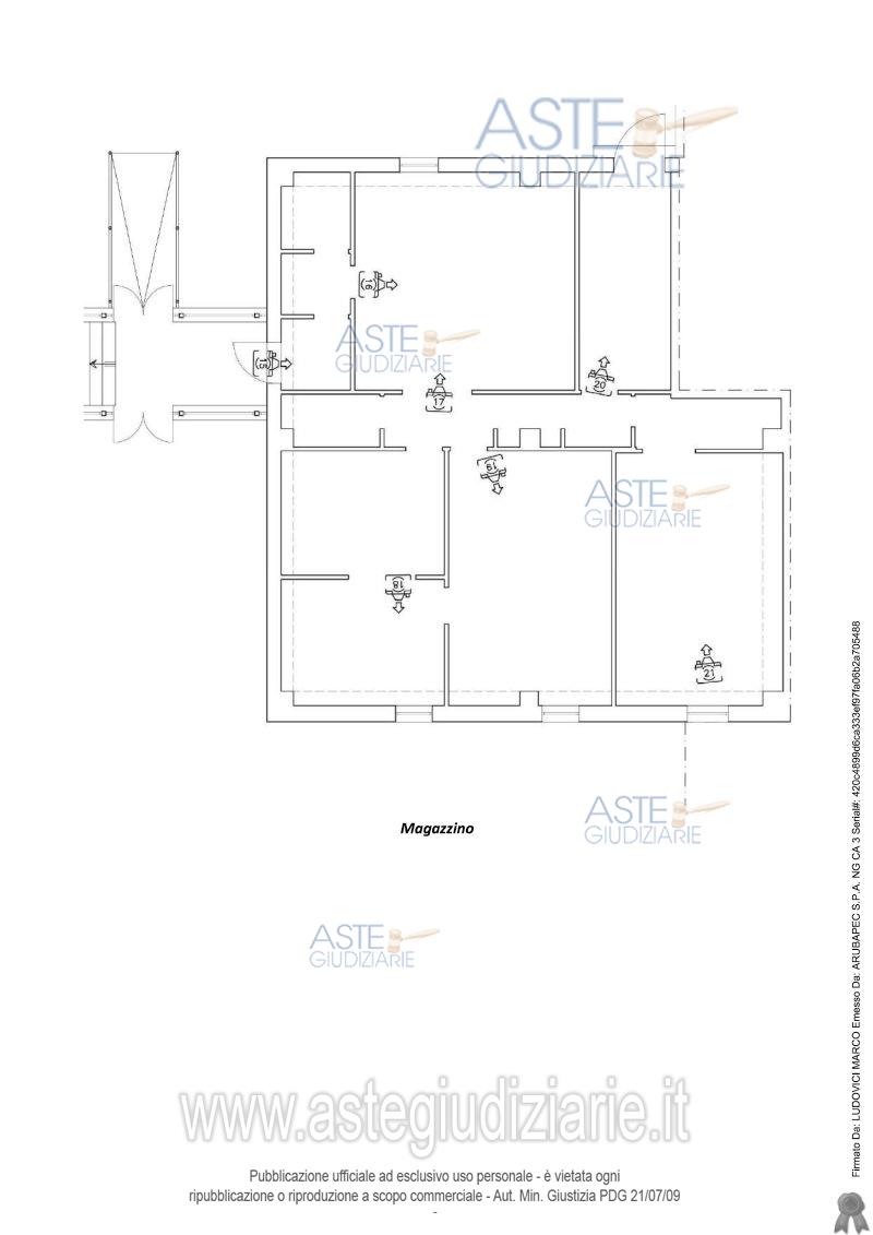
Quota pari a 1/1 del diritto di proprietà su fabbricato industriale sito in Guidonia Montecelio (RM), V.le Roma n. 237 per complessivi mq. 723,72. Identificato al Catasto Fabbricati del Comune di Guidonia Montecelio (RM)-Sez. MON al foglio 32 part. 267 sub 505 Zc 1, cat. D/7Confina a nord con le particelle 157, 63, 569, a sud con V. Domizia, identificata dalle particelle 352 e 599, a ovest con l’altra porzione immobiliare identificata con il sub 506 e a est con la particella 776.

Indirizzo
V.le Roma, Guidonia Montecelio RM, Italia 237, Guidonia Montecelio (RM)


Codice asta
4336824


Lotto
Lotto unico


Numero beni
1


Genere
Immobili


Categoria
Immobile industriale


Valore di stima
-


Opificio industriale

Quota pari a 1/1 del diritto di proprietà su fabbricato industriale sito in Guidonia Montecelio (RM), V.le Roma n. 237 per complessivi mq. 723,72. Identificato al Catasto Fabbricati del Comune di Guidonia Montecelio (RM)-Sez. MON al foglio 32 part. 267 sub 505 Zc 1, cat. D/7.Confina a nord con le particelle 157, 63, 569, a sud con V. Domizia, identificata dalle particelle 352 e 599, a ovest con l’altra porzione immobiliare identificata con il sub 506 e a est con la particella 776.

Indirizzo
V.le Roma, Guidonia Montecelio RM, Italia 237, Guidonia Montecelio (RM)


Piano
-


Disponibilità
-


Vani
-


Bagni
-


Metri quadri
723,72


Certificazione energetica
-


Dati catastali

Foglio:32, Sezione:MON, Particella:267, Subalterno:505


Data udienza
22/12/2025 ore 15:00


Tipo di vendita
Senza incanto


Modalità di vendita
Asincrona telematica


Luogo
N.A. -


Luogo presentazione offerte
-


Termine presentazione offerte
21/12/2025 ore 23:59


Prezzo base
€ 844.394,81


Offerta minima
€ 633.296,11


Rialzo minimo in caso di gara
€ 33.700,00


Deposito cauzionale
10% del prezzo offerto


Deposito in conto spese
-


Tribunale
Tivoli

Tipo di procedura
Espropriazione immobiliare (cartabia)

Ruolo
371/2024

Delegato alla vendita
Frattini Rita
(Procede alle operazioni di vendita)

Recapiti
Tel. 07743311349

Email
frattini.rita@tiscali.it

Custode giudiziario
Ivg di roma srl 
(Gestisce la visita del bene)

Recapiti
Tel. 0689569801

Email

Scheda COD. 4336824 - Pubblicata dal 01/10/2025

La presente scheda di vendita riporta integralmente informazioni e documenti pervenuti ufficialmente dal Ministero e dal professionista incaricato.


Pubblicazione autorizzata dall’Autorità competente, è vietata ogni ripubblicazione o riproduzione anche parziale


Ti interessa questa vendita?

Documentazione

Visualizza su mappa

Mappa geografica del bene

Punti di interesse

Fonte dati

Nel raggio di {{range}}Km

Loading...
  • {{ getIcon(poi.type) }} {{ poi.localized }}: {{poi.count}}
  • {{ getIcon(poi.type) }} {{ poi.localized }}: {{poi.count}}
Dati non disponibili