Astegiudiziarie.it è parte di Rete Aste Network

Accedi o registrati

Non sei ancora registrato?

Oppure

Accedi

Fabbricati costruiti per esigenze industriali

via Cettolini snc, Elmas (CA)

€ 870.333,00

Offerta minima € 652.750,00


Codice A117526

Lotto 1

Data udienza 28/05/2026 ore 16:00

Termine presentazione offerte 27/05/2026 ore 12:00

Fabbricati costruiti per esigenze industriali

via Cettolini snc, Elmas (CA)

€ 870.333,00

Offerta minima € 652.750,00


Codice A117526

Lotto 1

Data udienza 28/05/2026 ore 16:00

Termine presentazione offerte 27/05/2026 ore 12:00

Ti interessa questa vendita?

Documentazione

Visualizza su mappa

Mappa geografica del bene

Punti di interesse

Fonte dati

Nel raggio di {{range}}Km

Loading...
  • {{ getIcon(poi.type) }} {{ poi.localized }}: {{poi.count}}
  • {{ getIcon(poi.type) }} {{ poi.localized }}: {{poi.count}}
Dati non disponibili

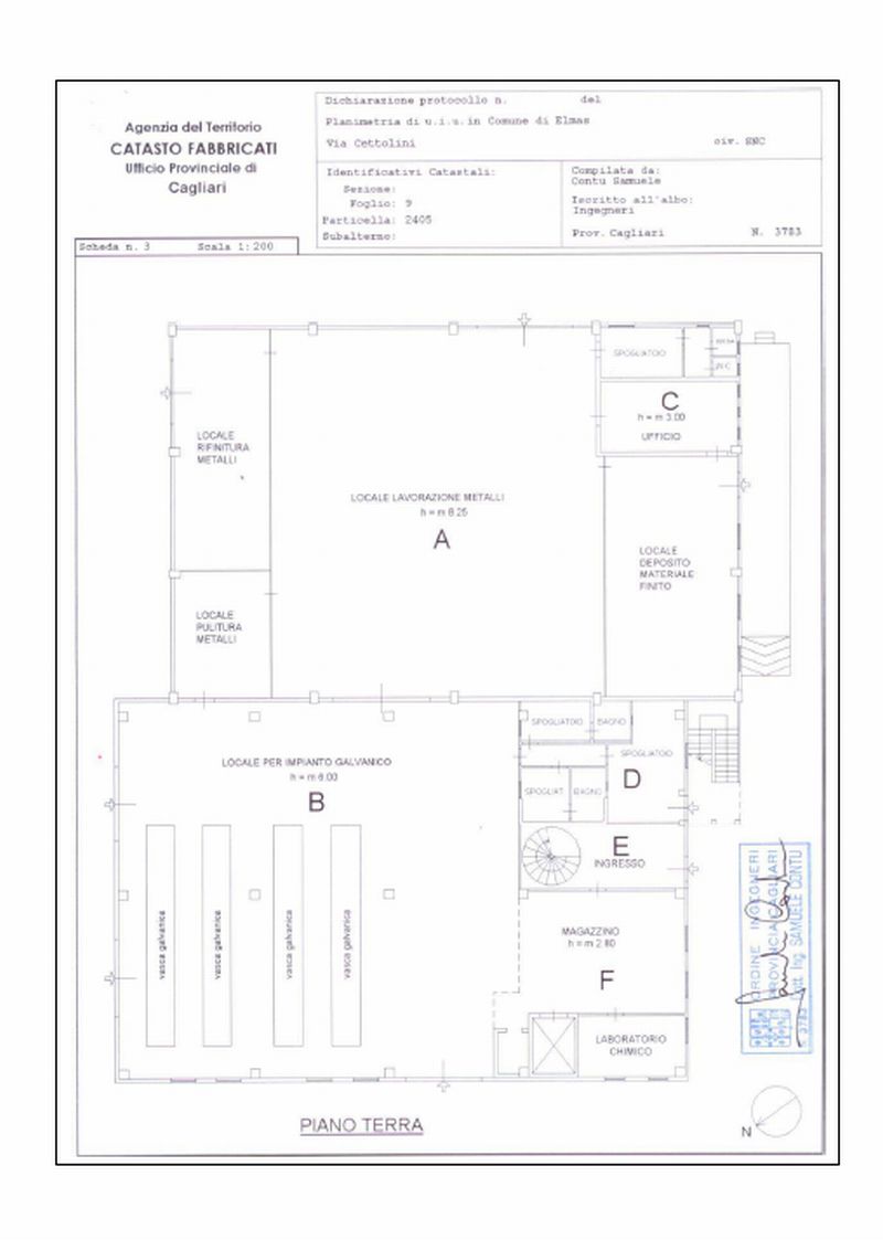
Complesso di due fabbricati

Indirizzo
via Cettolini snc, Elmas (CA)


Codice asta
117526


Lotto
1


Numero beni
1


Genere
Immobili


Categoria
Immobile industriale


Valore di stima
-


Fabbricati costruiti per esigenze industriali

Complesso formato da due capannoni affiancati comunicanti. Il primo capannone (sub.1) si sviluppa su piano terra, intermedio, primo e secondo, oltre il piazzale di pertinenza; le condizioni di manutenzione sono mediocri e il piano secondo è ultimato a grezzo e privo di infissi esterni. Il secondo capannone (sub.2) si sviluppa al piano terra; le condizioni di manutenzione sono appena sufficienti. In entrambi, gli impianti elettrico ed idrico non sono funzionanti.

Indirizzo
via Cettolini snc, Elmas (CA)


Piano
-


Disponibilità
OCCUPATO


Vani
-


Bagni
-


Metri quadri
2080,00


Certificazione energetica
-


Dati catastali

Foglio:9, Particella:2405, Subalterno:1 (derivato dal 2405)
Foglio:9, Particella:2405, Subalterno:2 (derivato dal 2405)


Data udienza
28/05/2026 ore 16:00


Tipo di vendita
Senza incanto


Modalità di vendita
Asincrona telematica


Luogo
N.A. -


Luogo presentazione offerte
-


Termine presentazione offerte
27/05/2026 ore 12:00


Prezzo base
€ 870.333,00


Offerta minima
€ 652.750,00


Rialzo minimo in caso di gara
€ 30.000,00


Deposito cauzionale
100.000,00


Deposito in conto spese
-


Tribunale
Cagliari

Tipo di procedura
Esecuzione immobiliare post legge 80

Ruolo
229/2007

Giudice
Frongia Valentina

Recapiti
-

Email
-

Delegato alla vendita
Dessi Giancarlo
(Procede alle operazioni di vendita)

Recapiti
Tel. 07042237

Email
giancarlo@dessitelmon.it

Custode giudiziario
Fresi Lino icilio felice
(Gestisce la visita del bene)

Recapiti
Tel. 0702299036

Scheda COD. 117526 - Pubblicata dal 07/04/2026

La presente scheda di vendita riporta integralmente informazioni e documenti pervenuti ufficialmente dal Ministero e dal professionista incaricato.

Pubblicazione notarizzata su Blockchain


Pubblicazione autorizzata dall’Autorità competente, è vietata ogni ripubblicazione o riproduzione anche parziale


Ti interessa questa vendita?

Documentazione

Visualizza su mappa

Mappa geografica del bene

Storico delle vendite

Data venditaPrezzo base
19/04/2016€ 2.300.000,00
21/06/2016€ 1.840.000,00
20/09/2016€ 1.656.000,00
17/05/2017€ 1.490.400,00
27/02/2018€ 1.341.360,00
10/04/2019€ 1.207.224,00
22/10/2019€ 1.086.502,00
07/10/2020€ 1.032.176,00
12/01/2021€ 980.568,00
03/11/2021€ 931.539,00
21/04/2022€ 884.962,00
27/09/2022€ 840.714,00
17/01/2023€ 798.678,00
26/07/2023€ 758.745,00
29/11/2023€ 720.807,00
28/05/2026€ 870.333,00

Punti di interesse

Fonte dati

Nel raggio di {{range}}Km

Loading...
  • {{ getIcon(poi.type) }} {{ poi.localized }}: {{poi.count}}
  • {{ getIcon(poi.type) }} {{ poi.localized }}: {{poi.count}}
Dati non disponibili