Astegiudiziarie.it è parte di Rete Aste Network

Accedi o registrati

Non sei ancora registrato?

Oppure

Accedi

Opifici

Via Colonna, 36, 46032 Castelbelforte MN, Italia, Castelbelforte (MN)

€ 546.498,00

Offerta minima € 409.874,00


Codice A4260706

Lotto Lotto unico

Data udienza 03/06/2026 ore 14:30

Termine presentazione offerte 29/05/2026 ore 12:00

Opifici

Via Colonna, 36, 46032 Castelbelforte MN, Italia, Castelbelforte (MN)

€ 546.498,00

Offerta minima € 409.874,00


Codice A4260706

Lotto Lotto unico

Data udienza 03/06/2026 ore 14:30

Termine presentazione offerte 29/05/2026 ore 12:00

Ti interessa questa vendita?

Documentazione

Visualizza su mappa

Mappa geografica del bene

Punti di interesse

Fonte dati

Nel raggio di {{range}}Km

Loading...
  • {{ getIcon(poi.type) }} {{ poi.localized }}: {{poi.count}}
  • {{ getIcon(poi.type) }} {{ poi.localized }}: {{poi.count}}
Dati non disponibili

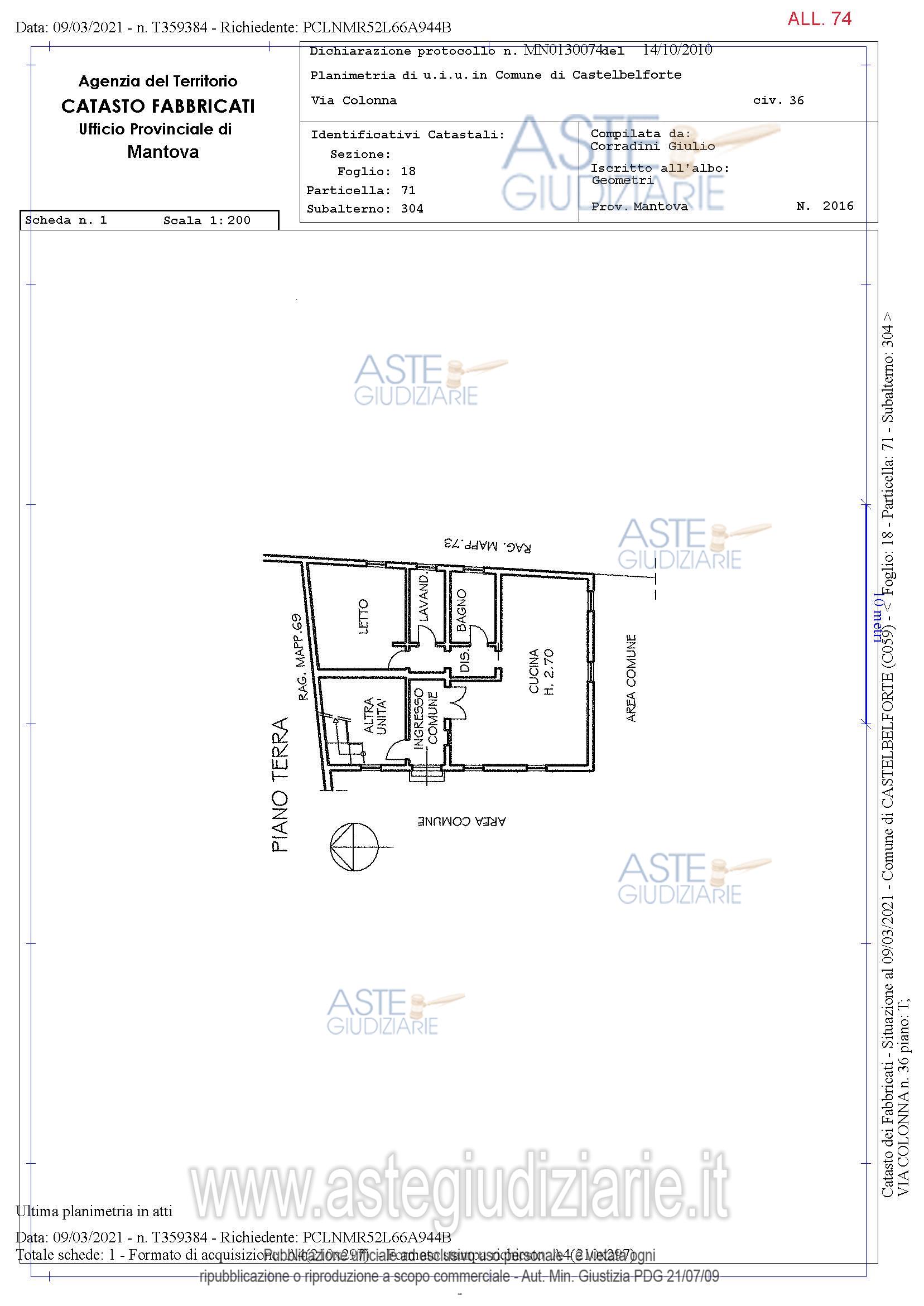
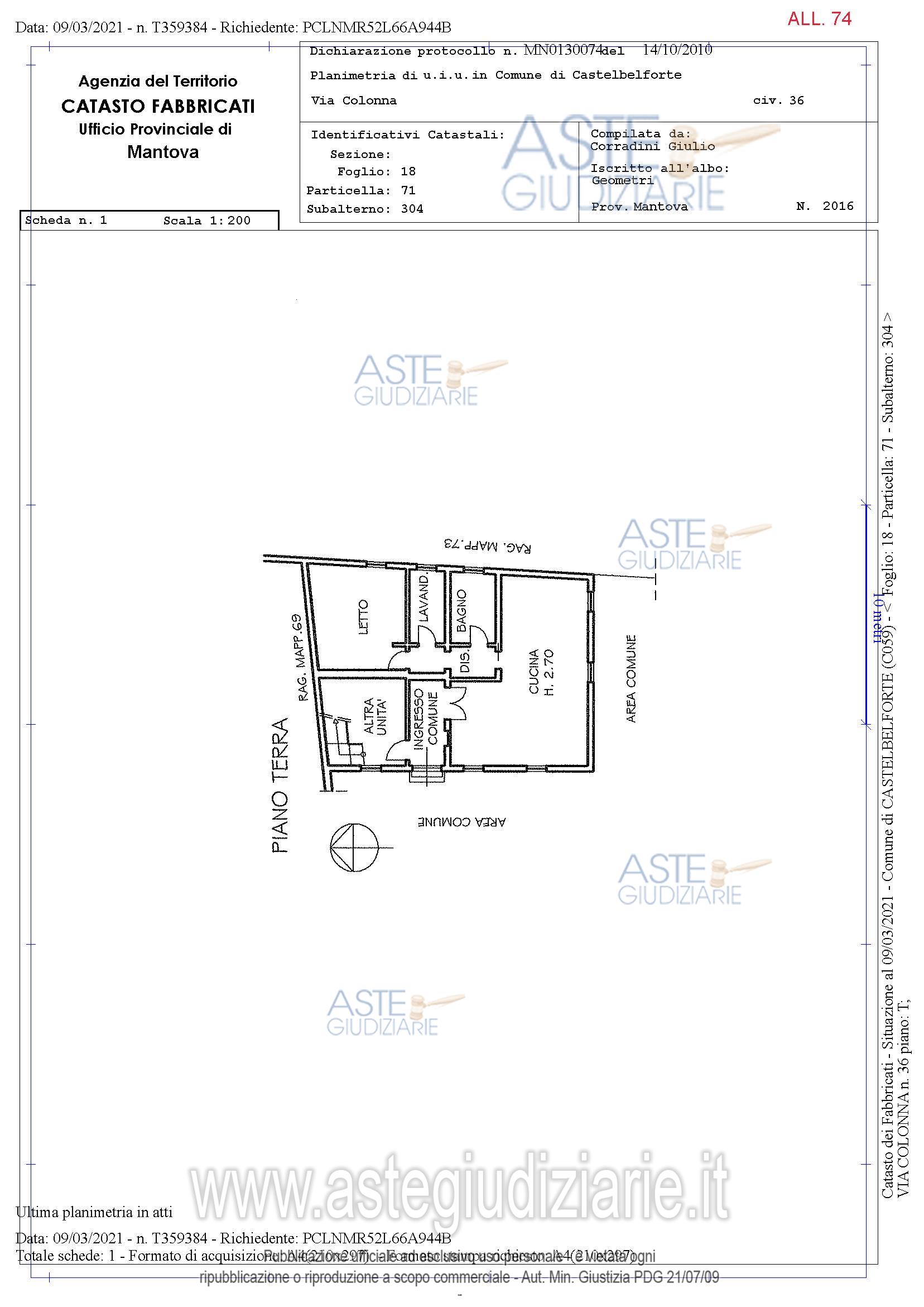
Piena proprietà per la quota di 1/1 di un complesso aziendale composto da più manufatti industriali, nonché tre appartamenti e una cantina

Indirizzo
Via Colonna, 36, 46032 Castelbelforte MN, Italia, Castelbelforte (MN)


Codice asta
4260706


Lotto
Lotto unico


Numero beni
1


Genere
Immobili


Categoria
Immobile industriale


Valore di stima
-


Opifici

Piena proprietà per la quota di 1/1 di un complesso aziendale composto da più manufatti industriali, nonché tre appartamenti e una cantina

Indirizzo
Via Colonna, 36, 46032 Castelbelforte MN, Italia, Castelbelforte (MN)


Piano
-


Disponibilità
-


Vani
16,50


Bagni
-


Metri quadri
1240,00


Certificazione energetica
-


Data udienza
03/06/2026 ore 14:30


Tipo di vendita
Senza incanto


Modalità di vendita
Sincrona mista


Luogo
Via Iº Maggio, 3, 46030 Mottella MN, Italia - San Giorgio Bigarello 46051


Luogo presentazione offerte
-


Termine presentazione offerte
29/05/2026 ore 12:00


Prezzo base
€ 546.498,00


Offerta minima
€ 409.874,00


Rialzo minimo in caso di gara
€ 20.000,00


Deposito cauzionale
10% del prezzo offerto


Deposito in conto spese
-


Tribunale
Mantova

Tipo di procedura
Esecuzione immobiliare post legge 80

Ruolo
174/2020

Giudice
Arrigoni Francesca

Recapiti
-

Email
-

Delegato alla vendita
Pondrano altavilla Giampiero
(Procede alle operazioni di vendita)

Recapiti
-

Email
gpondranoaltavilla@notariato.i...

Custode giudiziario
Istituto vendite giudiziarie di mantova Sovemo srl
(Gestisce la visita del bene)

Recapiti
Tel. 0376220694

Scheda COD. 4260706 - Pubblicata dal 02/04/2026

La presente scheda di vendita riporta integralmente informazioni e documenti pervenuti ufficialmente dal Ministero e dal professionista incaricato.

Pubblicazione notarizzata su Blockchain


Pubblicazione autorizzata dall’Autorità competente, è vietata ogni ripubblicazione o riproduzione anche parziale


Ti interessa questa vendita?

Documentazione

Visualizza su mappa

Mappa geografica del bene

Storico delle vendite

Data venditaPrezzo base
01/02/2023€ 1.015.750,00
24/09/2025€ 971.550,00
11/02/2026€ 728.663,00
03/06/2026€ 546.498,00

Punti di interesse

Fonte dati

Nel raggio di {{range}}Km

Loading...
  • {{ getIcon(poi.type) }} {{ poi.localized }}: {{poi.count}}
  • {{ getIcon(poi.type) }} {{ poi.localized }}: {{poi.count}}
Dati non disponibili