Astegiudiziarie.it è parte di Rete Aste Network

Accedi o registrati

Non sei ancora registrato?

Oppure

Accedi

Fabbricati costruiti per esigenze industriali

Via Benaco, 101, Bedizzole (BS)

€ 1.750.000,00

Offerta minima -


Codice A4317472

Lotto Unico

Data vendita 21/01/2026 ore 11:00

Termine presentazione offerte 19/01/2026 ore 11:00

Fabbricati costruiti per esigenze industriali

Via Benaco, 101, Bedizzole (BS)

€ 1.750.000,00

Offerta minima -


Codice A4317472

Lotto Unico

Data Vendita 21/01/2026 ore 11:00

Termine presentazione offerte 19/01/2026 ore 11:00

Ti interessa questa vendita?

Documentazione

Visualizza su mappa

Mappa geografica del bene

Punti di interesse

Fonte dati

Nel raggio di {{range}}Km

Loading...
  • {{ getIcon(poi.type) }} {{ poi.localized }}: {{poi.count}}
  • {{ getIcon(poi.type) }} {{ poi.localized }}: {{poi.count}}
Dati non disponibili

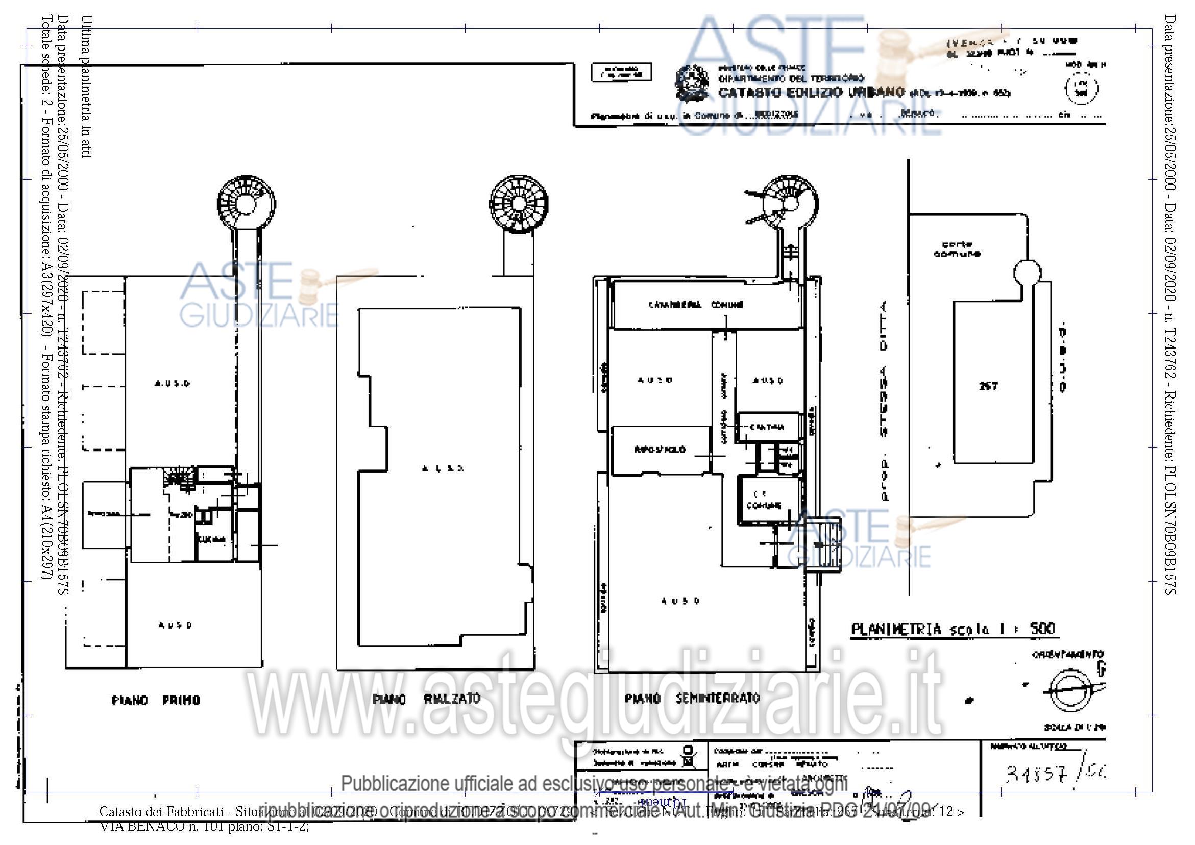
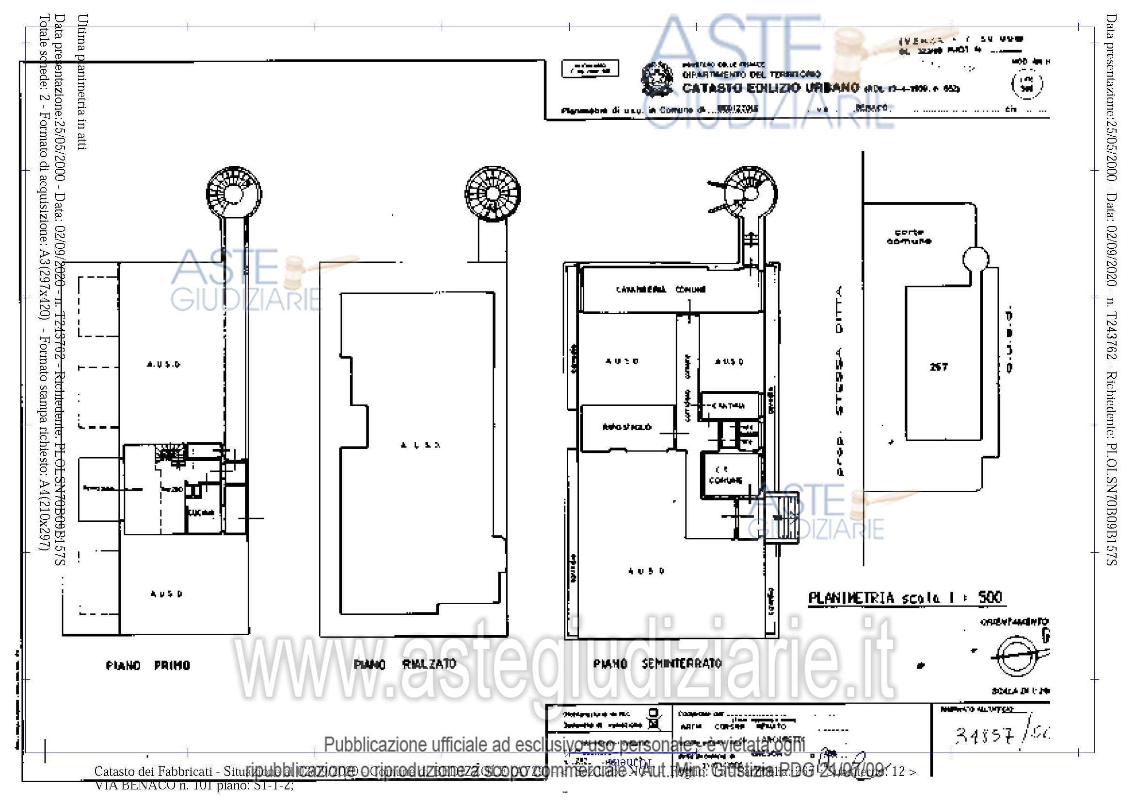
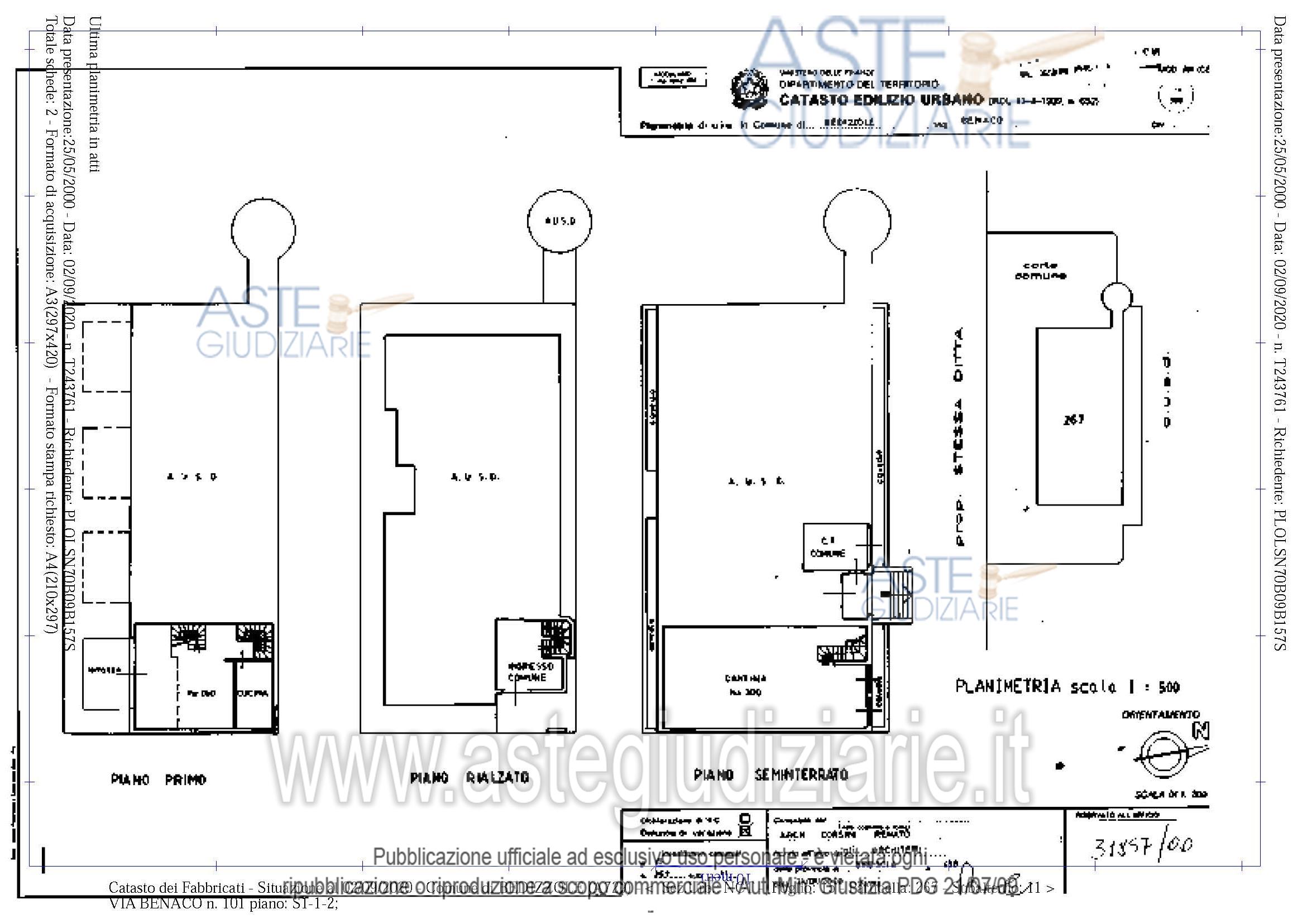
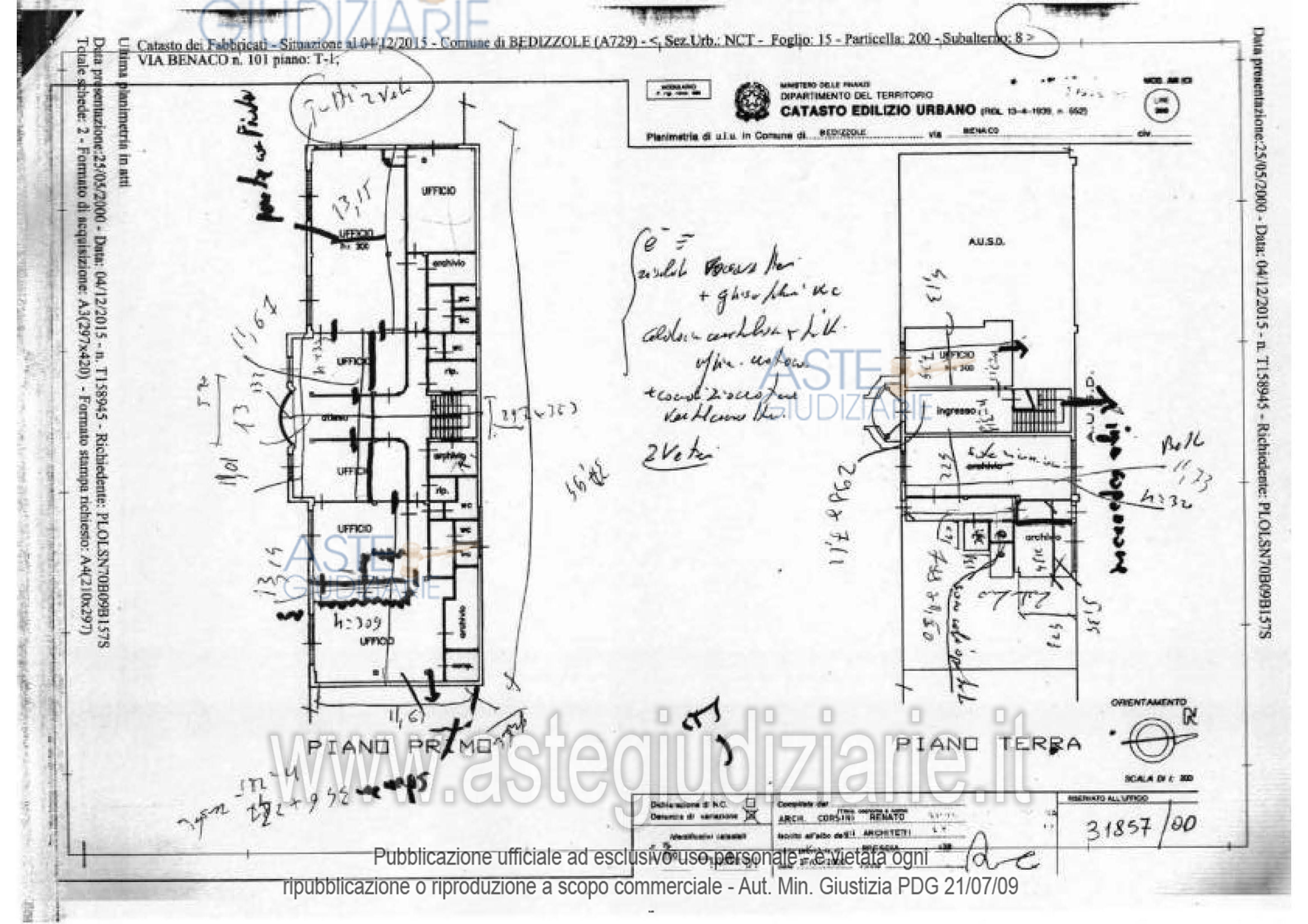
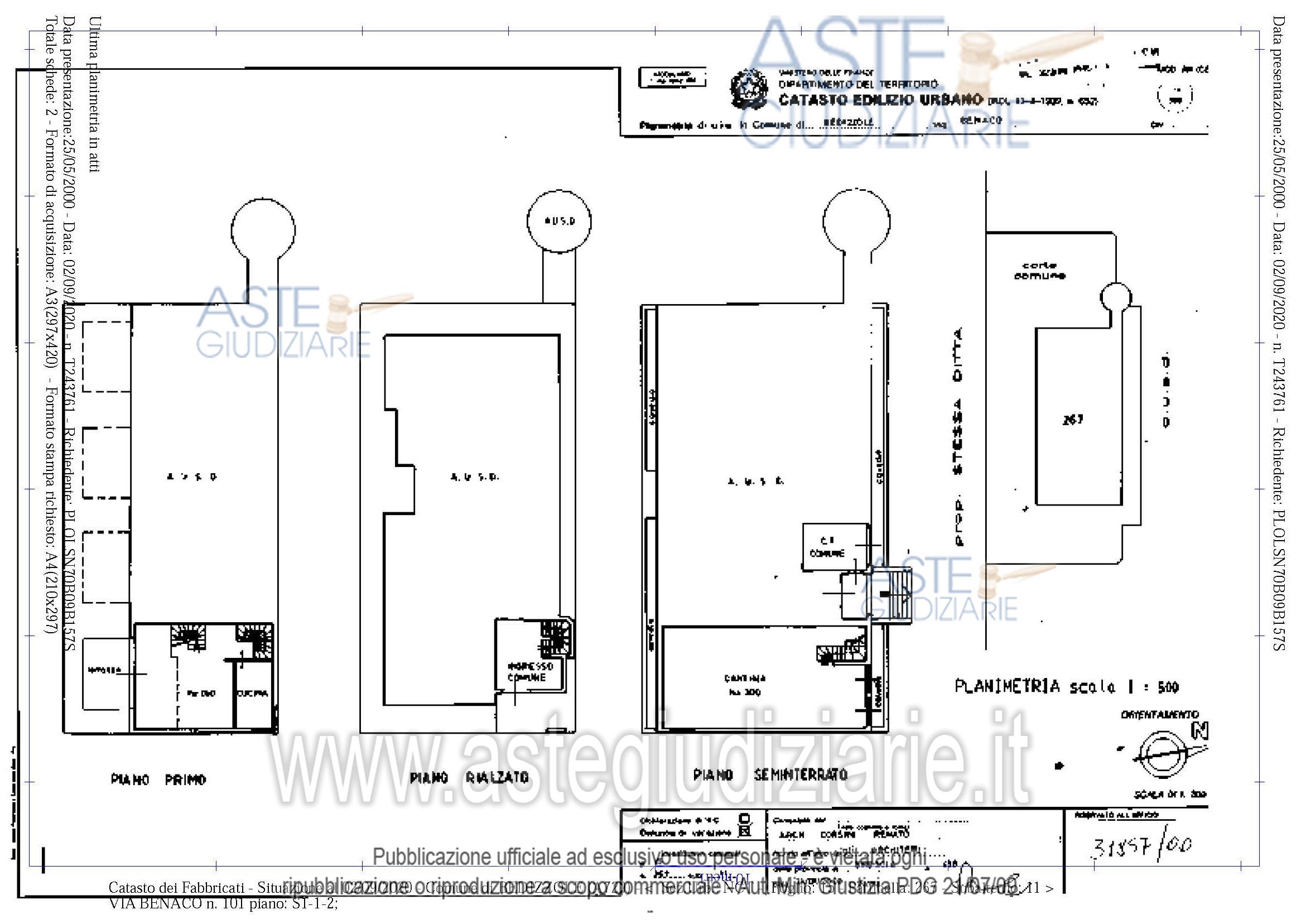
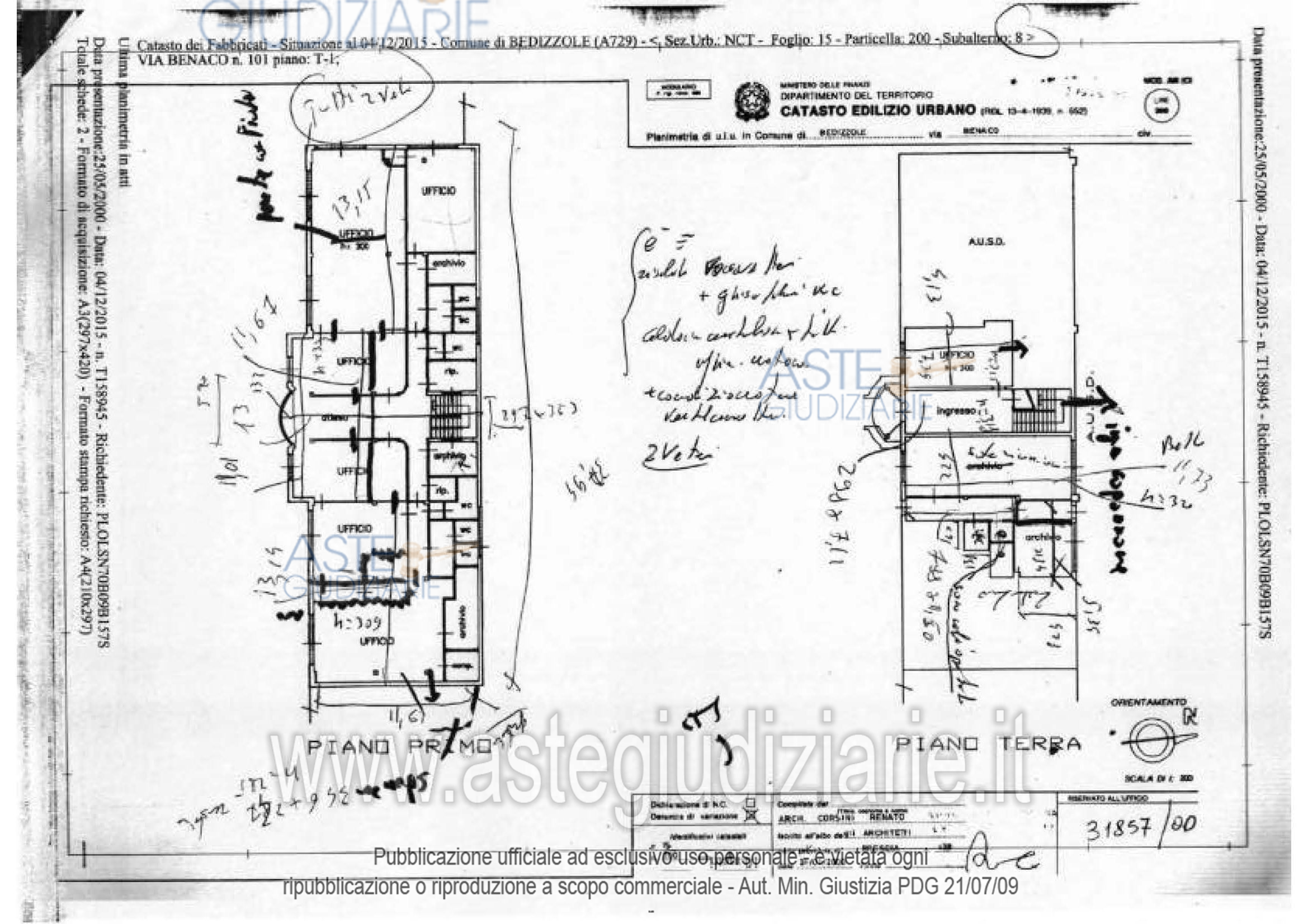
LOTTO UNICO (composto dai Lotti A1, A2 e B) In Comune di BEDIZZOLE (BS) – Via Benaco, 101, trattasi di complesso industriale con palazzina uffici

Indirizzo
Via Benaco, 101, Bedizzole (BS)


Codice asta
4317472


Lotto
Unico


Numero beni
1


Genere
Immobili


Categoria
Immobile industriale


Valore di stima
-


Fabbricati costruiti per esigenze industriali

LOTTO UNICO (composto dai Lotti A1, A2 e B) In Comune di BEDIZZOLE (BS) – Via Benaco, 101, trattasi di complesso industriale con palazzina uffici

Indirizzo
Via Benaco, 101, Bedizzole (BS)


Piano
-


Disponibilità
-


Vani
-


Bagni
-


Metri quadri
-


Certificazione energetica
-


Data vendita
21/01/2026 ore 11:00


Tipo di vendita
Competitiva


Modalità di vendita
Presso il venditore


Luogo
-


Luogo presentazione offerte
-


Termine presentazione offerte
19/01/2026 ore 11:00


Prezzo base
€ 1.750.000,00


Offerta minima
-


Rialzo minimo in caso di gara
€ 17.500,00


Deposito cauzionale
10% del prezzo offerto


Deposito in conto spese
-


Tribunale
Brescia

Tipo di procedura
Fallimento

Ruolo
34/2020

Delegato alla vendita
Casini Alessandra
(Procede alle operazioni di vendita)

Recapiti
-

Email
credenzialiaste@gmail.com

Curatore
Salvinelli Giorgio
(Gestisce la visita del bene)

Recapiti
-

Email
dottsalvinelli@maruggi.com;pat...

Scheda COD. 4317472 - Pubblicata dal 19/12/2025

La presente scheda di vendita riporta integralmente informazioni e documenti pervenuti ufficialmente dal Ministero e dal professionista incaricato.

Pubblicazione notarizzata su Blockchain


Pubblicazione autorizzata dall’Autorità competente, è vietata ogni ripubblicazione o riproduzione anche parziale


Ti interessa questa vendita?

Documentazione

Visualizza su mappa

Mappa geografica del bene

Storico delle vendite

Data venditaPrezzo base
15/01/2025€ 2.919.000,00
02/04/2025€ 2.335.000,00
21/01/2026€ 1.750.000,00

Punti di interesse

Fonte dati

Nel raggio di {{range}}Km

Loading...
  • {{ getIcon(poi.type) }} {{ poi.localized }}: {{poi.count}}
  • {{ getIcon(poi.type) }} {{ poi.localized }}: {{poi.count}}
Dati non disponibili