Astegiudiziarie.it è parte di Rete Aste Network

Accedi o registrati

Non sei ancora registrato?

Oppure

Accedi

Fabbricati costruiti per esigenze commerciali

Via Santo Stefano 109, Vedano al Lambro (MB)

€ 174.000,00

Offerta minima € 130.500,00


Codice A4334284

Lotto 1

Data udienza 17/04/2026 ore 10:00

Termine presentazione offerte 15/04/2026 ore 13:00

Fabbricati costruiti per esigenze commerciali

Via Santo Stefano 109, Vedano al Lambro (MB)

€ 174.000,00

Offerta minima € 130.500,00


Codice A4334284

Lotto 1

Data udienza 17/04/2026 ore 10:00

Termine presentazione offerte 15/04/2026 ore 13:00

Vendita deserta

Ti interessa questa vendita?

Documentazione

Visualizza su mappa

Mappa geografica del bene

Punti di interesse

Fonte dati

Nel raggio di {{range}}Km

Loading...
  • {{ getIcon(poi.type) }} {{ poi.localized }}: {{poi.count}}
  • {{ getIcon(poi.type) }} {{ poi.localized }}: {{poi.count}}
Dati non disponibili

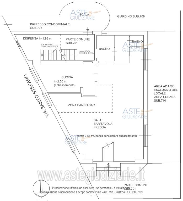
Immobile adibito a bar di mq. 84,30, al piano terra con Cantina 3 vani e altro terreno composto da area esterna funzionale all'attività. "Per l’assistenza alla partecipazione all’asta dei dei beni immobili e mobili ci si puo’ rivolgere all’I.V.G. di Monza. Il Tribunale di Monza non ha conferito alcun incarico a intermediari/ agenzie immobiliari per la pubblicità giudiziaria e l’assistenza alla partecipazione all’asta”.

Indirizzo
Via Santo Stefano 109, Vedano al Lambro (MB)


Codice asta
4334284


Lotto
1


Numero beni
1


Genere
Immobili


Categoria
Immobile commerciale


Valore di stima
-


Fabbricati costruiti per esigenze commerciali

A. Immobile adibito a bar di mq. 84,30, piano terra.A.1. Cantina 3 vani.A.2. Altro terreno composto da area esterna funzionale all'attività. "Per l’assistenza alla partecipazione all’asta dei beni immobili e mobili ci si può rivolgere all’I.V.G. di Monza. il Tribunale di Monza non ha conferito alcun incarico a intermediari/ agenzie immobiliari per la pubblicità giudiziaria e l’assistenza alla partecipazione."

Indirizzo
Via Santo Stefano 109, Vedano al Lambro (MB)


Piano
Terra


Disponibilità
Occupato


Vani
1,00


Bagni
-


Metri quadri
84,30


Certificazione energetica
-


Dati catastali

Foglio:4, Particella:11, Sub particella:2-4-710


Data udienza
17/04/2026 ore 10:00


Tipo di vendita
Senza incanto


Modalità di vendita
Sincrona telematica


Luogo
N.A. -


Luogo presentazione offerte
-


Termine presentazione offerte
15/04/2026 ore 13:00


Prezzo base
€ 174.000,00


Offerta minima
€ 130.500,00


Rialzo minimo in caso di gara
€ 1.000,00


Deposito cauzionale
10% del prezzo offerto


Deposito in conto spese
-


Tribunale
Monza

Tipo di procedura
Espropriazione immobiliare (cartabia)

Ruolo
660/2023

Giudice
Toppan Arianna

Recapiti
-

Email
-

Delegato alla vendita
Fiore Ciro
(Procede alle operazioni di vendita)

Recapiti
-

Email
-

Custode giudiziario
Fiore Ciro
(Gestisce la visita del bene)

Recapiti
Tel. 0392720446

Email

Scheda COD. 4334284 - Pubblicata dal 26/02/2026

La presente scheda di vendita riporta integralmente informazioni e documenti pervenuti ufficialmente dal Ministero e dal professionista incaricato.


Pubblicazione autorizzata dall’Autorità competente, è vietata ogni ripubblicazione o riproduzione anche parziale


Ti interessa questa vendita?

Documentazione

Visualizza su mappa

Mappa geografica del bene

Storico delle vendite

Data venditaPrezzo base
26/09/2025€ 232.000,00
23/01/2026€ 174.000,00
17/04/2026€ 174.000,00

Punti di interesse

Fonte dati

Nel raggio di {{range}}Km

Loading...
  • {{ getIcon(poi.type) }} {{ poi.localized }}: {{poi.count}}
  • {{ getIcon(poi.type) }} {{ poi.localized }}: {{poi.count}}
Dati non disponibili