Astegiudiziarie.it è parte di Rete Aste Network

Accedi o registrati

Non sei ancora registrato?

Oppure

Accedi

Fabbricati costruiti per esigenze commerciali

Via Serafina Borgiani, 8, 06049 Spoleto PG, Italia, Spoleto (PG)

€ 388.000,00

Offerta minima € 291.000,00


Codice A4340430

Lotto Lotto unico

Data udienza 29/05/2026 ore 11:00

Termine presentazione offerte 28/05/2026 ore 12:00

Fabbricati costruiti per esigenze commerciali

Via Serafina Borgiani, 8, 06049 Spoleto PG, Italia, Spoleto (PG)

€ 388.000,00

Offerta minima € 291.000,00


Codice A4340430

Lotto Lotto unico

Data udienza 29/05/2026 ore 11:00

Termine presentazione offerte 28/05/2026 ore 12:00

Ti interessa questa vendita?

Documentazione

Visualizza su mappa

Mappa geografica del bene

Punti di interesse

Fonte dati

Nel raggio di {{range}}Km

Loading...
  • {{ getIcon(poi.type) }} {{ poi.localized }}: {{poi.count}}
  • {{ getIcon(poi.type) }} {{ poi.localized }}: {{poi.count}}
Dati non disponibili

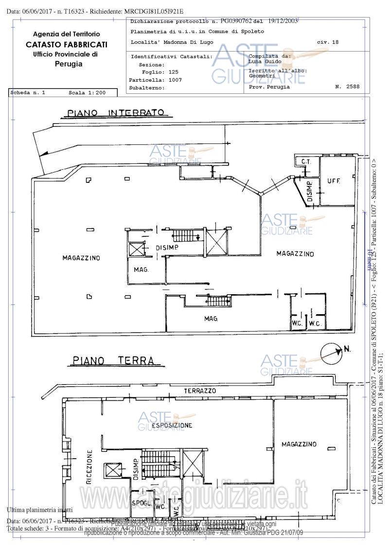
SPOLETO (PG) LOC. MADONNA DI LUGO, VIA S. BORGIANI N. 8

Indirizzo
Via Serafina Borgiani, 8, 06049 Spoleto PG, Italia, Spoleto (PG)


Codice asta
4340430


Lotto
Lotto unico


Numero beni
1


Genere
Immobili


Categoria
Immobile commerciale


Valore di stima
-


Fabbricati costruiti per esigenze commerciali

PIENA PROPRIETA' PER LA QUOTA DI 1/1 SU:Capannone Artigianale costituito su tre livelli al piano T-1 – S-1 con annessa corte esterna distinto al Catasto fabbricati del Comune di Spoleto al fg 25, part. 1007, cat.d/8, rendita catastale € 12.070,00 ed al catasto terreni di detto comune al fg 125, part 1007, ente urbano sup. are 13; sito in Spoleto- loc. Madonna di Lugo, Via S. Borgiani, 8;Confini: l’unità immobiliare confina da un lato con proprietà omissis; si affaccia direttamente sulla strada Via S. Borgiani, salvo altri.Stato di occupazione: L’immobile è occupato dall’esecutato.PROFESSIONISTA DELEGATO: AVV. DANIELA MANNAIOLI (Tel. 0742 960193).GIUDICE ESECUZIONE: DOTT. ALBERTO CAPPELLINICUSTODE GIUDIZIARIO: ISTITUTO VENDITE GIUDIZIARIE PERUGIA (075 5913525 - 0743 45107).

Indirizzo
Via Serafina Borgiani, 8, 06049 Spoleto PG, Italia, Spoleto (PG)


Piano
-


Disponibilità
-


Vani
-


Bagni
-


Metri quadri
1103,00


Certificazione energetica
-


Dati catastali

Foglio:125, Sezione:CF, Particella:1007
Foglio:125, Sezione:CT, Particella:1007


Data udienza
29/05/2026 ore 11:00


Tipo di vendita
Senza incanto


Modalità di vendita
Sincrona mista


Luogo
Via XXV Aprile, 52, 06049 Spoleto PG, Italia - Spoleto 06049


Luogo presentazione offerte
-


Termine presentazione offerte
28/05/2026 ore 12:00


Prezzo base
€ 388.000,00


Offerta minima
€ 291.000,00


Rialzo minimo in caso di gara
€ 3.000,00


Deposito cauzionale
10% del prezzo offerto


Deposito in conto spese
-


Tribunale
Spoleto

Tipo di procedura
Esecuzione immobiliare post legge 80

Ruolo
95/2018

Giudice
Cappellini Alberto

Recapiti
-

Email
-

Delegato alla vendita
Mannaioli Daniela
(Procede alle operazioni di vendita)

Recapiti
Tel. 0742960193

Email
danielamannaioli@libero.it

Custode giudiziario
Perugia Ivg
(Gestisce la visita del bene)

Recapiti
Tel. 0755913525

Scheda COD. 4340430 - Pubblicata dal 30/03/2026

La presente scheda di vendita riporta integralmente informazioni e documenti pervenuti ufficialmente dal Ministero e dal professionista incaricato.

Pubblicazione notarizzata su Blockchain


Pubblicazione autorizzata dall’Autorità competente, è vietata ogni ripubblicazione o riproduzione anche parziale


Ti interessa questa vendita?

Documentazione

Visualizza su mappa

Mappa geografica del bene

Storico delle vendite

Data venditaPrezzo base
20/02/2026€ 484.000,00
29/05/2026€ 388.000,00

Punti di interesse

Fonte dati

Nel raggio di {{range}}Km

Loading...
  • {{ getIcon(poi.type) }} {{ poi.localized }}: {{poi.count}}
  • {{ getIcon(poi.type) }} {{ poi.localized }}: {{poi.count}}
Dati non disponibili