Astegiudiziarie.it è parte di Rete Aste Network

Accedi o registrati

Non sei ancora registrato?

Oppure

Accedi

Fabbricati costruiti per esigenze commerciali

Via Talete, 09047 Selargius CA, Italia, Selargius (CA)

€ 102.816,00

Offerta minima € 77.112,00


Codice A4177040

Lotto 1

Data udienza 13/01/2026 ore 16:00

Termine presentazione offerte 12/01/2026 ore 16:00

Fabbricati costruiti per esigenze commerciali

Via Talete, 09047 Selargius CA, Italia, Selargius (CA)

€ 102.816,00

Offerta minima € 77.112,00


Codice A4177040

Lotto 1

Data udienza 13/01/2026 ore 16:00

Termine presentazione offerte 12/01/2026 ore 16:00

Ti interessa questa vendita?

Documentazione

Visualizza su mappa

Mappa geografica del bene

Punti di interesse

Fonte dati

Nel raggio di {{range}}Km

Loading...
  • {{ getIcon(poi.type) }} {{ poi.localized }}: {{poi.count}}
  • {{ getIcon(poi.type) }} {{ poi.localized }}: {{poi.count}}
Dati non disponibili

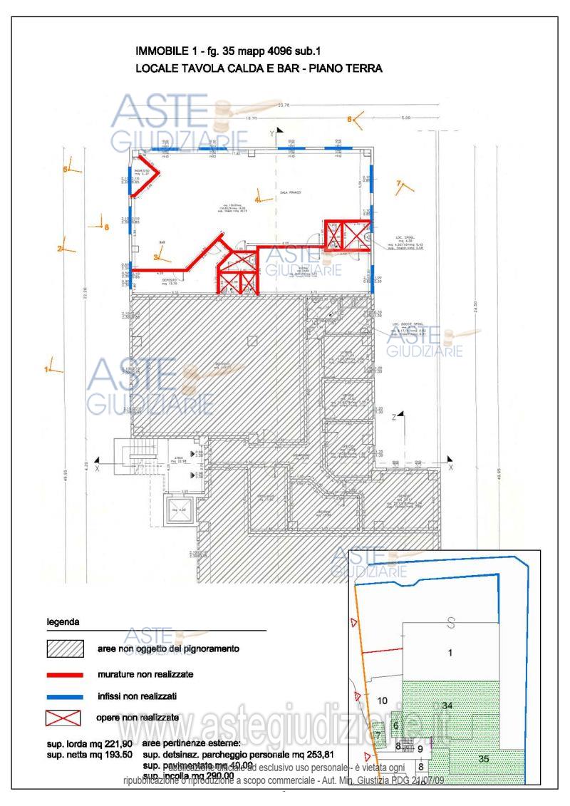
Unità immobiliare sita in Comune di Selargius (CA) Via Talete, distinta al C.F.al foglio 35 mappale 4096 sub. 1, p. T, al piano terra nella porzione a sinistra della scala esterna del maggior fabbricato (guardandolo dalla via Talete).L’immobile ha destinazione bar e tavola calda; si sviluppa per una superficie lorda di mq 212,00 (netta di mq 195,00) con annessa una porzione del lotto che circonda l’immobile su tre lati della superficie di mq. 579,81.l’immobile non risulta completato

Indirizzo
Via Talete, 09047 Selargius CA, Italia, Selargius (CA)


Codice asta
4177040


Lotto
1


Numero beni
1


Genere
Immobili


Categoria
Immobile commerciale


Valore di stima
-


Fabbricati costruiti per esigenze commerciali

Unità immobiliare sita in Comune di Selargius (CA) Via Talete, distinta al C.F.al foglio 35 mappale 4096 sub. 1, p. T, al piano terra nella porzione a sinistra della scala esterna del maggior fabbricato (guardandolo dalla via Talete).L’immobile ha destinazione bar e tavola calda; si sviluppa per una superficie lorda di mq 212,00 (netta di mq 195,00) con annessa una porzione del lotto che circonda l’immobile su tre lati della superficie di mq. 579,81.l’immobile non risulta completato

Indirizzo
Via Talete, 09047 Selargius CA, Italia, Selargius (CA)


Piano
-


Disponibilità
LIBERO


Vani
-


Bagni
-


Metri quadri
212,00


Certificazione energetica
-


Dati catastali

Foglio:35, Particella:4096, Subalterno:1


Data udienza
13/01/2026 ore 16:00


Tipo di vendita
Senza incanto


Modalità di vendita
Asincrona telematica


Luogo
-


Luogo presentazione offerte
-


Termine presentazione offerte
12/01/2026 ore 16:00


Prezzo base
€ 102.816,00


Offerta minima
€ 77.112,00


Rialzo minimo in caso di gara
€ 10.000,00


Deposito cauzionale
15000


Deposito in conto spese
-


Tribunale
Cagliari

Tipo di procedura
Esecuzione immobiliare post legge 80

Ruolo
266/2015

Giudice
Cocco Silvia

Recapiti
-

Email
-

Delegato alla vendita
Di fortunato Marco
(Procede alle operazioni di vendita)

Recapiti
Cell. 3356185295

Email
-

Custode giudiziario
Ivg di cagliari 
(Gestisce la visita del bene)

Recapiti
Tel. 0702299036

Scheda COD. 4177040 - Pubblicata dal 09/10/2025

La presente scheda di vendita riporta integralmente informazioni e documenti pervenuti ufficialmente dal Ministero e dal professionista incaricato.

Pubblicazione notarizzata su Blockchain


Pubblicazione autorizzata dall’Autorità competente, è vietata ogni ripubblicazione o riproduzione anche parziale


Ti interessa questa vendita?

Documentazione

Visualizza su mappa

Mappa geografica del bene

Storico delle vendite

Data venditaPrezzo base
05/05/2020€ 240.000,00
30/09/2022€ 240.000,00
06/02/2024€ 192.000,00
11/03/2025€ 163.200,00
08/07/2025€ 146.880,00
13/01/2026€ 102.816,00

Punti di interesse

Fonte dati

Nel raggio di {{range}}Km

Loading...
  • {{ getIcon(poi.type) }} {{ poi.localized }}: {{poi.count}}
  • {{ getIcon(poi.type) }} {{ poi.localized }}: {{poi.count}}
Dati non disponibili