Astegiudiziarie.it è parte di Rete Aste Network

Accedi o registrati

Non sei ancora registrato?

Oppure

Accedi

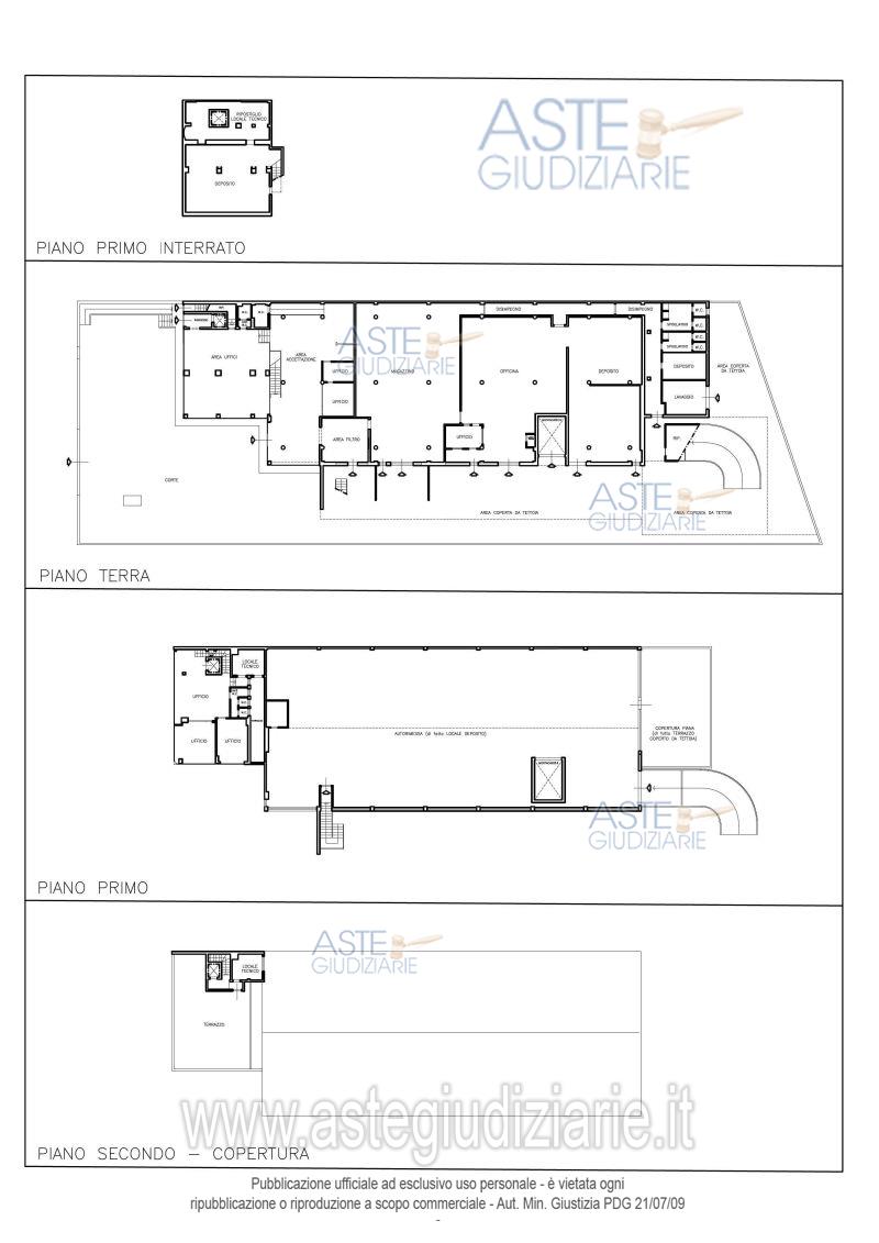
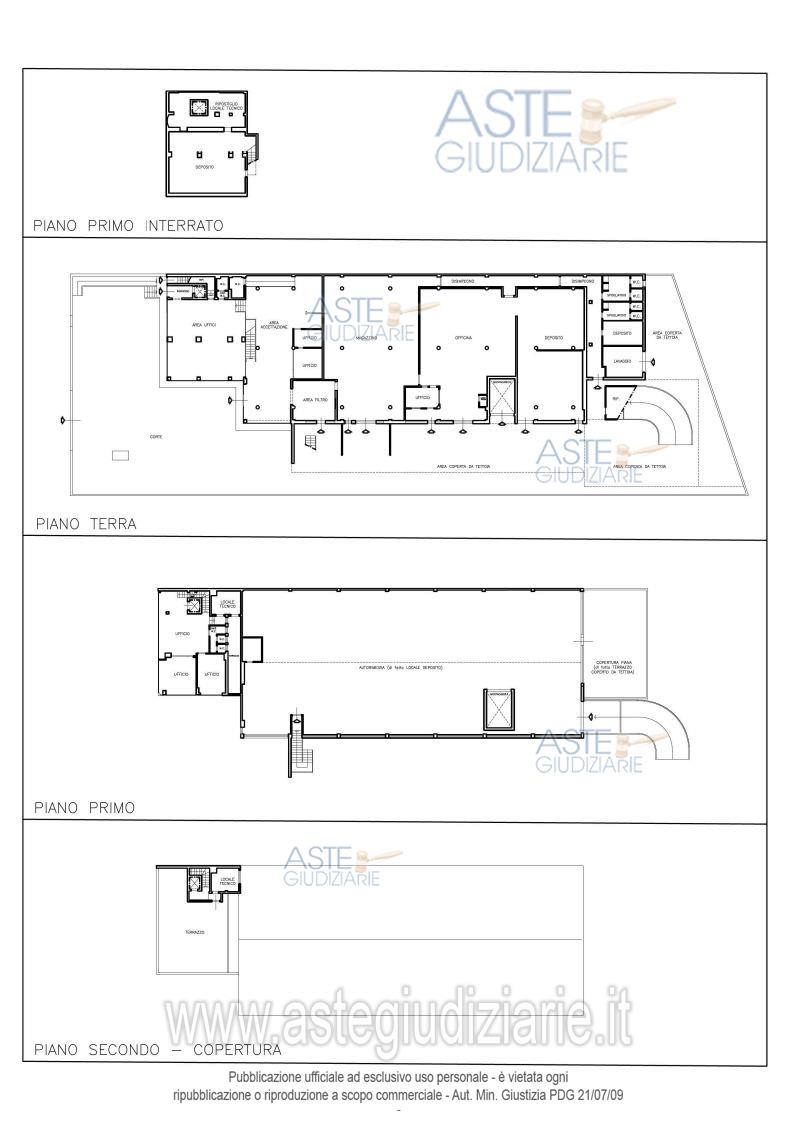
giudiziariagiudiziariaTribunale di ROMAESECUZIONI CIVILI IMMOBILIARIESECUZIONE IMMOBILIARE POST LEGGE 802372022GiudiceGiuseppe LauropolifalsefalseCustodeIvg di roma srlPRCFNC50L27A241Tpvp@visiteivgroma.itfalsetrueDelegato alla venditaAndreaBelliBLLNDR64H09H501Ztruefalse2422089LOTTO UNICOIMMOBILIALTRA CATEGORIAVia Tivoli, 36, 00156 Roma RM, Italia00156RomaRomaLazioItaliaPiena proprietà su complesso edilizio sito in Roma, con accesso da Via Tivoli n. 36 che si presenta allo stato attuale così composto: BENE 1: Fabbricato di categoria D/8 composta da un piano interrato, piano terra e piano primo; BENE 2: Appartamento composto da un piano terra, piano primo, piano secondo 3124161IMMOBILE RESIDENZIALEABITAZIONE DI TIPO CIVILEVia Tivoli, 36, 00156 Roma RM, Italia00156RomaRomaLazioItaliaBENE 2: Appartamento composto: al piano terra da ingresso che da accesso alla scala ed al corpo ascensore, al piano primo da 3 vani adibiti ad ufficio, antibagno con doppio servizio igienico, archivio, terrazzo al piano secondo da disimpegno, archivio, lastrico solare. 29311895053124162IMMOBILE COMMERCIALEFABBRICATI COSTRUITI PER ESIGENZE COMMERCIALIVia Tivoli, 36, 00156 Roma RM, Italia00156RomaRomaLazioItaliaPiena proprietà su complesso edilizio sito in Roma, con accesso da Via Tivoli n. 36 che si presenta allo stato attuale così composto: BENE 1: Fabbricato di categoria D/8 composto al piano terra da ingresso/area accettazione, zona filtro, 4 uffici, 2 ripostigli, magazzino, 2 depositi, officina, 2 disimpegni, 2 spogliatoi con 4 w.c., 2 servizi igienici, antibagno, zona lavaggio, montacarichi per auto, area pertinenziale su cui insistono 3 tettoie al piano interrato, raggiungibile dal piano terra mediante scala interna da: deposito, locale tecnico, ripostiglio sottoscala e vano ascensore non accessibile, al piano primo, raggiungibile mediante rampa carrabile nonché montacarichi per auto e scala esterna di sicurezza da: ampio locale adibito a magazzino, piccolo locale magazzino, area filtro di collegamento alla scala esterna e terrazzo coperto;29311895042026-07-14T14:00:00SENZA INCANTOASINCRONA TELEMATICAN.A.1.678.000,001.258.500,0030.000,002026-07-13T23:59:00sito pubblicitahttps://www.asteannunci.ithttps://www.asteannunci.itsito pubblicitahttps://www.fallcoaste.ithttps://www.fallcoaste.itsito pubblicitahttps://www.astegiudiziarie.ithttps://www.astegiudiziarie.itgestore delle venditehttp://www.astetelematiche.ithttp://www.astetelematiche.it2026-04-10

Fabbricati costruiti per esigenze commerciali, abitazione di tipo civile

Via Tivoli, 36, 00156 Roma RM, Italia, Roma (RM)

€ 1.678.000,00

Offerta minima € 1.258.500,00


Codice A4325575

Lotto Lotto unico

Data udienza 14/07/2026 ore 14:00

Termine presentazione offerte 13/07/2026 ore 23:59

Fabbricati costruiti per esigenze commerciali, abitazione di tipo civile

Via Tivoli, 36, 00156 Roma RM, Italia, Roma (RM)

€ 1.678.000,00

Offerta minima € 1.258.500,00


Codice A4325575

Lotto Lotto unico

Data udienza 14/07/2026 ore 14:00

Termine presentazione offerte 13/07/2026 ore 23:59

Ti interessa questa vendita?

Visualizza su mappa

Mappa geografica del bene

Punti di interesse

Fonte dati

Nel raggio di {{range}}Km

Loading...
  • {{ getIcon(poi.type) }} {{ poi.localized }}: {{poi.count}}
  • {{ getIcon(poi.type) }} {{ poi.localized }}: {{poi.count}}
Dati non disponibili

Piena proprietà su complesso edilizio sito in Roma, con accesso da Via Tivoli n. 36 che si presenta allo stato attuale così composto: BENE 1: Fabbricato di categoria D/8 composta da un piano interrato, piano terra e piano primo; BENE 2: Appartamento composto da un piano terra, piano primo, piano secondo

Indirizzo
Via Tivoli, 36, 00156 Roma RM, Italia, Roma (RM)


Codice asta
4325575


Lotto
Lotto unico


Numero beni
2


Genere
Immobili


Categoria
Immobile commerciale


Valore di stima
-


Fabbricati costruiti per esigenze commerciali

Piena proprietà su complesso edilizio sito in Roma, con accesso da Via Tivoli n. 36 che si presenta allo stato attuale così composto: BENE 1: Fabbricato di categoria D/8 composto al piano terra da ingresso/area accettazione, zona filtro, 4 uffici, 2 ripostigli, magazzino, 2 depositi, officina, 2 disimpegni, 2 spogliatoi con 4 w.c., 2 servizi igienici, antibagno, zona lavaggio, montacarichi per auto, area pertinenziale su cui insistono 3 tettoie al piano interrato, raggiungibile dal piano terra mediante scala interna da: deposito, locale tecnico, ripostiglio sottoscala e vano ascensore non accessibile, al piano primo, raggiungibile mediante rampa carrabile nonché montacarichi per auto e scala esterna di sicurezza da: ampio locale adibito a magazzino, piccolo locale magazzino, area filtro di collegamento alla scala esterna e terrazzo coperto;

Indirizzo
Via Tivoli, 36, 00156 Roma RM, Italia, Roma (RM)


Piano
S1-T-1


Disponibilità
-


Vani
1,00


Bagni
4


Metri quadri
2028,36


Certificazione energetica
-


Dati catastali

Foglio:293, Particella:1189, Subalterno:504


Abitazione di tipo civile

BENE 2: Appartamento composto: al piano terra da ingresso che da accesso alla scala ed al corpo ascensore, al piano primo da 3 vani adibiti ad ufficio, antibagno con doppio servizio igienico, archivio, terrazzo al piano secondo da disimpegno, archivio, lastrico solare.

Indirizzo
Via Tivoli, 36, 00156 Roma RM, Italia, Roma (RM)


Piano
1


Disponibilità
-


Vani
6,00


Bagni
1


Metri quadri
144,26


Certificazione energetica
-


Dati catastali

Foglio:293, Particella:1189, Subalterno:505


Data udienza
14/07/2026 ore 14:00


Tipo di vendita
Senza incanto


Modalità di vendita
Asincrona telematica


Luogo
N.A. -


Luogo presentazione offerte
-


Termine presentazione offerte
13/07/2026 ore 23:59


Prezzo base
€ 1.678.000,00


Offerta minima
€ 1.258.500,00


Rialzo minimo in caso di gara
€ 30.000,00


Deposito cauzionale
-


Deposito in conto spese
-


Tribunale
Roma

Tipo di procedura
Esecuzione immobiliare post legge 80

Ruolo
237/2022

Giudice
Lauropoli Giuseppe

Recapiti
-

Email
-

Delegato alla vendita
Belli Andrea
(Procede alle operazioni di vendita)

Recapiti
-

Email
-

Custode giudiziario
Ivg di roma srl 
(Gestisce la visita del bene)

Recapiti
-

Scheda COD. 4325575 - Pubblicata dal 16/04/2026

La presente scheda di vendita riporta integralmente informazioni e documenti pervenuti ufficialmente dal Ministero e dal professionista incaricato.

Pubblicazione notarizzata su Blockchain


Pubblicazione autorizzata dall’Autorità competente, è vietata ogni ripubblicazione o riproduzione anche parziale


Ti interessa questa vendita?

Visualizza su mappa

Mappa geografica del bene

Storico delle vendite

Data venditaPrezzo base
09/07/2025€ 1.678.000,00
14/07/2026€ 1.678.000,00

Punti di interesse

Fonte dati

Nel raggio di {{range}}Km

Loading...
  • {{ getIcon(poi.type) }} {{ poi.localized }}: {{poi.count}}
  • {{ getIcon(poi.type) }} {{ poi.localized }}: {{poi.count}}
Dati non disponibili