Astegiudiziarie.it è parte di Rete Aste Network

Accedi o registrati

Non sei ancora registrato?

Oppure

Accedi

Fabbricati costruiti per esigenze commerciali, appartamento

Via alle Brughiere, 35, 28887 Omegna VB, Italia, Omegna (VB)

€ 315.000,00

Offerta minima € 236.250,00


Codice A4350237

Lotto Lotto unico

Data udienza 23/06/2026 ore 10:00

Termine presentazione offerte 22/06/2026 ore 12:00

Fabbricati costruiti per esigenze commerciali, appartamento

Via alle Brughiere, 35, 28887 Omegna VB, Italia, Omegna (VB)

€ 315.000,00

Offerta minima € 236.250,00


Codice A4350237

Lotto Lotto unico

Data udienza 23/06/2026 ore 10:00

Termine presentazione offerte 22/06/2026 ore 12:00

Ti interessa questa vendita?

Documentazione

Visualizza su mappa

Mappa geografica del bene

Punti di interesse

Fonte dati

Nel raggio di {{range}}Km

Loading...
  • {{ getIcon(poi.type) }} {{ poi.localized }}: {{poi.count}}
  • {{ getIcon(poi.type) }} {{ poi.localized }}: {{poi.count}}
Dati non disponibili

Bene N° 1 - Fabbricato commerciale ubicato a Omegna (VB) - via Alle Brughiere n.35Bene N° 2 - Appartamento ubicato a Omegna (VB) - via Alle Brughiere n.35

Indirizzo
Via alle Brughiere, 35, 28887 Omegna VB, Italia, Omegna (VB)


Codice asta
4350237


Lotto
Lotto unico


Numero beni
2


Genere
Immobili


Categoria
Immobile commerciale


Valore di stima
-


Fabbricati costruiti per esigenze commerciali

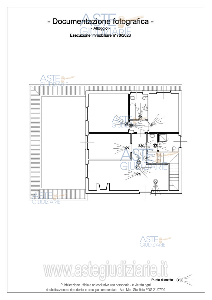
Bene N° 1 - Fabbricato commerciale. Trattasi di unità immobiliare ad uso commerciale (Ristorante) al piano terra con annessa cantina al piano interrato, area scoperta -giardino e nella parte posteriore è presente una piscina.L'immobile si sviluppa su tre livelli dei quali uno al piano seminterrato occupato da una cantina a sevizio del ristorante, al piano terra il ristorante e un vano scala comune che collega sia l’alloggio al primo piano che la cantina.Il piano terra risulta essere composto da: Ingresso, bar, sala ristorante, disimpegno 1, dispensa, cucina, disimpegno 2, spogliatoio, Wc, Lavanderia, Disimpegno 3, bagno per disabili e disimpegno scala in comune.

Indirizzo
Via alle Brughiere, 35, 28887 Omegna VB, Italia, Omegna (VB)


Piano
-


Disponibilità
-


Vani
-


Bagni
-


Metri quadri
293,00


Certificazione energetica
-


Appartamento

Bene N° 2 - Appartamento situato al piano primo ed è costituito da: ingresso, soggiorno con angolo cottura, n. 2 camere da letto, disimpegno, antibagno e n. 2 bagno oltre a terrazza. È presente una botola per l’accesso nel sottotettoEsternamente l’area è composta da una strada asfaltata per l’accesso dei mezzi privati, ampi spazi pavimentati utilizzati per il posizionamento di tavoli a servizio del ristorante e aree verdi piantumate e inerbite. Nella parte posteriore del fabbricato è presente una piscina.

Indirizzo
Via alle Brughiere, 35, 28887 Omegna VB, Italia, Omegna (VB)


Piano
-


Disponibilità
-


Vani
5,50


Bagni
-


Metri quadri
108,00


Certificazione energetica
-


Data udienza
23/06/2026 ore 10:00


Tipo di vendita
Senza incanto


Modalità di vendita
Asincrona telematica


Luogo
-


Luogo presentazione offerte
-


Termine presentazione offerte
22/06/2026 ore 12:00


Prezzo base
€ 315.000,00


Offerta minima
€ 236.250,00


Rialzo minimo in caso di gara
€ 10.000,00


Deposito cauzionale
10000


Deposito in conto spese
-


Tribunale
Verbania

Tipo di procedura
Espropriazione immobiliare (cartabia)

Ruolo
78/2023

Giudice
Sacco Antonietta
(Procede alle operazioni di vendita)

Recapiti
-

Email
-

Custode giudiziario
Aste giudiziarie inlinea spa 
(Gestisce la visita del bene)

Recapiti
-

Scheda COD. 4350237 - Pubblicata dal 23/04/2026

La presente scheda di vendita riporta integralmente informazioni e documenti pervenuti ufficialmente dal Ministero e dal professionista incaricato.


Pubblicazione autorizzata dall’Autorità competente, è vietata ogni ripubblicazione o riproduzione anche parziale


Ti interessa questa vendita?

Documentazione

Visualizza su mappa

Mappa geografica del bene

Punti di interesse

Fonte dati

Nel raggio di {{range}}Km

Loading...
  • {{ getIcon(poi.type) }} {{ poi.localized }}: {{poi.count}}
  • {{ getIcon(poi.type) }} {{ poi.localized }}: {{poi.count}}
Dati non disponibili