Astegiudiziarie.it è parte di Rete Aste Network

Accedi o registrati

Non sei ancora registrato?

Oppure

Accedi

giudiziariagiudiziariaTribunale di BARIESECUZIONI CIVILI IMMOBILIARIESPROPRIAZIONE IMMOBILIARE (CARTABIA)4362024Delegato alla venditaFrancescoConvertiCNVFNC55P28E205Pfrancescoconverti@libero.ittruefalseGiudiceAntonioRuffinofalsefalseCustodeFrancescoConvertiCNVFNC55P28E205Pfrancescoconverti@libero.itfalsetrue2415454LOTTO UNICOIMMOBILIIMMOBILE COMMERCIALEStrada Provinciale 231 al km 1ModugnoBariPugliaItaliaLotto che si articola in un grande complesso commerciale (piano interrato, pianto terra) con palazzina autonoma adiacente (piano terra, piano primo), un fabbricato retrostante che funge da parcheggio multipiano su tre livelli più il parcheggio sul lastrico solare. Il lotto è circondato da un’area scoperta con viabilità con estensione complessiva di circa mq. 36.400 e una superficie massima coperta di circa mq. 13.900.3115905IMMOBILE COMMERCIALEFABBRICATI COSTRUITI PER ESIGENZE COMMERCIALIStrada Provinciale 231 al km 1ModugnoBariPugliaItaliaLotto che si articola in un grande complesso commerciale (piano interrato, pianto terra) con palazzina autonoma adiacente (piano terra, piano primo), un fabbricato retrostante che funge da parcheggio multipiano su tre livelli più il parcheggio sul lastrico solare. Il lotto è circondato da un’area scoperta con viabilità con estensione complessiva di circa mq. 36.400 e una superficie massima coperta di circa mq. 13.900.14253-8-9-10-11-12-13-14-15142516-17-18-19-20-21-22-23-242026-07-10T10:00:00SENZA INCANTOASINCRONA TELEMATICAN.A.4.164.750,003.123.563,00200.000,002026-07-03T12:00:00sito pubblicitahttps://www.astegiudiziarie.ithttps://www.astegiudiziarie.itgestore delle venditehttps://www.fallcoaste.ithttps://www.fallcoaste.it2026-03-27

Fabbricati costruiti per esigenze commerciali

Strada Provinciale 231 al km 1, Modugno (BA)

€ 4.164.750,00

Offerta minima € 3.123.563,00


Codice A4341701

Lotto Lotto unico

Data udienza 10/07/2026 ore 10:00

Termine presentazione offerte 03/07/2026 ore 12:00

Fabbricati costruiti per esigenze commerciali

Strada Provinciale 231 al km 1, Modugno (BA)

€ 4.164.750,00

Offerta minima € 3.123.563,00


Codice A4341701

Lotto Lotto unico

Data udienza 10/07/2026 ore 10:00

Termine presentazione offerte 03/07/2026 ore 12:00

Ti interessa questa vendita?

Documentazione

Visualizza su mappa

Mappa geografica del bene

Punti di interesse

Fonte dati

Nel raggio di {{range}}Km

Loading...
  • {{ getIcon(poi.type) }} {{ poi.localized }}: {{poi.count}}
  • {{ getIcon(poi.type) }} {{ poi.localized }}: {{poi.count}}
Dati non disponibili

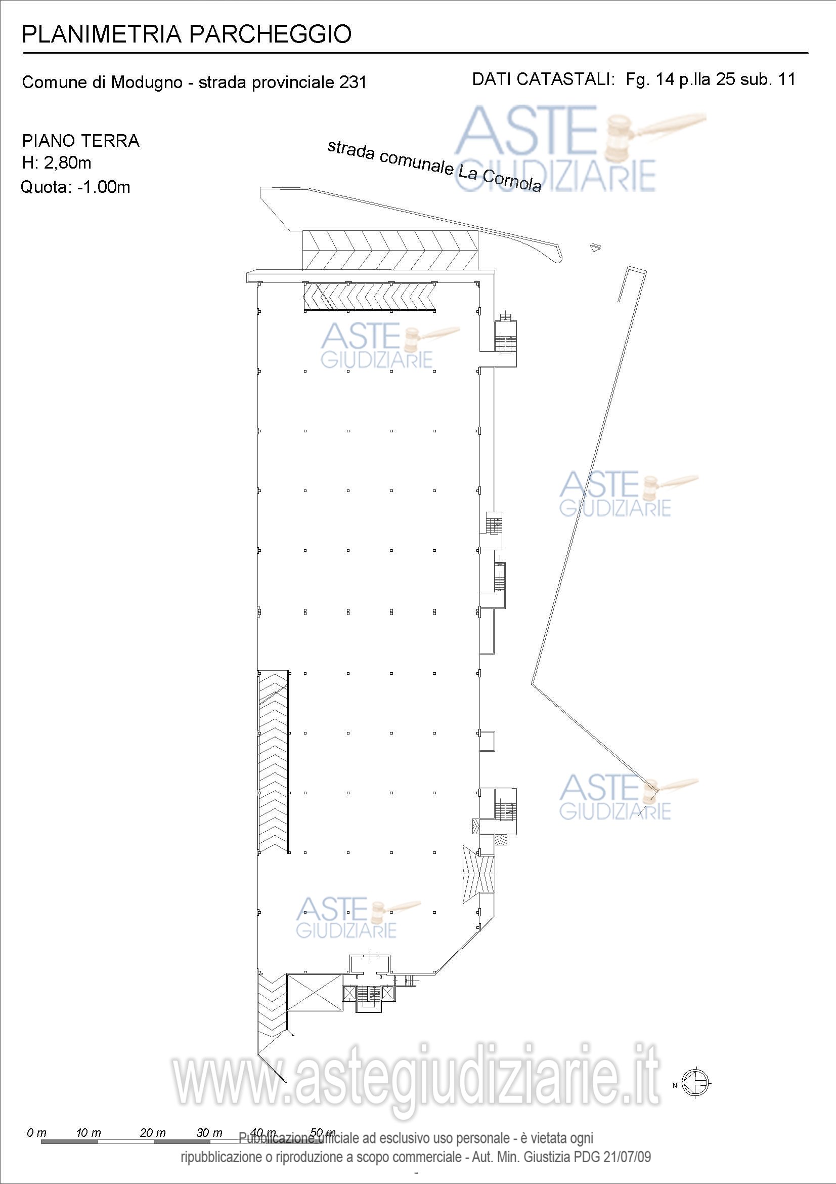
Lotto che si articola in un grande complesso commerciale (piano interrato, pianto terra) con palazzina autonoma adiacente (piano terra, piano primo), un fabbricato retrostante che funge da parcheggio multipiano su tre livelli più il parcheggio sul lastrico solare. Il lotto è circondato da un’area scoperta con viabilità con estensione complessiva di circa mq. 36.400 e una superficie massima coperta di circa mq. 13.900.

Indirizzo
Strada Provinciale 231 al km 1, Modugno (BA)


Codice asta
4341701


Lotto
Lotto unico


Numero beni
1


Genere
Immobili


Categoria
Immobile commerciale


Valore di stima
-


Fabbricati costruiti per esigenze commerciali

Lotto che si articola in un grande complesso commerciale (piano interrato, pianto terra) con palazzina autonoma adiacente (piano terra, piano primo), un fabbricato retrostante che funge da parcheggio multipiano su tre livelli più il parcheggio sul lastrico solare. Il lotto è circondato da un’area scoperta con viabilità con estensione complessiva di circa mq. 36.400 e una superficie massima coperta di circa mq. 13.900.

Indirizzo
Strada Provinciale 231 al km 1, Modugno (BA)


Piano
-


Disponibilità
-


Vani
-


Bagni
-


Metri quadri
13900,00


Certificazione energetica
-


Dati catastali

Foglio:14, Particella:25, Subalterno:3-8-9-10-11-12-13-14-15
Foglio:14, Particella:25, Subalterno:16-17-18-19-20-21-22-23-24


Data udienza
10/07/2026 ore 10:00


Tipo di vendita
Senza incanto


Modalità di vendita
Asincrona telematica


Luogo
N.A. -


Luogo presentazione offerte
-


Termine presentazione offerte
03/07/2026 ore 12:00


Prezzo base
€ 4.164.750,00


Offerta minima
€ 3.123.563,00


Rialzo minimo in caso di gara
€ 200.000,00


Deposito cauzionale
10% del prezzo offerto


Deposito in conto spese
-


Tribunale
Bari

Tipo di procedura
Espropriazione immobiliare (cartabia)

Ruolo
436/2024

Giudice
Ruffino Antonio

Recapiti
-

Email
-

Delegato alla vendita
Converti Francesco
(Procede alle operazioni di vendita)

Recapiti
-

Email
francescoconverti@libero.it

Custode giudiziario
Converti Francesco
(Gestisce la visita del bene)

Recapiti
-

Scheda COD. 4341701 - Pubblicata dal 31/03/2026

La presente scheda di vendita riporta integralmente informazioni e documenti pervenuti ufficialmente dal Ministero e dal professionista incaricato.


Pubblicazione autorizzata dall’Autorità competente, è vietata ogni ripubblicazione o riproduzione anche parziale


Ti interessa questa vendita?

Documentazione

Visualizza su mappa

Mappa geografica del bene

Storico delle vendite

Data venditaPrezzo base
24/03/2026€ 5.553.000,00
10/07/2026€ 4.164.750,00

Punti di interesse

Fonte dati

Nel raggio di {{range}}Km

Loading...
  • {{ getIcon(poi.type) }} {{ poi.localized }}: {{poi.count}}
  • {{ getIcon(poi.type) }} {{ poi.localized }}: {{poi.count}}
Dati non disponibili