Astegiudiziarie.it è parte di Rete Aste Network

Accedi o registrati

Non sei ancora registrato?

Oppure

Accedi

Fabbricati costruiti per esigenze commerciali

Corso Roma 144, Cilavegna (PV)

€ 65.390,63

Offerta minima € 49.043,00


Codice A4339454

Lotto Lotto unico

Data udienza 21/01/2026 ore 15:00

Termine presentazione offerte 20/01/2026 ore 12:00

Fabbricati costruiti per esigenze commerciali

Corso Roma 144, Cilavegna (PV)

€ 65.390,63

Offerta minima € 49.043,00


Codice A4339454

Lotto Lotto unico

Data udienza 21/01/2026 ore 15:00

Termine presentazione offerte 20/01/2026 ore 12:00

Ti interessa questa vendita?

Documentazione

Visualizza su mappa

Mappa geografica del bene

Punti di interesse

Fonte dati

Nel raggio di {{range}}Km

Loading...
  • {{ getIcon(poi.type) }} {{ poi.localized }}: {{poi.count}}
  • {{ getIcon(poi.type) }} {{ poi.localized }}: {{poi.count}}
Dati non disponibili

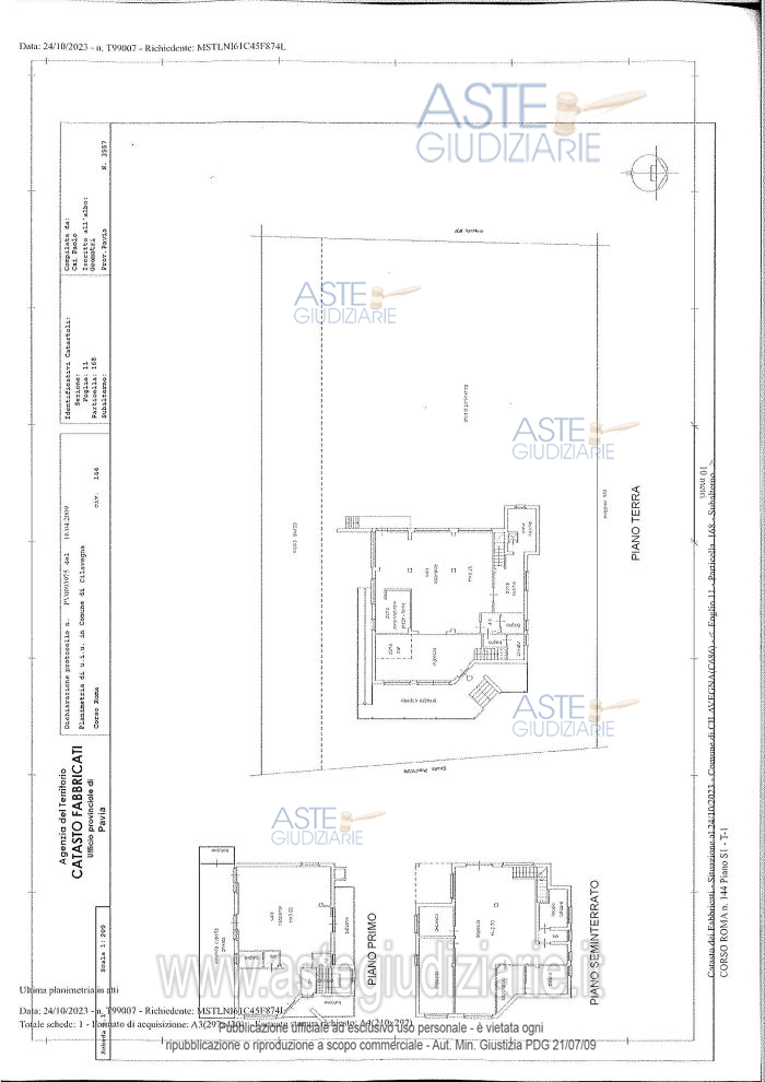
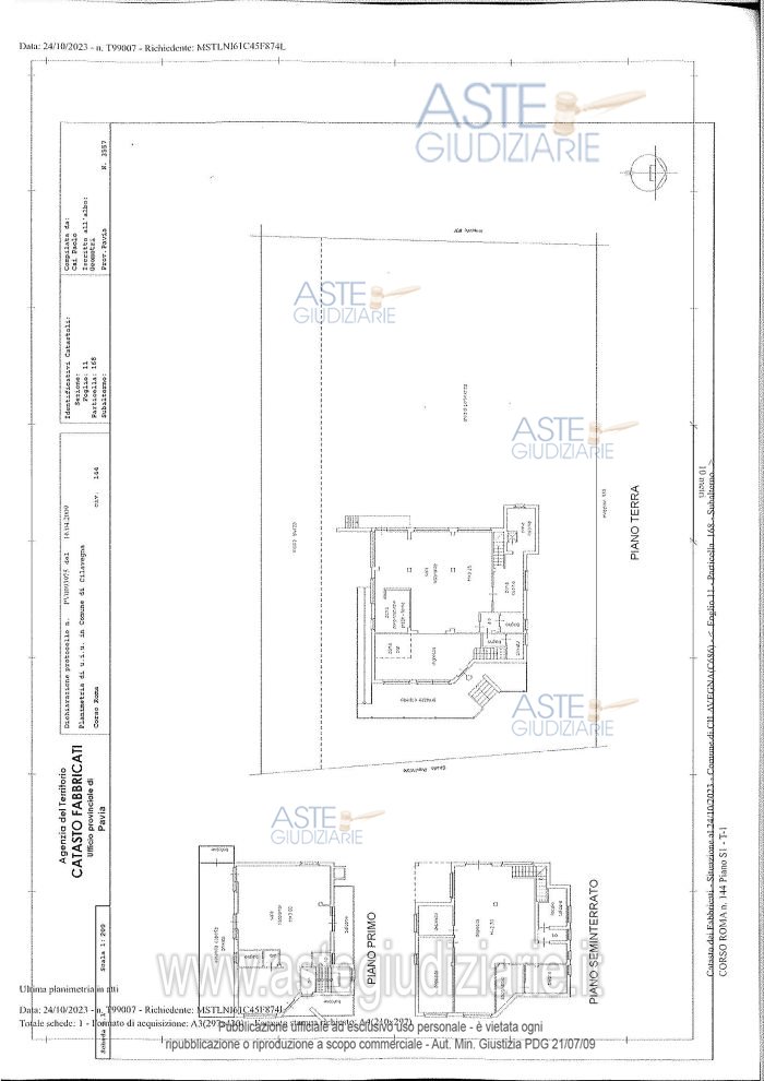
Fabbricato realizzato per l’utilizzo di locale ricettivo composto da due piani fuori terra e piano seminterrato.

Indirizzo
Corso Roma 144, Cilavegna (PV)


Codice asta
4339454


Lotto
Lotto unico


Numero beni
1


Genere
Immobili


Categoria
Immobile commerciale


Valore di stima
-


Fabbricati costruiti per esigenze commerciali

Fabbricato realizzato per l’utilizzo di locale ricettivo composto da due piani fuori terra e piano seminterrato. La disposizione dell’immobile risulta avere all’ingresso un grande terrazzo coperto raggiungibile mediante una scala di servizio posta a pochi metri dall’ingresso della proprietà. All’interno gli ambienti del piano maestro sono identificati in una prima sala dedicata a zona bar ed una seconda arretrata dedicata alla zona ristoro, ambienti di cucina con annessa piccola zona forno pizza e due locali bagno separati per la clientela e per il personale. Una scala porta al piano superiore dove trovano colloca-zione gli ambienti dedicati ad ulteriore sala ristorazione e bagno clienti, nonché due distinti balconi accessibili dalla scala ed una terrazza coperta sul lato sud. A completare il compendio al piano seminterrato, raggiungibile internamente mediante una scala in muratura si trovano ambienti dedicati a deposito, spogliatoio dipendenti, un generoso bagno ed un ripostiglio. L’ambiente deposito è raggiungibile anche auto-nomamente dalla corte interna in modo carrabile mediante una rampa realizzata in cemento che porta al piano.

Indirizzo
Corso Roma 144, Cilavegna (PV)


Piano
-


Disponibilità
LIBER


Vani
-


Bagni
-


Metri quadri
1300,00


Certificazione energetica
-


Data udienza
21/01/2026 ore 15:00


Tipo di vendita
Senza incanto


Modalità di vendita
Asincrona telematica


Luogo
N.A. -


Luogo presentazione offerte
-


Termine presentazione offerte
20/01/2026 ore 12:00


Prezzo base
€ 65.390,63


Offerta minima
€ 49.043,00


Rialzo minimo in caso di gara
€ 1.000,00


Deposito cauzionale
-


Deposito in conto spese
-


Tribunale
Pavia

Tipo di procedura
Esecuzione immobiliare post legge 80

Ruolo
108/2022

Giudice
Cunati Mariaelena

Recapiti
-

Email
-

Delegato alla vendita
Zerbinati Irene
(Procede alle operazioni di vendita)

Recapiti
-

Email
irene.zerbinati@virgilio.it

Custode giudiziario
Giudiziarie di vigevano Istituto vendite
(Gestisce la visita del bene)

Recapiti
Tel. 0381691137

Scheda COD. 4339454 - Pubblicata dal 21/11/2025

La presente scheda di vendita riporta integralmente informazioni e documenti pervenuti ufficialmente dal Ministero e dal professionista incaricato.

Pubblicazione notarizzata su Blockchain


Pubblicazione autorizzata dall’Autorità competente, è vietata ogni ripubblicazione o riproduzione anche parziale


Ti interessa questa vendita?

Documentazione

Visualizza su mappa

Mappa geografica del bene

Punti di interesse

Fonte dati

Nel raggio di {{range}}Km

Loading...
  • {{ getIcon(poi.type) }} {{ poi.localized }}: {{poi.count}}
  • {{ getIcon(poi.type) }} {{ poi.localized }}: {{poi.count}}
Dati non disponibili