Astegiudiziarie.it è parte di Rete Aste Network

Accedi o registrati

Non sei ancora registrato?

Oppure

Accedi

Fabbricati costruiti per esigenze commerciali

Via Campanile 120, Arce (FR)

€ 40.000,00

Offerta minima € 30.000,00


Codice A4246067

Lotto Lotto unico

Data udienza 18/12/2025 ore 16:00

Termine presentazione offerte 17/12/2025 ore 12:00

Fabbricati costruiti per esigenze commerciali

Via Campanile 120, Arce (FR)

€ 40.000,00

Offerta minima € 30.000,00


Codice A4246067

Lotto Lotto unico

Data udienza 18/12/2025 ore 16:00

Termine presentazione offerte 17/12/2025 ore 12:00

Ti interessa questa vendita?

Documentazione

Visualizza su mappa

Mappa geografica del bene

Punti di interesse

Fonte dati

Nel raggio di {{range}}Km

Loading...
  • {{ getIcon(poi.type) }} {{ poi.localized }}: {{poi.count}}
  • {{ getIcon(poi.type) }} {{ poi.localized }}: {{poi.count}}
Dati non disponibili

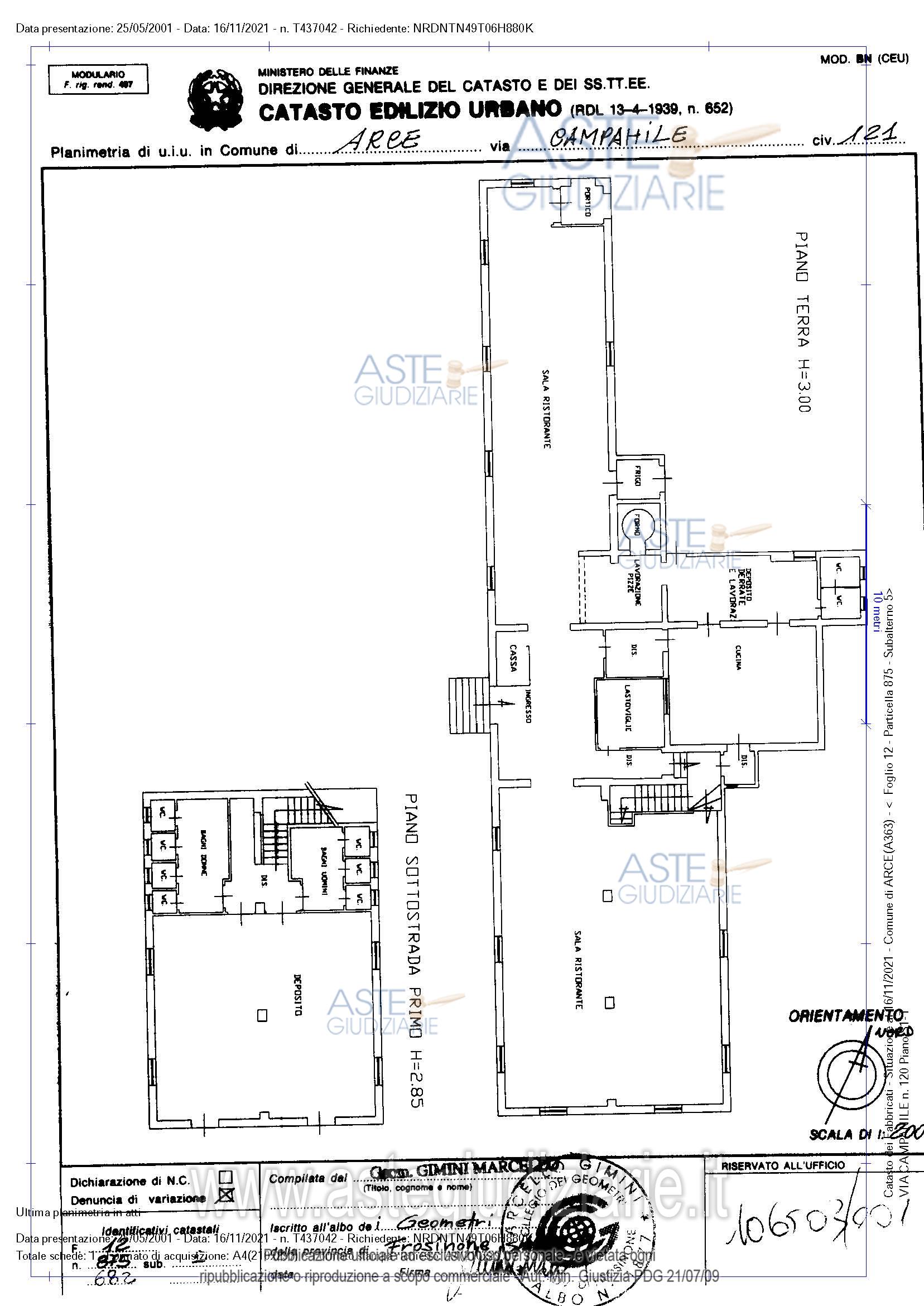
Locale ristorante ubicato a Arce (FR)

Indirizzo
Via Campanile 120, Arce (FR)


Codice asta
4246067


Lotto
Lotto unico


Numero beni
1


Genere
Immobili


Categoria
Immobile commerciale


Valore di stima
-


Fabbricati costruiti per esigenze commerciali

Locale ristorante ubicato a Arce (FR) in via Campanile n. 120 che si sviluppa su due livelli (PT e seminterrato) con circostante corte

Indirizzo
Via Campanile, 03032 Arce FR, Italia, Arce (FR)


Piano
-


Disponibilità
LIBER


Vani
-


Bagni
-


Metri quadri
-


Certificazione energetica
-


Dati catastali

Foglio:12, Particella:682, Graffato:graffiate sub 5


Data udienza
18/12/2025 ore 16:00


Tipo di vendita
Senza incanto


Modalità di vendita
Asincrona telematica


Luogo
N.A. -


Luogo presentazione offerte
-


Termine presentazione offerte
17/12/2025 ore 12:00


Prezzo base
€ 40.000,00


Offerta minima
€ 30.000,00


Rialzo minimo in caso di gara
€ 500,00


Deposito cauzionale
20% del prezzo offerto


Deposito in conto spese
-


Tribunale
Cassino

Tipo di procedura
Esecuzione immobiliare post legge 80

Ruolo
87/2021

Delegato alla vendita
Castellucci Elisa
(Procede alle operazioni di vendita)
(Gestisce la visita del bene)

Recapiti
Cell. 3476977057

Scheda COD. 4246067 - Pubblicata dal 30/10/2025

La presente scheda di vendita riporta integralmente informazioni e documenti pervenuti ufficialmente dal Ministero e dal professionista incaricato.

Pubblicazione notarizzata su Blockchain


Pubblicazione autorizzata dall’Autorità competente, è vietata ogni ripubblicazione o riproduzione anche parziale


Ti interessa questa vendita?

Documentazione

Visualizza su mappa

Mappa geografica del bene

Storico delle vendite

Data venditaPrezzo base
28/07/2022€ 210.000,00
03/11/2022€ 168.000,00
31/01/2023€ 134.400,00
27/04/2023€ 107.520,00
20/07/2023€ 86.016,00
06/02/2024€ 77.500,00
30/04/2024€ 62.000,00
25/09/2025€ 50.000,00
18/12/2025€ 40.000,00

Punti di interesse

Fonte dati

Nel raggio di {{range}}Km

Loading...
  • {{ getIcon(poi.type) }} {{ poi.localized }}: {{poi.count}}
  • {{ getIcon(poi.type) }} {{ poi.localized }}: {{poi.count}}
Dati non disponibili