Astegiudiziarie.it è parte di Rete Aste Network

Accedi o registrati

Non sei ancora registrato?

Oppure

Accedi

Fabbricato

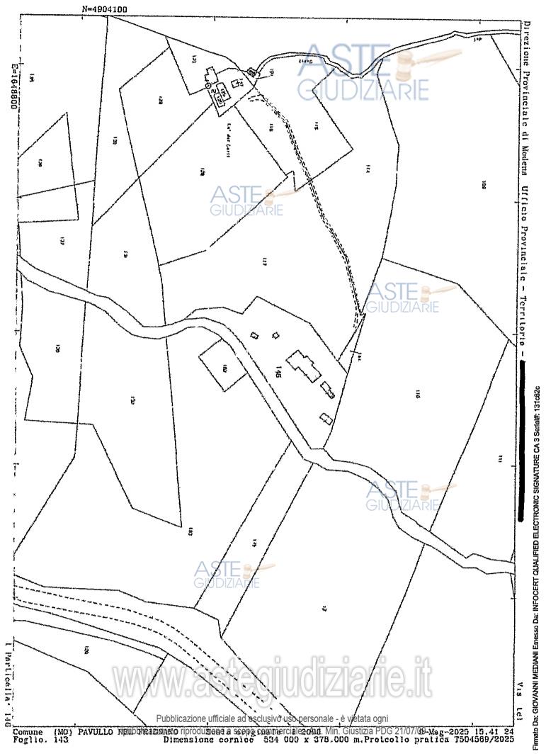
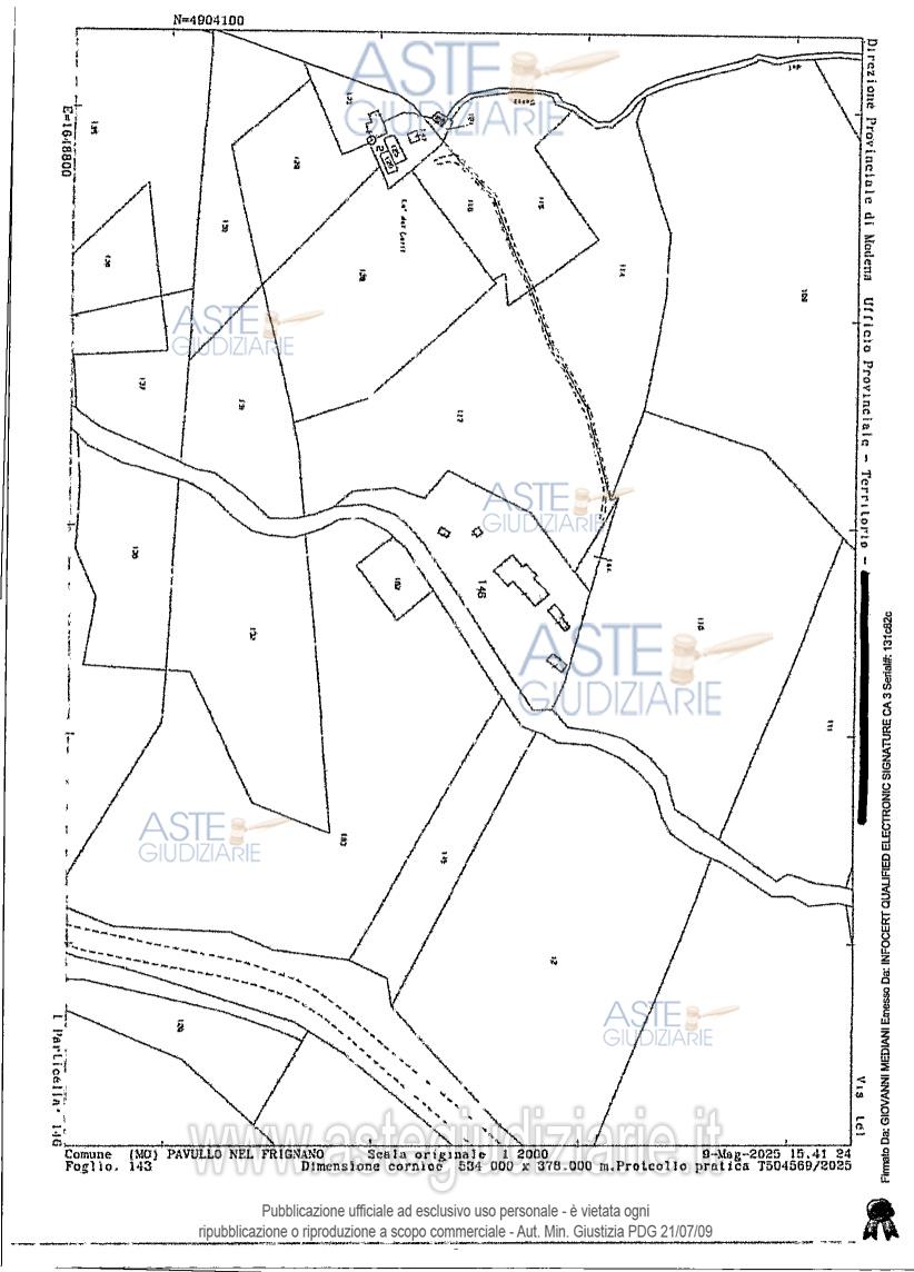
Via Fondovalle Vecchia, 42, ex via Gaiato 41026 Pavullo nel Frignano MO, Italia, Pavullo nel Frignano (MO)

€ 41.000,00

Offerta minima € 30.750,00


Codice A4344172

Lotto Lotto unico

Data udienza 09/04/2026 ore 10:30

Termine presentazione offerte 08/04/2026 ore 23:59

Fabbricato

Via Fondovalle Vecchia, 42, ex via Gaiato 41026 Pavullo nel Frignano MO, Italia, Pavullo nel Frignano (MO)

€ 41.000,00

Offerta minima € 30.750,00


Codice A4344172

Lotto Lotto unico

Data udienza 09/04/2026 ore 10:30

Termine presentazione offerte 08/04/2026 ore 23:59

Vendita deserta

Ti interessa questa vendita?

Documentazione

Visualizza su mappa

Mappa geografica del bene

Punti di interesse

Fonte dati

Nel raggio di {{range}}Km

Loading...
  • {{ getIcon(poi.type) }} {{ poi.localized }}: {{poi.count}}
  • {{ getIcon(poi.type) }} {{ poi.localized }}: {{poi.count}}
Dati non disponibili

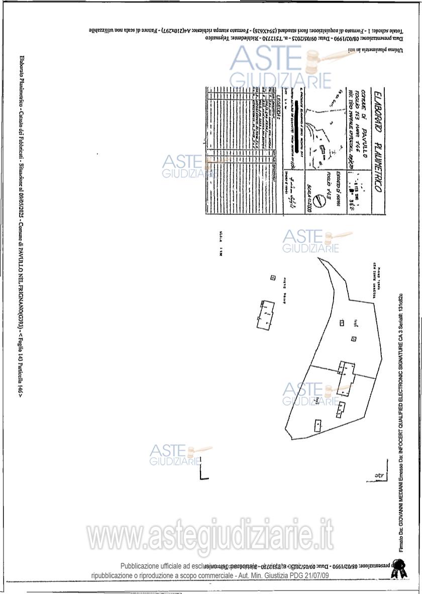
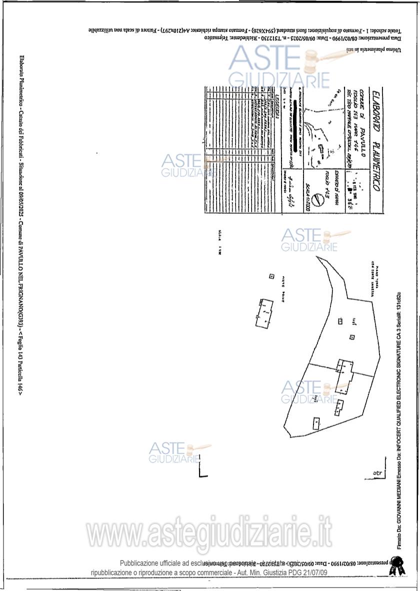
Porzione di fabbricato terra cielo composto da piano terra: tettoia, ingresso con vano scale e cucina, ampio ripostiglio (ex stalla) porticato, altro ripostiglio; primo piano: camera da letto con vano scala, altra camera da letto con balcone, disimpegno, bagno, ripostiglio; Altro fabbricato al piano terra suddiviso in 3 ripostigli, altro fabbricato ad uso di tettoia, il tutto circondato da area cortiliva su tre lati. Quota di comproprietà pari a 489,95/1000 della part.146 ente urbano di mq.5270

Indirizzo
Via Fondovalle Vecchia, 42, ex via Gaiato 41026 Pavullo nel Frignano MO, Italia, Pavullo nel Frignano (MO)


Codice asta
4344172


Lotto
Lotto unico


Numero beni
1


Genere
Immobili


Categoria
Immobile residenziale


Valore di stima
-


Fabbricato

Proprietà 1/1 di porzione di fabbricato terra cielo, libero su tre lati composto da al piano terra: tettoia, ingresso con vano scale e cucina, ampio ripostiglio (ex stalla) porticato, altro ripostiglio; primo piano: camera da letto con vano scala, altra camera da letto con balcone, disimpegno, bagno, ripostiglio; Altro fabbricato al piano terra suddiviso in tre ripostigli, altro fabbricato ad uso di tettoia, il tutto circondato da un’ampia area cortiliva su tre lati.Quota di comproprietà pari a 489,95/1000 della part.146 ente urbano di mq.5270

Indirizzo
Via Fondovalle Vecchia n.42, ex via Gaiato, Pavullo nel Frignano, MO, Italia, Pavullo nel Frignano (MO)


Piano
-


Disponibilità
Libero


Vani
6,00


Bagni
-


Metri quadri
2582,00


Certificazione energetica
-


Dati catastali

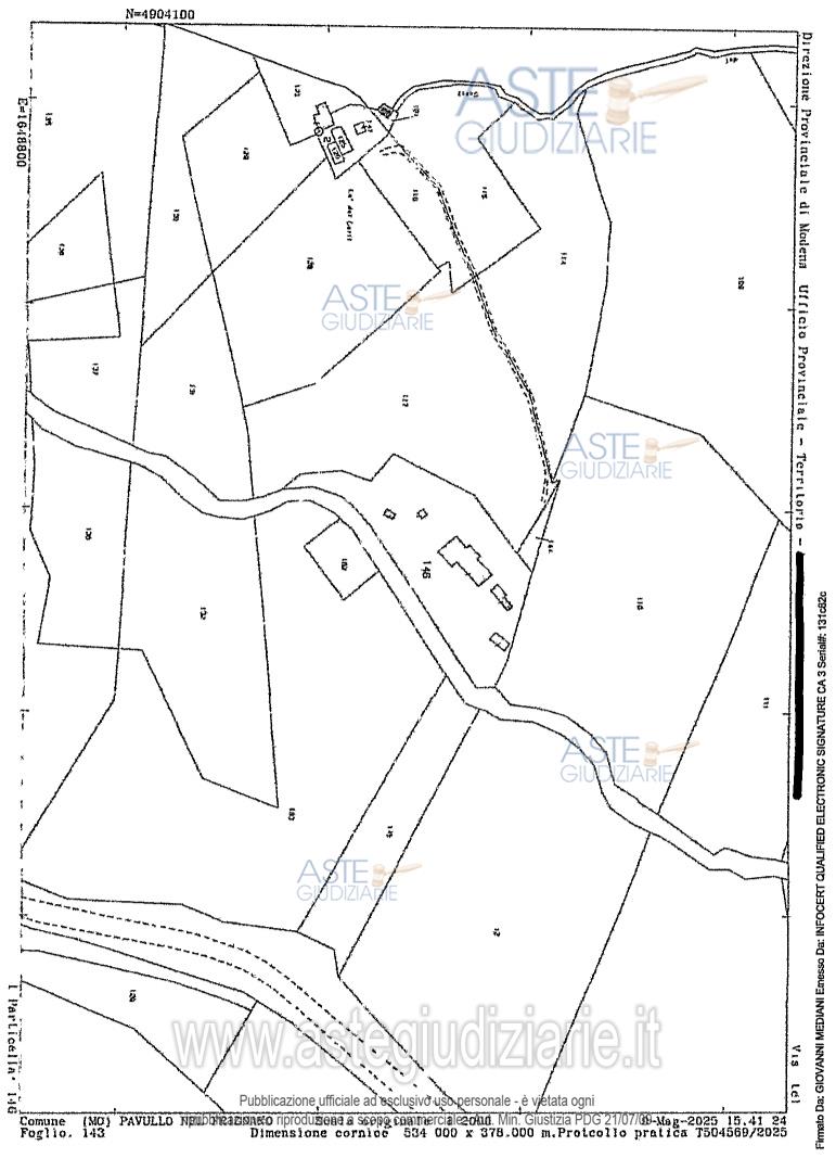
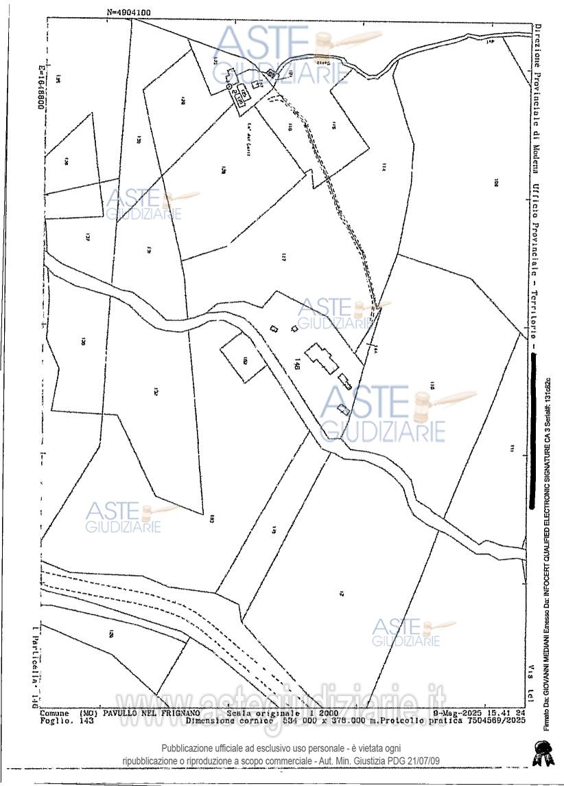
Foglio:143, Particella:146, Sub particella:4
Foglio:143, Particella:146, Sub particella:2
Foglio:143, Particella:146, Sub particella:ente urbano


Data udienza
09/04/2026 ore 10:30


Tipo di vendita
Senza incanto


Modalità di vendita
Asincrona telematica


Luogo
N.A. -


Luogo presentazione offerte
-


Termine presentazione offerte
08/04/2026 ore 23:59


Prezzo base
€ 41.000,00


Offerta minima
€ 30.750,00


Rialzo minimo in caso di gara
€ 2.000,00


Deposito cauzionale
-


Deposito in conto spese
-


Tribunale
Modena

Tipo di procedura
Espropriazione immobiliare (cartabia)

Ruolo
125/2024

Delegato alla vendita
Mondini Federica
(Procede alle operazioni di vendita)

Recapiti
Tel. 059216812

Email
studiolegale.avvmondini@gmail....

Custode giudiziario
Manelli Alex
(Gestisce la visita del bene)

Recapiti
Tel. 059847301

Email

Scheda COD. 4344172 - Pubblicata dal 06/02/2026

La presente scheda di vendita riporta integralmente informazioni e documenti pervenuti ufficialmente dal Ministero e dal professionista incaricato.


Pubblicazione autorizzata dall’Autorità competente, è vietata ogni ripubblicazione o riproduzione anche parziale


Ti interessa questa vendita?

Documentazione

Visualizza su mappa

Mappa geografica del bene

Punti di interesse

Fonte dati

Nel raggio di {{range}}Km

Loading...
  • {{ getIcon(poi.type) }} {{ poi.localized }}: {{poi.count}}
  • {{ getIcon(poi.type) }} {{ poi.localized }}: {{poi.count}}
Dati non disponibili