Astegiudiziarie.it è parte di Rete Aste Network

Accedi o registrati

Non sei ancora registrato?

Oppure

Accedi

Fabbricato in corso di costruzione

VIA ALLA SCUOLA DI AGRICOLTURA, 11, Genova (GE)

€ 1.368.535,00

Offerta minima € 1.026.401,25


Codice A4341554

Lotto Lotto unico

Data udienza 04/03/2026 ore 15:00

Termine presentazione offerte 02/03/2026 ore 12:00

Fabbricato in corso di costruzione

VIA ALLA SCUOLA DI AGRICOLTURA, 11, Genova (GE)

€ 1.368.535,00

Offerta minima € 1.026.401,25


Codice A4341554

Lotto Lotto unico

Data udienza 04/03/2026 ore 15:00

Termine presentazione offerte 02/03/2026 ore 12:00

Ti interessa questa vendita?

Documentazione

Visualizza su mappa

Mappa geografica del bene

Punti di interesse

Fonte dati

Nel raggio di {{range}}Km

Loading...
  • {{ getIcon(poi.type) }} {{ poi.localized }}: {{poi.count}}
  • {{ getIcon(poi.type) }} {{ poi.localized }}: {{poi.count}}
Dati non disponibili

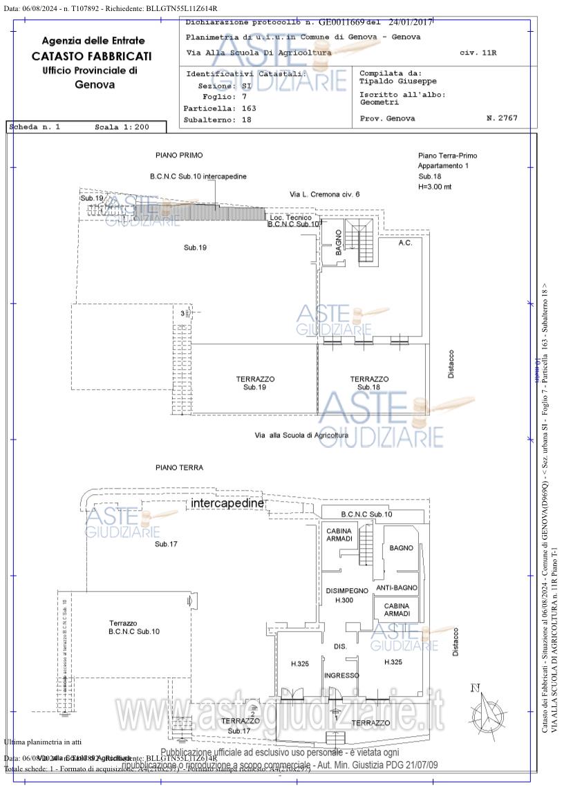
QUARTIERE DI SANT'ILARIO - PIENA PROPRIETA’ DI FABBRICATO IN COSTRUZIONE (due piani fuori terra, oltre al piano seminterrato occupato da garages e cantine), composto da n. 4 appartamenti identificati al Catasto fabbricati di Genova Sezione SI, Foglio 7, particella 163, sub 18,19,21,22, n. 3 cantine identificate al Catasto di Genova Sezione SI, Foglio 7, particella 163, sub 14,15,16 e n. 3 posti auto coperti id.ti al Catasto di Genova Sezione SI, Foglio 7, particella 163, sub 11,12,13, sup.ce circa mq 658.

Indirizzo
VIA ALLA SCUOLA DI AGRICOLTURA, 11, Genova (GE)


Codice asta
4341554


Lotto
Lotto unico


Numero beni
1


Genere
Immobili


Categoria
Immobile residenziale


Valore di stima
-


Fabbricato in corso di costruzione

QUARTIERE DI SANT'ILARIO - PIENA PROPRIETA’ DI FABBRICATO IN COSTRUZIONE (due piani fuori terra, oltre al piano seminterrato occupato da garages e cantine), composto da n. 4 appartamenti identificati al Catasto fabbricati di Genova Sezione SI, Foglio 7, particella 163, subalterni 18,19,21,22, n. 3 cantine identificate al Catasto fabbricati di Genova Sezione SI, Foglio 7, particella 163, subalterni 14,15,16 e n. 3 posti auto coperti identificati al Catasto fabbricati di Genova Sezione SI, Foglio 7, particella 163, subalterni 11,12,13, il tutto per una superfice complessiva di circa mq 658.

Indirizzo
VIA ALLA SCUOLA DI AGRICOLTURA 11R, Genova (GE)


Piano
piani da seminterrato a primo


Disponibilità
LIBERO


Vani
-


Bagni
-


Metri quadri
658,00


Certificazione energetica
-


Data udienza
04/03/2026 ore 15:00


Tipo di vendita
Senza incanto


Modalità di vendita
Sincrona mista


Luogo
Tribunale di Genova, Piazza Portoria 1, aula 46 terzo piano - Genova 16121


Luogo presentazione offerte
-


Termine presentazione offerte
02/03/2026 ore 12:00


Prezzo base
€ 1.368.535,00


Offerta minima
€ 1.026.401,25


Rialzo minimo in caso di gara
€ 5.000,00


Deposito cauzionale
10% del prezzo offerto


Deposito in conto spese
-


Tribunale
Genova

Tipo di procedura
Espropriazione immobiliare (cartabia)

Ruolo
203/2024

Delegato alla vendita
Rebora Danila
(Procede alle operazioni di vendita)

Recapiti
Tel. 0105705760

Email
danilarebora@gmail.com

Custode giudiziario
Sovemo s.r.l. 
(Gestisce la visita del bene)

Recapiti
Tel. 0105299253

Scheda COD. 4341554 - Pubblicata dal 30/12/2025

La presente scheda di vendita riporta integralmente informazioni e documenti pervenuti ufficialmente dal Ministero e dal professionista incaricato.


Pubblicazione autorizzata dall’Autorità competente, è vietata ogni ripubblicazione o riproduzione anche parziale


Ti interessa questa vendita?

Documentazione

Visualizza su mappa

Mappa geografica del bene

Punti di interesse

Fonte dati

Nel raggio di {{range}}Km

Loading...
  • {{ getIcon(poi.type) }} {{ poi.localized }}: {{poi.count}}
  • {{ getIcon(poi.type) }} {{ poi.localized }}: {{poi.count}}
Dati non disponibili