Astegiudiziarie.it è parte di Rete Aste Network

Accedi o registrati

Non sei ancora registrato?

Oppure

Accedi

Fabbricato in corso di costruzione

Località Querceto n. 338 - Podere Cuculo, Arezzo (AR)

€ 600.000,00

Offerta minima € 450.000,00


Codice A4338351

Lotto Lotto unico

Data udienza 22/01/2026 ore 12:00

Termine presentazione offerte 21/01/2026 ore 13:00

Fabbricato in corso di costruzione

Località Querceto n. 338 - Podere Cuculo, Arezzo (AR)

€ 600.000,00

Offerta minima € 450.000,00


Codice A4338351

Lotto Lotto unico

Data udienza 22/01/2026 ore 12:00

Termine presentazione offerte 21/01/2026 ore 13:00

Ti interessa questa vendita?

Documentazione

Visualizza su mappa

Mappa geografica del bene

Punti di interesse

Fonte dati

Nel raggio di {{range}}Km

Loading...
  • {{ getIcon(poi.type) }} {{ poi.localized }}: {{poi.count}}
  • {{ getIcon(poi.type) }} {{ poi.localized }}: {{poi.count}}
Dati non disponibili

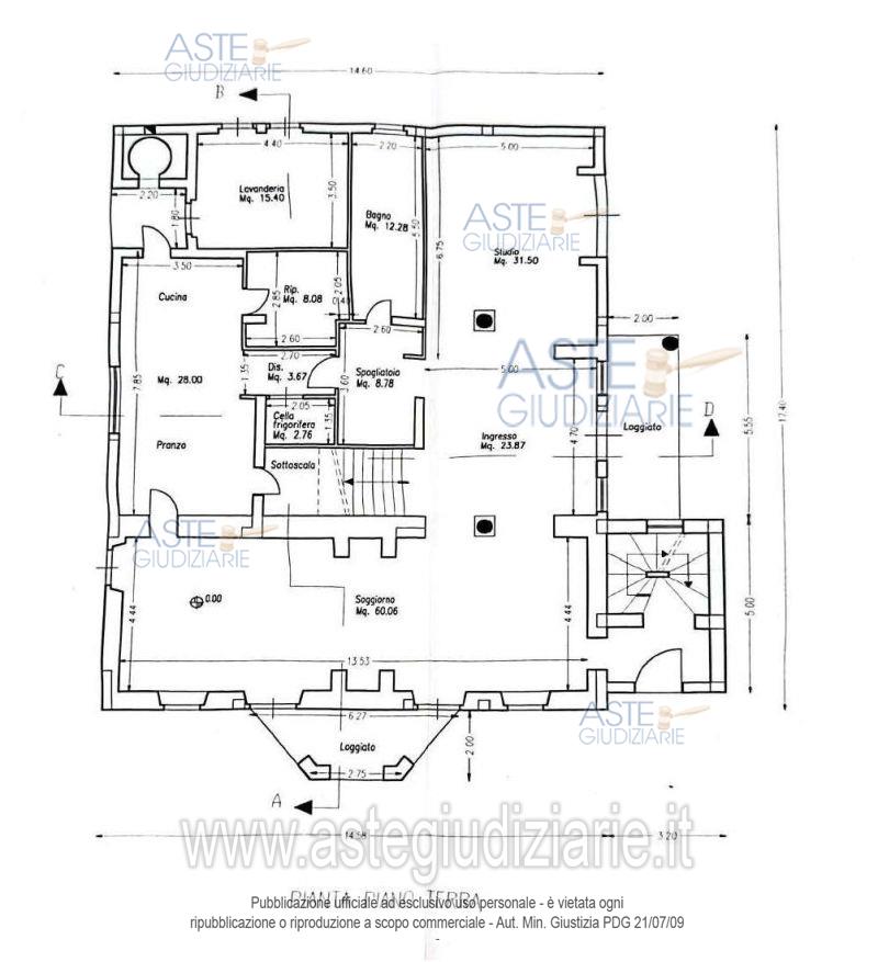
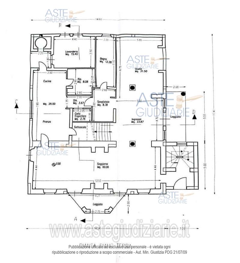
Fabbricato per civile abitazione al grezzo e non completato per tre piani fuori terra oltre ad un piano interrato, ubicato in posizione collinare e panoramica, composto da struttura portante in cemento armato e tamponature esterne con blocchi di laterizio, privo di serramenti ed infissi e mancante di finiture ed impianti, e numerosi appezzamenti di terreno agricolo di varia natura.

Indirizzo
Località Querceto n. 338 - Podere Cuculo, Arezzo (AR)


Codice asta
4338351


Lotto
Lotto unico


Numero beni
1


Genere
Immobili


Categoria
Immobile residenziale


Valore di stima
-


Fabbricato in corso di costruzione

Fabbricato per civile abitazione al grezzo e non completato per tre piani fuori terra oltre ad un piano interrato, ubicato in posizione collinare e panoramica, composto da struttura portante in cemento armato e tamponature esterne con blocchi di laterizio, privo di serramenti ed infissi e mancante di finiture ed impianti, e numerosi appezzamenti di terreno agricolo di varia natura alcuni ubicati in prossimità del fabbricato delimitati da recinzione metallica, alcuni posti nelle immediate vicinanze dell'immobile lungo il versante collinare posto ad ovest/sud-ovest del fabbricato, altri situati lungo il versante posto ad est del fabbricato, alcuni terreni in zone limitrofe all'area del fabbricato ed altri, principalmente di natura boschiva, situati a distanze maggiori. In prossimità dell'edificio è presente anche un piccolo fabbricato rurale ex rimessa attrezzi diruto e parzialmente crollato. Accesso principale su viabilità molto dissestata da cancello posto a sud-est del fabbricato direttamente da strada pubblica non pavimentata e accesso secondario da cancello su strada sterrata di proprietà discendente lungo il versante est del fabbricato che si congiunge alla Strada Statale SS73. Superficie commerciale totale fabbricato non completato: mq. 871,90=. Superficie complessiva terreno agricolo: 19 ettari 27 are e 39 centiare.

Indirizzo
Località Querceto n. 338 - Podere Cuculo, Arezzo (AR)


Piano
-


Disponibilità
-


Vani
-


Bagni
-


Metri quadri
-


Certificazione energetica
-


Data udienza
22/01/2026 ore 12:00


Tipo di vendita
Senza incanto


Modalità di vendita
Sincrona mista


Luogo
Piazza Falcone e Borsellino n. 1 C/O TRIBUNALE DI AREZZO - Arezzo 52100


Luogo presentazione offerte
-


Termine presentazione offerte
21/01/2026 ore 13:00


Prezzo base
€ 600.000,00


Offerta minima
€ 450.000,00


Rialzo minimo in caso di gara
€ 5.000,00


Deposito cauzionale
10% del prezzo offerto


Deposito in conto spese
-


Tribunale
Arezzo

Tipo di procedura
Espropriazione immobiliare (cartabia)

Ruolo
106/2024

Giudice
Rodinò di miglione Elisabetta

Recapiti
-

Email
-

Delegato alla vendita
Stefani Lucia
(Procede alle operazioni di vendita)

Recapiti
Tel. 0575355443

Email
lucia_stefani@libero.it

Custode giudiziario
Istituto vendite giudiziarie arezzo – siena 
(Gestisce la visita del bene)

Recapiti
Cell. 3397337017
Tel. 0577318111

Scheda COD. 4338351 - Pubblicata dal 04/11/2025

La presente scheda di vendita riporta integralmente informazioni e documenti pervenuti ufficialmente dal Ministero e dal professionista incaricato.


Pubblicazione autorizzata dall’Autorità competente, è vietata ogni ripubblicazione o riproduzione anche parziale


Ti interessa questa vendita?

Documentazione

Visualizza su mappa

Mappa geografica del bene

Punti di interesse

Fonte dati

Nel raggio di {{range}}Km

Loading...
  • {{ getIcon(poi.type) }} {{ poi.localized }}: {{poi.count}}
  • {{ getIcon(poi.type) }} {{ poi.localized }}: {{poi.count}}
Dati non disponibili