Astegiudiziarie.it è parte di Rete Aste Network

Accedi o registrati

Non sei ancora registrato?

Oppure

Accedi

Fabbricato

Frazione Tavernago snc, Agazzano (PC)

€ 738.651,00

Offerta minima € 553.988,25


Codice A4293613

Lotto Lotto unico

Data udienza 23/06/2026 ore 10:00

Termine presentazione offerte 22/06/2026 ore 12:30

Fabbricato

Frazione Tavernago snc, Agazzano (PC)

€ 738.651,00

Offerta minima € 553.988,25


Codice A4293613

Lotto Lotto unico

Data udienza 23/06/2026 ore 10:00

Termine presentazione offerte 22/06/2026 ore 12:30

Ti interessa questa vendita?

Documentazione

Visualizza su mappa

Mappa geografica del bene

Punti di interesse

Fonte dati

Nel raggio di {{range}}Km

Loading...
  • {{ getIcon(poi.type) }} {{ poi.localized }}: {{poi.count}}
  • {{ getIcon(poi.type) }} {{ poi.localized }}: {{poi.count}}
Dati non disponibili

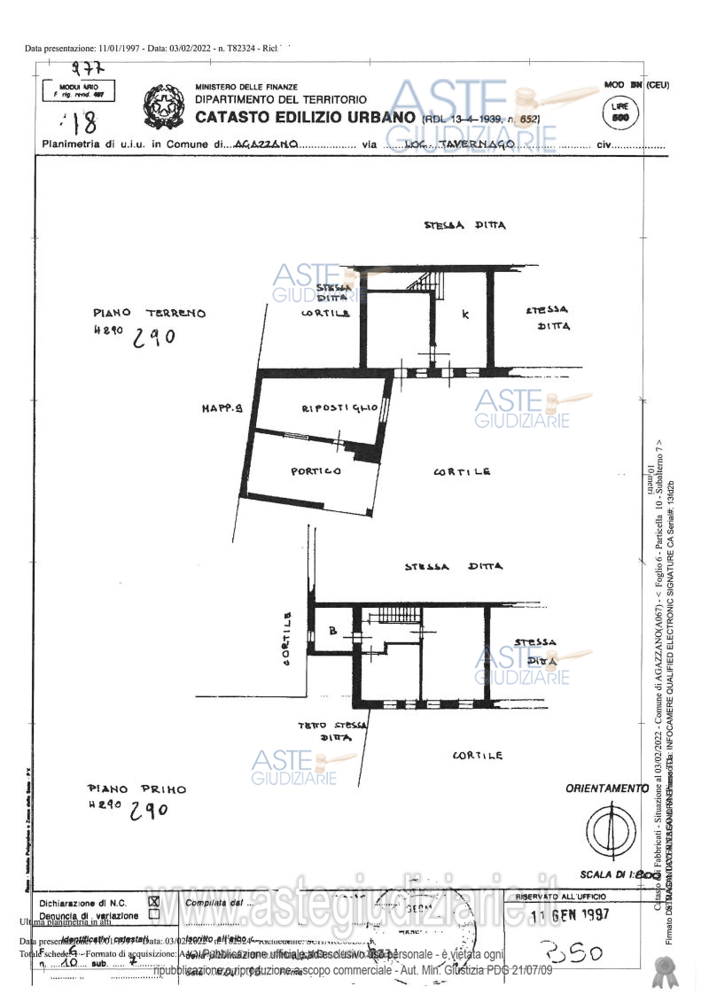
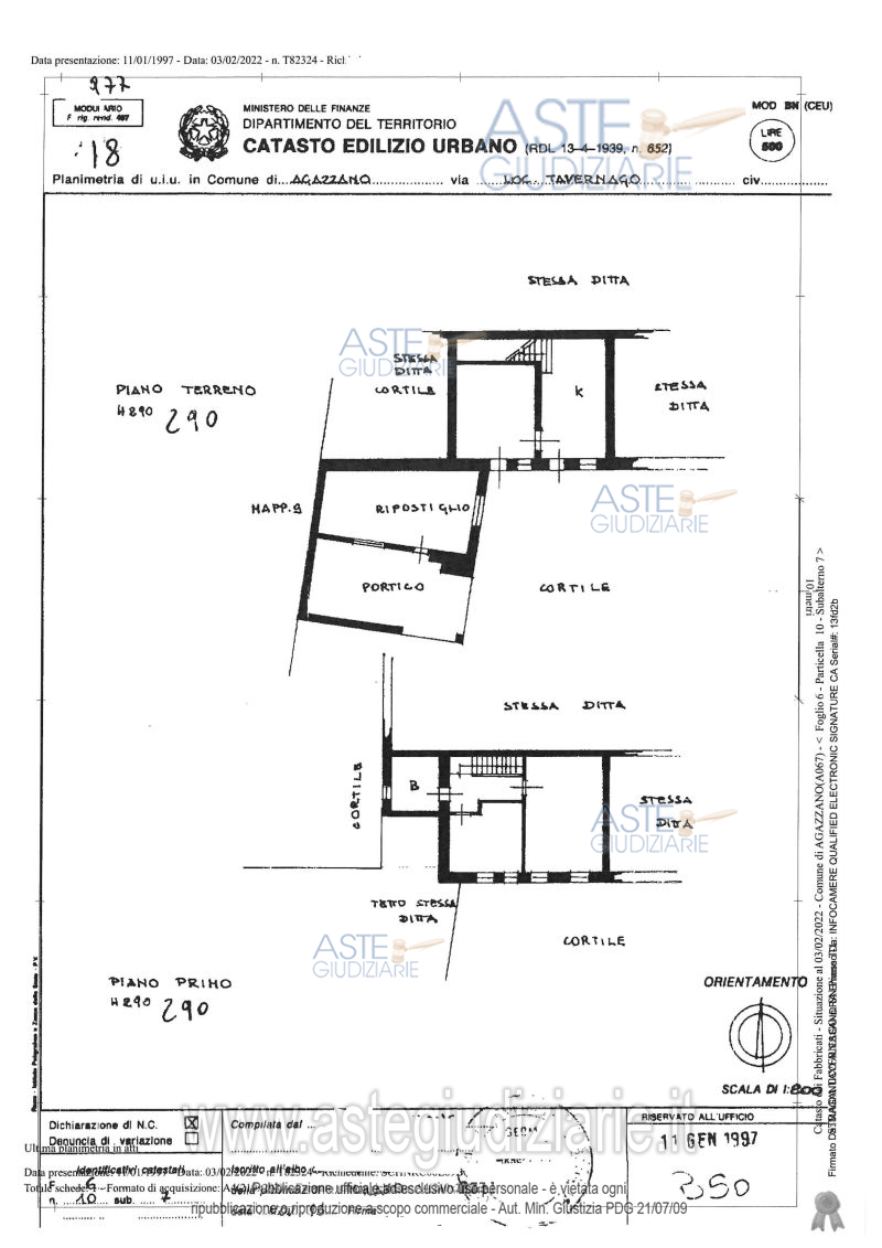
Terreni per mq 139.833, complesso di fabbricati rustici dismessi e diroccati per mq 3.372,00 che insistono su un'area di mq 12.151,00.

Indirizzo
Frazione Tavernago snc, Agazzano (PC)


Codice asta
4293613


Lotto
Lotto unico


Numero beni
1


Genere
Immobili


Categoria
Immobile residenziale


Valore di stima
-


Fabbricato

Terreni per mq 139.833, complesso di fabbricati rustici dismessi e diroccati per mq 3.372,00 che insistono su un'area di mq 12.151,00.

Indirizzo
Frazione Tavernago snc, Agazzano (PC)


Piano
-


Disponibilità
LIBERO


Vani
-


Bagni
-


Metri quadri
14860,00


Certificazione energetica
-


Data udienza
23/06/2026 ore 10:00


Tipo di vendita
Senza incanto


Modalità di vendita
Asincrona telematica


Luogo
N.A. -


Luogo presentazione offerte
-


Termine presentazione offerte
22/06/2026 ore 12:30


Prezzo base
€ 738.651,00


Offerta minima
€ 553.988,25


Rialzo minimo in caso di gara
€ 2.000,00


Deposito cauzionale
10% del prezzo offerto


Deposito in conto spese
-


Tribunale
Piacenza

Tipo di procedura
Esecuzione immobiliare post legge 80

Ruolo
31/2021

Giudice
Sciurpa Maria rosaria

Recapiti
-

Email
-

Delegato alla vendita
Valla Davide
(Procede alle operazioni di vendita)

Recapiti
-

Email
piacenza@custodigiudiziari.it

Custode giudiziario
Poggi Michela
(Gestisce la visita del bene)

Recapiti
Tel. 05231480102

Scheda COD. 4293613 - Pubblicata dal 15/04/2026

La presente scheda di vendita riporta integralmente informazioni e documenti pervenuti ufficialmente dal Ministero e dal professionista incaricato.


Pubblicazione autorizzata dall’Autorità competente, è vietata ogni ripubblicazione o riproduzione anche parziale


Ti interessa questa vendita?

Documentazione

Visualizza su mappa

Mappa geografica del bene

Storico delle vendite

Data venditaPrezzo base
21/03/2024€ 1.094.297,00
03/04/2025€ 820.723,00
18/09/2025€ 738.651,00
23/06/2026€ 738.651,00

Punti di interesse

Fonte dati

Nel raggio di {{range}}Km

Loading...
  • {{ getIcon(poi.type) }} {{ poi.localized }}: {{poi.count}}
  • {{ getIcon(poi.type) }} {{ poi.localized }}: {{poi.count}}
Dati non disponibili