Astegiudiziarie.it è parte di Rete Aste Network

Accedi o registrati

Non sei ancora registrato?

Oppure

Accedi

Edifici a destinazione particolare

Località Sassi Turchini, Porto Azzurro (LI)

€ 294.750,00

Offerta minima € 222.000,00


Codice A4307189

Lotto Lotto unico

Data udienza 18/02/2026 ore 12:00

Termine presentazione offerte 17/02/2026 ore 12:00

Edifici a destinazione particolare

Località Sassi Turchini, Porto Azzurro (LI)

€ 294.750,00

Offerta minima € 222.000,00


Codice A4307189

Lotto Lotto unico

Data udienza 18/02/2026 ore 12:00

Termine presentazione offerte 17/02/2026 ore 12:00

Vendita deserta

Ti interessa questa vendita?

Documentazione

Visualizza su mappa

Mappa geografica del bene

Punti di interesse

Fonte dati

Nel raggio di {{range}}Km

Loading...
  • {{ getIcon(poi.type) }} {{ poi.localized }}: {{poi.count}}
  • {{ getIcon(poi.type) }} {{ poi.localized }}: {{poi.count}}
Dati non disponibili

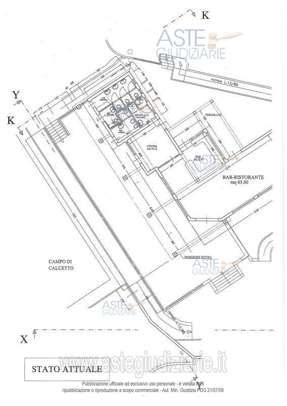
Trattasi di area adibita a parco giochi ad oggi in abbandono con sovrastante struttura ex ristorante - pizzeria e volumi accessori. Il lotto è formato da sei particelle urbane limitrofe. Unità ad uso ricettivo con destinazione catastale D3, categoria in cui sono inseriti i parchi giochi.

Indirizzo
Località Sassi Turchini, Porto Azzurro (LI)


Codice asta
4307189


Lotto
Lotto unico


Numero beni
1


Genere
Immobili


Categoria
Altra categoria


Valore di stima
-


Edifici a destinazione particolare

Trattasi di area adibita a parco giochi ad oggi in abbandono con sovrastante struttura ex ristorante - pizzeria e volumi accessori. Il lotto è formato da sei particelle urbane limitrofe. Unità ad uso ricettivo con destinazione catastale D3, categoria in cui sono inseriti i parchi giochi.

Indirizzo
Località Sassi Turchini, Porto Azzurro (LI)


Piano
-


Disponibilità
-


Vani
-


Bagni
-


Metri quadri
16495,00


Certificazione energetica
-


Data udienza
18/02/2026 ore 12:00


Tipo di vendita
Senza incanto


Modalità di vendita
Asincrona telematica


Luogo
N.A. -


Luogo presentazione offerte
-


Termine presentazione offerte
17/02/2026 ore 12:00


Prezzo base
€ 294.750,00


Offerta minima
€ 222.000,00


Rialzo minimo in caso di gara
€ 5.000,00


Deposito cauzionale
10% del prezzo offerto


Deposito in conto spese
-


Tribunale
Livorno

Tipo di procedura
Esecuzione immobiliare post legge 80

Ruolo
200/2020

Giudice
Capurso Simona

Recapiti
-

Email
-

Delegato alla vendita
Spinelli Elena
(Procede alle operazioni di vendita)

Recapiti
-

Email
-

Custode giudiziario
Spinelli Elena
(Gestisce la visita del bene)

Recapiti
Cell. 338-2011498

Email

Scheda COD. 4307189 - Pubblicata dal 12/12/2025

La presente scheda di vendita riporta integralmente informazioni e documenti pervenuti ufficialmente dal Ministero e dal professionista incaricato.

Pubblicazione notarizzata su Blockchain


Pubblicazione autorizzata dall’Autorità competente, è vietata ogni ripubblicazione o riproduzione anche parziale



Attenzione: Non è dovuto alcun compenso (né a titolo di intermediazione, né per vedere l’immobile, né per ricevere istruzioni sulle modalità di presentazione dell’offerta, né a nessun altro titolo), se ci si rivolge a persone incaricate dal Tribunale (custode, professionista delegato, curatore, società incaricata di gestire la vendita). La pubblicità relativa a questo bene immobile, venduto dal Tribunale nella procedura indicata, potrebbe essere inserita su portali immobiliari, anche da altri soggetti non incaricati dal Tribunale. Se l’interessato all’acquisto si rivolge a questi ultimi, potrebbe essergli richiesto di pagare spese o compensi di mediazione o consulenza.


Ti interessa questa vendita?

Documentazione

Visualizza su mappa

Mappa geografica del bene

Storico delle vendite

Data venditaPrezzo base
04/10/2024€ 524.000,00
17/09/2025€ 393.000,00
18/02/2026€ 294.750,00

Punti di interesse

Fonte dati

Nel raggio di {{range}}Km

Loading...
  • {{ getIcon(poi.type) }} {{ poi.localized }}: {{poi.count}}
  • {{ getIcon(poi.type) }} {{ poi.localized }}: {{poi.count}}
Dati non disponibili