Astegiudiziarie.it è parte di Rete Aste Network

Accedi o registrati

Non sei ancora registrato?

Oppure

Accedi

Fabbricati costruiti per esigenze commerciali, laboratorio artigiano, negozio, magazzino

Via Leopardi, Cecina (LI)

€ 616.896,00

Offerta minima -


Codice A4302522

Lotto 408

Data vendita 27/05/2026 ore 09:00

Termine presentazione offerte -

Fabbricati costruiti per esigenze commerciali, laboratorio artigiano, negozio, magazzino

Via Leopardi, Cecina (LI)

€ 616.896,00

Offerta minima -


Codice A4302522

Lotto 408

Data Vendita 27/05/2026 ore 09:00

Termine presentazione offerte -

Ti interessa questa vendita?

Documentazione

Visualizza su mappa

Mappa geografica del bene

Punti di interesse

Fonte dati

Nel raggio di {{range}}Km

Loading...
  • {{ getIcon(poi.type) }} {{ poi.localized }}: {{poi.count}}
  • {{ getIcon(poi.type) }} {{ poi.localized }}: {{poi.count}}
Dati non disponibili

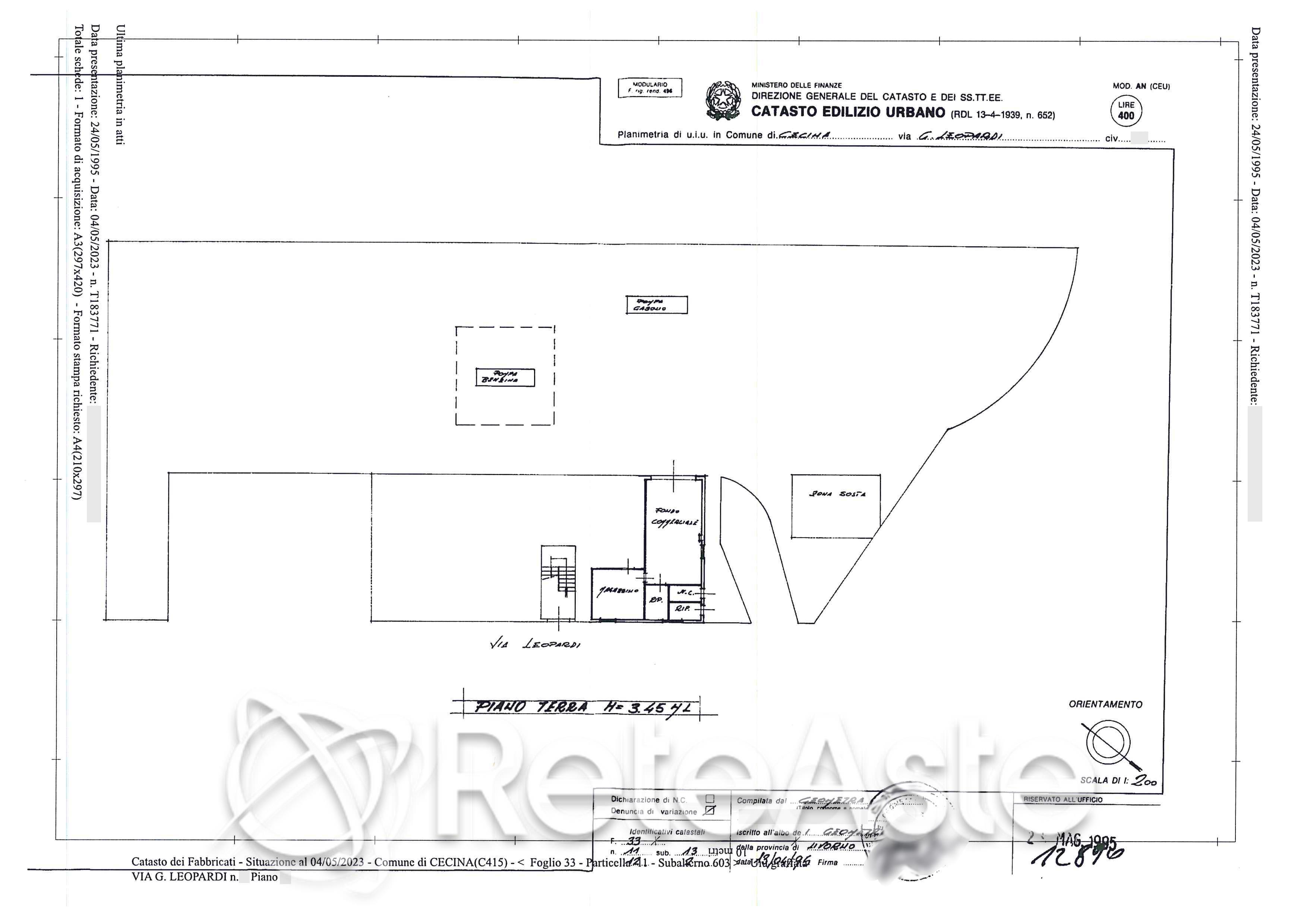
Il complesso edilizio è posto all'interno di un'area residenziale e commerciale sviluppato su quattro piani, di cui tre fuori terra ed un interrato.

Indirizzo
Via Leopardi, Cecina (LI)


Codice asta
4302522


Lotto
408


Numero beni
5


Genere
Immobili


Categoria
Immobile commerciale


Valore di stima
-


Fabbricati costruiti per esigenze commerciali

Area esterna adibita alla distribuzione carburanti e a parcheggio.

Indirizzo
Via Leopardi, Cecina (LI)


Piano
-


Disponibilità
è in essere regolare contratto di locazione. Il conduttore può esercitare il diritto di prelazione in caso di vendita.


Vani
-


Bagni
-


Metri quadri
26,00


Certificazione energetica
-


Laboratorio artigiano

Fondo connesso all’attività di rifornimento carburanti e destinato ad officina meccanica per riparazioni auto.

Indirizzo
Via Leopardi, Cecina (LI)


Piano
-


Disponibilità
è in essere regolare contratto di locazione. Il conduttore può esercitare il diritto di prelazione in caso di vendita.


Vani
-


Bagni
-


Metri quadri
46,00


Certificazione energetica
-


Negozio

Fondo sviluppato su due livelli (piano terreno e piano seminterrato) e composto da un locale adibito alla ristorazione, un locale laboratorio/confezionamento prodotti e da un blocco servizi igienici e spogliatoio al piano terra, ampio magazzino al piano seminterrato.

Indirizzo
Via Leopardi, Cecina (LI)


Piano
-


Disponibilità
-


Vani
-


Bagni
-


Metri quadri
181,00


Certificazione energetica
-


Magazzino

Magazzino di mq. catastali 159 al piano primo seminterrato, con accesso da scala comune.

Indirizzo
Via Leopardi, Cecina (LI)


Piano
-


Disponibilità
-


Vani
-


Bagni
-


Metri quadri
159,00


Certificazione energetica
-


Magazzino

Magazzino di mq. catastale 13 al piano primo seminterrato.

Indirizzo
Via Leopardi, Cecina (LI)


Piano
-


Disponibilità
-


Vani
-


Bagni
-


Metri quadri
13,00


Certificazione energetica
-


Data vendita
27/05/2026 ore 09:00


Tipo di vendita
Invito a manifestare interesse


Modalità di vendita
Presso il venditore


Luogo
-


Luogo presentazione offerte
-


Termine presentazione offerte
-


Prezzo base
€ 616.896,00


Offerta minima
-


Rialzo minimo in caso di gara
-


Deposito cauzionale
-


Deposito in conto spese
-


Tribunale
Livorno

Tipo di procedura
Ricorso per omologazione piano di ristrutturazione

Ruolo
1/2024

Soggetto specializzato alla vendita
Rete aste real estate 
(Procede alle operazioni di vendita)

Recapiti
-

Email
staffvendite@astetraprivati.it

Scheda COD. 4302522 - Pubblicata dal 13/04/2026

La presente scheda di vendita riporta integralmente informazioni e documenti pervenuti ufficialmente dal Ministero e dal professionista incaricato.

Pubblicazione notarizzata su Blockchain


Pubblicazione autorizzata dall’Autorità competente, è vietata ogni ripubblicazione o riproduzione anche parziale


Ti interessa questa vendita?

Documentazione

Visualizza su mappa

Mappa geografica del bene

Storico delle vendite

Data venditaPrezzo base
25/06/2024€ 761.600,00
01/10/2024€ 761.600,00
09/12/2024€ 761.600,00
11/02/2025€ 685.440,00
06/05/2025€ 685.440,00
23/07/2025€ 685.440,00
01/10/2025€ 685.440,00
25/11/2025€ 685.440,00
27/05/2026€ 616.896,00

Punti di interesse

Fonte dati

Nel raggio di {{range}}Km

Loading...
  • {{ getIcon(poi.type) }} {{ poi.localized }}: {{poi.count}}
  • {{ getIcon(poi.type) }} {{ poi.localized }}: {{poi.count}}
Dati non disponibili