Astegiudiziarie.it è parte di Rete Aste Network

Accedi o registrati

Non sei ancora registrato?

Oppure

Accedi

Deposito

Via Talete, 09047 Selargius CA, Italia, Selargius (CA)

€ 113.526,00

Offerta minima € 85.144,50


Codice A4177043

Lotto 3

Data udienza 13/01/2026 ore 16:00

Termine presentazione offerte 12/01/2026 ore 16:00

Deposito

Via Talete, 09047 Selargius CA, Italia, Selargius (CA)

€ 113.526,00

Offerta minima € 85.144,50


Codice A4177043

Lotto 3

Data udienza 13/01/2026 ore 16:00

Termine presentazione offerte 12/01/2026 ore 16:00

Ti interessa questa vendita?

Documentazione

Visualizza su mappa

Mappa geografica del bene

Punti di interesse

Fonte dati

Nel raggio di {{range}}Km

Loading...
  • {{ getIcon(poi.type) }} {{ poi.localized }}: {{poi.count}}
  • {{ getIcon(poi.type) }} {{ poi.localized }}: {{poi.count}}
Dati non disponibili

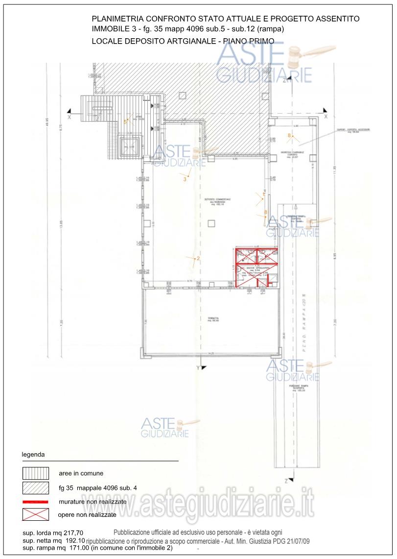
Intera Proprietà -Unità immobiliare sita in Comune di Selargius (CA) Via Talete, censita al N.C.E.U. al fg 35 mappale 4096 sub 5,ubicato al piano primo nella porzione a destra della scala esterna del maggior fabbricato (guardandolo dalla via Talete).L’immobile è destinato a deposito commerciale all’ingrosso; si sviluppa su una superficie lorda di mq 217,70 (netta mq 192,10) ed una terrazza della superficie di 99,40 mq. L’altezza interna è di 4,80 m .Immobile non risulta completato

Indirizzo
Via Talete, 09047 Selargius CA, Italia, Selargius (CA)


Codice asta
4177043


Lotto
3


Numero beni
1


Genere
Immobili


Categoria
Immobile commerciale


Valore di stima
-


Deposito

Intera Proprietà -Unità immobiliare sita in Comune di Selargius (CA) Via Talete, censita al N.C.E.U. al fg 35 mappale 4096 sub 5,ubicato al piano primo nella porzione a destra della scala esterna del maggior fabbricato (guardandolo dalla via Talete).L’immobile è destinato a deposito commerciale all’ingrosso; si sviluppa su una superficie lorda di mq 217,70 (netta mq 192,10) ed una terrazza della superficie di 99,40 mq. L’altezza interna è di 4,80 m .Immobile non risulta completato

Indirizzo
Via Talete, 09047 Selargius CA, Italia, Selargius (CA)


Piano
-


Disponibilità
LIBERO


Vani
-


Bagni
-


Metri quadri
217,70


Certificazione energetica
-


Dati catastali

Foglio:35, Particella:4096, Subalterno:5


Data udienza
13/01/2026 ore 16:00


Tipo di vendita
Senza incanto


Modalità di vendita
Asincrona telematica


Luogo
-


Luogo presentazione offerte
-


Termine presentazione offerte
12/01/2026 ore 16:00


Prezzo base
€ 113.526,00


Offerta minima
€ 85.144,50


Rialzo minimo in caso di gara
€ 10.000,00


Deposito cauzionale
15000


Deposito in conto spese
-


Tribunale
Cagliari

Tipo di procedura
Esecuzione immobiliare post legge 80

Ruolo
266/2015

Giudice
Cocco Silvia

Recapiti
-

Email
-

Delegato alla vendita
Di fortunato Marco
(Procede alle operazioni di vendita)

Recapiti
Cell. 3356185295

Email
-

Custode giudiziario
Ivg di cagliari 
(Gestisce la visita del bene)

Recapiti
Tel. 0702299036

Scheda COD. 4177043 - Pubblicata dal 09/10/2025

La presente scheda di vendita riporta integralmente informazioni e documenti pervenuti ufficialmente dal Ministero e dal professionista incaricato.

Pubblicazione notarizzata su Blockchain


Pubblicazione autorizzata dall’Autorità competente, è vietata ogni ripubblicazione o riproduzione anche parziale


Ti interessa questa vendita?

Documentazione

Visualizza su mappa

Mappa geografica del bene

Storico delle vendite

Data venditaPrezzo base
05/05/2020€ 265.000,00
30/09/2022€ 265.000,00
06/02/2024€ 212.000,00
11/03/2025€ 180.200,00
08/07/2025€ 162.180,00
13/01/2026€ 113.526,00

Punti di interesse

Fonte dati

Nel raggio di {{range}}Km

Loading...
  • {{ getIcon(poi.type) }} {{ poi.localized }}: {{poi.count}}
  • {{ getIcon(poi.type) }} {{ poi.localized }}: {{poi.count}}
Dati non disponibili