Astegiudiziarie.it è parte di Rete Aste Network

Accedi o registrati

Non sei ancora registrato?

Oppure

Accedi

Deposito

Via Viella San Pietro 17, Marigliano (NA)

€ 18.000,00

Offerta minima € 13.500,00


Deposito

Via Viella San Pietro 17, Marigliano (NA)

€ 18.000,00

Offerta minima € 13.500,00


Codice A4335636

Lotto 5

Data udienza 05/03/2026 ore 10:00

Termine presentazione offerte 04/03/2026 ore 12:00

Ti interessa questa vendita?

Documentazione

Visualizza su mappa

Mappa geografica del bene

Punti di interesse

Fonte dati

Nel raggio di {{range}}Km

Loading...
  • {{ getIcon(poi.type) }} {{ poi.localized }}: {{poi.count}}
  • {{ getIcon(poi.type) }} {{ poi.localized }}: {{poi.count}}
Dati non disponibili

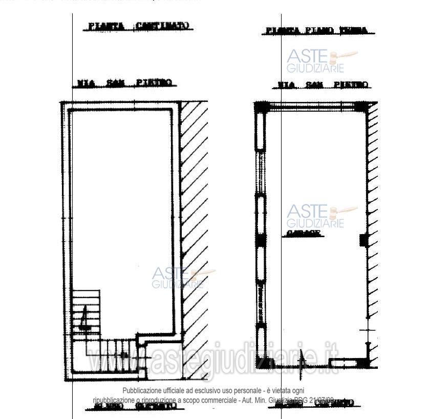
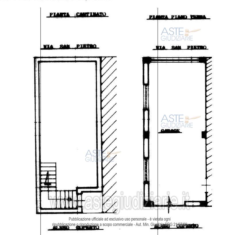
Locale deposito di 43 metri quadri, composto da locale terraneo con accesso indipendente diretto da strada, nonché dal limitrofo androne di ingresso del fabbricato di afferenza, alla via Nuova Isonzo. Il locale, che presenta una conformazione planimetrica di tipo rettangolare e che oltre al varco di accesso è dotato di finestra sul retro (con affaccio su via San Pietro) è totalmente privo di partizioni e parzialmente di dotazioni impiantistiche e quasi totalmente privo di finiture, fatta eccezio

Indirizzo
Via Viella San Pietro 17, Marigliano (NA)


Codice asta
4335636


Lotto
5


Numero beni
1


Genere
Immobili


Categoria
Immobile commerciale


Valore di stima
-


Deposito

Locale deposito di 43 metri quadri, composto da locale terraneo con accesso indipendente diretto da strada, nonché dal limitrofo androne di ingresso del fabbricato di afferenza, alla via Nuova Isonzo. Il locale, che presenta una conformazione planimetrica di tipo rettangolare e che oltre al varco di accesso è dotato di finestra sul retro (con affaccio su via San Pietro) è totalmente privo di partizioni e parzialmente di dotazioni impiantistiche e quasi totalmente privo di finiture, fatta eccezione per quelle che residuano dall’intervento di rimozione delle partizioni e delle dotazioni impiantistiche pregresse.

Indirizzo
Via Viella San Pietro 17, Marigliano (NA)


Piano
-


Disponibilità
-


Vani
-


Bagni
-


Metri quadri
43,00


Certificazione energetica
-


Data udienza
05/03/2026 ore 10:00


Tipo di vendita
Senza incanto


Modalità di vendita
Asincrona telematica


Luogo
N.A. -


Luogo presentazione offerte
-


Termine presentazione offerte
04/03/2026 ore 12:00


Prezzo base
€ 18.000,00


Offerta minima
€ 13.500,00


Rialzo minimo in caso di gara
€ 500,00


Deposito cauzionale
10% del prezzo offerto


Deposito in conto spese
-


Tribunale
Nola

Tipo di procedura
Fallimentare (nuovo rito)

Ruolo
77/2011

Giudice
Napolitano Rosa

Recapiti
-

Email
-

Soggetto specializzato alla vendita
Aste giudiziarie inlinea spa 
(Procede alle operazioni di vendita)

Recapiti
Tel. 0586 201480

Email
vendite@astegiudiziarie.it

Curatore fallimentare
Osteria Monica

Recapiti
-

Email
-

Custode giudiziario
Aste giudiziarie inlinea spa 
(Gestisce la visita del bene)

Recapiti
Tel. 0586 201480

Scheda COD. 4335636 - Pubblicata dal 22/12/2025

La presente scheda di vendita riporta integralmente informazioni e documenti pervenuti ufficialmente dal Ministero e dal professionista incaricato.


Pubblicazione autorizzata dall’Autorità competente, è vietata ogni ripubblicazione o riproduzione anche parziale


Ti interessa questa vendita?

Documentazione

Visualizza su mappa

Mappa geografica del bene

Punti di interesse

Fonte dati

Nel raggio di {{range}}Km

Loading...
  • {{ getIcon(poi.type) }} {{ poi.localized }}: {{poi.count}}
  • {{ getIcon(poi.type) }} {{ poi.localized }}: {{poi.count}}
Dati non disponibili