Astegiudiziarie.it è parte di Rete Aste Network

Accedi o registrati

Non sei ancora registrato?

Oppure

Accedi

Deposito

FRAZ.CAPITIGNANO VIA SERRONI N.11, Giffoni Sei Casali (SA)

€ 9.810,00

Offerta minima € 7.360,00


Codice A1463871

Lotto 1

Data udienza 24/06/2026 ore 14:00

Termine presentazione offerte 23/06/2026 ore 12:00

Deposito

FRAZ.CAPITIGNANO VIA SERRONI N.11, Giffoni Sei Casali (SA)

€ 9.810,00

Offerta minima € 7.360,00


Codice A1463871

Lotto 1

Data udienza 24/06/2026 ore 14:00

Termine presentazione offerte 23/06/2026 ore 12:00

Ti interessa questa vendita?

Visualizza su mappa

Mappa geografica del bene

Punti di interesse

Fonte dati

Nel raggio di {{range}}Km

Loading...
  • {{ getIcon(poi.type) }} {{ poi.localized }}: {{poi.count}}
  • {{ getIcon(poi.type) }} {{ poi.localized }}: {{poi.count}}
Dati non disponibili

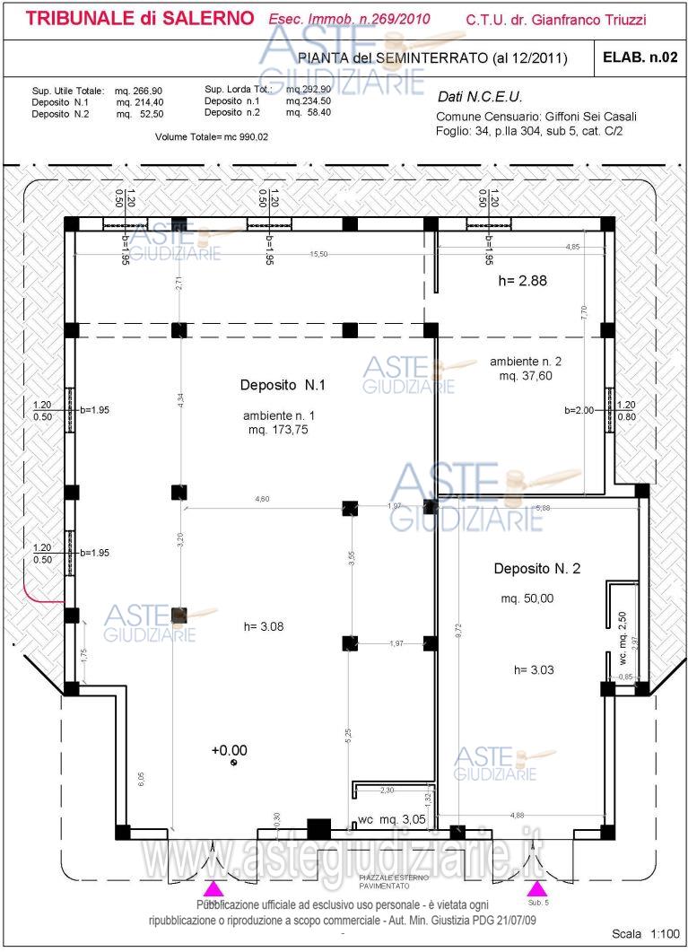
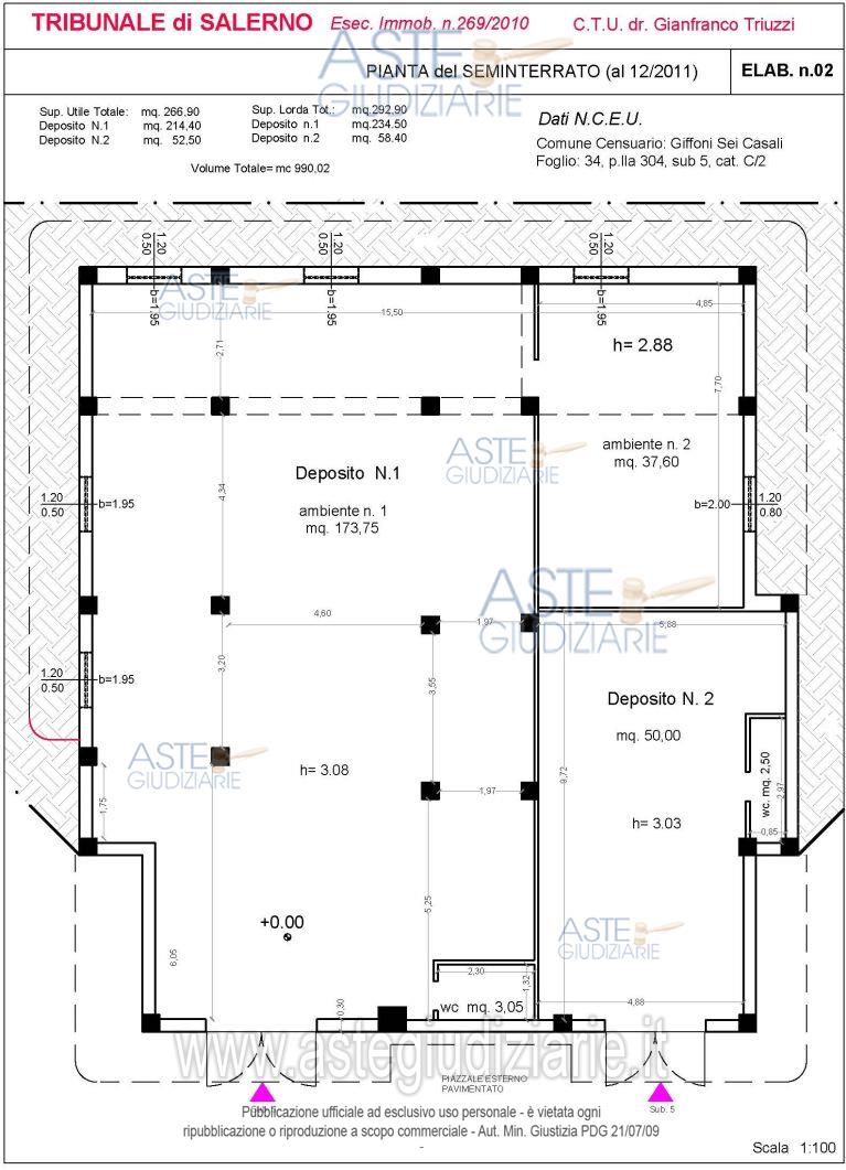
Deposito suddiviso in due distinti locali, completamente fuori terra su un lato e seminterrato sugli altri tre lati.

Indirizzo
FRAZ.CAPITIGNANO VIA SERRONI N.11, Giffoni Sei Casali (SA)


Codice asta
1463871


Lotto
1


Numero beni
1


Genere
Immobili


Categoria
Immobile commerciale


Valore di stima
-


Deposito

Deposito suddiviso in due distinti locali, completamente fuori terra su un lato e seminterrato sugli altri tre lati.

Indirizzo
FRAZ.CAPITIGNANO VIA SERRONI N.11, Giffoni Sei Casali (SA)


Piano
-


Disponibilità
-


Vani
1,00


Bagni
-


Metri quadri
243,00


Certificazione energetica
-


Data udienza
24/06/2026 ore 14:00


Tipo di vendita
Senza incanto


Modalità di vendita
Asincrona telematica


Luogo
N.A. -


Luogo presentazione offerte
-


Termine presentazione offerte
23/06/2026 ore 12:00


Prezzo base
€ 9.810,00


Offerta minima
€ 7.360,00


Rialzo minimo in caso di gara
€ 1.000,00


Deposito cauzionale
10% del prezzo offerto


Deposito in conto spese
-


Tribunale
Salerno

Tipo di procedura
Esecuzione immobiliare post legge 80

Ruolo
269/2010

Delegato alla vendita
Baselice Matteo
(Procede alle operazioni di vendita)

Recapiti
-

Email
-

Custode giudiziario
Baselice Matteo
(Gestisce la visita del bene)

Recapiti
-

Scheda COD. 1463871 - Pubblicata dal 29/04/2026

La presente scheda di vendita riporta integralmente informazioni e documenti pervenuti ufficialmente dal Ministero e dal professionista incaricato.

Pubblicazione notarizzata su Blockchain


Pubblicazione autorizzata dall’Autorità competente, è vietata ogni ripubblicazione o riproduzione anche parziale


Ti interessa questa vendita?

Visualizza su mappa

Mappa geografica del bene

Storico delle vendite

Data venditaPrezzo base
18/12/2018€ 35.859,38
14/01/2020€ 32.273,45
19/07/2023€ 32.273,45
08/05/2024€ 29.050,00
14/11/2024€ 21.800,00
06/05/2025€ 10.900,00
24/06/2026€ 9.810,00

Punti di interesse

Fonte dati

Nel raggio di {{range}}Km

Loading...
  • {{ getIcon(poi.type) }} {{ poi.localized }}: {{poi.count}}
  • {{ getIcon(poi.type) }} {{ poi.localized }}: {{poi.count}}
Dati non disponibili