Astegiudiziarie.it è parte di Rete Aste Network

Accedi o registrati

Non sei ancora registrato?

Oppure

Accedi

Deposito

via appia 75 km , Cisterna di Latina (LT)

€ 68.400,00

Offerta minima € 51.300,00


Codice A4335895

Lotto 1

Data udienza 24/02/2026 ore 11:00

Termine presentazione offerte 23/02/2026 ore 13:00

Deposito

via appia 75 km , Cisterna di Latina (LT)

€ 68.400,00

Offerta minima € 51.300,00


Codice A4335895

Lotto 1

Data udienza 24/02/2026 ore 11:00

Termine presentazione offerte 23/02/2026 ore 13:00

Ti interessa questa vendita?

Documentazione

Visualizza su mappa

Mappa geografica del bene

Punti di interesse

Fonte dati

Nel raggio di {{range}}Km

Loading...
  • {{ getIcon(poi.type) }} {{ poi.localized }}: {{poi.count}}
  • {{ getIcon(poi.type) }} {{ poi.localized }}: {{poi.count}}
Dati non disponibili

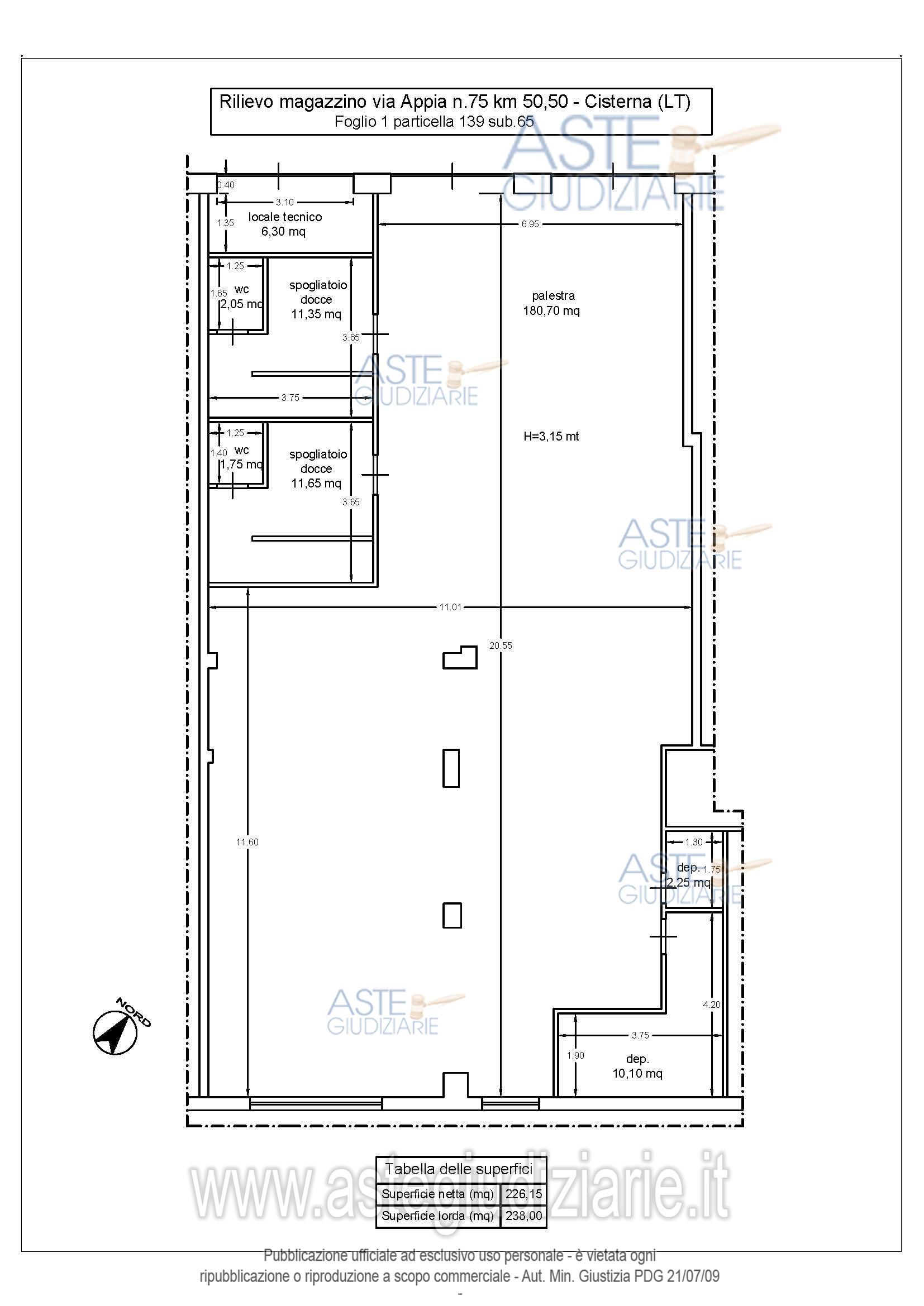
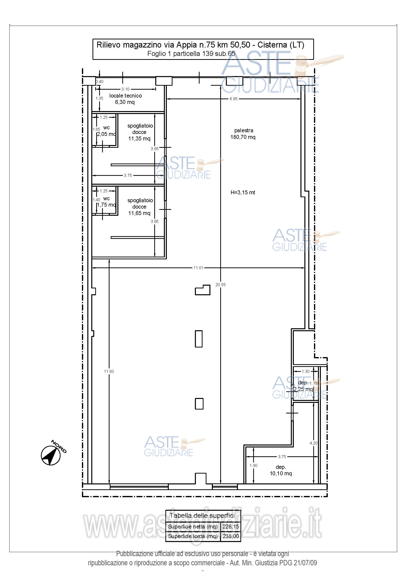
Piena ed esclusiva proprietà di locale magazzino ubicato a Cisterna di Latina (LT) - via Appia n. 75 km 50,50, interno A1, piano S1 costituito da un ampio locale palestra, deposti, spogliatoi e bagni.

Indirizzo
via appia 75 km , Cisterna di Latina (LT)


Codice asta
4335895


Lotto
1


Numero beni
1


Genere
Immobili


Categoria
Immobile commerciale


Valore di stima
-


Deposito

Piena ed esclusiva proprietà di locale magazzino ubicato a Cisterna di Latina (LT) - via Appia n. 75 km 50,50, interno A1, piano S1 costituito da un ampio locale palestra, deposti, spogliatoi e bagni.

Indirizzo
V. Appia, 75, 04012 Cisterna di Latina LT, Italia, Cisterna di Latina (LT)


Piano
S1


Disponibilità
OCCUPATO


Vani
-


Bagni
-


Metri quadri
100,00


Certificazione energetica
-


Dati catastali

Foglio:1, Particella:139, Subalterno:65


Data udienza
24/02/2026 ore 11:00


Tipo di vendita
Senza incanto


Modalità di vendita
Asincrona telematica


Luogo
N.A. -


Luogo presentazione offerte
-


Termine presentazione offerte
23/02/2026 ore 13:00


Prezzo base
€ 68.400,00


Offerta minima
€ 51.300,00


Rialzo minimo in caso di gara
€ 1.500,00


Deposito cauzionale
-


Deposito in conto spese
-


Tribunale
Latina

Tipo di procedura
Espropriazione immobiliare (cartabia)

Ruolo
25/2024

Giudice
Lulli Alessandra

Recapiti
-

Email
-

Delegato alla vendita
Santoro Diego maria
(Procede alle operazioni di vendita)

Recapiti
Cell. 3804158875

Email
legalisantorofisichella@gmail....

Custode giudiziario
Santoro Diego maria
(Gestisce la visita del bene)

Recapiti
Cell. 3804158875

Scheda COD. 4335895 - Pubblicata dal 02/01/2026

La presente scheda di vendita riporta integralmente informazioni e documenti pervenuti ufficialmente dal Ministero e dal professionista incaricato.


Pubblicazione autorizzata dall’Autorità competente, è vietata ogni ripubblicazione o riproduzione anche parziale


Ti interessa questa vendita?

Documentazione

Visualizza su mappa

Mappa geografica del bene

Storico delle vendite

Data venditaPrezzo base
26/11/2025€ 91.200,00
24/02/2026€ 68.400,00

Punti di interesse

Fonte dati

Nel raggio di {{range}}Km

Loading...
  • {{ getIcon(poi.type) }} {{ poi.localized }}: {{poi.count}}
  • {{ getIcon(poi.type) }} {{ poi.localized }}: {{poi.count}}
Dati non disponibili