Astegiudiziarie.it è parte di Rete Aste Network

Accedi o registrati

Non sei ancora registrato?

Oppure

Accedi

Convento, convitto o istituto similare

Via Filermo, Caneva (PN)

€ 25.500,00

Offerta minima € 19.125,00


Codice A4343689

Lotto 1

Data udienza 20/03/2026 ore 15:00

Termine presentazione offerte 19/03/2026 ore 12:00

Convento, convitto o istituto similare

Via Filermo, Caneva (PN)

€ 25.500,00

Offerta minima € 19.125,00


Codice A4343689

Lotto 1

Data udienza 20/03/2026 ore 15:00

Termine presentazione offerte 19/03/2026 ore 12:00

Ti interessa questa vendita?

Documentazione

Visualizza su mappa

Mappa geografica del bene

Punti di interesse

Fonte dati

Nel raggio di {{range}}Km

Loading...
  • {{ getIcon(poi.type) }} {{ poi.localized }}: {{poi.count}}
  • {{ getIcon(poi.type) }} {{ poi.localized }}: {{poi.count}}
Dati non disponibili

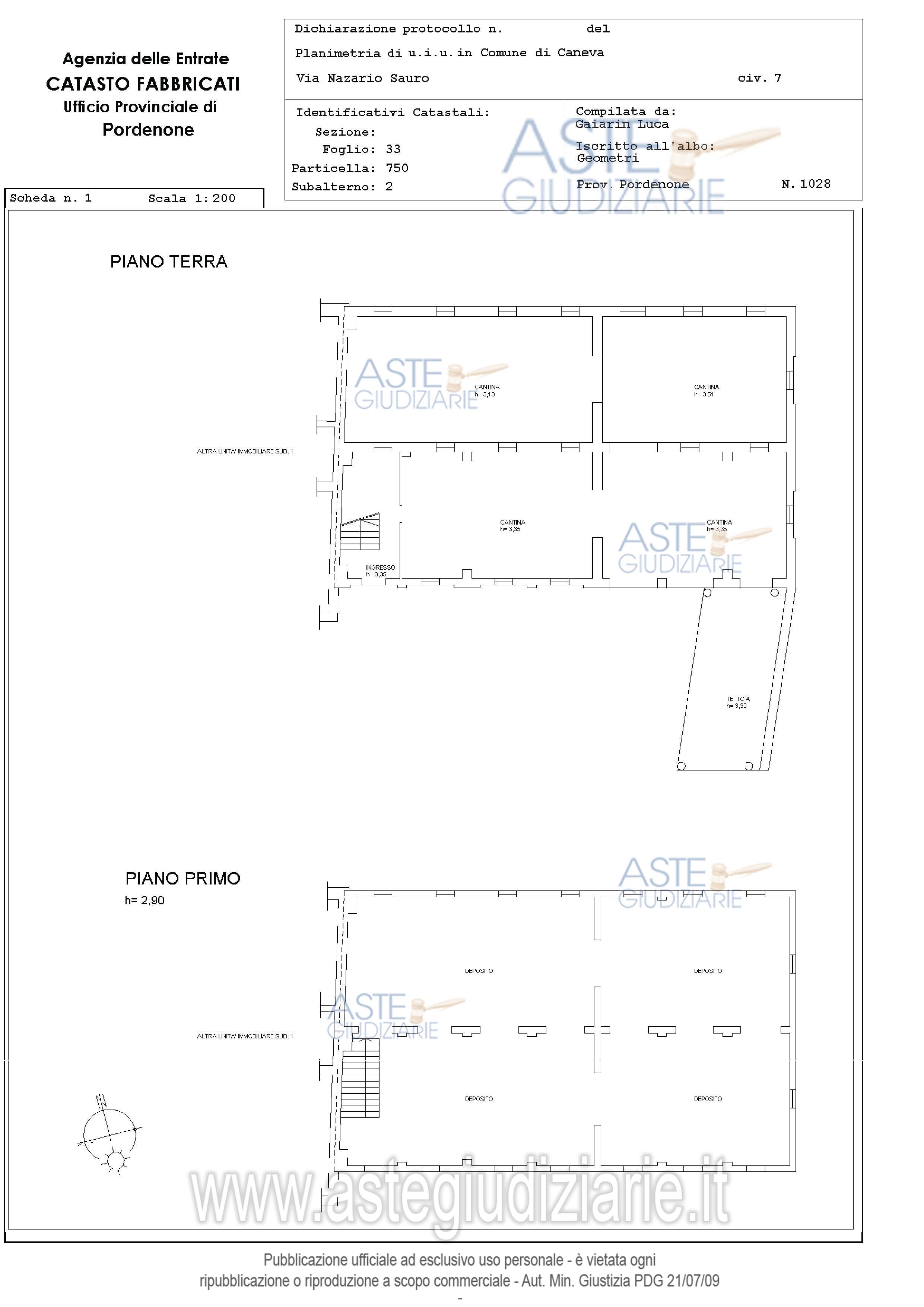
LOTTO PRIMO: Edificio con destinazione ad oratorio (storicamente e nella Chiesa cattolica, luogo, solitamente di piccole dimensioni, destinato al culto in favore di una comunità o di un gruppo di fedeli) che si sviluppa su un piano fuori terra, ubicato su un'area di pertinenza che occupa completamente l'area di base dell'edificio.

Indirizzo
Via Filermo, Caneva (PN)


Codice asta
4343689


Lotto
1


Numero beni
1


Genere
Immobili


Categoria
Altra categoria


Valore di stima
-


Convento, convitto o istituto similare

Edificio con destinazione ad oratorio (storicamente e nella Chiesa cattolica, luogo, solitamente di piccole dimensioni, destinato al culto in favore di una comunità o di un gruppo di fedeli) che si sviluppa su un piano fuori terra, ubicato su un'area di pertinenza che occupa completamente l'area di base dell'edificio.

Indirizzo
Via Filermo, Caneva (PN)


Piano
T


Disponibilità
Occupato


Vani
-


Bagni
-


Metri quadri
30,00


Certificazione energetica
-


Dati catastali

Foglio:33, Particella:242


Data udienza
20/03/2026 ore 15:00


Tipo di vendita
Senza incanto


Modalità di vendita
Sincrona mista


Luogo
presso la sala aste del Gruppo Edicom Spa in Pordenone, viale Marconi 22 nonché in via telematica tramite la piattaforma www.garavirtuale.it - Pordenone 33170


Luogo presentazione offerte
-


Termine presentazione offerte
19/03/2026 ore 12:00


Prezzo base
€ 25.500,00


Offerta minima
€ 19.125,00


Rialzo minimo in caso di gara
€ 1.000,00


Deposito cauzionale
10% del prezzo offerto


Deposito in conto spese
-


Tribunale
Pordenone

Tipo di procedura
Contenzioso civile

Ruolo
385/2018

Giudice
Tesco Elisa

Recapiti
-

Email
-

Delegato alla vendita
Pertegato Giorgio
(Procede alle operazioni di vendita)

Recapiti
-

Email
notaio@notaiopertegato.it

Custode giudiziario
Giudiziario Custode
(Gestisce la visita del bene)

Recapiti
Tel. 3294536349

Scheda COD. 4343689 - Pubblicata dal 29/01/2026

La presente scheda di vendita riporta integralmente informazioni e documenti pervenuti ufficialmente dal Ministero e dal professionista incaricato.

Pubblicazione notarizzata su Blockchain


Pubblicazione autorizzata dall’Autorità competente, è vietata ogni ripubblicazione o riproduzione anche parziale


Ti interessa questa vendita?

Documentazione

Visualizza su mappa

Mappa geografica del bene

Punti di interesse

Fonte dati

Nel raggio di {{range}}Km

Loading...
  • {{ getIcon(poi.type) }} {{ poi.localized }}: {{poi.count}}
  • {{ getIcon(poi.type) }} {{ poi.localized }}: {{poi.count}}
Dati non disponibili