Astegiudiziarie.it è parte di Rete Aste Network

Accedi o registrati

Non sei ancora registrato?

Oppure

Accedi

Fabbricati e locali per esercizi sportivi

Galleria Manzoni n. 1 , Montegrotto Terme (PD)

€ 96.000,00

Offerta minima € 72.000,00


Codice A4327841

Lotto 1

Data udienza 28/05/2026 ore 10:00

Termine presentazione offerte 27/05/2026 ore 12:00

Fabbricati e locali per esercizi sportivi

Galleria Manzoni n. 1 , Montegrotto Terme (PD)

€ 96.000,00

Offerta minima € 72.000,00


Codice A4327841

Lotto 1

Data udienza 28/05/2026 ore 10:00

Termine presentazione offerte 27/05/2026 ore 12:00

Ti interessa questa vendita?

Documentazione

Visualizza su mappa

Mappa geografica del bene

Punti di interesse

Fonte dati

Nel raggio di {{range}}Km

Loading...
  • {{ getIcon(poi.type) }} {{ poi.localized }}: {{poi.count}}
  • {{ getIcon(poi.type) }} {{ poi.localized }}: {{poi.count}}
Dati non disponibili

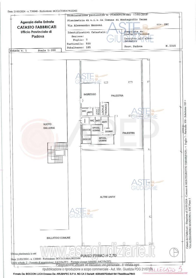
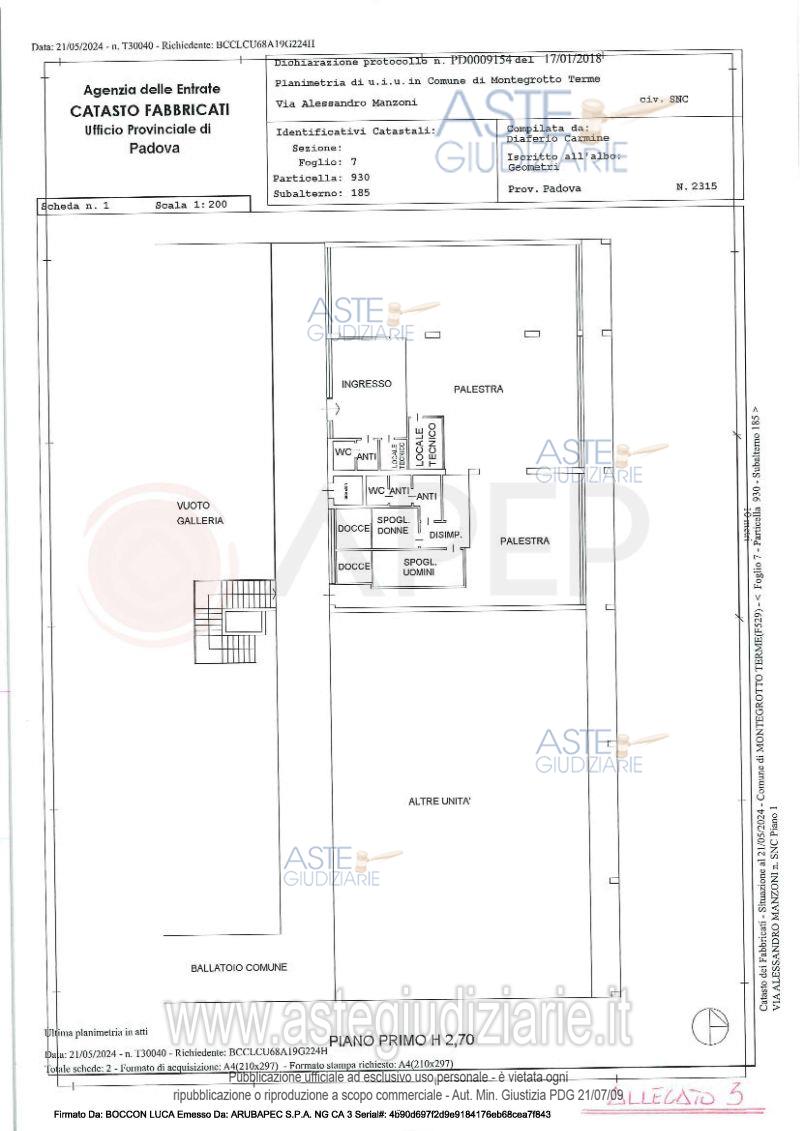
Lotto 1 - piena proprietà di unità immobiliare facente parte del complesso condominiale denominato "Codominio Manzoni", sito in Comune di Montegrotto Terme (PD), Galleria Manzoni, n. 1 costituita da una palestra al piano primo con locali accessori, spogliatoi e W.C. per una superficie commerciale complessiva di mq. 280. Occupato con titolo.

Indirizzo
Galleria Manzoni n. 1 , Montegrotto Terme (PD)


Codice asta
4327841


Lotto
1


Numero beni
1


Genere
Immobili


Categoria
Impianto sportivo


Valore di stima
-


Fabbricati e locali per esercizi sportivi

Lotto 1 - piena proprietà di unità immobiliare facente parte del complesso condominiale denominato "Codominio Manzoni", sito in Comune di Montegrotto Terme (PD), Galleria Manzoni, n. 1 costituita da una palestra al piano primo con locali accessori, spogliatoi e W.C. per una superficie commerciale complessiva di mq. 280. Occupato con titolo.

Indirizzo
Galleria Manzoni n. 1, Montegrotto Terme (PD)


Piano
-


Disponibilità
OCCUPATO


Vani
-


Bagni
-


Metri quadri
280,00


Certificazione energetica
-


Data udienza
28/05/2026 ore 10:00


Tipo di vendita
Senza incanto


Modalità di vendita
Sincrona telematica


Luogo
N.A. -


Luogo presentazione offerte
-


Termine presentazione offerte
27/05/2026 ore 12:00


Prezzo base
€ 96.000,00


Offerta minima
€ 72.000,00


Rialzo minimo in caso di gara
€ 1.000,00


Deposito cauzionale
-


Deposito in conto spese
-


Tribunale
Padova

Tipo di procedura
Espropriazione immobiliare (cartabia)

Ruolo
73/2024

Giudice
Amenduni 

Recapiti
-

Email
-

Delegato alla vendita
Carraretto Paolo
(Procede alle operazioni di vendita)

Recapiti
Tel. 049651228

Email
aste@apepnotai.it

Soggetto specializzato alla vendita
Apep 
(Gestisce la visita del bene)

Recapiti
Tel. 049651228

Scheda COD. 4327841 - Pubblicata dal 06/03/2026

La presente scheda di vendita riporta integralmente informazioni e documenti pervenuti ufficialmente dal Ministero e dal professionista incaricato.


Pubblicazione autorizzata dall’Autorità competente, è vietata ogni ripubblicazione o riproduzione anche parziale


Ti interessa questa vendita?

Documentazione

Visualizza su mappa

Mappa geografica del bene

Storico delle vendite

Data venditaPrezzo base
03/07/2025€ 170.000,00
27/11/2025€ 128.000,00
28/05/2026€ 96.000,00

Punti di interesse

Fonte dati

Nel raggio di {{range}}Km

Loading...
  • {{ getIcon(poi.type) }} {{ poi.localized }}: {{poi.count}}
  • {{ getIcon(poi.type) }} {{ poi.localized }}: {{poi.count}}
Dati non disponibili