Astegiudiziarie.it è parte di Rete Aste Network

Accedi o registrati

Non sei ancora registrato?

Oppure

Accedi

Compendio pignorato

via Michele Amari 58, Trapani (TP)

€ 16.031,25

Offerta minima € 12.023,44


Codice A4310234

Lotto 1

Data udienza 24/06/2026 ore 17:00

Termine presentazione offerte 23/06/2026 ore 23:59

Compendio pignorato

via Michele Amari 58, Trapani (TP)

€ 16.031,25

Offerta minima € 12.023,44


Codice A4310234

Lotto 1

Data udienza 24/06/2026 ore 17:00

Termine presentazione offerte 23/06/2026 ore 23:59

Ti interessa questa vendita?

Documentazione

Visualizza su mappa

Mappa geografica del bene

Punti di interesse

Fonte dati

Nel raggio di {{range}}Km

Loading...
  • {{ getIcon(poi.type) }} {{ poi.localized }}: {{poi.count}}
  • {{ getIcon(poi.type) }} {{ poi.localized }}: {{poi.count}}
Dati non disponibili

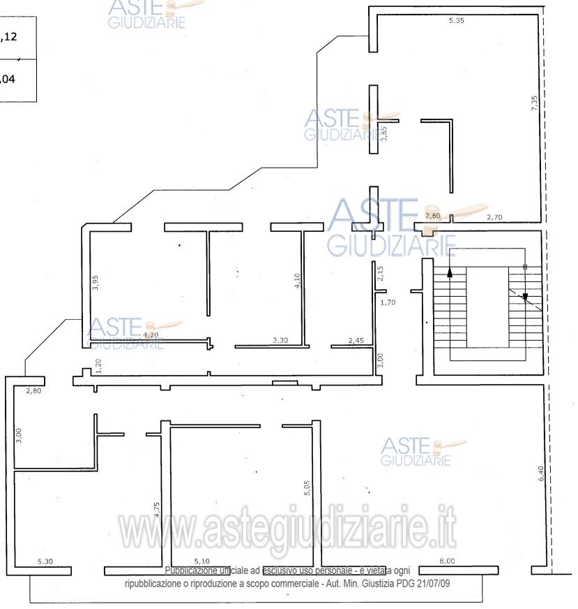
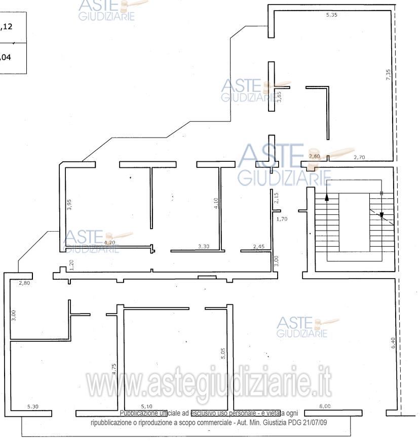
LOTTO 1): Bene A) piena proprietà di appartamento a Trapani, via Michele Amari n°58, piani 2 – 3, identificato al catasto Fabbricati al Fg. 9, Part. 798, Sub. 7, Cat. F3 - Fg. 9, Part. 798, Sub. 8, Cat. F3, mq. 309,45=. Bene B) piena proprietà di laboratorio artigianale a Trapani, via Michele Amari n°66, piano T, identificato al catasto Fabbricati al Fg. 9, Part. 798, Sub. 5, Cat. C3, mq.14,50.

Indirizzo
via Michele Amari 58, Trapani (TP)


Codice asta
4310234


Lotto
1


Numero beni
2


Genere
Immobili


Categoria
Altra categoria


Valore di stima
-


Compendio pignorato

LOTTO 1): Bene B) piena proprietà di laboratorio artigianale a Trapani, via Michele Amari n°66, piano T, identificato al catasto Fabbricati al Fg. 9, Part. 798, Sub. 5, Cat. C3, mq.14,50.

Indirizzo
via Michele Amari 58, Trapani (TP)


Piano
T


Disponibilità
LIBERO


Vani
-


Bagni
-


Metri quadri
14,50


Certificazione energetica
-


Dati catastali

Foglio:9, Particella:798, Subalterno:5


Compendio pignorato

LOTTO 1): Bene A) piena proprietà di appartamento a Trapani, via Michele Amari n°58, piani 2 – 3, identificato al catasto Fabbricati al Fg. 9, Part. 798, Sub. 7, Cat. F3 - Fg. 9, Part. 798, Sub. 8, Cat. F3, mq. 309,45=.

Indirizzo
via Michele Amari 58, Trapani (TP)


Piano
2 e 3


Disponibilità
LIBERO


Vani
-


Bagni
-


Metri quadri
309,45


Certificazione energetica
-


Dati catastali

Foglio:9, Particella:798, Subalterno:7-8


Data udienza
24/06/2026 ore 17:00


Tipo di vendita
Senza incanto


Modalità di vendita
Asincrona telematica


Luogo
N.A. -


Luogo presentazione offerte
-


Termine presentazione offerte
23/06/2026 ore 23:59


Prezzo base
€ 16.031,25


Offerta minima
€ 12.023,44


Rialzo minimo in caso di gara
€ 2.000,00


Deposito cauzionale
10% del prezzo offerto


Deposito in conto spese
-


Tribunale
Trapani

Tipo di procedura
Esecuzione immobiliare post legge 80

Ruolo
84/2021

Delegato alla vendita
Cangemi Antonella
(Procede alle operazioni di vendita)
(Gestisce la visita del bene)

Recapiti
Cell. 3488088614
Tel. 0923548274

Scheda COD. 4310234 - Pubblicata dal 24/04/2026

La presente scheda di vendita riporta integralmente informazioni e documenti pervenuti ufficialmente dal Ministero e dal professionista incaricato.

Pubblicazione notarizzata su Blockchain


Pubblicazione autorizzata dall’Autorità competente, è vietata ogni ripubblicazione o riproduzione anche parziale


Ti interessa questa vendita?

Documentazione

Visualizza su mappa

Mappa geografica del bene

Storico delle vendite

Data venditaPrezzo base
21/11/2024€ 38.000,00
22/04/2025€ 28.500,00
17/12/2025€ 21.375,00
24/06/2026€ 16.031,25

Punti di interesse

Fonte dati

Nel raggio di {{range}}Km

Loading...
  • {{ getIcon(poi.type) }} {{ poi.localized }}: {{poi.count}}
  • {{ getIcon(poi.type) }} {{ poi.localized }}: {{poi.count}}
Dati non disponibili