Astegiudiziarie.it è parte di Rete Aste Network

Accedi o registrati

Non sei ancora registrato?

Oppure

Accedi

giudiziariagiudiziariaTribunale di VERONAESECUZIONI CIVILI IMMOBILIARIESECUZIONE IMMOBILIARE POST LEGGE 808222016Custode nicolaOttavianiTTVNCL76B03L781Inicola.ottaviani@studioottaviani.eu045594642falsetrueGiudicePaolaSalmasofalsefalseDelegato alla venditaFloriana ZagoZGAFRN57L70F943Vnotes@notariato.it0458006661truefalse2346171LOTTO UNICOIMMOBILIALTRA CATEGORIAVia XX Settembre37036San Martino Buon AlbergoVeronaVenetoItaliaSan Martino Buon Albergo (VR) via XX settembre, piena proprietà porzioni immobiliari al 1°e 2°piano interrato di fabbricato danneggiato e inagibile per danni da incendio del 18/9/2018 consistente in: cantina/deposito al 1°p. interrato, altro deposito al 1°p. interrato, n.18 autorimesse al 2°p. interrato, n.4 posti auto esterni al 1°p. interrato. Sono compresi i proporzionali diritti su enti e spazi comuni (art.1117 cc), compresa area sedime e pertinenza fabbricato. Cauzione 20% del prezzo offerto3031448ALTRA CATEGORIACOMPENDIO PIGNORATOvia XX Settembre37036San Martino Buon AlbergoVeronaVenetoItaliaLOTTO UNICO - In Comune di San Martino Buon Albergo (VR), via XX settembre, piena proprietà di porzioni immobiliari al primo e secondo piano interrato di fabbricato strutturalmente danneggiato e dichiarato inagibile a seguito di importanti danni causati dall’incendio del 18 settembre 2018 consistente in: una cantina/deposito al primo piano interrato, un altro deposito al primo piano interrato, n. 18 autorimesse al secondo piano interrato, n. 4 posti auto esterni realizzati nell’area di manovra al primo piano interrato. Sono compresi nella vendita i proporzionali diritti di comproprietà su enti comuni e spazi di uso comune ai sensi dell’art. 1117 c.c., ivi compresa l’area di sedime e pertinenza del fabbricato. CAUZIONE 20% DEL PREZZO OFFERTO925460-61-62-63925458-59-33925456-57925454-55925452-53925450-51925444-45925473-74925439925442-43925440-412026-01-15T14:00:00SENZA INCANTOSINCRONA MISTApresso la sala aste della Camera di Commercio di Verona in Corso Porta Nuova n. 96, con ingresso da Circonvallazione Alfredo Oriani n. 2/A37122VeronaVeronaVenetoItalia18.800,0014.100,00500,002026-01-14T13:00:00sito pubblicitahttps://www.asteannunci.ithttps://www.asteannunci.itgestore delle venditehttps://www.fallcoaste.ithttps://www.fallcoaste.itsito pubblicitahttps://www.astegiudiziarie.ithttps://www.astegiudiziarie.itsito pubblicitahttps://www.astalegale.nethttps://www.astalegale.net2025-11-03

Compendio pignorato

Via XX Settembre, San Martino Buon Albergo (VR)

€ 18.800,00

Offerta minima € 14.100,00


Codice A4311840

Lotto Lotto unico

Data udienza 15/01/2026 ore 14:00

Termine presentazione offerte 14/01/2026 ore 13:00

Compendio pignorato

Via XX Settembre, San Martino Buon Albergo (VR)

€ 18.800,00

Offerta minima € 14.100,00


Codice A4311840

Lotto Lotto unico

Data udienza 15/01/2026 ore 14:00

Termine presentazione offerte 14/01/2026 ore 13:00

Ti interessa questa vendita?

Visualizza su mappa

Mappa geografica del bene

Punti di interesse

Fonte dati

Nel raggio di {{range}}Km

Loading...
  • {{ getIcon(poi.type) }} {{ poi.localized }}: {{poi.count}}
  • {{ getIcon(poi.type) }} {{ poi.localized }}: {{poi.count}}
Dati non disponibili

San Martino Buon Albergo (VR) via XX settembre, piena proprietà porzioni immobiliari al 1°e 2°piano interrato di fabbricato danneggiato e inagibile per danni da incendio del 18/9/2018 consistente in: cantina/deposito al 1°p. interrato, altro deposito al 1°p. interrato, n.18 autorimesse al 2°p. interrato, n.4 posti auto esterni al 1°p. interrato. Sono compresi i proporzionali diritti su enti e spazi comuni (art.1117 cc), compresa area sedime e pertinenza fabbricato. Cauzione 20% del prezzo offerto

Indirizzo
Via XX Settembre, San Martino Buon Albergo (VR)


Codice asta
4311840


Lotto
Lotto unico


Numero beni
1


Genere
Immobili


Categoria
Altra categoria


Valore di stima
-


Compendio pignorato

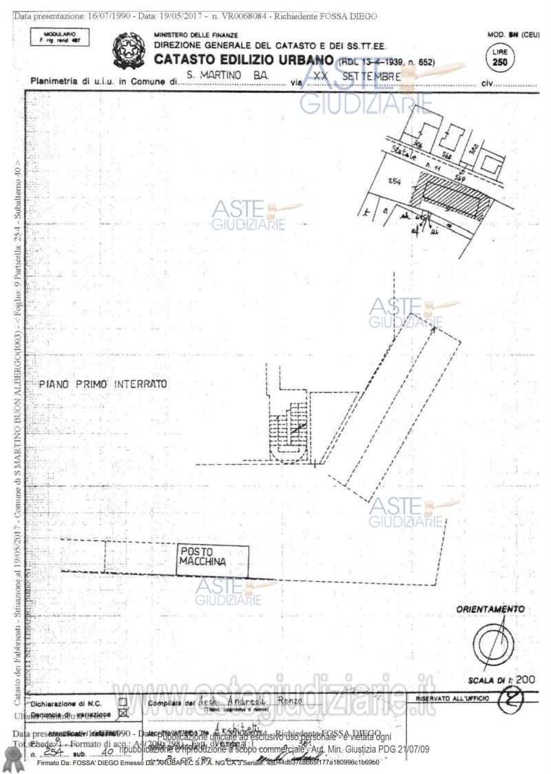
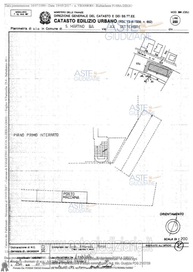
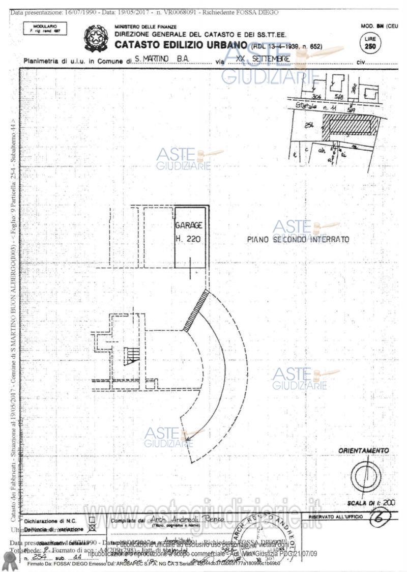
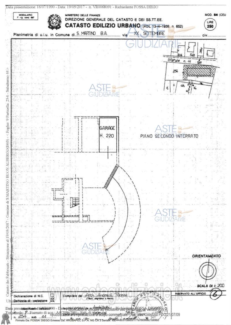
LOTTO UNICO - In Comune di San Martino Buon Albergo (VR), via XX settembre, piena proprietà di porzioni immobiliari al primo e secondo piano interrato di fabbricato strutturalmente danneggiato e dichiarato inagibile a seguito di importanti danni causati dall’incendio del 18 settembre 2018 consistente in: una cantina/deposito al primo piano interrato, un altro deposito al primo piano interrato, n. 18 autorimesse al secondo piano interrato, n. 4 posti auto esterni realizzati nell’area di manovra al primo piano interrato. Sono compresi nella vendita i proporzionali diritti di comproprietà su enti comuni e spazi di uso comune ai sensi dell’art. 1117 c.c., ivi compresa l’area di sedime e pertinenza del fabbricato. CAUZIONE 20% DEL PREZZO OFFERTO

Indirizzo
via XX Settembre, San Martino Buon Albergo (VR)


Piano
-


Disponibilità
-


Vani
-


Bagni
-


Metri quadri
-


Certificazione energetica
-


Dati catastali

Foglio:9, Particella:254, Subalterno:60-61-62-63
Foglio:9, Particella:254, Subalterno:58-59-33
Foglio:9, Particella:254, Subalterno:56-57
Foglio:9, Particella:254, Subalterno:54-55
Foglio:9, Particella:254, Subalterno:52-53
Foglio:9, Particella:254, Subalterno:50-51
Foglio:9, Particella:254, Subalterno:44-45
Foglio:9, Particella:254, Subalterno:73-74
Foglio:9, Particella:254, Subalterno:39
Foglio:9, Particella:254, Subalterno:42-43
Foglio:9, Particella:254, Subalterno:40-41


Data udienza
15/01/2026 ore 14:00


Tipo di vendita
Senza incanto


Modalità di vendita
Sincrona mista


Luogo
presso la sala aste della Camera di Commercio di Verona in Corso Porta Nuova n. 96, con ingresso da Circonvallazione Alfredo Oriani n. 2/A - Verona 37122


Luogo presentazione offerte
-


Termine presentazione offerte
14/01/2026 ore 13:00


Prezzo base
€ 18.800,00


Offerta minima
€ 14.100,00


Rialzo minimo in caso di gara
€ 500,00


Deposito cauzionale
20% del prezzo offerto


Deposito in conto spese
-


Tribunale
Verona

Tipo di procedura
Esecuzione immobiliare post legge 80

Ruolo
822/2016

Giudice
Salmaso Paola

Recapiti
-

Email
-

Delegato alla vendita
Zago Floriana
(Procede alle operazioni di vendita)

Recapiti
Tel. 0458006661

Email
notes@notariato.it

Custode giudiziario
Ottaviani  nicola
(Gestisce la visita del bene)

Recapiti
Tel. 045594642

Scheda COD. 4311840 - Pubblicata dal 03/11/2025

La presente scheda di vendita riporta integralmente informazioni e documenti pervenuti ufficialmente dal Ministero e dal professionista incaricato.

Pubblicazione notarizzata su Blockchain


Pubblicazione autorizzata dall’Autorità competente, è vietata ogni ripubblicazione o riproduzione anche parziale


Ti interessa questa vendita?

Visualizza su mappa

Mappa geografica del bene

Storico delle vendite

Data venditaPrezzo base
28/11/2024€ 25.000,00
25/09/2025€ 25.000,00
15/01/2026€ 18.800,00

Punti di interesse

Fonte dati

Nel raggio di {{range}}Km

Loading...
  • {{ getIcon(poi.type) }} {{ poi.localized }}: {{poi.count}}
  • {{ getIcon(poi.type) }} {{ poi.localized }}: {{poi.count}}
Dati non disponibili