Accedi o registrati
Oppure
Accedi
Via Corpo Volontari Liberazione 18, San Canzian d'Isonzo (GO)
Offerta minima € 191.912,76
Codice A4338173
Lotto 02
Data udienza 13/01/2026 ore 11:30
Termine presentazione offerte 09/01/2026 ore 12:00
Via Corpo Volontari Liberazione 18, San Canzian d'Isonzo (GO)
Offerta minima € 191.912,76
Codice A4338173
Lotto 02
Data udienza 13/01/2026 ore 11:30
Termine presentazione offerte 09/01/2026 ore 12:00
                Nel raggio di {{range}}Km
                
                
            
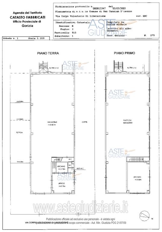
capannone artigianale ad uso deposito con annesso edifico residenziale (villino)
                                Indirizzo
                                
                                    Via Corpo Volontari Liberazione 18,
                                San Canzian d'Isonzo (GO)
                            
                                Codice asta
                                
                                4338173
                            
                                Lotto
                                
                                02
                            
                                Numero beni
                                
                                2
                            
                                Genere
                                
                                Immobili
                            
                                Categoria
                                
                                Altra categoria
                            
                                    Valore di stima
                                
                                -
                            
Compendio pignorato
capannone artigianale ad uso deposito con annesso edificio residenziale (villino)
                    Indirizzo
                    
                        via Corpo Volontari Liberazione 18,
                    San Canzian d'Isonzo (GO)
                    
                    
                    
                    
                    
                
                    Piano
                    
                    -
                
                    Disponibilità
                    
                        LIBERO
                
                    Vani
                    
                        -
                
                    Bagni
                    
                    -
                
                    Metri quadri
                    
                        387,95
                
                    Certificazione energetica
                    
                    -
                
                        Dati catastali
                        
Compendio pignorato
villino accostato a capannone artigianale
                    Indirizzo
                    
                        via Corpo Volontari Liberazione 18,
                    San Canzian d'Isonzo (GO)
                    
                    
                    
                    
                    
                
                    Piano
                    
                    -
                
                    Disponibilità
                    
                        OCCUPATO
                
                    Vani
                    
                        9,00
                
                    Bagni
                    
                    -
                
                    Metri quadri
                    
                        148,73
                
                    Certificazione energetica
                    
                    -
                
                        Dati catastali
                        
                                
Data udienza                                
                                
                                13/01/2026 ore 11:30
                            
                                Tipo di vendita
                                
                                Senza incanto
                            
                                Modalità di vendita
                                
                                    Sincrona mista
                            
                                Luogo
                                
                                Via N. Sauro - Sala Aste Tribunale
                                - Gorizia
                                34170
                                
                                
                                
                                
                            
                                Luogo presentazione offerte
                                
                                -
                            
                                Termine presentazione offerte
                                
                                09/01/2026 ore 12:00
                            
                                    Prezzo base
                                
                                € 255.883,68
                            
                                Offerta minima
                                
                                € 191.912,76
                            
                                Rialzo minimo in caso di gara
                                
                                € 3.000,00
                            
                                Deposito cauzionale
                                
                                10% del prezzo offerto 
                            
                                Deposito in conto spese
                                
                                -
                            
                                Tribunale
                                
Gorizia                            
                                Tipo di procedura
                                
Espropriazione immobiliare (cartabia)                            
                                Ruolo
                                
                                79/2024
                            
                                    Delegato alla vendita
                                    
                                    Pahor Mariella
                                        
(Procede alle operazioni di vendita)
                                                                    
                                    Recapiti
                                    
                                    Tel. 03285420862
                                
                                    Email
                                    
                                                pahor@avvocatiagorizia.it
                                
                                    Custode giudiziario
                                    
                                    Pahor Mariella
                                                                            
(Gestisce la visita del bene)
                                
                                    Recapiti
                                    
                                    Tel. 03285420862
                                
Scheda COD. 4338173 - Pubblicata dal 29/10/2025
La presente scheda di vendita riporta integralmente informazioni e documenti pervenuti ufficialmente dal Ministero e dal professionista incaricato.
Pubblicazione autorizzata dall’Autorità competente, è vietata ogni ripubblicazione o riproduzione anche parziale
                Nel raggio di {{range}}Km