Astegiudiziarie.it è parte di Rete Aste Network

Accedi o registrati

Non sei ancora registrato?

Oppure

Accedi

Compendio pignorato

Loc. Montalto, Via Spin 14, Nogara (VR)

€ 128.000,00

Offerta minima € 96.000,00


Codice A4338804

Lotto Lotto unico

Data udienza 26/03/2026 ore 14:00

Termine presentazione offerte 25/03/2026 ore 13:00

Compendio pignorato

Loc. Montalto, Via Spin 14, Nogara (VR)

€ 128.000,00

Offerta minima € 96.000,00


Codice A4338804

Lotto Lotto unico

Data udienza 26/03/2026 ore 14:00

Termine presentazione offerte 25/03/2026 ore 13:00

Ti interessa questa vendita?

Documentazione

Visualizza su mappa

Mappa geografica del bene

Punti di interesse

Fonte dati

Nel raggio di {{range}}Km

Loading...
  • {{ getIcon(poi.type) }} {{ poi.localized }}: {{poi.count}}
  • {{ getIcon(poi.type) }} {{ poi.localized }}: {{poi.count}}
Dati non disponibili

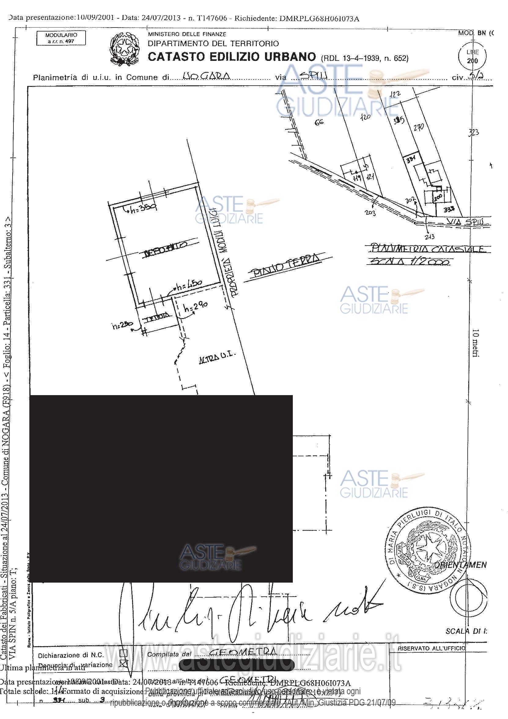
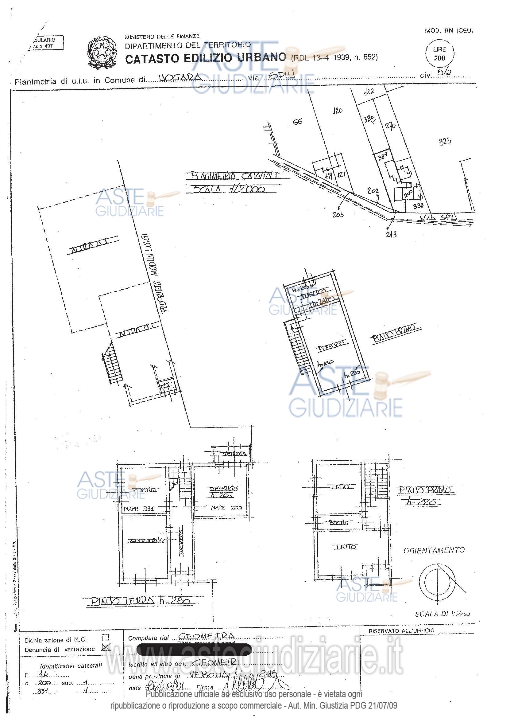
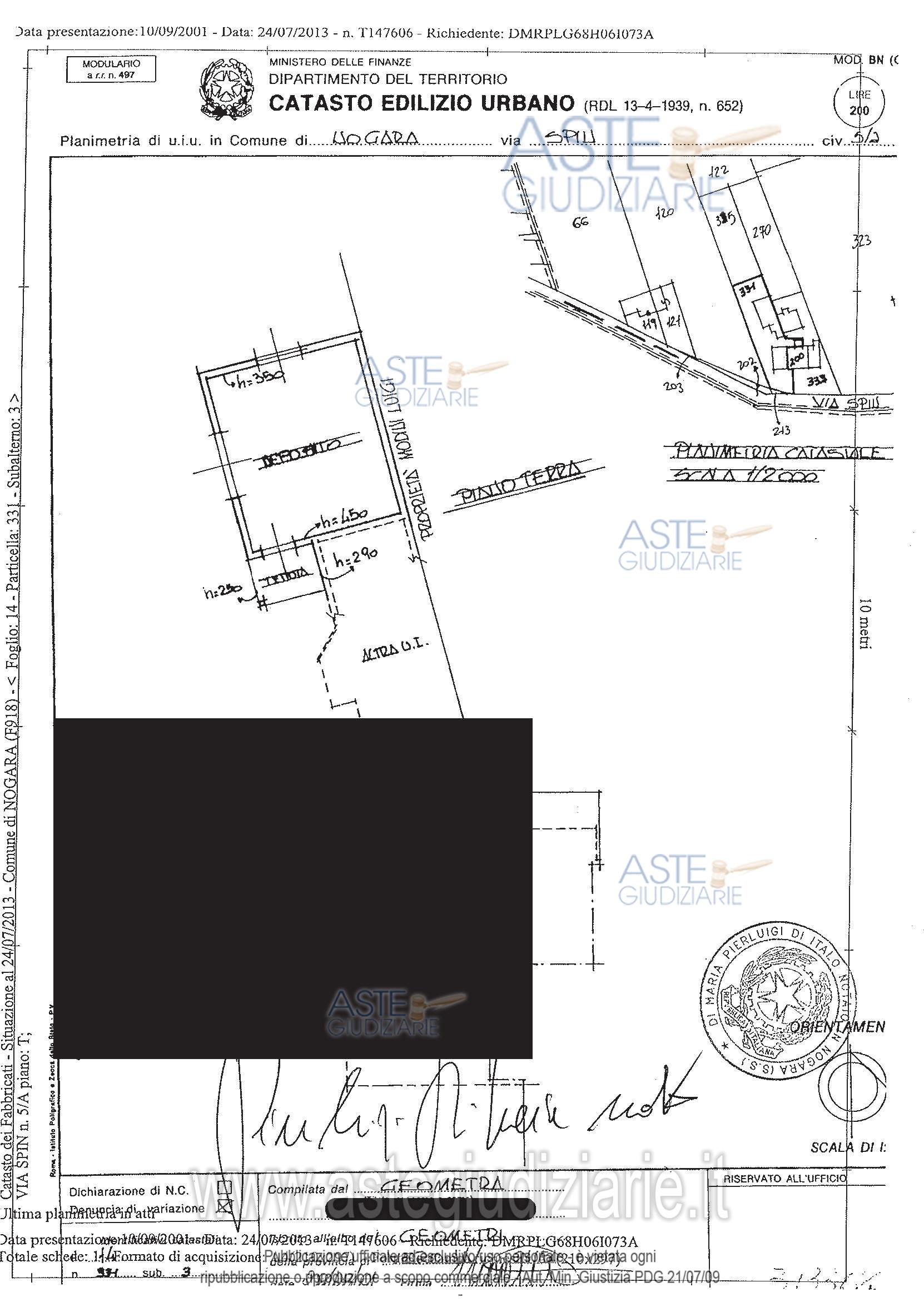
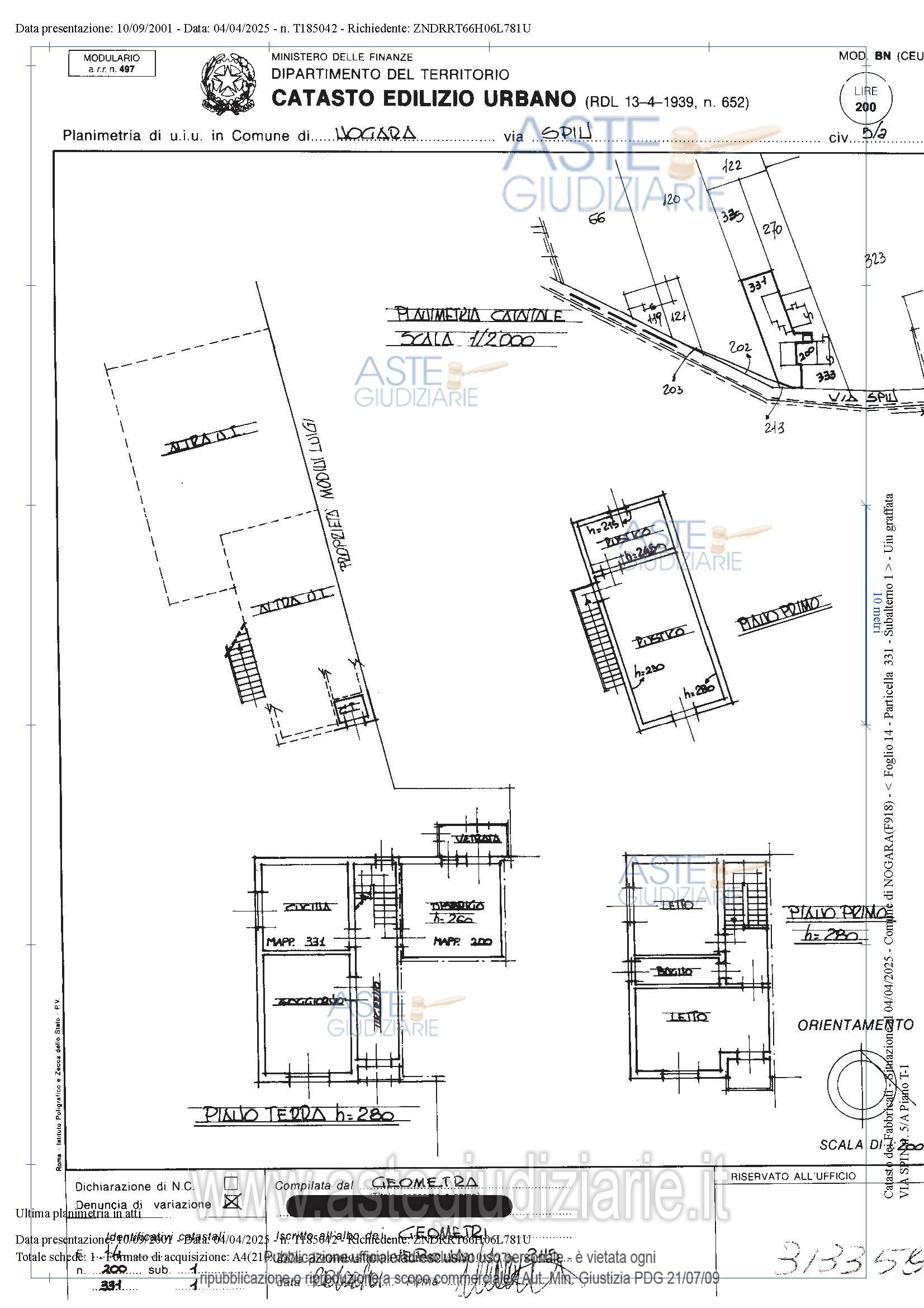
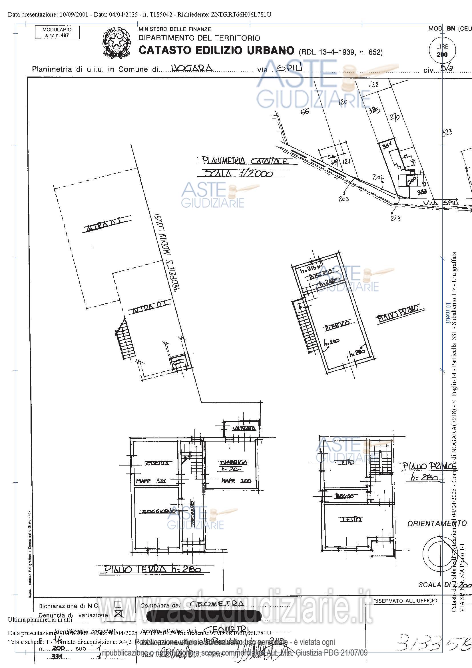
LOTTO UNICO - In Comune di Nogara (VR), in Loc. Montalto, Via Spin 14, con ingresso pedonale e carraio, piena proprietà di porzione di casa binata, unifamiliare disposta su due piani oltre a rustico in corpo di fabbrica distinto, di un’autorimessa e di un deposito con corte, nonché piena proprietà di terreno agricolo non coltivato di 632 mq catastali, posto a nord del fabbricato abitativo.

Indirizzo
Loc. Montalto, Via Spin 14, Nogara (VR)


Codice asta
4338804


Lotto
Lotto unico


Numero beni
1


Genere
Immobili


Categoria
Altra categoria


Valore di stima
-


Compendio pignorato

LOTTO UNICO - In Comune di Nogara (VR), in Loc. Montalto, Via Spin 14, con ingresso pedonale e carraio, piena proprietà di porzione di casa binata, unifamiliare disposta su due piani oltre a rustico in corpo di fabbrica distinto, di un’autorimessa e di un deposito con corte, nonché piena proprietà di terreno agricolo non coltivato di 632 mq catastali, posto a nord del fabbricato abitativo.

Indirizzo
Loc. Montalto, Via Spin 14, Nogara (VR)


Piano
-


Disponibilità
-


Vani
-


Bagni
-


Metri quadri
-


Certificazione energetica
-


Dati catastali

Foglio:14, Particella:200, Subalterno:1, Subalterno 2:cat. A/3, Graffato:graffato m.n. 331 sub 1
Foglio:14, Particella:331, Subalterno:2, Subalterno 2:cat. C/6
Foglio:14, Particella:331, Subalterno:3, Subalterno 2:cat. C/2
Foglio:14, Particella:331, Subalterno:4, Subalterno 2:BCNC
Foglio:14, Sezione:Catasto Terreni, Particella:335


Data udienza
26/03/2026 ore 14:00


Tipo di vendita
Senza incanto


Modalità di vendita
Sincrona mista


Luogo
presso la sala aste della Camera di Commercio di Verona in Corso Porta Nuova n. 96, con ingresso da Circonvallazione Alfredo Oriani n. 2/A - Verona 37122


Luogo presentazione offerte
-


Termine presentazione offerte
25/03/2026 ore 13:00


Prezzo base
€ 128.000,00


Offerta minima
€ 96.000,00


Rialzo minimo in caso di gara
€ 1.000,00


Deposito cauzionale
-


Deposito in conto spese
-


Tribunale
Verona

Tipo di procedura
Espropriazione immobiliare (cartabia)

Ruolo
70/2025

Giudice
Fontana Francesco

Recapiti
-

Email
-

Delegato alla vendita
Zago  Floriana
(Procede alle operazioni di vendita)

Recapiti
Tel. 0458006661

Email
notes@notariato.it

Custode giudiziario
Residori  Matteo
(Gestisce la visita del bene)

Recapiti
Tel. 0458001497

Scheda COD. 4338804 - Pubblicata dal 29/01/2026

La presente scheda di vendita riporta integralmente informazioni e documenti pervenuti ufficialmente dal Ministero e dal professionista incaricato.


Pubblicazione autorizzata dall’Autorità competente, è vietata ogni ripubblicazione o riproduzione anche parziale


Ti interessa questa vendita?

Documentazione

Visualizza su mappa

Mappa geografica del bene

Storico delle vendite

Data venditaPrezzo base
15/01/2026€ 170.000,00
26/03/2026€ 128.000,00

Punti di interesse

Fonte dati

Nel raggio di {{range}}Km

Loading...
  • {{ getIcon(poi.type) }} {{ poi.localized }}: {{poi.count}}
  • {{ getIcon(poi.type) }} {{ poi.localized }}: {{poi.count}}
Dati non disponibili