Astegiudiziarie.it è parte di Rete Aste Network

Accedi o registrati

Non sei ancora registrato?

Oppure

Accedi

Compendio pignorato

Via Santa Reparata n.15 , Modigliana (FC)

€ 248.600,00

Offerta minima € 186.450,00


Codice A4322998

Lotto Lotto unico

Data udienza 14/01/2026 ore 15:00

Termine presentazione offerte 13/01/2026 ore 12:00

Compendio pignorato

Via Santa Reparata n.15 , Modigliana (FC)

€ 248.600,00

Offerta minima € 186.450,00


Codice A4322998

Lotto Lotto unico

Data udienza 14/01/2026 ore 15:00

Termine presentazione offerte 13/01/2026 ore 12:00

Ti interessa questa vendita?

Documentazione

Visualizza su mappa

Mappa geografica del bene

Punti di interesse

Fonte dati

Nel raggio di {{range}}Km

Loading...
  • {{ getIcon(poi.type) }} {{ poi.localized }}: {{poi.count}}
  • {{ getIcon(poi.type) }} {{ poi.localized }}: {{poi.count}}
Dati non disponibili

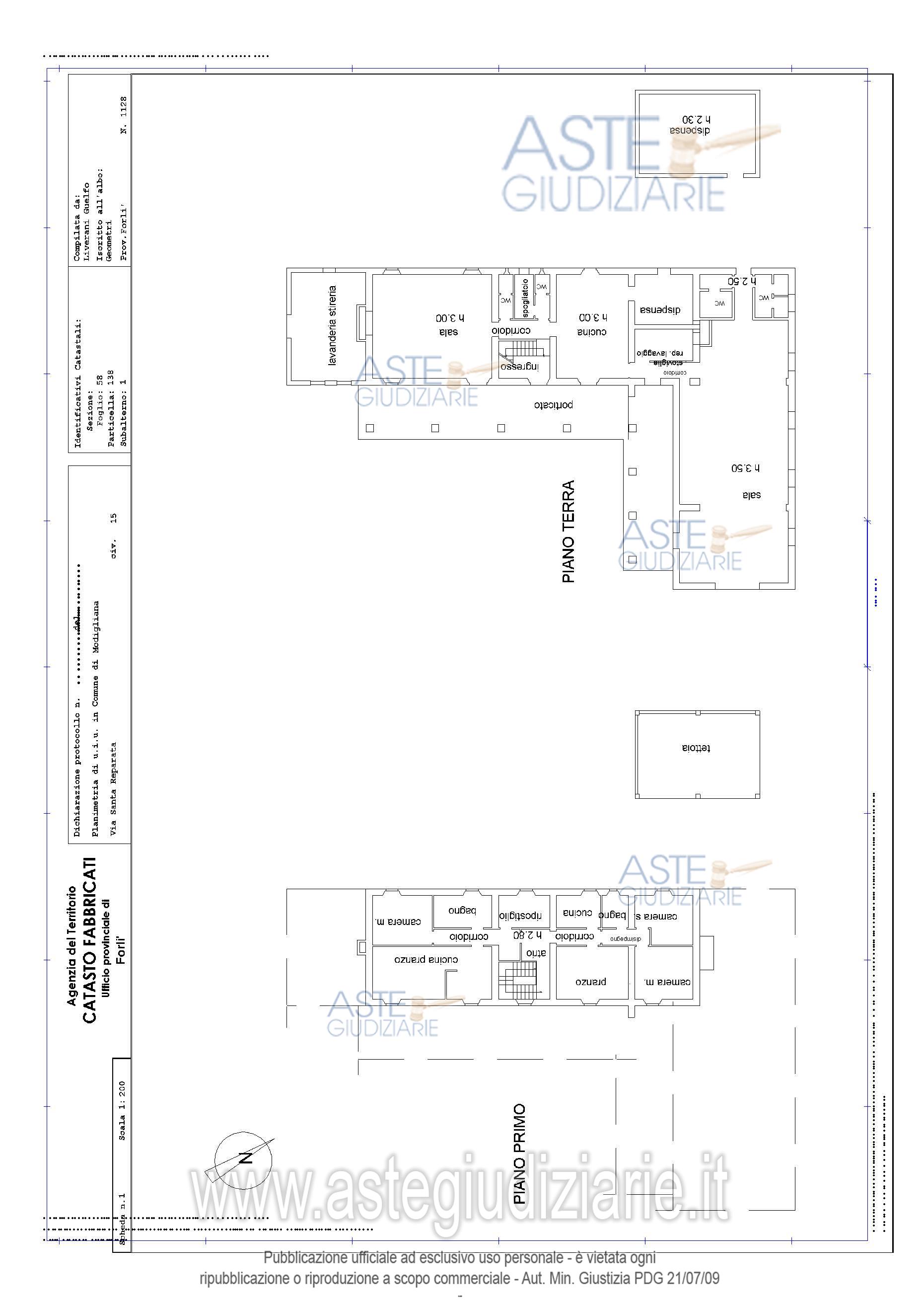
Terreni di complessivi ha 5.84.82 e fabbricati di cui: il principale con categoria D/10 (classe energetica: G) utilizzato per l’attività agrituristica con annesso un fabb. ad uso deposito/tettoia, oltre a fabb. in corso di costruzione e altri manufatti all’interno della corte. Occupato in virtù di contratto di affitto di fondo rustico; a seguito di procedura di sfratto per morosità il Tribunale di Forlì ha fissato il rilascio dell'immobile per il giorno 11/11/2025.

Indirizzo
Via Santa Reparata n.15 , Modigliana (FC)


Codice asta
4322998


Lotto
Lotto unico


Numero beni
1


Genere
Immobili


Categoria
Altra categoria


Valore di stima
-


Compendio pignorato

Terreni di complessivi ha 5.84.82 e fabbricati di cui: il principale con categoria D/10 (classe energetica: G) utilizzato per l’attività agrituristica con annesso un fabb. ad uso deposito/tettoia, oltre a fabb. in corso di costruzione e altri manufatti all’interno della corte. Occupato in virtù di contratto di affitto di fondo rustico; a seguito di procedura di sfratto per morosità il Tribunale di Forlì ha fissato il rilascio dell'immobile per il giorno 11/11/2025.

Indirizzo
Via Santa Reparata n.15, Modigliana (FC)


Piano
-


Disponibilità
In corso di liberazione


Vani
-


Bagni
-


Metri quadri
58482,00


Certificazione energetica
-


Dati catastali

Foglio:58, Particella:138, Subalterno:1
Foglio:58, Particella:138, Subalterno:2
Foglio:58, Particella:138, Subalterno:3
Foglio:58, Particella:139
Foglio:58, Particella:140
Foglio:71, Particella:48
Foglio:71, Particella:50
Foglio:71, Particella:51, Sub particella:AA
Foglio:71, Particella:51, Sub particella:AB
Foglio:71, Particella:61, Sub particella:AA
Foglio:71, Particella:61, Sub particella:AB
Foglio:71, Particella:66, Sub particella:AA
Foglio:71, Particella:66, Sub particella:AB
Foglio:71, Particella:67, Sub particella:AA
Foglio:71, Particella:67, Sub particella:AB
Foglio:71, Particella:68
Foglio:71, Particella:69, Sub particella:AA
Foglio:71, Particella:69, Sub particella:AB


Data udienza
14/01/2026 ore 15:00


Tipo di vendita
Senza incanto


Modalità di vendita
Asincrona telematica


Luogo
-


Luogo presentazione offerte
-


Termine presentazione offerte
13/01/2026 ore 12:00


Prezzo base
€ 248.600,00


Offerta minima
€ 186.450,00


Rialzo minimo in caso di gara
€ 5.000,00


Deposito cauzionale
15% del prezzo offerto


Deposito in conto spese
-


Tribunale
Forlì

Tipo di procedura
Espropriazione immobiliare (cartabia)

Ruolo
1/2024

Giudice
Maffa Danilo

Recapiti
-

Email
-

Delegato alla vendita
Parronchi Alberto
(Procede alle operazioni di vendita)

Recapiti
Tel. 054336361

Email
avvocato.parronchi@tin.it

Custode giudiziario
Parronchi Alberto
(Gestisce la visita del bene)

Recapiti
Tel. 054336361

Scheda COD. 4322998 - Pubblicata dal 24/11/2025

La presente scheda di vendita riporta integralmente informazioni e documenti pervenuti ufficialmente dal Ministero e dal professionista incaricato.


Pubblicazione autorizzata dall’Autorità competente, è vietata ogni ripubblicazione o riproduzione anche parziale


Ti interessa questa vendita?

Documentazione

Visualizza su mappa

Mappa geografica del bene

Storico delle vendite

Data venditaPrezzo base
29/04/2025€ 589.000,00
15/07/2025€ 441.750,00
28/10/2025€ 331.350,00
14/01/2026€ 248.600,00

Punti di interesse

Fonte dati

Nel raggio di {{range}}Km

Loading...
  • {{ getIcon(poi.type) }} {{ poi.localized }}: {{poi.count}}
  • {{ getIcon(poi.type) }} {{ poi.localized }}: {{poi.count}}
Dati non disponibili