Astegiudiziarie.it è parte di Rete Aste Network

Accedi o registrati

Non sei ancora registrato?

Oppure

Accedi

Compendio pignorato

Via S. Candido, 43, 76123 Andria BT, Italia, Andria (BT)

€ 189.207,22

Offerta minima € 141.905,42


Codice A4339656

Lotto Lotto unico

Data udienza 27/01/2026 ore 11:30

Termine presentazione offerte 26/01/2026 ore 12:00

Compendio pignorato

Via S. Candido, 43, 76123 Andria BT, Italia, Andria (BT)

€ 189.207,22

Offerta minima € 141.905,42


Codice A4339656

Lotto Lotto unico

Data udienza 27/01/2026 ore 11:30

Termine presentazione offerte 26/01/2026 ore 12:00

Ti interessa questa vendita?

Documentazione

Visualizza su mappa

Mappa geografica del bene

Punti di interesse

Fonte dati

Nel raggio di {{range}}Km

Loading...
  • {{ getIcon(poi.type) }} {{ poi.localized }}: {{poi.count}}
  • {{ getIcon(poi.type) }} {{ poi.localized }}: {{poi.count}}
Dati non disponibili

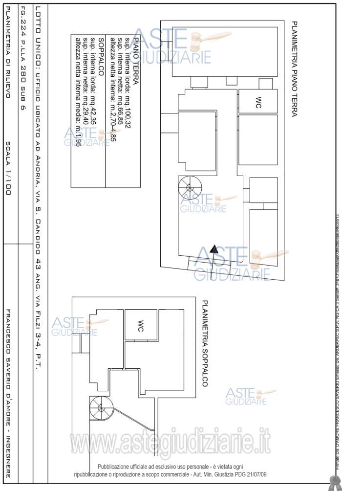
Ufficio a piano terra con zona soppalcata ubicato in Andria (BT) alla Via San Candido n. 43 – angolo Via Fabio Filzi nn. 3-5

Indirizzo
Via S. Candido, 43, 76123 Andria BT, Italia, Andria (BT)


Codice asta
4339656


Lotto
Lotto unico


Numero beni
1


Genere
Immobili


Categoria
Altra categoria


Valore di stima
-


Compendio pignorato

Piena proprietà per la quota di 1/1 dell’ufficio a piano terra con zona soppalcata ubicato in Andria (BT) alla Via San Candido n. 43 – angolo Via Fabio Filzi nn. 3-5, della superficie catastale complessiva di circa mq. 147. Trovasi in zona semicentrale e fa parte di un edificio composto da due livelli, realizzato in struttura portante di pietra e tufo. L’unità immobiliare oggetto di vendita si compone di un ingresso/sala di attesa che conduce ad uno spogliatoio e ad un corridoio ad “L” che consente l’accesso ad un vano cieco, al bagno e ad altre due camere. All’ingresso è posizionata la scala a chiocciola in legno che porta al soppalco. Detto soppalco è costituito da un ballatoio che si apre a due vani e ad un bagno.

Indirizzo
Via S. Candido, 43, 76123 Andria BT, Italia, Andria (BT)


Piano
-


Disponibilità
-


Vani
-


Bagni
-


Metri quadri
-


Certificazione energetica
-


Dati catastali

Foglio:224, Particella:280, Subalterno:6


Data udienza
27/01/2026 ore 11:30


Tipo di vendita
Senza incanto


Modalità di vendita
Sincrona telematica


Luogo
-


Luogo presentazione offerte
-


Termine presentazione offerte
26/01/2026 ore 12:00


Prezzo base
€ 189.207,22


Offerta minima
€ 141.905,42


Rialzo minimo in caso di gara
€ 3.000,00


Deposito cauzionale
10% del prezzo offerto


Deposito in conto spese
-


Tribunale
Trani

Tipo di procedura
Esecuzione immobiliare post legge 80

Ruolo
202/2022

Delegato alla vendita
Napoletano Francesco
(Procede alle operazioni di vendita)
(Gestisce la visita del bene)

Recapiti
Cell. 3333900368
Tel. 0803957673

Scheda COD. 4339656 - Pubblicata dal 17/11/2025

La presente scheda di vendita riporta integralmente informazioni e documenti pervenuti ufficialmente dal Ministero e dal professionista incaricato.

Pubblicazione notarizzata su Blockchain


Pubblicazione autorizzata dall’Autorità competente, è vietata ogni ripubblicazione o riproduzione anche parziale


Ti interessa questa vendita?

Documentazione

Visualizza su mappa

Mappa geografica del bene

Punti di interesse

Fonte dati

Nel raggio di {{range}}Km

Loading...
  • {{ getIcon(poi.type) }} {{ poi.localized }}: {{poi.count}}
  • {{ getIcon(poi.type) }} {{ poi.localized }}: {{poi.count}}
Dati non disponibili