Astegiudiziarie.it è parte di Rete Aste Network

Accedi o registrati

Non sei ancora registrato?

Oppure

Accedi

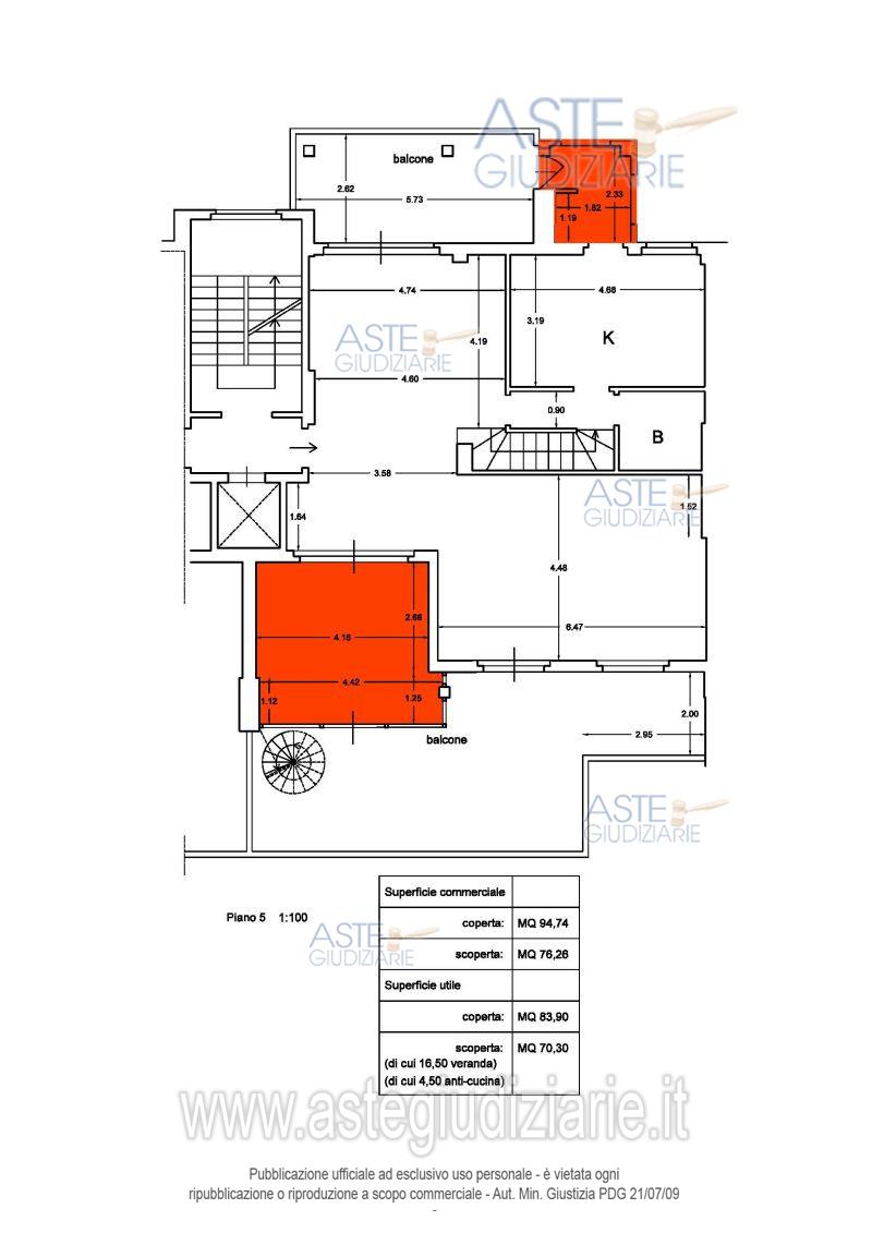
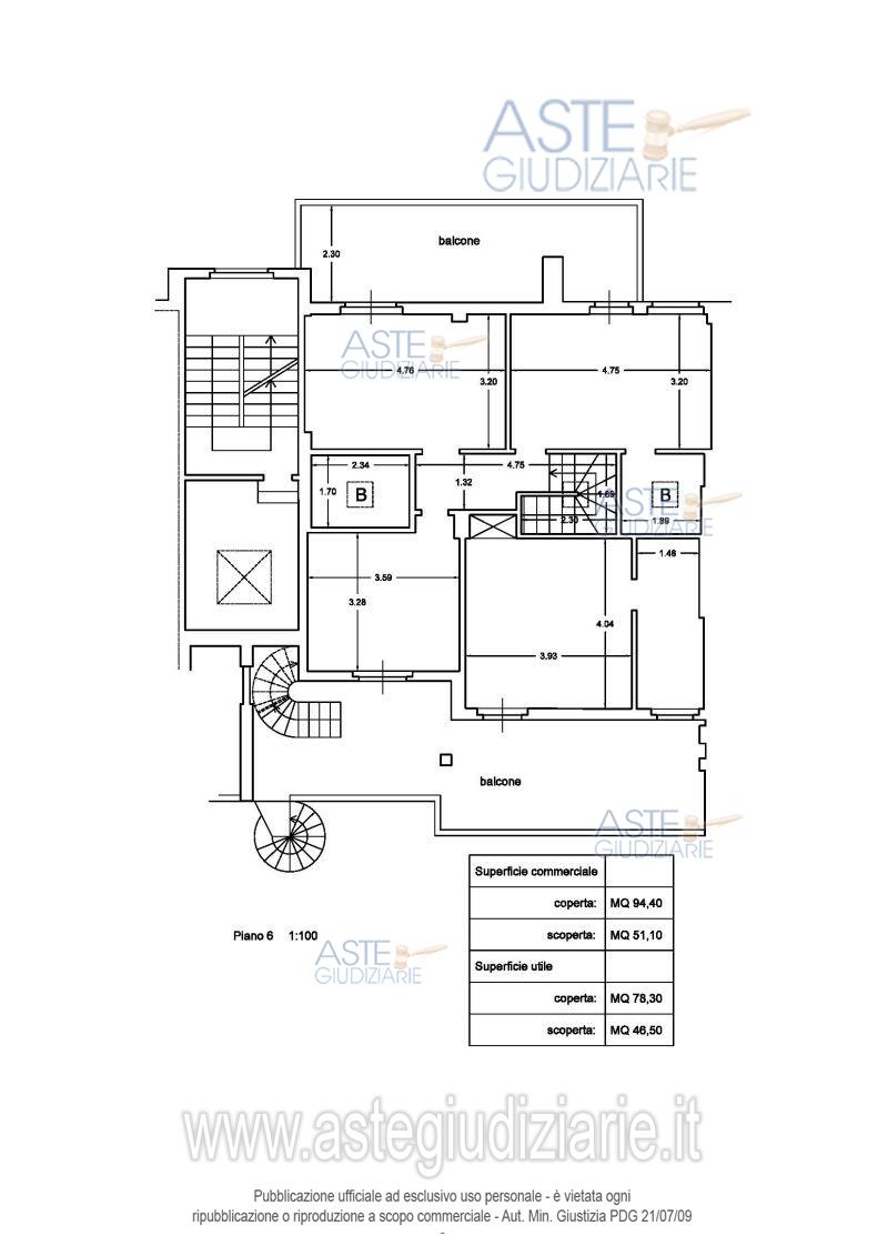
giudiziariagiudiziariaTribunale di ROMAESECUZIONI CIVILI IMMOBILIARIESPROPRIAZIONE IMMOBILIARE (CARTABIA)13332023GiudiceGiuseppeLauropolifalsefalseCustodeIvg di roma srlPRCFNC50L27A241Tpvp@visiteivgroma.it0683751500falsetrueDelegato alla venditaRositaValloneVLLRST75A56L182Krosita.vallone@gmail.com0686358429truefalse2401218LOTTO UNICOIMMOBILIIMMOBILE RESIDENZIALEVia dell'Orsa Maggiore, 66, 00144 Roma RM, Italia00144RomaRomaLazioItaliaPiena proprietà su appartamento sito in Roma, Via dell’Orsa Maggiore n. 66, edificio A4, scala B, interno 10, piano (attico) 5-6 comunicanti con scala interna, oltre lastrico solare posto al 7° piano comunicante con il piano 6° a mezzo di scala esterna. Cantina e posto auto posti al piano S1. Compendio occupato dalla parte esecutata che vi abita. Non potrà emettersi ordine di liberazione prima del decreto di trasferimento.3099051ALTRA CATEGORIACANTINAVia dell'Orsa Maggiore, 66, 00144 Roma RM, Italia00144RomaRomaLazioItaliaBENE 2Quota pari al 100/100 del diritto di proprietà su cantina ubicata in Roma, Via dell'Orsa Maggiore 66, edificio A4, interno 23, piano S1, per complessivi mq 9,20 di Superficie Lorda. Identificato al Catasto Fabbricati del Comune di Roma al Foglio 864, Part. 855, Sub. 62, Zc. 6, Cat. C/2, Cl. 7, Rendita Catastale € 23,55.Confina con corridoio d'accesso, cantina n. 24, box n. 21 (BENE 3), cantina n. 22, salvo altri. Non esiste la dichiarazione di conformità dell'impianto elettrico. La cantina non risulta regolare alla luce delle autorizzazioni edilizie rilasciate e della normativa vigente dei VV.F. in quanto messa in comunicazione con il box confinante (BENE 3) mediante l'apertura di un vano porta, pertanto, andrà ripristinata la condizione di legittimità a cura e spese dell’aggiudicatario, circostanza di cui si è tenuto conto in sede di stima del compendio staggito.L'edificio di cui fanno parte gli immobili staggiti è stato edificato in forza delle seguenti autorizzazioni rilasciate dal Comune di Roma:- originaria concessione edilizia n. 44354 del 12 maggio 1988 (non reperita presso l'Ufficio SIPRE);- concessione edilizia n. 780 dell’8 maggio 1988 relativa alla realizzazione del piano interrato;- concessione edilizia n. 2088/C del 12 dicembre 1990 per la struttura in c.a.;- concessione edilizia n. 959/C del 24 maggio 1991 per il completamento della costruzione.In data 09/03/1995 è stata rilasciata dal Comune di Roma Ripartizione XV la Certificazione di Abitabilità n. 059 ritirata in data 23/03/1995.Secondo il Piano Territoriale Paesistico Regionale della Regione Lazio 2021 l’edificio di cui fa parte il compendio staggito ricade in:- Tavola “A” 24_374 - Sistemi ed ambiti dei paesaggi - Area ricadente in: Sistema del paesaggio insediativo - Paesaggio degli insediamenti urbani;- Tavola “B” 24_374 - Beni paesaggistici - Area ricadente in: Aree urbanizzate del PTPR;- Tavola “C” 24_374 - Beni del Patrimonio naturale e culturale - Area ricadente in: Beni del Patrimonio Culturale: Tessuto urbano;- Tavola “D” 24_374 - Recepimento delle proposte comunali di modifica dei PTP accolte, parzialmente accolte e prescrizioni - Area ricadente in: accolta / parzialmente accolta con prescrizione.Il Regolamento di Condominio all'art. 35 riporta l’obbligo di tutti i condomini a far parte del Consorzio Torrino Nord, che ricomprende i proprietari degli immobili ricadenti nel comprensorio Torrino Nord, così come da Convenzione Urbanistica stipulata con il Comune di Roma di cui all'atto a rogito Notaio Ferraguto del 16/10/1989 rep. n. 10212 trascritta a Roma 1 in data 16/11/1989 al n. 58688 di formalità e dal Consorzio Torrino Nord di cui all'atto autenticato nelle firme dallo stesso Notaio in data 16/06/1983 rep. n. 2431 depositato presso la Cancelleria Commerciale del Tribunale di Roma al n. 4003/83 del Registro Società.Formalità pregiudizievoli: Fondo patrimoniale trascritto in data 20/11/2009 formalità n. 84834, trascrizione non cancellabile dalla procedura esecutiva.Formalità non pregiudizievoli (non cancellabili):- Regolamento di Condominio trascritto in data 5/12/1992 formalità n. 49219;- Convenzione a favore del Comune di Roma trascritta in data 15/11/1989 formalità n. 58688.Stato di occupazione: occupato dalla parte esecutata che vi abita. Non potrà emettersi ordine di liberazione prima del decreto di trasferimento.Il tutto come meglio descritto nell’elaborato peritale depositato in atti.864855623099052ALTRA CATEGORIAPOSTO AUTOVia dell'Orsa Maggiore, 66, 00144 Roma RM, Italia00144RomaRomaLazioItaliaBENE 3Quota pari al 100/100 del diritto di proprietà su posto auto ubicato a Roma (RM) - Via dell'Orsa Maggiore 66, edificio A4, interno 21, piano S1, per complessivi mq 35,00 di Superficie Lorda.Identificato al Catasto Fabbricati del Comune di Roma al Foglio 864, Part. 855, Sub. 110, Zc. 6, Categoria C/6, Cl. 13, Rendita Catastale € 150,39.Confina con area di manovra, box n. 20, cantina n. 23 (BENE 2), box n. 22, salvo altri.Non esiste la dichiarazione di conformità dell’impianto elettrico.Il posto auto non risulta regolare alla luce delle autorizzazioni edilizie rilasciate e della normativa vigente dei VV.F. in quanto messo in comunicazione con la cantina retrostante confinante (BENE 2) mediante l'apertura di un vano porta, pertanto, andrà ripristinata la condizione di legittimità a cura e spese dell’aggiudicatario, circostanza di cui si è tenuto conto in sede di stima del compendio staggito.L'edificio di cui fanno parte gli immobili staggiti è stato edificato in forza delle seguenti autorizzazioni rilasciate dal Comune di Roma:- originaria concessione edilizia n. 44354 del 12 maggio 1988 (non reperita presso l'Ufficio SIPRE);- concessione edilizia n. 780 dell’8 maggio 1988 relativa alla realizzazione del piano interrato;- concessione edilizia n. 2088/C del 12 dicembre 1990 per la struttura in c.a.;- concessione edilizia n. 959/C del 24 maggio 1991 per il completamento della costruzione.In data 09/03/1995 è stata rilasciata dal Comune di Roma Ripartizione XV la Certificazione di Abitabilità n. 059 ritirata in data 23/03/1995.Secondo il Piano Territoriale Paesistico Regionale della Regione Lazio 2021 l’edificio di cui fa parte il compendio staggito ricade in:- Tavola “A” 24_374 - Sistemi ed ambiti dei paesaggi - Area ricadente in: Sistema del paesaggio insediativo - Paesaggio degli insediamenti urbani;- Tavola “B” 24_374 - Beni paesaggistici - Area ricadente in: Aree urbanizzate del PTPR;- Tavola “C” 24_374 - Beni del Patrimonio naturale e culturale - Area ricadente in: Beni del Patrimonio Culturale: Tessuto urbano;- Tavola “D” 24_374 - Recepimento delle proposte comunali di modifica dei PTP accolte, parzialmente accolte e prescrizioni - Area ricadente in: accolta / parzialmente accolta con prescrizione.Il Regolamento di Condominio all'art. 35 riporta l’obbligo di tutti i condomini a far parte del Consorzio Torrino Nord, che ricomprende i proprietari degli immobili ricadenti nel comprensorio Torrino Nord, così come da Convenzione Urbanistica stipulata con il Comune di Roma di cui all'atto a rogito Notaio Ferraguto del 16/10/1989 rep. n. 10212 trascritta a Roma 1 in data 16/11/1989 al n. 58688 di formalità e dal Consorzio Torrino Nord di cui all'atto autenticato nelle firme dallo stesso Notaio in data 16/06/1983 rep. n. 2431 depositato presso la Cancelleria Commerciale del Tribunale di Roma al n. 4003/83 del Registro Società.Formalità pregiudizievoli: Fondo patrimoniale trascritto in data 20/11/2009 formalità n. 84834, trascrizione non cancellabile dalla procedura esecutiva.Formalità non pregiudizievoli (non cancellabili):- Regolamento di Condominio trascritto in data 5/12/1992 formalità n. 49219;- Convenzione a favore del Comune di Roma trascritta in data 15/11/1989 formalità n. 58688.Stato di occupazione: occupato dalla parte esecutata che vi abita. Non potrà emettersi ordine di liberazione prima del decreto di trasferimento.Il tutto come meglio descritto nell’elaborato peritale depositato in atti.8648551103099067IMMOBILE RESIDENZIALEABITAZIONE DI TIPO CIVILEVia dell'Orsa Maggiore, 66, 00144 Roma RM, Italia00144RomaRomaLazioItaliaBENE 1Quota pari al 100/100 del diritto di proprietà su appartamento sito in Roma – Via dell’Orsa Maggiore n. 66, edificio A4, scala B, interno 10, piano (attico) 5-6 comunicanti con scala interna,oltre lastrico solare posto al 7° piano comunicante con il piano 6° a mezzo di scala a chiocciola esterna, composto al piano 5° da ingresso, disimpegno, soggiorno, una camera, bagno, cucina, scala interna e balconi su due lati; al piano 6° composto da quattro camere, tre bagni, scala interna, balconi su due lati e scala esterna accedente al lastrico superiore posto al piano 7° ad uso esclusivo, per complessivi mq. 189,14 (l’appartamento) di Superficie Lorda, oltre mq. 76,26 di Superficie Lorda del balcone posto al piano 5°; mq. 51,10 di Superficie Lorda del balcone posto al piano 6° e mq 117,00 di Superficie Lorda del lastrico solare posto al piano 7°. Identificato al Catasto Fabbricati del Comune di Roma al foglio 864, Part. 855, Sub. 27, Zc. 6, Cat. A/2, Cl. 8, vani 11, Rendita Catastale € 2.471,25. Confina con vano scala, appartamento interno 10 scala C, appartamento interno 9 scala B, salvo altri. L'immobile pignorato non è conforme al progetto originario in quanto al piano 5° è stata realizzata una veranda su porzione del balcone servente l'ambiente soggiorno-pranzo costituita da serramenti scorrevoli in alluminio e specchiature in vetrocamera con dimensione frontale circa ml. 4,40 x 2,80 e laterale ml. 110 x 2,80, in modo tale da racchiudere uno spazio di circa mq.16,50 antistante la portafinestra del soggiorno nonché una portafinestra e due serramenti vetrati nel terrazzo antistante la portafinestra della cucina in modo tale da racchiudere uno spazio di circa mq.4,50. Dette opere sono state realizzate in assenza di titolo abilitativo e vanno rimosse a cura e spese dell’aggiudicatario per un costo totale stimato di circa € 2.600,00, di cui si è tenuto conto in sede di stima del compendio staggito.Non esiste il certificato energetico dell'immobile / APE. Non esiste la dichiarazione di conformità dell'impianto elettrico, dell'impianto idrico e dell'impianto termico.L'edificio di cui fanno parte gli immobili staggiti è stato edificato in forza delle seguenti autorizzazioni rilasciate dal Comune di Roma:- originaria concessione edilizia n. 44354 del 12 maggio 1988 (non reperita presso l'Ufficio SIPRE);- concessione edilizia n. 780 dell’8 maggio 1988 relativa alla realizzazione del piano interrato;- concessione edilizia n. 2088/C del 12 dicembre 1990 per la struttura in c.a.;- concessione edilizia n. 959/C del 24 maggio 1991 per il completamento della costruzione.In data 09/03/1995 è stata rilasciata dal Comune di Roma Ripartizione XV la Certificazione di Abitabilità n. 059 ritirata in data 23/03/1995.Secondo il Piano Territoriale Paesistico Regionale della Regione Lazio 2021 l’edificio di cui fa parte il compendio staggito ricade in:- Tavola “A” 24_374 - Sistemi ed ambiti dei paesaggi - Area ricadente in: Sistema del paesaggio insediativo - Paesaggio degli insediamenti urbani;- Tavola “B” 24_374 - Beni paesaggistici - Area ricadente in: Aree urbanizzate del PTPR;- Tavola “C” 24_374 - Beni del Patrimonio naturale e culturale - Area ricadente in: Beni del Patrimonio Culturale: Tessuto urbano;- Tavola “D” 24_374 - Recepimento delle proposte comunali di modifica dei PTP accolte, parzialmente accolte e prescrizioni - Area ricadente in: accolta / parzialmente accolta con prescrizione.Il Regolamento di Condominio all'art. 35 riporta l’obbligo di tutti i condomini a far parte del Consorzio Torrino Nord, che ricomprende i proprietari degli immobili ricadenti nel comprensorio Torrino Nord, così come da Convenzione Urbanistica stipulata con il Comune di Roma di cui all'atto a rogito Notaio Ferraguto del 16/10/1989 rep. n. 10212 trascritta a Roma 1 in data 16/11/1989 al n. 58688 di formalità e dal Consorzio Torrino Nord di cui all'atto autenticato nelle firme dallo stesso Notaio in data 16/06/1983 rep. n. 2431 depositato presso la Cancelleria Commerciale del Tribunale di Roma al n. 4003/83 del Registro Società.Formalità pregiudizievoli: Fondo patrimoniale trascritto in data 20/11/2009 formalità n. 84834, trascrizione non cancellabile dalla procedura esecutiva.Formalità non pregiudizievoli (non cancellabili):- Regolamento di Condominio trascritto in data 5/12/1992 formalità n. 49219;- Convenzione a favore del Comune di Roma trascritta in data 15/11/1989 formalità n. 58688.Stato di occupazione: occupato dalla parte esecutata che vi abita. Non potrà emettersi ordine di liberazione prima del decreto di trasferimento.Il tutto come meglio descritto nell’elaborato peritale depositato in atti.864855272026-05-21T14:00:00SENZA INCANTOASINCRONA TELEMATICAN.A.917.700,00688.275,0010.000,002026-05-20T23:59:00gestore delle venditehttps://www.garavirtuale.ithttps://www.garavirtuale.itsito pubblicitahttps://www.astegiudiziarie.ithttps://www.astegiudiziarie.itsito pubblicitahttps://www.asteannunci.ithttps://www.asteannunci.itsito pubblicitahttps://www.fallcoaste.ithttps://www.fallcoaste.it2026-03-02

Cantina, posto auto, abitazione di tipo civile

Via dell'Orsa Maggiore, 66, 00144 Roma RM, Italia, Roma (RM)

€ 917.700,00

Offerta minima € 688.275,00


Codice A4346056

Lotto Lotto unico

Data udienza 21/05/2026 ore 14:00

Termine presentazione offerte 20/05/2026 ore 23:59

Cantina, posto auto, abitazione di tipo civile

Via dell'Orsa Maggiore, 66, 00144 Roma RM, Italia, Roma (RM)

€ 917.700,00

Offerta minima € 688.275,00


Codice A4346056

Lotto Lotto unico

Data udienza 21/05/2026 ore 14:00

Termine presentazione offerte 20/05/2026 ore 23:59

Ti interessa questa vendita?

Documentazione

Visualizza su mappa

Mappa geografica del bene

Punti di interesse

Fonte dati

Nel raggio di {{range}}Km

Loading...
  • {{ getIcon(poi.type) }} {{ poi.localized }}: {{poi.count}}
  • {{ getIcon(poi.type) }} {{ poi.localized }}: {{poi.count}}
Dati non disponibili

Piena proprietà su appartamento sito in Roma, Via dell’Orsa Maggiore n. 66, edificio A4, scala B, interno 10, piano (attico) 5-6 comunicanti con scala interna, oltre lastrico solare posto al 7° piano comunicante con il piano 6° a mezzo di scala esterna. Cantina e posto auto posti al piano S1. Compendio occupato dalla parte esecutata che vi abita. Non potrà emettersi ordine di liberazione prima del decreto di trasferimento.

Indirizzo
Via dell'Orsa Maggiore, 66, 00144 Roma RM, Italia, Roma (RM)


Codice asta
4346056


Lotto
Lotto unico


Numero beni
3


Genere
Immobili


Categoria
Altra categoria


Valore di stima
-


Cantina

BENE 2Quota pari al 100/100 del diritto di proprietà su cantina ubicata in Roma, Via dell'Orsa Maggiore 66, edificio A4, interno 23, piano S1, per complessivi mq 9,20 di Superficie Lorda. Identificato al Catasto Fabbricati del Comune di Roma al Foglio 864, Part. 855, Sub. 62, Zc. 6, Cat. C/2, Cl. 7, Rendita Catastale € 23,55.Confina con corridoio d'accesso, cantina n. 24, box n. 21 (BENE 3), cantina n. 22, salvo altri. Non esiste la dichiarazione di conformità dell'impianto elettrico. La cantina non risulta regolare alla luce delle autorizzazioni edilizie rilasciate e della normativa vigente dei VV.F. in quanto messa in comunicazione con il box confinante (BENE 3) mediante l'apertura di un vano porta, pertanto, andrà ripristinata la condizione di legittimità a cura e spese dell’aggiudicatario, circostanza di cui si è tenuto conto in sede di stima del compendio staggito.L'edificio di cui fanno parte gli immobili staggiti è stato edificato in forza delle seguenti autorizzazioni rilasciate dal Comune di Roma:- originaria concessione edilizia n. 44354 del 12 maggio 1988 (non reperita presso l'Ufficio SIPRE);- concessione edilizia n. 780 dell’8 maggio 1988 relativa alla realizzazione del piano interrato;- concessione edilizia n. 2088/C del 12 dicembre 1990 per la struttura in c.a.;- concessione edilizia n. 959/C del 24 maggio 1991 per il completamento della costruzione.In data 09/03/1995 è stata rilasciata dal Comune di Roma Ripartizione XV la Certificazione di Abitabilità n. 059 ritirata in data 23/03/1995.Secondo il Piano Territoriale Paesistico Regionale della Regione Lazio 2021 l’edificio di cui fa parte il compendio staggito ricade in:- Tavola “A” 24_374 - Sistemi ed ambiti dei paesaggi - Area ricadente in: Sistema del paesaggio insediativo - Paesaggio degli insediamenti urbani;- Tavola “B” 24_374 - Beni paesaggistici - Area ricadente in: Aree urbanizzate del PTPR;- Tavola “C” 24_374 - Beni del Patrimonio naturale e culturale - Area ricadente in: Beni del Patrimonio Culturale: Tessuto urbano;- Tavola “D” 24_374 - Recepimento delle proposte comunali di modifica dei PTP accolte, parzialmente accolte e prescrizioni - Area ricadente in: accolta / parzialmente accolta con prescrizione.Il Regolamento di Condominio all'art. 35 riporta l’obbligo di tutti i condomini a far parte del Consorzio Torrino Nord, che ricomprende i proprietari degli immobili ricadenti nel comprensorio Torrino Nord, così come da Convenzione Urbanistica stipulata con il Comune di Roma di cui all'atto a rogito Notaio Ferraguto del 16/10/1989 rep. n. 10212 trascritta a Roma 1 in data 16/11/1989 al n. 58688 di formalità e dal Consorzio Torrino Nord di cui all'atto autenticato nelle firme dallo stesso Notaio in data 16/06/1983 rep. n. 2431 depositato presso la Cancelleria Commerciale del Tribunale di Roma al n. 4003/83 del Registro Società.Formalità pregiudizievoli: Fondo patrimoniale trascritto in data 20/11/2009 formalità n. 84834, trascrizione non cancellabile dalla procedura esecutiva.Formalità non pregiudizievoli (non cancellabili):- Regolamento di Condominio trascritto in data 5/12/1992 formalità n. 49219;- Convenzione a favore del Comune di Roma trascritta in data 15/11/1989 formalità n. 58688.Stato di occupazione: occupato dalla parte esecutata che vi abita. Non potrà emettersi ordine di liberazione prima del decreto di trasferimento.Il tutto come meglio descritto nell’elaborato peritale depositato in atti.

Indirizzo
Via dell'Orsa Maggiore, 66, 00144 Roma RM, Italia, Roma (RM)


Piano
s1


Disponibilità
-


Vani
1,00


Bagni
0


Metri quadri
8,00


Certificazione energetica
-


Dati catastali

Foglio:864, Particella:855, Subalterno:62


Posto auto

BENE 3Quota pari al 100/100 del diritto di proprietà su posto auto ubicato a Roma (RM) - Via dell'Orsa Maggiore 66, edificio A4, interno 21, piano S1, per complessivi mq 35,00 di Superficie Lorda.Identificato al Catasto Fabbricati del Comune di Roma al Foglio 864, Part. 855, Sub. 110, Zc. 6, Categoria C/6, Cl. 13, Rendita Catastale € 150,39.Confina con area di manovra, box n. 20, cantina n. 23 (BENE 2), box n. 22, salvo altri.Non esiste la dichiarazione di conformità dell’impianto elettrico.Il posto auto non risulta regolare alla luce delle autorizzazioni edilizie rilasciate e della normativa vigente dei VV.F. in quanto messo in comunicazione con la cantina retrostante confinante (BENE 2) mediante l'apertura di un vano porta, pertanto, andrà ripristinata la condizione di legittimità a cura e spese dell’aggiudicatario, circostanza di cui si è tenuto conto in sede di stima del compendio staggito.L'edificio di cui fanno parte gli immobili staggiti è stato edificato in forza delle seguenti autorizzazioni rilasciate dal Comune di Roma:- originaria concessione edilizia n. 44354 del 12 maggio 1988 (non reperita presso l'Ufficio SIPRE);- concessione edilizia n. 780 dell’8 maggio 1988 relativa alla realizzazione del piano interrato;- concessione edilizia n. 2088/C del 12 dicembre 1990 per la struttura in c.a.;- concessione edilizia n. 959/C del 24 maggio 1991 per il completamento della costruzione.In data 09/03/1995 è stata rilasciata dal Comune di Roma Ripartizione XV la Certificazione di Abitabilità n. 059 ritirata in data 23/03/1995.Secondo il Piano Territoriale Paesistico Regionale della Regione Lazio 2021 l’edificio di cui fa parte il compendio staggito ricade in:- Tavola “A” 24_374 - Sistemi ed ambiti dei paesaggi - Area ricadente in: Sistema del paesaggio insediativo - Paesaggio degli insediamenti urbani;- Tavola “B” 24_374 - Beni paesaggistici - Area ricadente in: Aree urbanizzate del PTPR;- Tavola “C” 24_374 - Beni del Patrimonio naturale e culturale - Area ricadente in: Beni del Patrimonio Culturale: Tessuto urbano;- Tavola “D” 24_374 - Recepimento delle proposte comunali di modifica dei PTP accolte, parzialmente accolte e prescrizioni - Area ricadente in: accolta / parzialmente accolta con prescrizione.Il Regolamento di Condominio all'art. 35 riporta l’obbligo di tutti i condomini a far parte del Consorzio Torrino Nord, che ricomprende i proprietari degli immobili ricadenti nel comprensorio Torrino Nord, così come da Convenzione Urbanistica stipulata con il Comune di Roma di cui all'atto a rogito Notaio Ferraguto del 16/10/1989 rep. n. 10212 trascritta a Roma 1 in data 16/11/1989 al n. 58688 di formalità e dal Consorzio Torrino Nord di cui all'atto autenticato nelle firme dallo stesso Notaio in data 16/06/1983 rep. n. 2431 depositato presso la Cancelleria Commerciale del Tribunale di Roma al n. 4003/83 del Registro Società.Formalità pregiudizievoli: Fondo patrimoniale trascritto in data 20/11/2009 formalità n. 84834, trascrizione non cancellabile dalla procedura esecutiva.Formalità non pregiudizievoli (non cancellabili):- Regolamento di Condominio trascritto in data 5/12/1992 formalità n. 49219;- Convenzione a favore del Comune di Roma trascritta in data 15/11/1989 formalità n. 58688.Stato di occupazione: occupato dalla parte esecutata che vi abita. Non potrà emettersi ordine di liberazione prima del decreto di trasferimento.Il tutto come meglio descritto nell’elaborato peritale depositato in atti.

Indirizzo
Via dell'Orsa Maggiore, 66, 00144 Roma RM, Italia, Roma (RM)


Piano
s1


Disponibilità
-


Vani
1,00


Bagni
0


Metri quadri
32,00


Certificazione energetica
-


Dati catastali

Foglio:864, Particella:855, Subalterno:110


Abitazione di tipo civile

BENE 1Quota pari al 100/100 del diritto di proprietà su appartamento sito in Roma – Via dell’Orsa Maggiore n. 66, edificio A4, scala B, interno 10, piano (attico) 5-6 comunicanti con scala interna,oltre lastrico solare posto al 7° piano comunicante con il piano 6° a mezzo di scala a chiocciola esterna, composto al piano 5° da ingresso, disimpegno, soggiorno, una camera, bagno, cucina, scala interna e balconi su due lati; al piano 6° composto da quattro camere, tre bagni, scala interna, balconi su due lati e scala esterna accedente al lastrico superiore posto al piano 7° ad uso esclusivo, per complessivi mq. 189,14 (l’appartamento) di Superficie Lorda, oltre mq. 76,26 di Superficie Lorda del balcone posto al piano 5°; mq. 51,10 di Superficie Lorda del balcone posto al piano 6° e mq 117,00 di Superficie Lorda del lastrico solare posto al piano 7°. Identificato al Catasto Fabbricati del Comune di Roma al foglio 864, Part. 855, Sub. 27, Zc. 6, Cat. A/2, Cl. 8, vani 11, Rendita Catastale € 2.471,25. Confina con vano scala, appartamento interno 10 scala C, appartamento interno 9 scala B, salvo altri. L'immobile pignorato non è conforme al progetto originario in quanto al piano 5° è stata realizzata una veranda su porzione del balcone servente l'ambiente soggiorno-pranzo costituita da serramenti scorrevoli in alluminio e specchiature in vetrocamera con dimensione frontale circa ml. 4,40 x 2,80 e laterale ml. 110 x 2,80, in modo tale da racchiudere uno spazio di circa mq.16,50 antistante la portafinestra del soggiorno nonché una portafinestra e due serramenti vetrati nel terrazzo antistante la portafinestra della cucina in modo tale da racchiudere uno spazio di circa mq.4,50. Dette opere sono state realizzate in assenza di titolo abilitativo e vanno rimosse a cura e spese dell’aggiudicatario per un costo totale stimato di circa € 2.600,00, di cui si è tenuto conto in sede di stima del compendio staggito.Non esiste il certificato energetico dell'immobile / APE. Non esiste la dichiarazione di conformità dell'impianto elettrico, dell'impianto idrico e dell'impianto termico.L'edificio di cui fanno parte gli immobili staggiti è stato edificato in forza delle seguenti autorizzazioni rilasciate dal Comune di Roma:- originaria concessione edilizia n. 44354 del 12 maggio 1988 (non reperita presso l'Ufficio SIPRE);- concessione edilizia n. 780 dell’8 maggio 1988 relativa alla realizzazione del piano interrato;- concessione edilizia n. 2088/C del 12 dicembre 1990 per la struttura in c.a.;- concessione edilizia n. 959/C del 24 maggio 1991 per il completamento della costruzione.In data 09/03/1995 è stata rilasciata dal Comune di Roma Ripartizione XV la Certificazione di Abitabilità n. 059 ritirata in data 23/03/1995.Secondo il Piano Territoriale Paesistico Regionale della Regione Lazio 2021 l’edificio di cui fa parte il compendio staggito ricade in:- Tavola “A” 24_374 - Sistemi ed ambiti dei paesaggi - Area ricadente in: Sistema del paesaggio insediativo - Paesaggio degli insediamenti urbani;- Tavola “B” 24_374 - Beni paesaggistici - Area ricadente in: Aree urbanizzate del PTPR;- Tavola “C” 24_374 - Beni del Patrimonio naturale e culturale - Area ricadente in: Beni del Patrimonio Culturale: Tessuto urbano;- Tavola “D” 24_374 - Recepimento delle proposte comunali di modifica dei PTP accolte, parzialmente accolte e prescrizioni - Area ricadente in: accolta / parzialmente accolta con prescrizione.Il Regolamento di Condominio all'art. 35 riporta l’obbligo di tutti i condomini a far parte del Consorzio Torrino Nord, che ricomprende i proprietari degli immobili ricadenti nel comprensorio Torrino Nord, così come da Convenzione Urbanistica stipulata con il Comune di Roma di cui all'atto a rogito Notaio Ferraguto del 16/10/1989 rep. n. 10212 trascritta a Roma 1 in data 16/11/1989 al n. 58688 di formalità e dal Consorzio Torrino Nord di cui all'atto autenticato nelle firme dallo stesso Notaio in data 16/06/1983 rep. n. 2431 depositato presso la Cancelleria Commerciale del Tribunale di Roma al n. 4003/83 del Registro Società.Formalità pregiudizievoli: Fondo patrimoniale trascritto in data 20/11/2009 formalità n. 84834, trascrizione non cancellabile dalla procedura esecutiva.Formalità non pregiudizievoli (non cancellabili):- Regolamento di Condominio trascritto in data 5/12/1992 formalità n. 49219;- Convenzione a favore del Comune di Roma trascritta in data 15/11/1989 formalità n. 58688.Stato di occupazione: occupato dalla parte esecutata che vi abita. Non potrà emettersi ordine di liberazione prima del decreto di trasferimento.Il tutto come meglio descritto nell’elaborato peritale depositato in atti.

Indirizzo
Via dell'Orsa Maggiore, 66, 00144 Roma RM, Italia, Roma (RM)


Piano
5-6-7


Disponibilità
-


Vani
189,00


Bagni
5


Metri quadri
11,00


Certificazione energetica
-


Dati catastali

Foglio:864, Particella:855, Subalterno:27


Data udienza
21/05/2026 ore 14:00


Tipo di vendita
Senza incanto


Modalità di vendita
Asincrona telematica


Luogo
N.A. -


Luogo presentazione offerte
-


Termine presentazione offerte
20/05/2026 ore 23:59


Prezzo base
€ 917.700,00


Offerta minima
€ 688.275,00


Rialzo minimo in caso di gara
€ 10.000,00


Deposito cauzionale
-


Deposito in conto spese
-


Tribunale
Roma

Tipo di procedura
Espropriazione immobiliare (cartabia)

Ruolo
1333/2023

Giudice
Lauropoli Giuseppe

Recapiti
-

Email
-

Delegato alla vendita
Vallone Rosita
(Procede alle operazioni di vendita)

Recapiti
-

Email
-

Custode giudiziario
Ivg di roma srl 
(Gestisce la visita del bene)

Recapiti
Tel. 0683751500

Scheda COD. 4346056 - Pubblicata dal 02/04/2026

La presente scheda di vendita riporta integralmente informazioni e documenti pervenuti ufficialmente dal Ministero e dal professionista incaricato.


Pubblicazione autorizzata dall’Autorità competente, è vietata ogni ripubblicazione o riproduzione anche parziale


Ti interessa questa vendita?

Documentazione

Visualizza su mappa

Mappa geografica del bene

Punti di interesse

Fonte dati

Nel raggio di {{range}}Km

Loading...
  • {{ getIcon(poi.type) }} {{ poi.localized }}: {{poi.count}}
  • {{ getIcon(poi.type) }} {{ poi.localized }}: {{poi.count}}
Dati non disponibili