Astegiudiziarie.it è parte di Rete Aste Network

Accedi o registrati

Non sei ancora registrato?

Oppure

Accedi

Abitazione di tipo economico, garage o autorimessa

Via Risorgimento, 15/19, 27030 Zeme PV, Italia, Zeme (PV)

€ 20.250,00

Offerta minima € 15.190,00


Codice A4324138

Lotto Lotto unico

Data udienza 21/01/2026 ore 10:30

Termine presentazione offerte 20/01/2026 ore 12:00

Abitazione di tipo economico, garage o autorimessa

Via Risorgimento, 15/19, 27030 Zeme PV, Italia, Zeme (PV)

€ 20.250,00

Offerta minima € 15.190,00


Codice A4324138

Lotto Lotto unico

Data udienza 21/01/2026 ore 10:30

Termine presentazione offerte 20/01/2026 ore 12:00

Ti interessa questa vendita?

Documentazione

Visualizza su mappa

Mappa geografica del bene

Punti di interesse

Fonte dati

Nel raggio di {{range}}Km

Loading...
  • {{ getIcon(poi.type) }} {{ poi.localized }}: {{poi.count}}
  • {{ getIcon(poi.type) }} {{ poi.localized }}: {{poi.count}}
Dati non disponibili

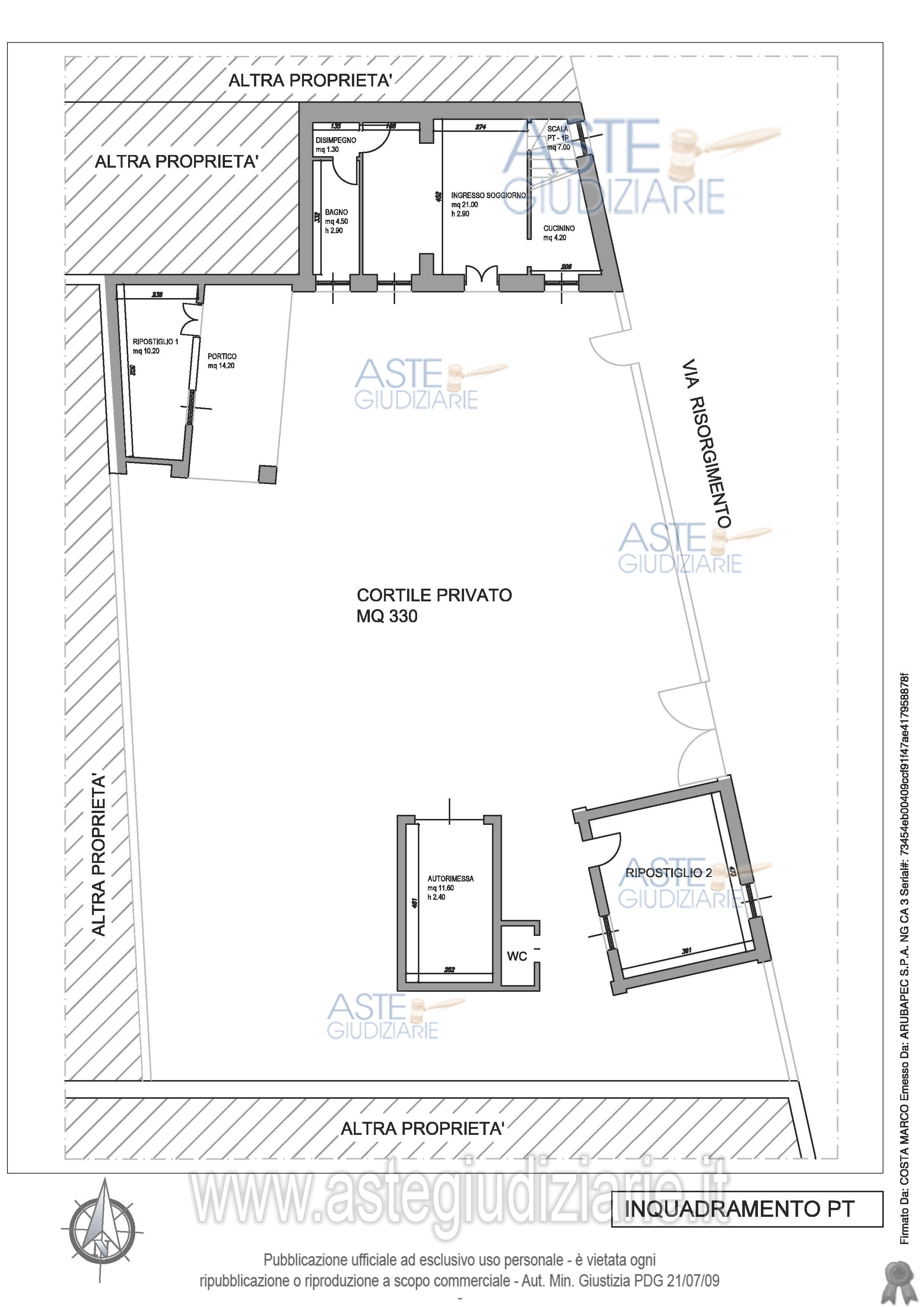
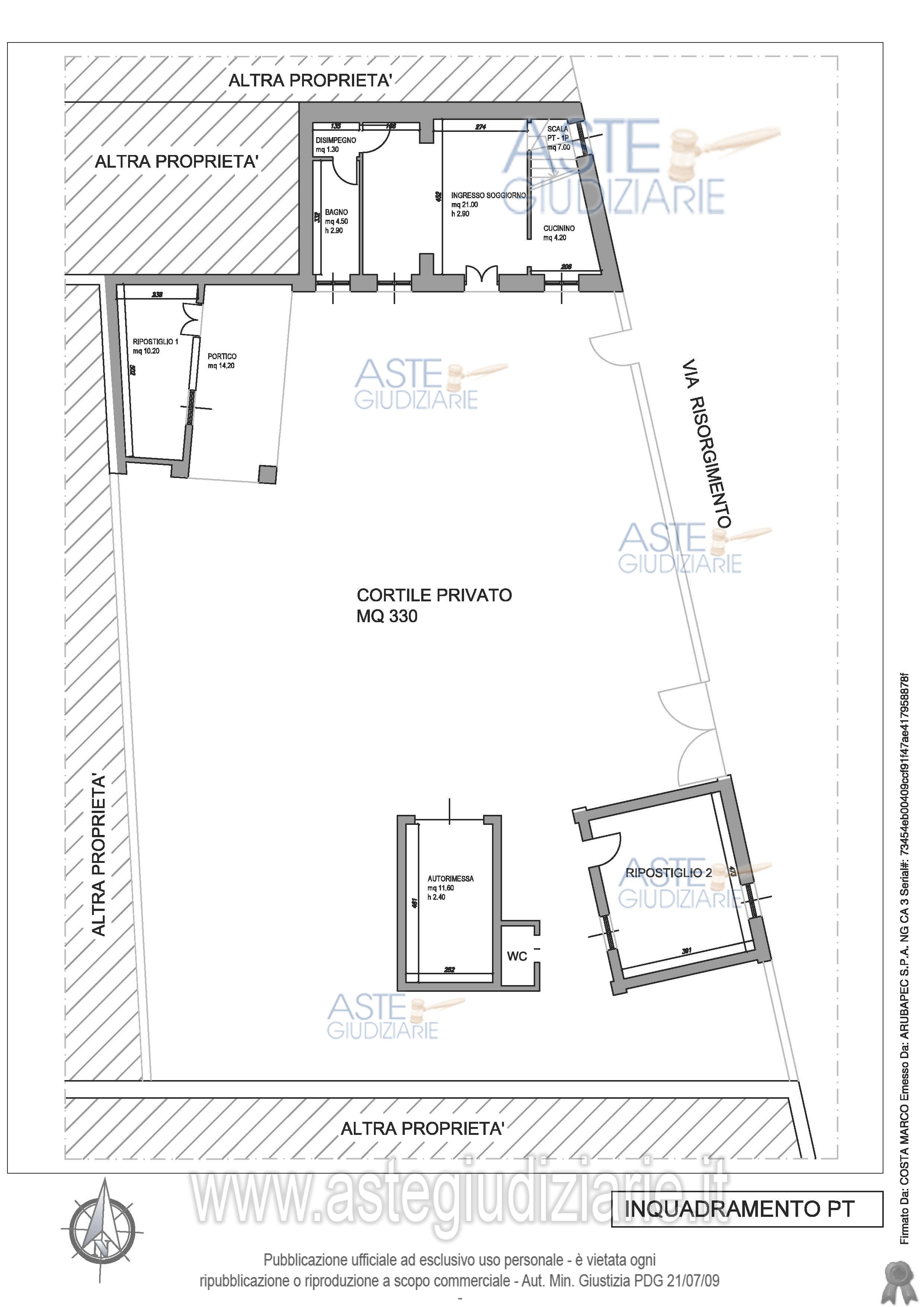
Casa di abitazione distribuita su due piani fuori terra oltre locale tettoia e cassero legnaia al primo piano con accesso dal cortile privato, corredata da locali accessori edificati in corpo staccato sul cortile privato

Indirizzo
Via Risorgimento, 15/19, 27030 Zeme PV, Italia, Zeme (PV)


Codice asta
4324138


Lotto
Lotto unico


Numero beni
2


Genere
Immobili


Categoria
Immobile residenziale


Valore di stima
-


Abitazione di tipo economico

Unità residenziale con ingresso dal cortile privato su soggiorno con piccolo cucinino ricavato nel sottoscala, disimpegno e servizio igienico al piano terra; scala di collegamento al primo piano, quest’ultimo composto da due locali di cui uno dotato di piccolo locale igienico e balcone con affaccio sul cortile privato; completano il fabbricato il locale accessorio edificato in aderenza alla casa di abitazione e il cassero legnaia al primo piano

Indirizzo
Via Risorgimento, 19, 27030 Zeme PV, Italia, Zeme (PV)


Piano
-


Disponibilità
-


Vani
7,00


Bagni
-


Metri quadri
106,00


Certificazione energetica
-


Garage o autorimessa

Locali accessori edificati in corpo staccato sul cortile privato composti da un locale magazzino con cassero, un’autorimessa ed un piccolo servizio igienico.

Indirizzo
Via Risorgimento, 19, 27030 Zeme PV, Italia, Zeme (PV)


Piano
-


Disponibilità
-


Vani
-


Bagni
-


Metri quadri
10,00


Certificazione energetica
-


Data udienza
21/01/2026 ore 10:30


Tipo di vendita
Senza incanto


Modalità di vendita
Asincrona telematica


Luogo
N.A. -


Luogo presentazione offerte
-


Termine presentazione offerte
20/01/2026 ore 12:00


Prezzo base
€ 20.250,00


Offerta minima
€ 15.190,00


Rialzo minimo in caso di gara
€ 1.000,00


Deposito cauzionale
10% del prezzo offerto


Deposito in conto spese
-


Tribunale
Pavia

Tipo di procedura
Espropriazione immobiliare (cartabia)

Ruolo
354/2023

Giudice
Rizzi 

Recapiti
-

Email
-

Delegato alla vendita
Fraccari Gianluca
(Procede alle operazioni di vendita)

Recapiti
-

Email
-

Custode giudiziario
Ivg di vigevano 
(Gestisce la visita del bene)

Recapiti
-

Scheda COD. 4324138 - Pubblicata dal 01/12/2025

La presente scheda di vendita riporta integralmente informazioni e documenti pervenuti ufficialmente dal Ministero e dal professionista incaricato.


Pubblicazione autorizzata dall’Autorità competente, è vietata ogni ripubblicazione o riproduzione anche parziale


Ti interessa questa vendita?

Documentazione

Visualizza su mappa

Mappa geografica del bene

Storico delle vendite

Data venditaPrezzo base
22/05/2025€ 27.000,00
21/01/2026€ 20.250,00

Punti di interesse

Fonte dati

Nel raggio di {{range}}Km

Loading...
  • {{ getIcon(poi.type) }} {{ poi.localized }}: {{poi.count}}
  • {{ getIcon(poi.type) }} {{ poi.localized }}: {{poi.count}}
Dati non disponibili