Astegiudiziarie.it è parte di Rete Aste Network

Accedi o registrati

Non sei ancora registrato?

Oppure

Accedi

Abitazione di tipo civile

Via XXIV Aprile 1/f, 97019 Vittoria RG, Italia, Vittoria (RG)

€ 16.495,32

Offerta minima € 12.371,49


Codice A4322701

Lotto Lotto unico

Data udienza 25/11/2025 ore 16:00

Termine presentazione offerte 24/11/2025 ore 13:00

Abitazione di tipo civile

Via XXIV Aprile 1/f, 97019 Vittoria RG, Italia, Vittoria (RG)

€ 16.495,32

Offerta minima € 12.371,49


Codice A4322701

Lotto Lotto unico

Data udienza 25/11/2025 ore 16:00

Termine presentazione offerte 24/11/2025 ore 13:00

Ti interessa questa vendita?

Documentazione

Visualizza su mappa

Mappa geografica del bene

Punti di interesse

Fonte dati

Nel raggio di {{range}}Km

Loading...
  • {{ getIcon(poi.type) }} {{ poi.localized }}: {{poi.count}}
  • {{ getIcon(poi.type) }} {{ poi.localized }}: {{poi.count}}
Dati non disponibili

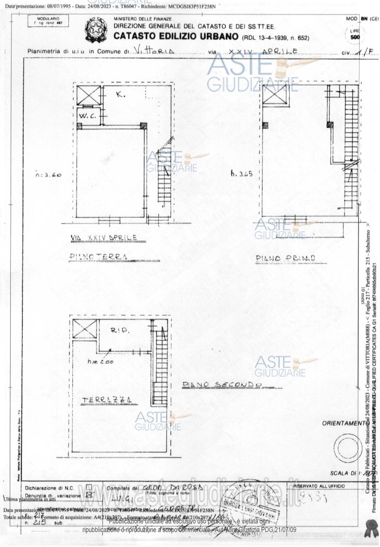
L’abitazione si sviluppa su tre livelli di circa 121,00 mq lordi (115,00 mq escluse le parti scoperte). Al fabbricato si accede da un portone che conduce ad un vano scala e ad una vano a piano terra sfruttato come ingresso-soggiorno con attigua cucina con comodità di bagno e ripostiglio ricavato nel pozzo luce con copertura precaria in plexiglas, al primo piano è situata la zona notte dell' abitazione mentre la zona ripostiglio-sgombero con terrazza si trova al secondo livello.

Indirizzo
Via XXIV Aprile 1/f, 97019 Vittoria RG, Italia, Vittoria (RG)


Codice asta
4322701


Lotto
Lotto unico


Numero beni
1


Genere
Immobili


Categoria
Immobile residenziale


Valore di stima
-


Abitazione di tipo civile

L’abitazione si sviluppa su tre livelli di circa 121,00 mq lordi (115,00 mq escluse le parti scoperte). Al fabbricato si accede da un portone che conduce ad un vano scala e ad una vano a piano terra sfruttato come ingresso-soggiorno con attigua cucina con comodità di bagno e ripostiglio ricavato nel pozzo luce con copertura precaria in plexiglas, al primo piano è situata la zona notte dell' abitazione mentre la zona ripostiglio-sgombero con terrazza si trova al secondo livello.

Indirizzo
Via 24 Aprile 1/F Vittoria , Vittoria (RG)


Piano
-


Disponibilità
OCCUPATO


Vani
3,50


Bagni
1


Metri quadri
121,00


Certificazione energetica
-


Dati catastali

Foglio:217, Particella:215


Data udienza
25/11/2025 ore 16:00


Tipo di vendita
Senza incanto


Modalità di vendita
Sincrona mista


Luogo
Via Statale 2/A - Ispica 97014


Luogo presentazione offerte
-


Termine presentazione offerte
24/11/2025 ore 13:00


Prezzo base
€ 16.495,32


Offerta minima
€ 12.371,49


Rialzo minimo in caso di gara
€ 500,00


Deposito cauzionale
10% del prezzo offerto


Deposito in conto spese
-


Tribunale
Ragusa

Tipo di procedura
Espropriazione immobiliare (cartabia)

Ruolo
148/2023

Giudice
Di cataldo Carlo

Recapiti
-

Email
-

Delegato alla vendita
Rabbito Massimo
(Procede alle operazioni di vendita)
(Gestisce la visita del bene)

Recapiti
Cell. 3385698911

Scheda COD. 4322701 - Pubblicata dal 01/10/2025

La presente scheda di vendita riporta integralmente informazioni e documenti pervenuti ufficialmente dal Ministero e dal professionista incaricato.


Pubblicazione autorizzata dall’Autorità competente, è vietata ogni ripubblicazione o riproduzione anche parziale


Ti interessa questa vendita?

Documentazione

Visualizza su mappa

Mappa geografica del bene

Storico delle vendite

Data venditaPrezzo base
20/05/2025€ 29.325,00
31/07/2025€ 21.993,75
25/11/2025€ 16.495,32

Punti di interesse

Fonte dati

Nel raggio di {{range}}Km

Loading...
  • {{ getIcon(poi.type) }} {{ poi.localized }}: {{poi.count}}
  • {{ getIcon(poi.type) }} {{ poi.localized }}: {{poi.count}}
Dati non disponibili