Astegiudiziarie.it è parte di Rete Aste Network

Accedi o registrati

Non sei ancora registrato?

Oppure

Accedi

Abitazione di tipo civile

Vico I Garibaldi, 10, Villanovafranca (SU)

€ 50.600,00

Offerta minima € 37.950,00


Codice A228272

Lotto Lotto unico

Data udienza 04/03/2026 ore 11:00

Termine presentazione offerte 03/03/2026 ore 13:00

Abitazione di tipo civile

Vico I Garibaldi, 10, Villanovafranca (SU)

€ 50.600,00

Offerta minima € 37.950,00


Codice A228272

Lotto Lotto unico

Data udienza 04/03/2026 ore 11:00

Termine presentazione offerte 03/03/2026 ore 13:00

Vendita deserta - Prossima presunta vendita il 10/06/2026 ore 11:00

Ti interessa questa vendita?

Documentazione

Visualizza su mappa

Mappa geografica del bene

Punti di interesse

Fonte dati

Nel raggio di {{range}}Km

Loading...
  • {{ getIcon(poi.type) }} {{ poi.localized }}: {{poi.count}}
  • {{ getIcon(poi.type) }} {{ poi.localized }}: {{poi.count}}
Dati non disponibili

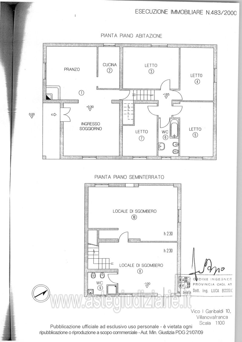
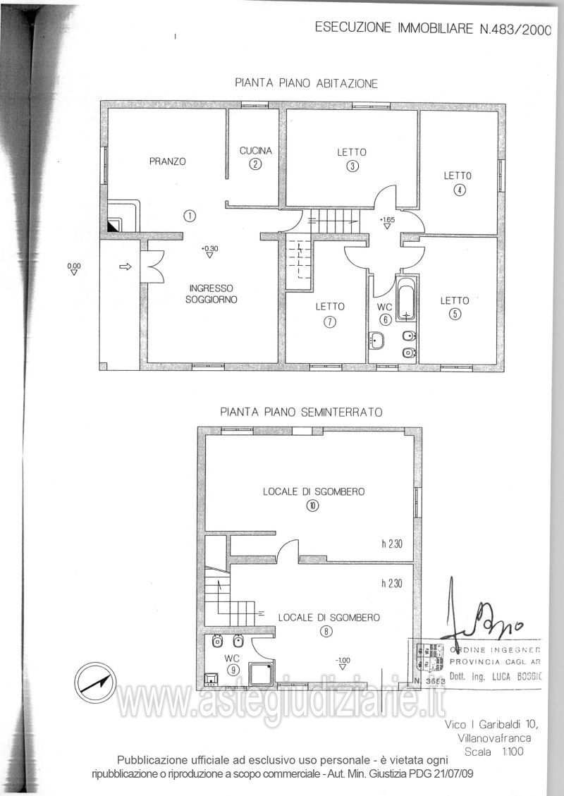
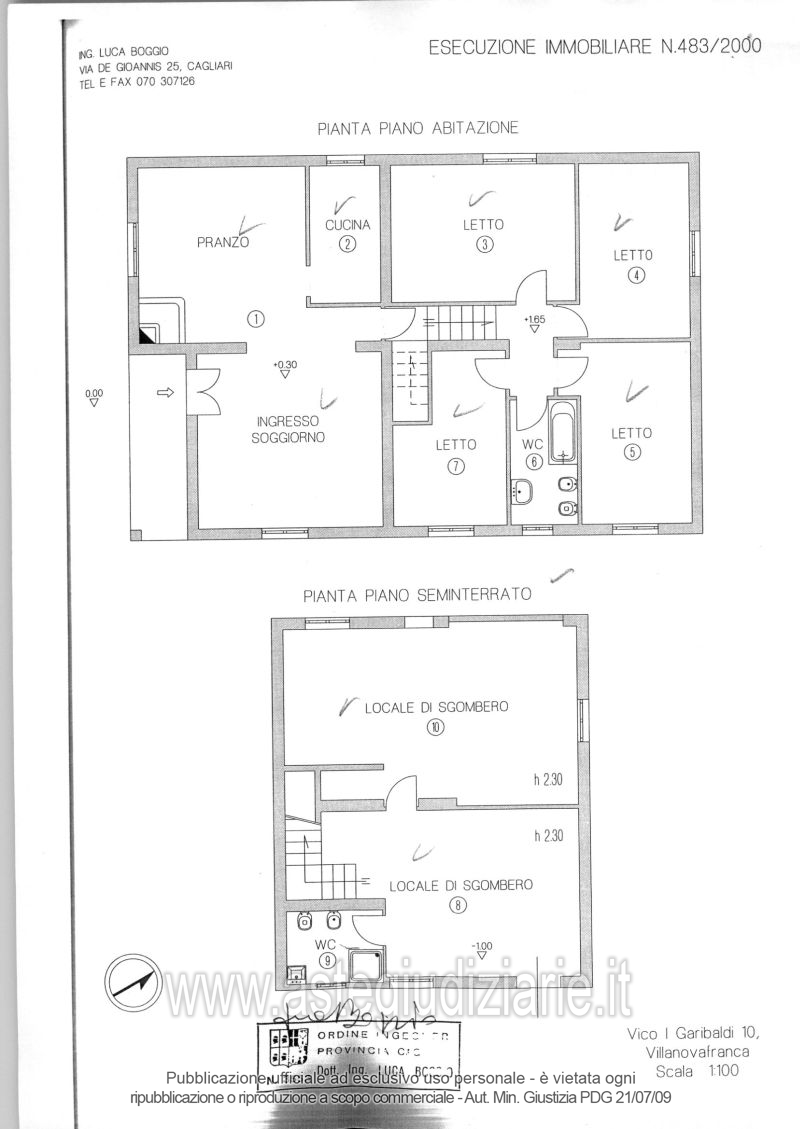
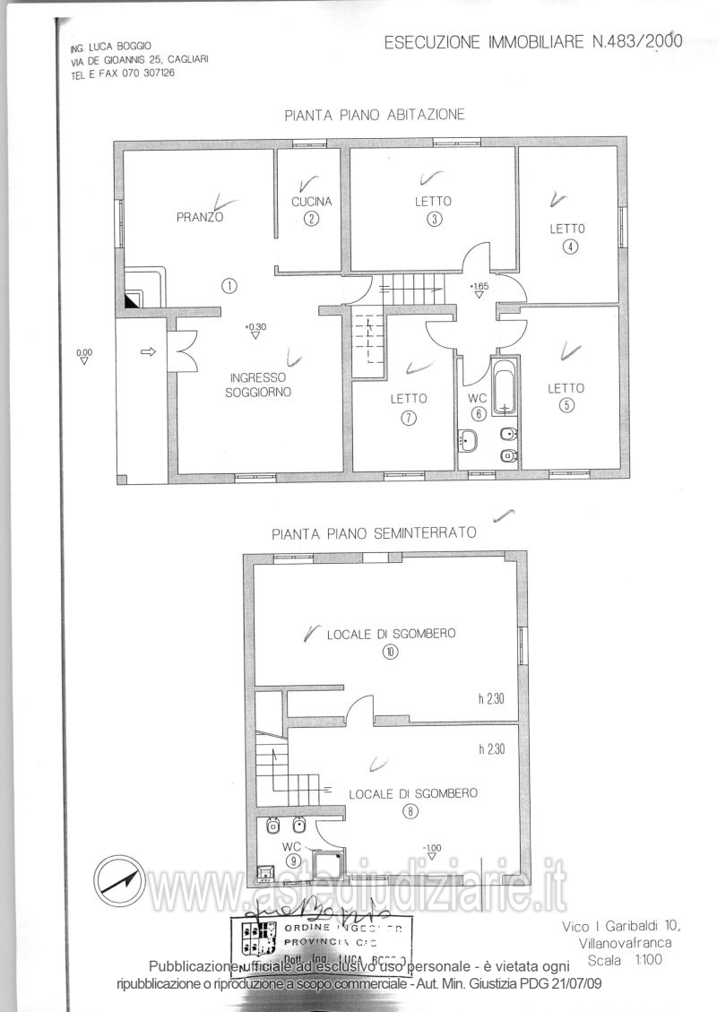
quota pari all’intero del diritto di proprietà sul fabbricato residenziale su due livelli, terra e seminterrato, con accesso dal Vico Garibaldi n.10/12, composto al piano terra da quattro camere, soggiorno-sala da pranzo, cucina, disimpegno, due bagni e al piano seminterrato da due cantine e un bagno.

Indirizzo
Vico I Garibaldi, 10, Villanovafranca (SU)


Codice asta
228272


Lotto
Lotto unico


Numero beni
1


Genere
Immobili


Categoria
Immobile residenziale


Valore di stima
-


Abitazione di tipo civile

quota pari all’intero del diritto di proprietà sul fabbricatoresidenziale su due livelli, terra e seminterrato, con accesso dal Vico Garibaldi n.10/12, composto al piano terrada quattro camere, soggiorno-sala da pranzo, cucina, disimpegno, due bagni e al piano seminterrato da duecantine e un bagno.

Indirizzo
Vico I Garibaldi, 10, Villanovafranca (VS)


Piano
-


Disponibilità
-


Vani
9,00


Bagni
-


Metri quadri
215,00


Certificazione energetica
-


Tribunale
Cagliari

Tipo di procedura
Esecuzione immobiliare post legge 80

Ruolo
483/2000

Giudice
De giorgi Francesco

Recapiti
-

Email
-

Delegato alla vendita
Tardiola Paolo
(Procede alle operazioni di vendita)

Recapiti
Tel. 07060222574

Email
ufficiouniconotai@pec.it

Custode giudiziario
Ivg cagliari 
(Gestisce la visita del bene)

Recapiti
Tel. 0702299036

Email

Scheda COD. 228272 - Pubblicata dal 12/01/2026

La presente scheda di vendita riporta integralmente informazioni e documenti pervenuti ufficialmente dal Ministero e dal professionista incaricato.

La sua pubblicazione è prolungata, in conformità agli accordi con il Tribunale, con l’obiettivo di garantire un’informazione continua e aggiornata, nel rispetto delle tempistiche procedurali.


Pubblicazione autorizzata dall’Autorità competente, è vietata ogni ripubblicazione o riproduzione anche parziale


Ti interessa questa vendita?

Documentazione

Visualizza su mappa

Mappa geografica del bene

Storico delle vendite

Data venditaPrezzo base
12/06/2013€ 76.500,00
10/07/2013€ 69.000,00
09/10/2013€ 62.000,00
06/11/2013€ 56.000,00
20/07/2016€ 53.200,00
19/10/2016€ 50.600,00
08/02/2017€ 48.100,00
12/04/2017€ 45.700,00
15/11/2017€ 43.500,00
30/05/2018€ 41.400,00
06/03/2019€ 39.400,00
09/07/2025€ 79.000,00
03/12/2025€ 63.200,00
04/03/2026€ 50.600,00

Punti di interesse

Fonte dati

Nel raggio di {{range}}Km

Loading...
  • {{ getIcon(poi.type) }} {{ poi.localized }}: {{poi.count}}
  • {{ getIcon(poi.type) }} {{ poi.localized }}: {{poi.count}}
Dati non disponibili