Astegiudiziarie.it è parte di Rete Aste Network

Accedi o registrati

Non sei ancora registrato?

Oppure

Accedi

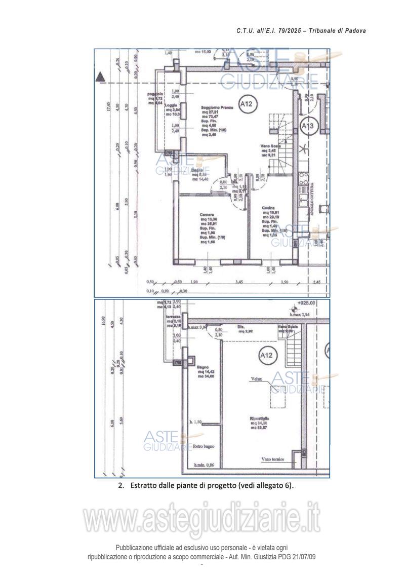
giudiziariagiudiziariaTribunale di PADOVAESECUZIONI CIVILI IMMOBILIARIESPROPRIAZIONE IMMOBILIARE (CARTABIA)792025Delegato alla venditaFilippoRampazzoRMPFPP74R23G224Caste@apepnotai.it049651228truefalseSoggetto specializzato alla venditaApepPLTNRC73L13G224Bvisita@apepnotai.it049651228falsetrueGiudicePasqualettofalsefalse2370111LOTTO UNICOIMMOBILIIMMOBILE RESIDENZIALEvia Pastore n. 30 int. 1235010VigonzaPadovaVenetoItaliaLotto Unico - piena proprietà di unità immobiliari facenti parte del fabbricato condominiale denominato "Palazzina A", sito in Comune di Vigonza (PD), via Pastore n. 30 int. 12, edificato unitamente ad altro edificio sull'area descritta in C.T., Fg. 23, partic. 421 di are 19.24 E.U. e precisamente trattasi di un appartamento al piano secondo (angolo sud-ovest dell'edificio) con mansarda/ripostiglio al piano terzo e garage al piano interrato della superficie commerciale complessiva di mq. 110. Libero.3060665IMMOBILE RESIDENZIALEABITAZIONE DI TIPO CIVILEvia Pastore n. 30 int. 1235010VigonzaPadovaVenetoItaliaLotto Unico - piena proprietà di unità immobiliari facenti parte del fabbricato condominiale denominato "Palazzina A", sito in Comune di Vigonza (PD), via Pastore n. 30 int. 12, edificato unitamente ad altro edificio sull'area descritta in C.T., Fg. 23, partic. 421 di are 19.24 E.U. e precisamente trattasi di un appartamento al piano secondo (angolo sud-ovest dell'edificio) con mansarda/ripostiglio al piano terzo e garage al piano interrato della superficie commerciale complessiva di mq. 110. Libero.LIBER2026-03-05T14:15:00SENZA INCANTOSINCRONA TELEMATICAAPEP, Via L. Piccinato 9 int. 435131PadovaPadovaVenetoItalia125.000,0093.750,001.000,002026-03-04T12:00:00gestore delle venditehttps://www.garavirtuale.ithttps://www.garavirtuale.itsito pubblicitahttps://www.astegiudiziarie.ithttps://www.astegiudiziarie.itsito pubblicitahttps://www.asteannunci.ithttps://www.asteannunci.itsito pubblicitahttps://www.fallcoaste.ithttps://www.fallcoaste.itsito pubblicitahttps://www.astalegale.nethttps://www.astalegale.net2025-12-22AVVISO DI RETTIFICAPer visitare l’immobile in modalità virtuale, è possibile accedere al Virtual Tour, aggiornato al 26 gennaio 2026, tramite il seguente link: https://my.matterport.com/show/?m=LNqVbdNocAe2026-01-28

Abitazione di tipo civile

via Pastore n. 30 int. 12, Vigonza (PD)

€ 125.000,00

Offerta minima € 93.750,00


Codice A4341949

Lotto Lotto unico

Data udienza 05/03/2026 ore 14:15

Termine presentazione offerte 04/03/2026 ore 12:00

Abitazione di tipo civile

via Pastore n. 30 int. 12, Vigonza (PD)

€ 125.000,00

Offerta minima € 93.750,00


Codice A4341949

Lotto Lotto unico

Data udienza 05/03/2026 ore 14:15

Termine presentazione offerte 04/03/2026 ore 12:00

Ti interessa questa vendita?

Documentazione

Visualizza su mappa

Mappa geografica del bene

Punti di interesse

Fonte dati

Nel raggio di {{range}}Km

Loading...
  • {{ getIcon(poi.type) }} {{ poi.localized }}: {{poi.count}}
  • {{ getIcon(poi.type) }} {{ poi.localized }}: {{poi.count}}
Dati non disponibili

Lotto Unico - piena proprietà di unità immobiliari facenti parte del fabbricato condominiale denominato "Palazzina A", sito in Comune di Vigonza (PD), via Pastore n. 30 int. 12, edificato unitamente ad altro edificio sull'area descritta in C.T., Fg. 23, partic. 421 di are 19.24 E.U. e precisamente trattasi di un appartamento al piano secondo (angolo sud-ovest dell'edificio) con mansarda/ripostiglio al piano terzo e garage al piano interrato della superficie commerciale complessiva di mq. 110. Libero.

Indirizzo
via Pastore n. 30 int. 12, Vigonza (PD)


Codice asta
4341949


Lotto
Lotto unico


Numero beni
1


Genere
Immobili


Categoria
Immobile residenziale


Valore di stima
-


Abitazione di tipo civile

Lotto Unico - piena proprietà di unità immobiliari facenti parte del fabbricato condominiale denominato "Palazzina A", sito in Comune di Vigonza (PD), via Pastore n. 30 int. 12, edificato unitamente ad altro edificio sull'area descritta in C.T., Fg. 23, partic. 421 di are 19.24 E.U. e precisamente trattasi di un appartamento al piano secondo (angolo sud-ovest dell'edificio) con mansarda/ripostiglio al piano terzo e garage al piano interrato della superficie commerciale complessiva di mq. 110. Libero.

Indirizzo
via Pastore n. 30 int. 12, Vigonza (PD)


Piano
-


Disponibilità
Libero


Vani
-


Bagni
-


Metri quadri
-


Certificazione energetica
-


Data udienza
05/03/2026 ore 14:15


Tipo di vendita
Senza incanto


Modalità di vendita
Sincrona telematica


Luogo
APEP, Via L. Piccinato 9 int. 4 - Padova 35131


Luogo presentazione offerte
-


Termine presentazione offerte
04/03/2026 ore 12:00


Prezzo base
€ 125.000,00


Offerta minima
€ 93.750,00


Rialzo minimo in caso di gara
€ 1.000,00


Deposito cauzionale
10% del prezzo offerto


Deposito in conto spese
-


Tribunale
Padova

Tipo di procedura
Espropriazione immobiliare (cartabia)

Ruolo
79/2025

Giudice
Pasqualetto 

Recapiti
-

Email
-

Delegato alla vendita
Rampazzo Filippo
(Procede alle operazioni di vendita)

Recapiti
Tel. 049651228

Email
aste@apepnotai.it

Soggetto specializzato alla vendita
Apep 
(Gestisce la visita del bene)

Recapiti
Tel. 049651228

Data
28/01/2026


Tipologia
AVVISO DI RETTIFICA


Descrizione
Per visitare l’immobile in modalità virtuale, è possibile accedere al Virtual Tour, aggiornato al 26 gennaio 2026, tramite il seguente link: https://my.matterport.com/show/?m=LNqVbdNocAe


Scheda COD. 4341949 - Pubblicata dal 14/01/2026

La presente scheda di vendita riporta integralmente informazioni e documenti pervenuti ufficialmente dal Ministero e dal professionista incaricato.


Pubblicazione autorizzata dall’Autorità competente, è vietata ogni ripubblicazione o riproduzione anche parziale


Ti interessa questa vendita?

Documentazione

Visualizza su mappa

Mappa geografica del bene

Punti di interesse

Fonte dati

Nel raggio di {{range}}Km

Loading...
  • {{ getIcon(poi.type) }} {{ poi.localized }}: {{poi.count}}
  • {{ getIcon(poi.type) }} {{ poi.localized }}: {{poi.count}}
Dati non disponibili