Astegiudiziarie.it è parte di Rete Aste Network

Accedi o registrati

Non sei ancora registrato?

Oppure

Accedi

Appartamento

Via Montorio n. 37, Verona (VR)

€ 110.000,00


Appartamento

Via Montorio n. 37, Verona (VR)

€ 110.000,00


Codice A4331851

Lotto Lotto unico

Data udienza In attesa di fissazione nuova vendita

Ti interessa questa vendita?

Documentazione

Visualizza su mappa

Mappa geografica del bene

Punti di interesse

Fonte dati

Nel raggio di {{range}}Km

Loading...
  • {{ getIcon(poi.type) }} {{ poi.localized }}: {{poi.count}}
  • {{ getIcon(poi.type) }} {{ poi.localized }}: {{poi.count}}
Dati non disponibili

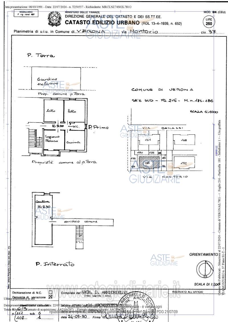
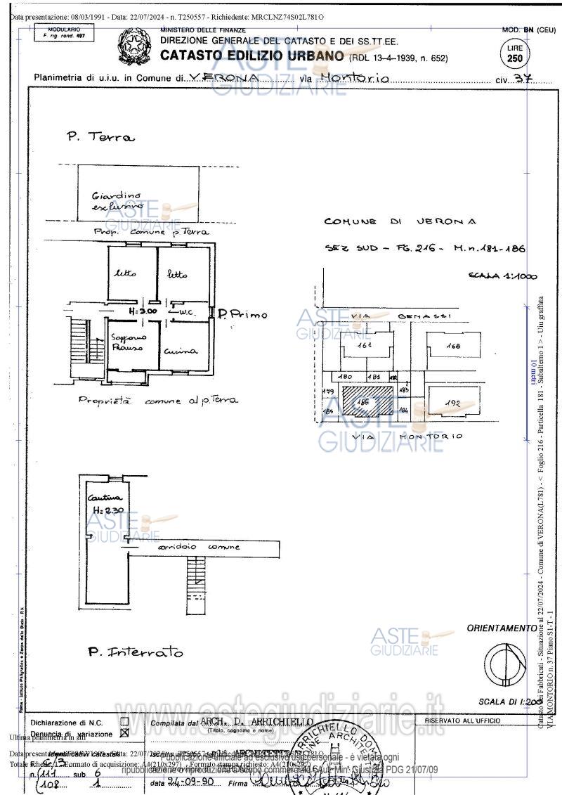
LOTTO UNICO - In Comune di Verona (VR), Via Montorio n. 37, in fabbricato condominiale a tre livelli fuori terra e un piano seminterrato a destinazione mista residenziale e commerciale, piena proprietà di appartamento con deposito esterno, cantina e piccolo terreno a orto, di superficie commerciale 95,34 mq. Sono compresi nella vendita i proporzionali diritti di comproprietà su enti comuni e spazi di uso comune ai sensi dell’art. 1117 c.c., ivi compresa l’area di sedime e pertinenza del fabbricato.

Indirizzo
Via Montorio n. 37, Verona (VR)


Codice asta
4331851


Lotto
Lotto unico


Numero beni
1


Genere
Immobili


Categoria
Immobile residenziale


Valore di stima
-


Appartamento

LOTTO UNICO - In Comune di Verona (VR), Via Montorio n. 37, in fabbricato condominiale a tre livelli fuori terra e un piano seminterrato a destinazione mista residenziale e commerciale, piena proprietà di appartamento con deposito esterno, cantina e piccolo terreno a orto, di superficie commerciale 95,34 mq. Sono compresi nella vendita i proporzionali diritti di comproprietà su enti comuni e spazi di uso comune ai sensi dell’art. 1117 c.c., ivi compresa l’area di sedime e pertinenza del fabbricato.

Indirizzo
Via Montorio n. 37, Verona (VR)


Piano
-


Disponibilità
-


Vani
-


Bagni
-


Metri quadri
-


Certificazione energetica
-


Dati catastali

Foglio:216, Particella:181, Subalterno:1, Subalterno 2:(ex NCEU Sez. Urbana C – Fg. 6 – m.n. 108 sub 1 gr, Graffato:graffato al m.n.186 sub 6
Foglio:216, Particella:182, Subalterno:2, Subalterno 2:(ex NCEU Sez. Urbana C – Fg. 6 – m.n. 108 sub 2)


Tribunale
Verona

Tipo di procedura
Espropriazione immobiliare (cartabia)

Ruolo
180/2024

Giudice
Burti Attilio

Recapiti
-

Email
-

Delegato alla vendita
Saraceno Melchiorre
(Procede alle operazioni di vendita)

Recapiti
Tel. 0458006661

Email
notes@notariato.it

Custode giudiziario
Soriolo Caterina
(Gestisce la visita del bene)

Recapiti
Tel. 0454500310

Email

Scheda COD. 4331851 - Pubblicata dal 02/07/2025

La presente scheda di vendita riporta integralmente informazioni e documenti pervenuti ufficialmente dal Ministero e dal professionista incaricato.

La sua pubblicazione è prolungata, in conformità agli accordi con il Tribunale, con l’obiettivo di garantire un’informazione continua e aggiornata, nel rispetto delle tempistiche procedurali.


Pubblicazione autorizzata dall’Autorità competente, è vietata ogni ripubblicazione o riproduzione anche parziale


Ti interessa questa vendita?

Documentazione

Visualizza su mappa

Mappa geografica del bene

Punti di interesse

Fonte dati

Nel raggio di {{range}}Km

Loading...
  • {{ getIcon(poi.type) }} {{ poi.localized }}: {{poi.count}}
  • {{ getIcon(poi.type) }} {{ poi.localized }}: {{poi.count}}
Dati non disponibili